Mehrfamilienhaus in Thaleischweiler-Fröschen

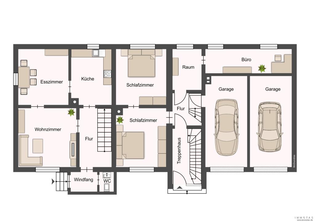
Gäste WC
Garage/­Stellplatz

Zweifamilienhaus auf großem Grundstück – Viel Potenzial für Ihre individuellen Ideen

Anfragen bisher

Premium

Meine Chancen

Premium

Fairer Preis

Premium

199.000 €

Kaufpreis

219,4 m²

6 Zi.

Grundriss

66987 Thaleischweiler-Fröschen / Thalfröschen

Gewerblicher Anbieter

IMMOTAS GmbH & Co. KG
Bahnhofstraße 16
67269 Grünstadt

Details

Grundstücksfläche
2.308 m²
Zimmerzahl
6
Haustyp
Mehrfamilienhaus
Etagenzahl
2
Nutzfläche
130 m²
Anzahl Schlafzimmer
4
Anzahl Badezimmer
3
Anzahl Garage/ Stellplatz
1
Objektzustand
Renovierungsbedürftig
Baujahr
1920

Kosten

Kaufpreis
199.000 €
Käuferprovision
3,57 % inkl. MwSt.
Was kostet dein Umzug?

Objektbeschreibung

Das im Jahr 1920 errichtete Zweifamilienhaus wurde 1978 durch einen Anbau erweitert und präsentiert sich in einer soliden zweigeschossigen Massivbauweise. Das Gebäude bietet aufgrund seiner Struktur eine ausgezeichnete Grundlage für individuelle Modernisierungsmaßnahmen. Im Kellergeschoss sind Anzeichen von Feuchtigkeit sichtbar, was die Gelegenheit bietet, gezielte Sanierungsmaßnahmen zu ergreifen und das Objekt optimal an die heutigen Standards anzupassen. Das Dachgeschoss wurde teilweise zu Wohnzwecken ausgebaut und könnte durch gezielte Renovierungen erheblich an zusätzlichem Nutzungspotenzial gewinnen.


Die Innenausstattung des Hauses bietet eine wunderbare Chance für eine kreative Neugestaltung. Die verschiedenen Bodenbeläge – von Fliesen über Laminat und Teppich bis hin zu Naturstein – ermöglichen es, das Raumgefühl nach eigenen Vorstellungen zu optimieren. Besonders die Badezimmer bieten Raum für eine zeitgemäße Umgestaltung, um modernen Komfort und Stil zu vereinen. Im Obergeschoss befinden sich bereits ein Bad mit Badewanne und Dusche sowie ein separates Gäste-WC im Erdgeschoss. Diese funktionalen Räume lassen sich durch Renovierungsmaßnahmen zu modernen Wohlfühloasen umwandeln.


Die 1993 eingebauten Kunststofffenster mit 2-fach-Verglasung bieten bereits eine gute Grundlage in puncto Isolierung, jedoch lässt sich hier mit einer Verbesserung der Wärme- und Schallisolierung noch mehr Komfort erreichen. Die 2014 erneuerte Gas-Zentralheizung sorgt für eine effiziente Beheizung und Warmwasseraufbereitung. Hier besteht jedoch auch die Möglichkeit, durch eine Anpassung an moderne Heiztechnik noch weiter an Energieeffizienz zu gewinnen.


Der angebaute Schuppen bietet vielseitige Gestaltungsmöglichkeiten. Ob als zusätzlicher Stauraum oder durch eine umfassende Sanierung als weitere Nutzfläche – hier können kreative Ideen realisiert werden. Der großzügige Garten gibt Ihnen zudem die Freiheit, eine Oase der Entspannung zu schaffen. Zwar benötigt er Pflege und Gestaltung, bietet jedoch enormes Potenzial, um ihn nach eigenen Vorstellungen zu einem echten Highlight zu verwandeln:


Insgesamt handelt es sich bei dieser Immobilie um ein spannendes Projekt für Käufer, die die Herausforderung einer Renovierung annehmen und das enorme Potenzial dieser Immobilie voll ausschöpfen möchten. Die Immobilie eignet sich auch hervorragend für Mehrgenerationen-Wohnen. Mit der richtigen Vision und einem klaren Renovierungsplan lässt sich aus diesem Haus ein modernes und gemütliches Zuhause schaffen, das sowohl in Sachen Wohnkomfort als auch in Bezug auf Wertsteigerung deutlich profitieren kann: https://immotas.de/de/immobilie/zweifamilienhaus-auf-grossem-grundstueck-viel-potenzial-fuer-ihre-individuellen-ideen-6844f717


Bausubstanz & Energieausweis

A+

A

B

C

D

E

F

168,1 kWh/(m²*a)

G

H

Baujahr
1920
Objektzustand
Renovierungsbedürftig
Wesentlicher Energieträger
GAS
Heizungsart
Zentralheizung
Befeuerung
Gasheizung
Energieausweis
liegt vor
Energieausweistyp
Bedarfsausweis
Gültig bis
08.05.2035
Energieeffizienzklasse
F
Endenergiebedarf
168,1 kWh/(m²*a)

Ausstattung

1920 (geschätzt) Baujahr Zweifamilienhaus (Bestandsgebäude)
1978 Anbau
zweigeschossige Massivbauweise
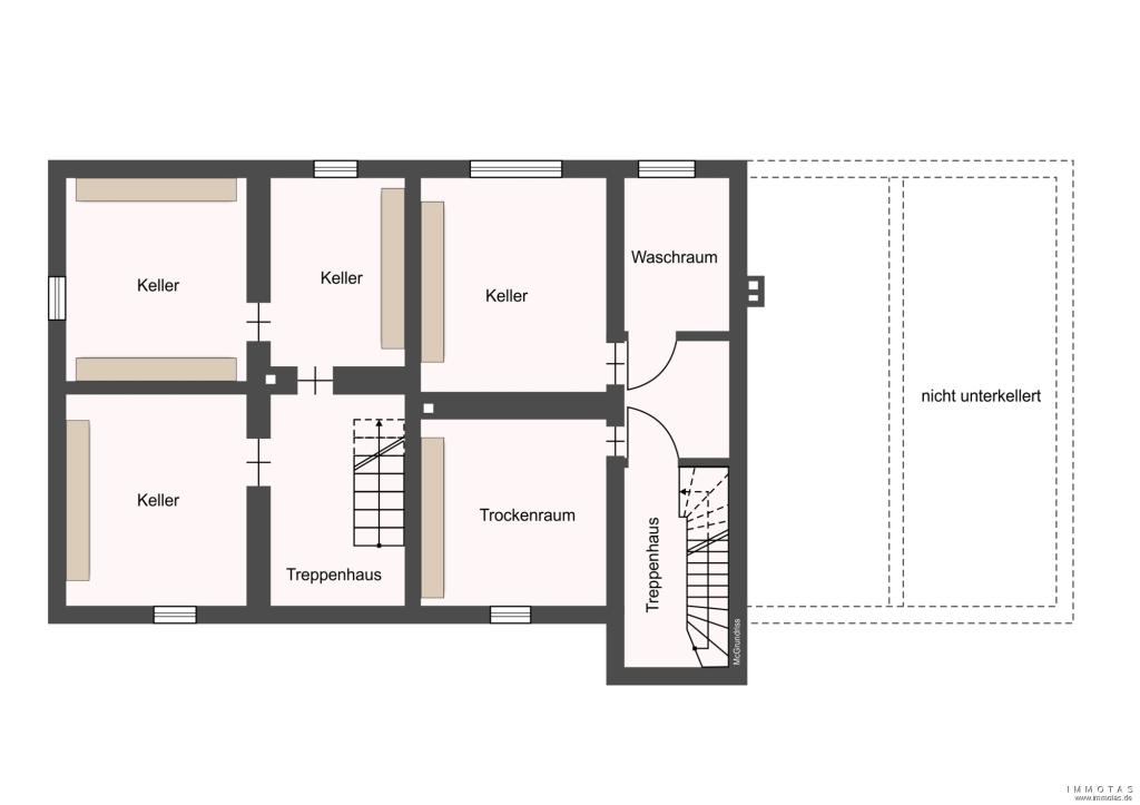
teilweise unterkellert
Dachgeschoss teilweise zu Wohnzwecken ausgebaut


2014 Gas-Zentralheizung inkl. Warmwasseraufbereitung
1993 Fenster Kunststoff 2fach verglast
Bodenbelag Fliesen, Laminat, Teppich, PVC, Naturstein
Gäste-WC
Tageslicht-Badezimmer mit Badewanne und Dusche
Tageslicht-Duschbad OG mit Badewanne
Tageslicht-Duschbad EG
zwei Balkone
zwei Garagen
weitläufiger Garten


angebauter Schuppen (Abrissobjekt bzw. stark sanierungsbedürftig)
Feuchtigkeit im Kellergeschoss


Lagebeschreibung

Dieses charmante Zweifamilienhaus befindet sich in der idyllischen Gemeinde Thaleischweiler-Fröschen, genauer im malerischen Ortsteil Thalfröschen. Die Region ist bekannt für ihre landschaftliche Schönheit und die Nähe zu den sanften Hügeln und Wäldern der Südwestpfalz, was sie zu einem idealen Rückzugsort für Natur- und Erholungsfreunde macht.


Die Verkehrsanbindung ist ausgezeichnet, mit schnellen Zugangsmöglichkeiten zur Autobahn A62, die in kürzester Zeit die Städte Pirmasens und Kaiserslautern erreichbar macht. Dies bietet eine perfekte Balance zwischen ländlicher Ruhe und städtischer Erreichbarkeit.


Vor Ort gibt es alle notwendigen Annehmlichkeiten, darunter Schulen, Einkaufsmöglichkeiten und medizinische Versorgung, die das tägliche Leben erleichtern. Außerdem profitieren Sie von einer aktiven Gemeinde, die zahlreiche Freizeitmöglichkeiten und Veranstaltungen bietet, um das Gemeinschaftsgefühl zu stärken.


Die zentrale Lage innerhalb der Region Rheinland-Pfalz und die hervorragende Infrastruktur machen diese Immobilie zu einem besonders begehrten Objekt für Familien und Pendler, die eine ruhige und naturnahe Umgebung zu schätzen wissen.


Sonstige Angaben

Es liegt ein Energiebedarfsausweis vor.
Dieser ist gültig bis 8.5.2035.
Endenergiebedarf beträgt 168.10 kwh/(m²*a).
Wesentlicher Energieträger der Heizung ist Gas.
Das Baujahr des Objekts lt. Energieausweis ist 1920.
Die Energieeffizienzklasse ist F.


Wenn Sie Interesse an diesem Objekt haben, sprechen Sie uns an. Auch in Finanzierungsfragen helfen wir Ihnen gerne weiter. Sollten Sie eine Immobilie zu verkaufen haben oder suchen Sie einen Nachmieter für Ihre Wohnung/Ihr Haus, informieren wir Sie gerne unverbindlich über unseren Service, der professionellen Immobilienvermarktung. Wir freuen uns auf Ihre Anfrage!


Wohnung finden so einfach wie möglich - das ist unsere Mission!

Kostenlose Basic Features

0 € monatlich


  • Individuelles Such-Profil anlegen
  • Suchaufträge speichern
  • One-Klick Kontaktaufnahme

alles anzeigen

Jetzt kostenlos anmelden

Premium Features

19,99 € monatlich


  • Alle kostenlosen Features
  • Smart-Alarm per Whatsapp
  • Deine Chancen checken
  • Wohngegend analysieren

alles anzeigen

Jetzt Premium freischalten

Gewerblicher Anbieter

IMMOTAS GmbH & Co. KG
Bahnhofstraße 16
67269 Grünstadt

Wohnglück-ID:
Objekt-Nr.:
WGL-619751
PE-25-MRBD-105