Doppelhaushälfte in Oevenum

Balkon/­Terrasse
Garten/­-mitbenutzung
Gäste WC
Einbauküche
Garage/­Stellplatz

KfW 55-Standard: Hochwertig eingerichtete Doppelhaushälfte unter Reet

Anfragen bisher

Premium

Meine Chancen

Premium

Fairer Preis

Premium

850.000 €

Kaufpreis

105 m²

4 Zi.

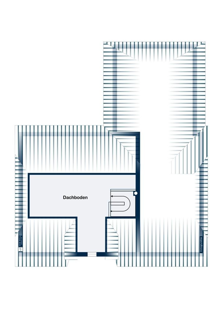
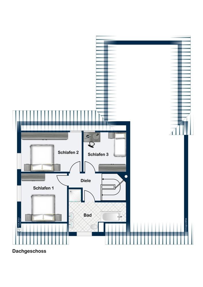
Grundriss

25938 Oevenum

Gewerblicher Anbieter

VON POLL IMMOBILIEN Föhr / Amrum - Dirk Jenßen
Große Straße 38
25938 Wyk auf Föhr

Details

Grundstücksfläche
943 m²
Zimmerzahl
4
Haustyp
Doppelhaushälfte
Etagenzahl
3
Nutzfläche
6 m²
Anzahl Schlafzimmer
3
Anzahl Badezimmer
2
Anzahl Garage/ Stellplatz
1
Objektzustand
Erstbezug
Baujahr
2023

Kosten

Kaufpreis
850.000 €
Käuferprovision
Käuferprovision beträgt 2,975 % (inkl. MwSt.) des beurkundeten Kaufpreises
Was kostet dein Umzug?

Stellplätze

Stellplatztyp
Freiplatz
Anzahl
1

Objektbeschreibung

Hochwertig eingerichtet mit Pött un Pann - sofort einziehen! Auf einem ruhigen Hintergrundstück ist hier im typisch friesischen Baustil ein modernes Doppelhaus unter Reet im KfW 55 EE-Standard entstanden. Auf rund 99 Quadratmeter Wohnfläche (nach Din, kein "Sylter Maß"!) erwartet Sie eine geräumige Diele, die ausreichend Platz für eine Garderobe bietet. Von hier gelangt man in ein helles Duschbad mit einer Sauna sowie einem Gäste-WC. Zudem gibt es einen Hauswirtschaftsraum mit Anschlüssen für Waschmaschine und Trockner sowie einen Abstellraum. Herzstück bildet das geräumige helle Wohnzimmer (Abzug für einen Kaminofen vorhanden) mit einem Essbereich und offener moderner Küche sowie einem Zugang zu Terrasse (zirka 15 Quadratmeter) und Garten (rund 140 Quadratmeter zugeordnete Freifläche).
Im Obergeschoss finden sich drei schöne Schlafzimmer sowie ein helles, geräumiges Wannen-Duschbad. Der Spitzboden bietet reichlich zusätzlichen Stauraum.
Das gesamte Haus ist durch eine Fußbodenheizung beheizt. In den Bädern sind zusätzlich Handtuchheizkörper vorhanden. Diese hochwertig und gemütlich eingerichtete Immobilie besticht zudem durch ihre geringen Energiekosten.
Die Haushälften sind nach WEG geteilt.
Das gesamte Grundstück der Wohnanlage ist optisch ansprechend bepflanzt. Ein PKW-Stellplatz mit einer E-Ladesäule und ein kleines Gartenhäuschen runden das Angebot ab.
Ein Erwerb des gesamten Gebäudes ist zur Zeit noch möglich.
Das Haus kann sofort übergeben werden.


Bausubstanz & Energieausweis

A+

19 kWh/(m²*a)

A

B

C

D

E

F

G

H

Baujahr
2023
Objektzustand
Erstbezug
Wesentlicher Energieträger
LUFTWP
Heizungsart
Zentralheizung
Befeuerung
Wärmepumpe
Energieausweis
liegt vor
Energieausweistyp
Bedarfsausweis
Gültig bis
25.03.2034
Energieeffizienzklasse
A+
Endenergiebedarf
19 kWh/(m²*a)

Lagebeschreibung

Das typische Friesendorf Oevenum mit rund 600 Einwohnern liegt nur wenige Fahrminuten von der Inselhauptstadt Wyk entfernt. Der Ortskern ist geprägt durch stilvoll renovierte reetgedeckte Friesenhäuser. Besorgungen für den täglichen Bedarf sind in Oevenum in einer Bäckerei auf der anderen Straßenseite zu erledigen. Zudem laden der Dorfkrug und einige Cafés zum Verweilen ein. Auch einige gemütliche Cafes In den Sommermonaten findet wöchentlich der traditionelle und sehr beliebte Bauernmarkt statt. Eine Bushaltestelle der Insellinie, die alle Föhrer Gemeinden verbindet, befindet sich in unmittelbarer Nähe.
Beheimatet ist in Oevenum auch ein gepflegter Neun-Loch-Kurzbahngolfplatz, der für jedermann bespielbar ist.
Föhr ist mit 82 Quadratkilometern und rund 8600 Einwohnern die größte Insel im Weltnaturerbe Nordfriesisches Wattenmeer. Einheimische und Inselgäste wissen die friesische Urtümlichkeit und den wohltuend ruhigen Charme der Insel, der Besucher schnell in seinen Bann zieht, gleichermaßen zu schätzen. Nordsee, Strand, Marsch- und Geestlandschaften in dem höchst gesunden Reizklima bieten Ruhe und Erholung aber auch zahlreiche Möglichkeiten, aktiv zu sein. So werden Wattwanderungen, Wassersport, Radtouren, Schwimmen sowie zahlreiche klassische Sportarten wie Tennis, Golf, Fußball, Beach-Volleyball, Minigolf und vieles mehr angeboten. Dazu rundet ein umfangreiches kulturelles Veranstaltungsprogramm das Angebot ab.
In Wyk finden sich größere Einkaufsmärkte, die Fußgängerzone mit der Flaniermeile Sandwall, das Kino und das Wellenbad sowie der Fährhafen. Die Anreise nach Föhr ist auch mit einem Sportflugzeug möglich.
Es gibt 16 Dörfer auf der Insel, die mit ihren reetgedeckten friesischen Häusern und Höfen, die in dieser Anzahl auf keiner anderen Insel zu finden sind, ihren urtümlichen Charakter weitgehend bewahrt haben.
Die Haupteinnahmequelle ist der Tourismus. Es gibt zirka 4000 Ferienwohnungen und -häuser sowie diverse Pensionen und Hotels.


Sonstige Angaben

Es liegt ein Energiebedarfsausweis vor.
Dieser ist gültig bis 25.3.2034.
Endenergiebedarf beträgt 19.00 kwh/(m²*a).
Wesentlicher Energieträger der Heizung ist Luft/wasser Wärmepumpe.
Das Baujahr des Objekts lt. Energieausweis ist 2023.
Die Energieeffizienzklasse ist A+.


Wohnung finden so einfach wie möglich - das ist unsere Mission!

Kostenlose Basic Features

0 € monatlich


  • Individuelles Such-Profil anlegen
  • Suchaufträge speichern
  • One-Klick Kontaktaufnahme

alles anzeigen

Jetzt kostenlos anmelden

Premium Features

19,99 € monatlich


  • Alle kostenlosen Features
  • Smart-Alarm per Whatsapp
  • Deine Chancen checken
  • Wohngegend analysieren

alles anzeigen

Jetzt Premium freischalten

Gewerblicher Anbieter

VON POLL IMMOBILIEN Föhr / Amrum - Dirk Jenßen
Große Straße 38
25938 Wyk auf Föhr

Wohnglück-ID:
Objekt-Nr.:
WGL-618712
22253009