Etagenwohnung in Neunkirchen

Aufzug
Balkon/­Terrasse
Einbauküche
Garage/­Stellplatz

Zukunftssicher Wohnen – energieeffiziente 3-Zimmer-Wohnung mit Balkon und Aufzug

Anfragen bisher

Premium

Meine Chancen

Premium

Fairer Preis

Premium

215.000 €

Kaufpreis

83 m²

3 Zi.

2. OG

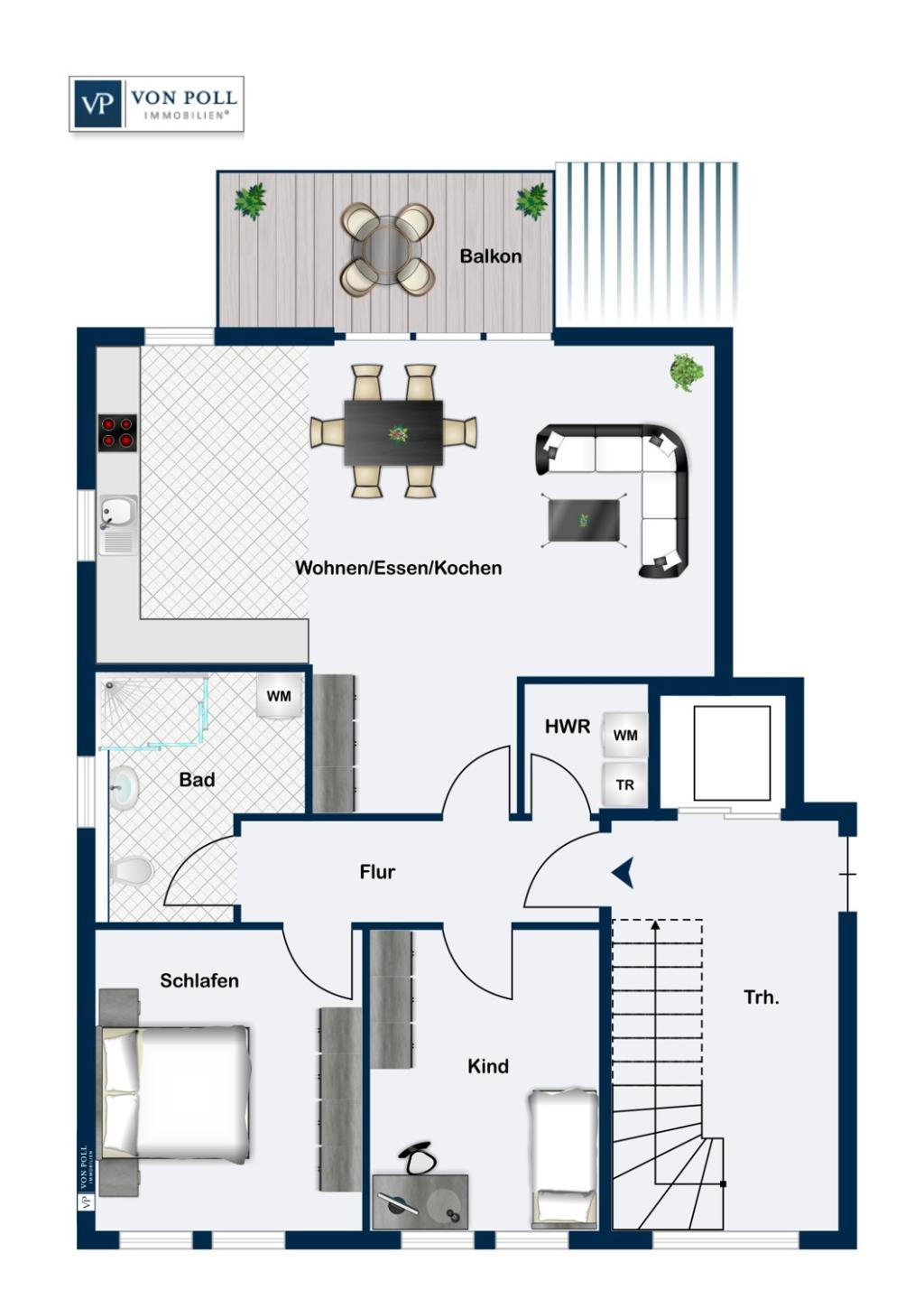
Grundriss

66538 Neunkirchen/Saar

Gewerblicher Anbieter

VON POLL IMMOBILIEN Homburg - Carsten Cherdron
Saarbrücker Straße 41
66424 Homburg

Details

Zimmerzahl
3
Wohnungstyp
Etagenwohnung
Etage, Geschoss
2
Etagenzahl
3
Nutzfläche
3,44 m²
Anzahl Schlafzimmer
2
Anzahl Badezimmer
1
Anzahl Garage/ Stellplatz
1
Objektzustand
Neuwertig
Baujahr
2019

Kosten

Kaufpreis
215.000 €
Hausgeld
256 €
Käuferprovision
Käuferprovision beträgt 3,57 % (inkl. MwSt.) des beurkundeten Kaufpreises
Was kostet dein Umzug?

Stellplätze

Stellplatztyp
Freiplatz
Anzahl
1

Objektbeschreibung

Moderne Etagenwohnung in KfW-40-Bauweise – ideal für komfortables Wohnen


Stellen Sie sich vor, Sie genießen Ihr Zuhause ohne Treppen, ohne Kompromisse – dafür mit moderner Ausstattung, wohliger Wärme und einem Gefühl der Sicherheit. Genau das bietet Ihnen diese nahezu neuwertige Etagenwohnung aus dem Jahr 2019, gelegen in einem energieeffizienten KfW-40-Mehrfamilienhaus.


Mit ca. 83 m² Wohnfläche ist die Wohnung perfekt geschnitten: Zwei helle, gut nutzbare Zimmer – ob als Schlafzimmer, Gästezimmer oder privates Arbeitszimmer. Das Herzstück ist der großzügige Wohn- und Essbereich mit angrenzender, hochwertiger Einbauküche. Hier ist alles so gestaltet, dass Kochen, Genießen und Entspannen gleichermaßen leichtfallen.


Besonders praktisch: Der bequeme Aufzug bringt Sie direkt von der Haustür bis vor Ihre Wohnung – ideal, wenn Sie schwere Einkäufe, Gepäck oder einfach nur Ihre Kräfte schonen möchten.


Das Badezimmer ist für höchsten Komfort ausgestattet: eine große, ebenerdige Dusche mit rutschhemmendem Boden, leicht zu bedienende Armaturen und pflegeleichte Materialien. So bleibt das tägliche Duschen nicht nur angenehm, sondern auch sicher.


Ein sonniger Balkon lädt zum Verweilen ein – hier können Sie den Morgenkaffee genießen, Freunde empfangen oder einfach den Blick ins Grüne schweifen lassen. An warmen Tagen sorgt eine Klimaanlage für frische Luft, in der kühleren Jahreszeit verwöhnt Sie die Fußbodenheizung mit gleichmäßiger Wärme.


Dank der durchdachten Raumaufteilung und der barrierearmen Gestaltung ist diese Wohnung ideal, um auch im höheren Alter lange und selbstbestimmt zu wohnen.


Ihre Vorteile auf einen Blick:


- Barrierearmer Zugang mit Aufzug

- Ebenerdige Dusche

- Energieeffiziente Bauweise für niedrige Betriebskosten

- Sonniger Balkon, Klimaanlage & Fußbodenheizung

- Eigener PKW-Stellplatz inklusive

- Baujahr 2019 – alles modern und gepflegt

Diese Wohnung ist nicht nur ein Zuhause – sie ist ein Ort, an dem Sie sich wohlfühlen, Sicherheit spüren und den Alltag genießen können.
Vereinbaren Sie noch heute Ihren Besichtigungstermin und überzeugen Sie sich selbst von diesem besonderen Wohnangebot.


Bausubstanz & Energieausweis

A+

A

B

C

D

E

F

G

H

Baujahr
2016
Objektzustand
Neuwertig
Wesentlicher Energieträger
LUFTWP
Heizungsart
Zentralheizung
Befeuerung
Wärmepumpe
Energieausweis
liegt vor
Energieausweistyp
Verbrauchsausweis
Gültig bis
19.12.2027
Energieverbrauchskennwert
10 kWh/(m²*a)
Energieeffizienzklasse
A+

Ausstattung


  • KFW 40 Haus (Luft-Wasser-Wärmepumpe)

  • Zwei Schlafzimmer

  • Offener Wohn-/Essbereich

  • Hochwertige Einbauküche mit Markengeräten

  • Balkon für Sonnenliebhaber

  • Fußbodenheizung mit Einzelraum-Steuerung

  • Große ebenerdige Dusche

  • Klimaanlage

  • Dezentrale Lüftung mit Wärmerückgewinnung

  • 3-fach-Verglasung mit erhöhtem Aufbruch-Schutz

  • Abstellraum

  • Video-Gegensprechanlage

  • KFZ-Stellplatz

  • Aufzug


Lagebeschreibung

In einer gut angebundenen Wohngegend von Neunkirchen gelegen, überzeugt diese Wohnung als attraktiver Wohnsitz für Familien, Berufstätige und Pendler gleichermaßen. Schulen, Kindergärten und Einkaufsmöglichkeiten befinden sich in direkter Umgebung und sind bequem zu Fuß oder mit dem Fahrrad erreichbar. Die Anbindung an den öffentlichen Nahverkehr sowie an die Autobahn ist hervorragend, sodass auch größere Städte der Region schnell zu erreichen sind. Gleichzeitig bietet die grüne Umgebung zahlreiche Naherholungsmöglichkeiten – ideal für Spaziergänge, sportliche Aktivitäten oder entspannte Stunden im Freien.


Neunkirchen zählt zu den größeren Städten im Saarland und vereint urbane Infrastruktur mit naturnahem Wohnen. Die Stadt verfügt über ein breites kulturelles Angebot, moderne Einkaufszentren und vielfältige Freizeitmöglichkeiten. Mit ihrem ausgewogenen Mix aus Stadtnähe und Erholungsqualität bietet sie einen idealen Lebensmittelpunkt für Menschen, die Wert auf Komfort und Lebensqualität legen.


Sonstige Angaben

Es liegt ein Energieverbrauchsausweis vor.
Dieser ist gültig bis 19.12.2027.
Endenergieverbrauch beträgt 10.40 kwh/(m²*a).
Wesentlicher Energieträger der Heizung ist Luft/wasser Wärmepumpe.
Das Baujahr des Objekts lt. Energieausweis ist 2016.
Die Energieeffizienzklasse ist A+.


Wohnung finden so einfach wie möglich - das ist unsere Mission!

Kostenlose Basic Features

0 € monatlich


  • Individuelles Such-Profil anlegen
  • Suchaufträge speichern
  • One-Klick Kontaktaufnahme

alles anzeigen

Jetzt kostenlos anmelden

Premium Features

19,99 € monatlich


  • Alle kostenlosen Features
  • Smart-Alarm per Whatsapp
  • Deine Chancen checken
  • Wohngegend analysieren

alles anzeigen

Jetzt Premium freischalten

Gewerblicher Anbieter

VON POLL IMMOBILIEN Homburg - Carsten Cherdron
Saarbrücker Straße 41
66424 Homburg

Wohnglück-ID:
Objekt-Nr.:
WGL-617591
25 309 623