Erdgeschosswohnung in Bisingen (Gemarkung Bisingen)

Aufzug
Balkon/­Terrasse
Garage/­Stellplatz

Wohnen in naturnaher Lage von Bisingen

Anfragen bisher

Premium

Meine Chancen

Premium

Fairer Preis

Premium

279.804 €

Kaufpreis

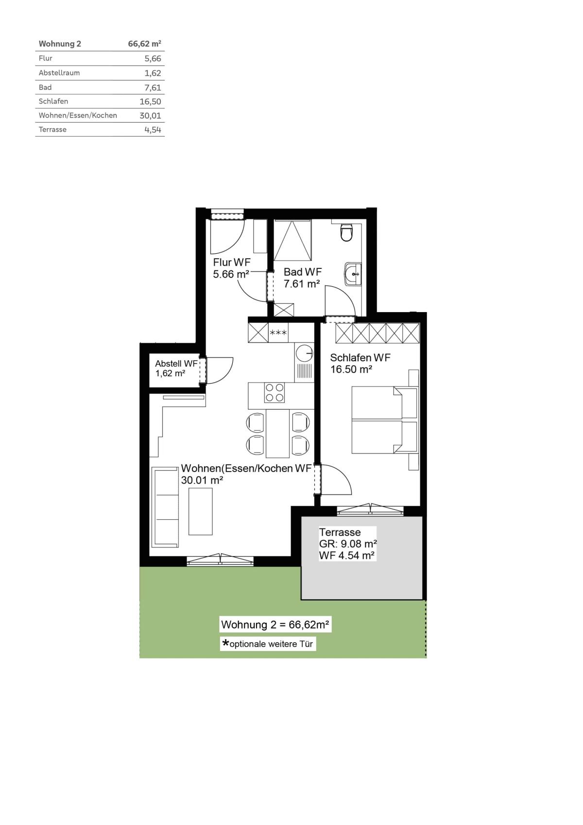
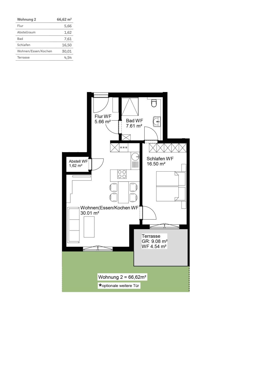
66,62 m²

2,5 Zi.

Grundriss

72406 Bisingen

Gewerblicher Anbieter

Volksbank Hohenzollern-Balingen eG
Friedrichstr. 72
72336 Balingen

Details

Zimmerzahl
2,5
Wohnungstyp
Erdgeschosswohnung
Anzahl Schlafzimmer
1
Anzahl Badezimmer
1
Anzahl Garage/ Stellplatz
2
Objektzustand
Projektiert
Baujahr
2026

Kosten

Kaufpreis
279.804 €
Käuferprovision
keine
Was kostet dein Umzug?

Stellplätze

Stellplatztyp
Freiplatz
Anzahl
1
Kaufpreis
10.000 €
Stellplatztyp
Tiefgarage
Anzahl
1
Kaufpreis
25.000 €

Objektbeschreibung

Gebaut werden zwei Wohneinheiten in Holzständerbauweise mit jeweils 8 hochwertig ausgestatteten Wohnungen.
17 Tiefgaragenstellplätzen und 15 Stellplätzen.
Das KfW-Effizienzhaus 55 mit einer hoch wärmegedämmten Gebäudehülle und der Luft-Wasser-Wärmepumpe ist zukunftsorientiert auf einen minimalen Energieverbrauch und somit geringe Energiekosten ausgerichtet.
Der Wohnungszugang ist von der Tiefgarage aus mit dem Plattformlift barrierefrei.
Im Keller befinden sich die separaten Abstellräume, der Fahrradabstellraum sowie der Müll- und Waschraum.
Die Wohnungen im Erdgeschoss verfügen über eine Terrasse mit Gartenanteil. Die Wohnungen sind zwischen 66,62 m² und 80,76 m² groß.
Ebenso die Wohnungen im Obergeschoss, welche über einen Balkon verfügen.
Im Dachgeschoss sind die Wohnungen 82,69 m² oder 84,57 m² groß und verfügen über eine große Dachterrasse.
In jeder Wohnung gibt es einen zusätzlichen Abstellraum.

Bei weiteren Fragen stehe wir Ihnen sehr gerne jederzeit zur Verfügung!


Bausubstanz & Energieausweis

Objektzustand
Projektiert
Heizungsart
Fußbodenheizung
Befeuerung
Elektroheizung
Energieausweis
Laut Gesetz nicht erforderlich

Ausstattung


  • KfW-Effizienzhaus 55
    - 3-Fach verglaste Fenster mit elektr. Unterputzrolladen
    - Freisprechanlage
    - Tiefgarage
    - Plattformlifte 2 Stück
    - Hochwertige sichtbare Holz-Brettstapeldecken in jeder Wohnung
    - Hochwertige Badausstattung der Firma Reisser
    - Zusätzlicher Abstellraum in jeder Wohnung
    - Großzügige Terrassen/Balkone mit witterungsbeständigen Douglasiendielen
    - Im Dachgeschoss zusätzlicher Dachboden (über Bodentreppe erreichbar)
    - Hochwertige Bodenbeläge
    - Küche ist nicht enthalten
    - Abschließbarer Fahrradabstellraum


Lagebeschreibung

Bisingen ist mit seinen Ortsteilen eine eigenständige, moderne und aufstrebende Gemeinde und liegt verkehrsgünstig an der B 27 zwischen den nahen Mittelzentren Hechingen, Balingen und Tübingen.

Auch die Wirtschaftsräume Tübingen, Reutlingen und Stuttgart sind über die B 27 oder A 81 gut zu erreichen.

Der nächste Autobahnanschluss zur A 81 ist ca. 15 Minuten entfernt.

Der Autobahnzubringer zweigt unmittelbar von der vierspurigen B 27 ab.

Bisingen bietet seinen ca. 9.300 Einwohnern in der schönen Hohenzollernhalle kulturelles Leben und in zahlreichen Vereinen wird für jedermann ein breitgefächertes Freizeitangebot bereitgehalten. Im Ortskern befindet sich eine Vielzahl attraktiver Einkaufsmöglichkeiten sowie Kinderärzte, Allgemeinmediziner, Zahnärzte und Apotheken. Kindergarten bzw. Grund- und Realschule runden das Angebot in Bisingen ab.


Wohnung finden so einfach wie möglich - das ist unsere Mission!

Kostenlose Basic Features

0 € monatlich


  • Individuelles Such-Profil anlegen
  • Suchaufträge speichern
  • One-Klick Kontaktaufnahme

alles anzeigen

Jetzt kostenlos anmelden

Premium Features

19,99 € monatlich


  • Alle kostenlosen Features
  • Smart-Alarm per Whatsapp
  • Deine Chancen checken
  • Wohngegend analysieren

alles anzeigen

Jetzt Premium freischalten

Gewerblicher Anbieter

Volksbank Hohenzollern-Balingen eG
Friedrichstr. 72
72336 Balingen

Wohnglück-ID:
Objekt-Nr.:
WGL-615531
2025-0945-2