Doppelhaushälfte in Dassendorf

Garage/­Stellplatz

Ein Zuhause mit Persönlichkeit: "Doppelhaushälfte auf herrlichem Grundstück"

Anfragen bisher

Premium

Meine Chancen

Premium

Fairer Preis

Premium

550.000 €

Kaufpreis

133 m²

4 Zi.

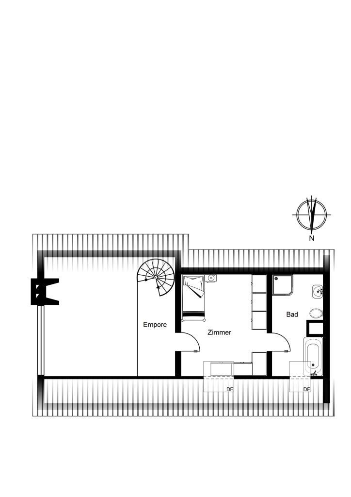
Grundriss

21521 Dassendorf

Gewerblicher Anbieter

PIPPING Immobilien GmbH & Co. KG - Filiale Reinbek
Bahnhofstraße 12
21465 Reinbek

Details

Grundstücksfläche
1.246 m²
Zimmerzahl
4
Haustyp
Doppelhaushälfte
Anzahl Garage/ Stellplatz
2
Objektzustand
Gepflegt
Baujahr
1978

Kosten

Kaufpreis
550.000 €
Käuferprovision
3,125 % inkl. USt.
Was kostet dein Umzug?

Stellplätze

Stellplatztyp
Garage
Anzahl
1
Stellplatztyp
Carport
Anzahl
1

Objektbeschreibung

Bei der hier angebotenen Immobilie handelt es sich um ein klassisches Doppelhaushälfte auf einem traumhaft eingewachsenen Grundstück in bester Lage von Dassendorf.


Das Gebäude entsprang einem im Jahre 1978 an der Ostseite des Bestandsgebäudes errichteten Anbaus, welcher mithilfe von zwei weiteren Anbauten (1986 und 1995) zu einer Einheit mit vier Zimmern und einer Wohn- und Nutzfläche von ca. 133 m² herangewachsen ist.


Die Beheizung und die Warmwasserversorgung erfolgen über eine moderne Gasbrennwerttherme aus dem Jahre 2022.


Eine auf dem Dach installierte Photovoltaikanlage sorgt für eine teilweise autarke Stromversorgung.


Bausubstanz & Energieausweis

A+

A

B

C

D

E

F

G

H

Baujahr
2022
Objektzustand
Gepflegt
Wesentlicher Energieträger
Gas
Heizungsart
Gasheizung
Befeuerung
Gasheizung
Energieausweistyp
Verbrauchsausweis
Gültig bis
21.03.2034
Energieeffizienzklasse
D

Ausstattung

Hereinspaziert in Ihr neues Zuhause!


Das Objekt überzeugt mit einem individuellen Grundriss und einem einmaligen Raumgefühl – seien Sie gespannt:


In der großzügigen Diele angelangt eröffnet sich Ihnen linker Hand direkt ein Highlight dieser Immobilie – der imposante Wohnbereich – in welchem großflächige Fensterelemente bis in den Dachgiebel reichen, einmalige Lichtverhältnisse und ein einzigartiges Raumgefühl sind hier garantiert. Ebenso wie in der anderen Hälfte des Gebäudes steht auch hier ein Kamin für die kalten Tage im Jahr zur Nutzung bereit. Ein Anbau, welcher an einen Wintergarten erinnert, beherbergt eine gemütliche Sitzecke sowie einen Bartresen mit traumhaften Ausblicken. Großformartige Fensterschiebeelemente ermöglichen den Austritt auf die Südterrasse. Nehmen Sie Platz.


Von der Empore, welche Sie über eine Wendeltreppe erreichen, gelangen Sie in das gemütliche Schlafzimmer mit Platz für ein großes Doppelbett. Ein praktischer Einbauschrank ist bereits vorhanden. Angrenzend befindet sich das Bad en Suite mit Badewanne sowie separater Dusche. Im Rahmen einer Sanierung des Badezimmers wird empfohlen, den aktuell sperrigen Schornsteinzug zu minimieren und durch ein Rohr zu ersetzen, um mehr Raum zu schaffen.


Zurück in der Diele des Erdgeschosses gelangen Sie geradezu in ein weiteres Zimmer, welches sich optimal als Kinder- oder Arbeitszimmer nutzen ließe.


Die moderne Landhausküche wurde um das Jahr 2012 erneuert und punktet mit hellen Einbauten inklusive Cerankochfeld, Kühl-/ Gefrierkombination, Geschirrspüler, Backofen in optimaler Arbeitshöhe sowie einem Waschmaschinenanschluss. Ein Fenster sorgt für optimale Belüftung.


Das Esszimmer mit beeindruckender Deckenhöhe bietet Platz für einen großen Esstisch und ermöglicht ebenfalls traumhafte Ausblicke in Ihren zukünftigen Garten.


Das Duschbad komplementiert diese Ebene.


Lagebeschreibung

Die Gemeinde Dassendorf liegt im Kreis Herzogtum Lauenburg, im östlichen Randbereich der Hansestadt Hamburg zwischen Aumühle und Geesthacht sowie Wentorf und Schwarzenbek.


Sämtliche Einkaufsmöglichkeiten des täglichen Bedarfs, eine Apotheke, zwei Kindergärten, die Grundschule sowie das Amt Hohe Elbgeest sind in unmittelbarer Nähe. Ebenso ist eine sehr gute ärztliche Versorgung gewährleistet. Umfangreiche Sportmöglichkeiten (wie z.B. Tennis, Golf und weitere Sportarten) sowie zwei hervorragende Restaurants sind in Dassendorf zu finden und erhöhen den Wohnwert.


Das hier angebotenen Hausensemble liegt in der bekannten und gefragten Waldsiedlung von Dassendorf. Luxuriöse Villen und schöne Einfamilienhäuser kennzeichnen hier die Nachbarschaft. Die Waldsiedlung ist ein idyllisches Wohngebiet, welches sich durch seine naturnahe Lage und eine hohe Lebensqualität auszeichnet. Eingebettet in die malerische Landschaft des Schleswig-Holsteinischen Hügellandes, bietet die Waldsiedlung eine harmonische Verbindung von Ruhe und Erholung sowie eine hervorragende Anbindung an die umliegenden Städte.


Mit dem PKW beträgt die Fahrzeit nach Hamburg ca. 30 Minuten.


Sonstige Angaben

Das traumhafte, ca. 2.492 m² große Grundstück ist ideell geteilt (Miteigentumsanteil ca. ½).


Es liegt in der beliebten Dassendorfer Waldsiedlung, ist liebevoll angelegt und blickdicht bewachsen.


Die großzügige Terrasse in Südausrichtung lädt zu entspannten Sonnenstunden ein. Darüber hinaus hält ein stilvoller Holzpavillon an warmen wie auch an kalten Tagen ausreichend Platz für Familie und Freunde bereit.


Das gepflegte Grün schafft eine idyllische Wohlfühloase im eigenen Garten.


Zur Unterbringung der Fahrzeuge stehen auf dem Grundstück eine Garage sowie ein Carport zur Verfügung. Zusätzlich bietet ein Holzschuppen Platz für Gartengeräte und Co.


Die angebotene Immobilie eignet sich ideal für große Familien, welche auf der Suche nach einer gemütlichen Immobilie mit malerischem Grundstück in traumhafter Idylle von Dassendorf sind.


Wohnung finden so einfach wie möglich - das ist unsere Mission!

Kostenlose Basic Features

0 € monatlich


  • Individuelles Such-Profil anlegen
  • Suchaufträge speichern
  • One-Klick Kontaktaufnahme

alles anzeigen

Jetzt kostenlos anmelden

Premium Features

19,99 € monatlich


  • Alle kostenlosen Features
  • Smart-Alarm per Whatsapp
  • Deine Chancen checken
  • Wohngegend analysieren

alles anzeigen

Jetzt Premium freischalten

Gewerblicher Anbieter

PIPPING Immobilien GmbH & Co. KG - Filiale Reinbek
Bahnhofstraße 12
21465 Reinbek

Wohnglück-ID:
Objekt-Nr.:
WGL-608231
RH-258211938-2