Mehrfamilienhaus in Böblingen (Böblingen (Stadt))

Balkon/­Terrasse
derzeit vermietet
Garten/­-mitbenutzung
Keller
Garage/­Stellplatz

Kapitalanlage: Komplett vermietetes 4-Familienhaus in Böblingen

Anfragen bisher

Premium

Meine Chancen

Premium

Fairer Preis

Premium

869.000 €

Kaufpreis

316,9 m²

11 Zi.

Grundriss

71032 Böblingen

Gewerblicher Anbieter

VON POLL IMMOBILIEN Böblingen - Sessler Immobilien GmbH
Poststraße 59
71032 Böblingen

Details

Grundstücksfläche
341 m²
Zimmerzahl
11
Haustyp
Mehrfamilienhaus
Etagenzahl
4
Anzahl Schlafzimmer
7
Anzahl Badezimmer
4
Anzahl Garage/ Stellplatz
1
Objektzustand
Gepflegt
Baujahr
1981

Kosten

Kaufpreis
869.000 €
Käuferprovision
Käuferprovision beträgt 4,76 % (inkl. MwSt.) des beurkundeten Kaufpreises
Was kostet dein Umzug?

Stellplätze

Stellplatztyp
Garage
Anzahl
2

Objektbeschreibung

Hier können Sie ein komplett vermietetes 4-Familienhaus im Wohngebiet "Galgenberg" in zentrumsnaher Lage von Böblingen erwerben. Das 4-Familienhaus wurde in massiver Bauweise errichtet und steht auf einem rechteckigen Grundstück mit ca. 341 m² und ist direkt mit dem Nachbarhaus verbunden. In der gesamten Straße sind Mehrfamilienhäuser errichtet.


Für den 1. Bauteil (Umbaufläche) des Hauses kann leider kein Baujahr mitgeteilt werden, da hier keine Angaben vorliegen. Es wurde ein Neubau / Umbau durchgeführt, welcher im Jahre 1980 /1981 vorgenommen wurde. Die Fassade des Gebäudes ist gedämmt und verputzt. Es wurde eine neue Gas-Zentral-Heizung im Jahre 2010 eingebaut. Die Doppelgarage mit begrüntem Dach und elektrischem Garagentor wurde nachträglich im Jahre 1990 genehmigt und errichtet. Die Doppelgarage befindet sich im rückwertigen Teil des Grundstücks.


Die Fassade inkl. Außendämmung, das Dach, die doppelt verglasten Holz-Fenster und der energetische Zustand des Gebäudes entsprechen dem Jahre 1980.


Der Standort des Gebäudes ist ideal für eine innerstädtische Lage, da in nur wenigen Gehminuten ein Supermarkt (ca. 350 m), Kindergarten (ca. 600 m), Gesamtschule (ca. 1,3 Km), Gymnasium (ca. 450 m), Bushaltestelle (ca. 500 m), S-Bahn-Anschluss (ca. 950 m) und ein Arzt (ca. 800 m) erreichbar ist. Ebenso ist die Einkaufsmeile (ca. 750 m), das Einkaufs-Center: Mercaden (ca. 950 m) und der Böblinger See (ca. 800 m) schnell zu erreichen.


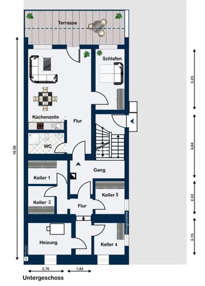
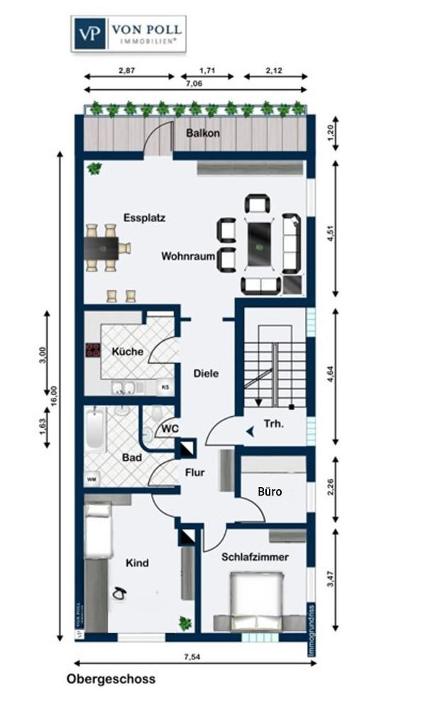
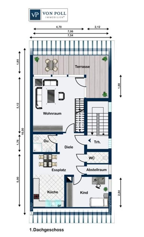
Das Gebäude besteht aus einem Untergeschoss, Erdgeschoss, Obergeschoss und einem Dachgeschoss mit Galerie. Es befinden sich insgesamt 4 Wohnungen in der Immobilie:


Untergeschoss: 2,0 Zimmer mit ca. 44,40 m²
Erdgeschoss: 3,0 Zimmer mit ca. 89,00 m²
Obergeschoss: 3,0 Zimmer mit ca. 89,00 m²
Dachgeschoss: 3,0 Zimmer mit ca. 94,50 m²
Wohnfläche insgesamt: ca. 316,90 m²


Die Zuteilung der Nebenräume / Kellerräume erfolgt über die jeweiligen Mietverträge. Alle Einbauküchen der jeweiligen Wohnungen sind Eigentum der jeweiligen Mieter.


Alle Wohnungen sind aktuell vermietet und die Jahresmieteinnahmen belaufen sich auf insgesamt ca. 38.160 Euro.


BITTE FOLGENDES BEACHTEN:
Für das 4-Familienehaus ist KEINE Teilungserklärung vorhanden. Diese muss durch den neuen Eigentümer selbst vorgenommen werden.


Für einen Besichtigungstermin der Immobilie muss eine aktuelle Finanzierungsbestätigung vorab vorgelegt werden.


Bausubstanz & Energieausweis

A+

A

B

C

D

E

F

G

H

Baujahr
2010
Objektzustand
Gepflegt
Wesentlicher Energieträger
GAS
Heizungsart
Zentralheizung
Befeuerung
Gasheizung
Energieausweis
liegt vor
Energieausweistyp
Verbrauchsausweis
Gültig bis
10.08.2032
Energieverbrauchskennwert
118 kWh/(m²*a)
Energieeffizienzklasse
D

Ausstattung



  • Komplett vermietetes 4-Familienhaus




  • Zentrumsnaher Lage von Böblingen Wohngebiet "Galgenberg"




  • Grundstück mit ca. 341 m²




  • Neue Gas-Zentral-Heizung im Jahr 2010




  • Es wurde ein Neubau / Umbau im Jahre 1981 vorgenommen




  • Die Fassade des Gebäudes ist gedämmt und verputzt




  • Die Doppelgarage mit begrüntem Dach und elektrischem Garagentor




  • Für das 4-Familienehaus ist KEINE Teilungserklärung vorhanden




  • Jahresmieteinnahmen belaufen sich auf insgesamt ca. 38.160 Euro.




Lagebeschreibung

Geographische Lage:


Böblingen liegt am Nordostrand des Oberen Gäus, auf und an einem steilen Hügel, der ein Ausläufer des Schönbuchs ist. Der nördliche Schwarzwald ist von Böblingen aus in etwa einer halben Stunde, die Schwäbische Alb in 40 Minuten erreichbar.


Folgende Städte und Gemeinden grenzen an die Stadt Böblingen. Die Nachbarstadt Sindelfingen sowie Schönaich, Holzgerlingen und Ehningen.
Böblingen bildet zusammen mit der Nachbarstadt Sindelfingen ein Mittelzentrum innerhalb der Region Stuttgart, deren Oberzentrum Stuttgart ist.


Infrastruktur:


Böblingen ist auf allen Verkehrswegen gut erreichbar: Den Flughafen Stuttgart kann man mit der S-Bahn in etwa 20 Minuten erreichen. Der Kreuzungspunkt zwischen den Bundesautobahnen 8 und 81 (Karlsruhe–München / Singen–Heilbronn) liegt unweit nordöstlich von Böblingen. Im Norden des Stadtgebiets führt die A 81 vorbei. Über die Anschlussstellen Böblingen-Ost, Böblingen/Sindelfingen, Böblingen-Hulb und Ehningen ist die Stadt zu erreichen. Die Bundesstraße 464 (Renningen–Reutlingen) und die B 14 führen an Böblingen vorbei.


Böblingen liegt an der Gäu-Bahn von Stuttgart nach Singen und wird stündlich mit Regional- und Stadtexpress-Zügen bedient. Zusätzlich ist Böblingen mit den Linien S1 Kirchheim (Teck) –Stuttgart–Herrenberg und S60 Renningen–Böblingen an das S-Bahn-Netz Stuttgart angeschlossen. Man erreicht Stuttgart in ca. 25 Minuten.


Ferner verkehren im Stadtgebiet zahlreiche Buslinien, neben dem Stadtverkehr der Firma Pflieger gibt es mehrere Überlandlinien. Alle Linien verkehren zu einheitlichen Preisen innerhalb des Verkehrs- und Tarifverbund Stuttgart (VVS). Im Fernbusnetz bestehen unter anderem Anschlüsse nach Hamburg und Mailand.


Bildung:


Die zahlreichen Bildungs- und Kultureinrichtungen Böblingens bieten ein differenziertes Angebot. Weiterführende und berufliche Schulen mit einem weiten Einzugsgebiet bilden im Verbund mit der Stadtbibliothek, der Musik- und Kunstschule und der Volkshochschule ein breites Spektrum zur Aus- und Weiterbildung sowie zur Freizeitgestaltung direkt vor Ort.


In Böblingen gibt es vier allgemeinbildende Gymnasien, zwei Realschulen, zwei Förderschule, eine Grund- und Werkrealschule, eine Werkrealschule, sechs reine Grundschulen in der Kernstadt sowie eine Grundschule im Stadtteil Dagersheim. Der Landkreis Böblingen ist Schulträger der drei Berufsschulen. Des Weiteren ist hier die Käthe-Kollwitz-Schule für geistig behinderte mit Schulkindergarten für geistig behinderte zu erwähnen. Die Prisma Privatschulen (Realschule-Gymnasium), die private Altenpflegeschule der Arbeiterwohlfahrt Nordwürttemberg e. V., die Freie Evangelische Schule Böblingen e. V. (Grund- und Hauptschule), die Freie Waldorfschule Böblingen/Sindelfingen e. V. und die Private Berufsfachschule im Bildungszentrum Böblingen des Internationalen Bundes e. V. runden das schulische Angebot in Böblingen ab. Erwachsenenbildung bietet die Vhs-Böblingen-Sindelfingen e. V. und der Verein zur Förderung der Berufsbildung e. V., eine Bildungseinrichtung der IHK, an.


Freizeit & Kultur:


Hier laden Mineraltherme und Bäder, Sportstätten und Vereine, Kinos, Kleinkunst-Bühnen und das Künstler-Viertel zur individuellen Freizeitgestaltung ein. Ein vielfältiges Shopping-Angebot unseres modernen Handels rundet die Vielfalt ab. Böblingen hat eine lebhafte Kulturszene. Nicht nur am Wochenende gibt es hochwertige und attraktive Angebote in den Museen, auf den Bühnen und in den Sälen der Stadt. Die Bürger machen Böblingen zu einem liebenswerten und abwechslungsreichen Ort, der auch für Besucher ein reizvolles Programm bietet.


Sonstige Angaben

Es liegt ein Energieverbrauchsausweis vor.
Dieser ist gültig bis 10.8.2032.
Endenergieverbrauch beträgt 118.80 kwh/(m²*a).
Wesentlicher Energieträger der Heizung ist Gas.
Das Baujahr des Objekts lt. Energieausweis ist 2010.
Die Energieeffizienzklasse ist D.


GELDWÄSCHE:
Als Immobilienmaklerunternehmen ist die von Poll Immobilien GmbH nach § 2 Abs. 1 Nr. 14 und § 11 Abs. 1, 2 Geldwäschegesetz (GwG) dazu verpflichtet, bei der Begründung einer Geschäftsbeziehung die Identität des Vertragspartners festzustellen und zu überprüfen, bzw. sobald ein ernsthaftes Interesse an der Durchführung des Immobilienkaufvertrages besteht. Hierzu ist es erforderlich, dass wir nach § 11 Abs. 4 GwG die relevanten Daten Ihres Personalausweises festhalten (wenn Sie als natürliche Person handeln) – beispielsweise mittels einer Kopie. Bei einer juristischen Person benötigen wir eine Kopie des Handelsregisterauszugs, aus welchem der wirtschaftlich Berechtigte hervorgeht. Das Geldwäschegesetz sieht vor, dass der Makler die Kopien bzw. Unterlagen fünf Jahre aufbewahren muss. Als unser Vertragspartner haben Sie auch eine Mitwirkungspflicht nach § 11 Abs. 6 GwG.


HAFTUNG:
Wir weisen darauf hin, dass die von uns weitergegebenen Objektinformationen, Unterlagen, Pläne etc. vom Verkäufer bzw. Vermieter stammen. Eine Haftung für die Richtigkeit oder Vollständigkeit der Angaben übernehmen wir daher nicht. Es obliegt daher unseren Kunden, die darin enthaltenen Objektinformationen und Angaben auf ihre Richtigkeit hin zu überprüfen. Alle Immobilienangebote sind freibleibend und vorbehaltlich Irrtümer, Zwischenverkauf- und Vermietung oder sonstiger Zwischenverwertung.


UNSER SERVICE FÜR SIE ALS EIGENTÜMER:
Planen Sie den Verkauf oder die Vermietung Ihrer Immobilie, so ist es für Sie wichtig, deren Marktwert zu kennen. Lassen Sie kostenfrei und unverbindlich den aktuellen Wert Ihrer Immobilie professionell durch einen unserer Immobilienspezialisten einschätzen. Unser bundesweites und internationales Netzwerk ermöglicht es uns, Verkäufer bzw. Vermieter und Interessenten bestmöglich zusammenzuführen.


Wohnung finden so einfach wie möglich - das ist unsere Mission!

Kostenlose Basic Features

0 € monatlich


  • Individuelles Such-Profil anlegen
  • Suchaufträge speichern
  • One-Klick Kontaktaufnahme

alles anzeigen

Jetzt kostenlos anmelden

Premium Features

19,99 € monatlich


  • Alle kostenlosen Features
  • Smart-Alarm per Whatsapp
  • Deine Chancen checken
  • Wohngegend analysieren

alles anzeigen

Jetzt Premium freischalten

Gewerblicher Anbieter

VON POLL IMMOBILIEN Böblingen - Sessler Immobilien GmbH
Poststraße 59
71032 Böblingen

Wohnglück-ID:
Objekt-Nr.:
WGL-603731
22354054