Mehrfamilienhaus in Euskirchen

Balkon/­Terrasse
Garten/­-mitbenutzung
Keller
Einbauküche
Garage/­Stellplatz

Gut vermietete Kapitalanlage: Charmanter MFH-Altbau mit 3 WE und Potenzial

Anfragen bisher

Premium

Meine Chancen

Premium

Fairer Preis

Premium

379.000 €

Kaufpreis

236 m²

9 Zi.

53879 Euskirchen

Gewerblicher Anbieter

McMakler GmbH
Am Postbahnhof 17
10243 Berlin

Details

Grundstücksfläche
268 m²
Zimmerzahl
9
Haustyp
Mehrfamilienhaus
Etagenzahl
2
Mieteinnahmen pro Monat
1.700 €
Bezugsfrei ab
nach Absprache
Anzahl Schlafzimmer
5
Anzahl Badezimmer
3
Anzahl Garage/ Stellplatz
1
Objektzustand
Gepflegt
Baujahr
1926

Kosten

Kaufpreis
379.000 €
Käuferprovision
Käufer-Provision: 5,95 % inkl. MwSt., sofern der Verkaufspreis über 83.000,00 € liegt. Die Provision ist mit Beurkundung des Kaufvertrages fällig. Liegt der Verkaufspreis dagegen bei/unter 83.000,00 €, ist die fest vereinbarte Mindestprovision i.H
Was kostet dein Umzug?

Objektbeschreibung

Objektnr: 1060390


In guter Lage in Euskirchen befindet sich der charmante Altbau von ca. 1926. Die Wohnfläche beträgt 236 m² und verteilt sich auf drei Wohneinheiten, die voll vermietet sind. Mietpotenzial besteht. Dank der 3 separat nutzbaren Wohneinheiten eignet sich das Mehrfamilienhaus auch für Mehrgenerationenhaushalte sowie zur teilweisen oder vollständigen Vermietung. Perfekt zur Erfüllung oder Refinanzierung Ihres eigenen Wohntraumes.


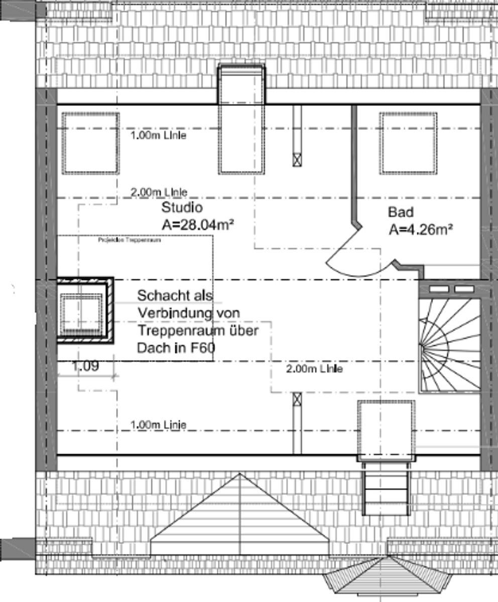
Zur Erdgeschosswohnung gehört ein schöner großer Naturgarten. Die Maisonette-Wohnung erstreckt sich über das 2. Obergeschoss und einen wunderschönen 1987 ausgebauten Spitzboden mit offenem Giebel. Für den Spitzboden müsste noch ein Nutzungsänderungsantrag auf Wohnraum gestellt werden. Die Voraussetzungen, die dafür geschaffen werden müssen, wurden bereits von einem Architekten mit dem zuständigen Bauamt besprochen.


Das Haus befindet sich in einem gepflegten Zustand. Ein Großteil der Fenster wurde 2003/2004 erneuert. 2013 wurde das Dach zur Vorderseite und 2016 der Kelleraufgang zum Garten saniert. 2022 wurden die Außenfassade (Sockel) und Mauer sowie das Geländer zur Frontseite saniert. Beheizt wird das Haus mit einer Gaszentralheizung. Das Grundstück ist 268 qm groß und verfügt über zwei vermietete Außenstellplätze.


Bausubstanz & Energieausweis

A+

A

B

C

D

122,2 kWh/(m²*a)

E

F

G

H

Baujahr
1926
Objektzustand
Gepflegt
Wesentlicher Energieträger
Gas
Heizungsart
Zentralheizung
Befeuerung
Gasheizung
Energieausweis
liegt vor
Energieausweistyp
Bedarfsausweis
Energieeffizienzklasse
D
Endenergiebedarf
122,2 kWh/(m²*a)

Ausstattung


  • Mehrfamilienhaus mit 3 Einheiten in vorteilhafter Lage von Euskirchen

  • Kann eigengenutzt oder vermietet werden, dank separat nutzbarer Einheiten als Mehrgenerationshaus geeignet

  • Vorteilhafte Vermietung zu ca. 20.400 € jährlich - es besteht Mietsteigerungspotenzial auf ca. 21.000 € p.a

  • Das Objekt präsentiert sich in einem gepflegten Zustand

  • Der Außenbereich umfasst einen Garten mit Terrasse; ein Kellerraum sowie 2 Freistellplätze bieten weiteren Komfort


Lagebeschreibung

Lage: Für einen bequemen und fußläufigen Alltag sorgt die vorteilhafte Nähe zur Innenstadt


Bildung und Betreuung: Zu Fuß zu Kindergarten und Schule in max. 800 m Entfernung


Nahversorgung: Komfortabler Alltag dank Supermarkt und Bankfiliale in weniger als ca. 5 Gehminuten Entfernung


Anbindung: Bus, Bahnhof und Autobahn komfortabel erreichbar - entspannte Anbindung an Fernstraßennetz und ÖPNV


Sonstige Angaben

Vereinbaren Sie noch heute einen Besichtigungstermin!








Alle Angaben sind ohne Gewähr und basieren ausschließlich auf Informationen, die uns von unserem Auftraggeber zur Verfügung gestellt wurden. Wir übernehmen keine Gewähr für die Vollständigkeit, Richtigkeit und Aktualität der Angaben.


Wohnung finden so einfach wie möglich - das ist unsere Mission!

Kostenlose Basic Features

0 € monatlich


  • Individuelles Such-Profil anlegen
  • Suchaufträge speichern
  • One-Klick Kontaktaufnahme

alles anzeigen

Jetzt kostenlos anmelden

Premium Features

19,99 € monatlich


  • Alle kostenlosen Features
  • Smart-Alarm per Whatsapp
  • Deine Chancen checken
  • Wohngegend analysieren

alles anzeigen

Jetzt Premium freischalten

Gewerblicher Anbieter

McMakler GmbH
Am Postbahnhof 17
10243 Berlin

Wohnglück-ID:
Objekt-Nr.:
WGL-599364
6616719842e838e4164f96d3