Einfamilienhaus freistehend in Strausberg

Balkon/­Terrasse
Garten/­-mitbenutzung
Keller
Einbauküche
Garage/­Stellplatz

Großzügiges EFH (Kernsanierung 2011) mit Wintergarten, PV-Anlage und Doppelgarage in Strausberg

Anfragen bisher

Premium

Meine Chancen

Premium

Fairer Preis

Premium

Auf Anfrage

Kaufpreis

220 m²

6 Zi.

15344 Strausberg

Gewerblicher Anbieter

McMakler GmbH
Am Postbahnhof 17
10243 Berlin

Details

Grundstücksfläche
941 m²
Zimmerzahl
6
Haustyp
Einfamilienhaus freistehend
Etagenzahl
2
Bezugsfrei ab
01.05.2025
Anzahl Schlafzimmer
3
Anzahl Badezimmer
3
Anzahl Garage/ Stellplatz
1
Objektzustand
Gepflegt
Baujahr
1925

Kosten

Kaufpreis
Auf Anfrage
Käuferprovision
Die Provision i.H.v. 3,57 % inkl. MwSt. ist mit Kaufvertragsbeurkundung fällig, sofern der Verkaufspreis über 83.000,00 € liegt. Liegt der Verkaufspreis dagegen bei/unter 83.000,00 €, ist die fest vereinbarte Mindestprovision i.H.v. mind. 5.950,00
Was kostet dein Umzug?

Objektbeschreibung

Objektnr: 1066873


Einziehen & Wohlfühlen – liebevoll saniertes Zuhause in naturnaher Lage von Strausberg


Willkommen in einem Haus, das weit mehr ist als nur vier Wände – ein Ort zum Ankommen, Durchatmen und Bleiben. Diese sofort bezugsfreie Immobilie vereint modernen Wohnkomfort mit der Ruhe und Schönheit einer naturnahen Umgebung. Wer gerne Zeit im Freien verbringt, wird hier ein neues Lebensgefühl entdecken: Der großzügige Garten, die Nähe zum Wasser und die durchdachte Verbindung von Innen- und Außenraum schaffen eine Atmosphäre, die Erholung und Alltag miteinander verschmelzen lässt.


Das Haus, ursprünglich im Jahr 1925 erbaut, wurde 2011 umfassend kernsaniert. Mit großer Sorgfalt wurden Dach, Fassade, Heizung, Fenster, Fußböden, Sanitäranlagen und die gesamte Elektrik modernisiert. Entstanden ist ein hochwertiges Zuhause, das historischen Charme mit zeitgemäßer Ausstattung auf stilvolle Weise verbindet.


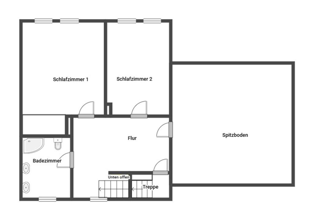
Die Wohnfläche von ca. 179 m² verteilt sich auf Erd- und Dachgeschoss und wird durch zusätzliche ca. 40 m² wohnlich nutzbare Fläche im Souterrain ergänzt – ideal für Homeoffice, Gäste oder eine Einliegerwohnung mit separatem Zugang, eigener Küche und eigenem Bad. Insgesamt stehen ca. 220 m² Nutzfläche mit sechs Zimmern, drei Schlafzimmern und drei Bädern zur Verfügung – ein harmonisch durchdachtes Raumangebot für Paare oder Familien mit Anspruch.


Zu den zahlreichen Ausstattungs-Highlights zählen u. a. eine behagliche Fußbodenheizung, ein Whirlpool im Erdgeschossbad, eine moderne Einbauküche, ein stilvoller Kaminofen sowie edle Holzböden. Der ausgebaute Souterrainbereich lässt sich flexibel als Wohn-, Arbeits- oder Gewerbefläche nutzen, während der Dachboden zusätzliche Ausbaureserve bereithält. Die auf dem Dach installierte Photovoltaikanlage trägt zur Energieeffizienz und Nachhaltigkeit des Hauses bei.


Das ca. 941 m² große Grundstück bietet vielfältige Rückzugsorte – von der sonnigen Terrasse über die geschützte Loggia bis hin zum lichtdurchfluteten Wintergarten. Ein liebevoll angelegter Garten mit Gartenhaus lädt zum Verweilen ein und bietet reichlich Platz zum Spielen, Gärtnern oder einfach zum Genießen.


Abgerundet wird dieses besondere Angebot durch zwei Garagenstellplätze mit elektrischem Torantrieb sowie fünf weitere Außenstellplätze – genügend Raum für Familie, Gäste oder Fuhrpark.


Bausubstanz & Energieausweis

A+

A

B

C

D

E

142,4 kWh/(m²*a)

F

G

H

Baujahr
1925
Objektzustand
Gepflegt
Wesentlicher Energieträger
Gas,Solar
Heizungsart
Gasheizung
Befeuerung
Gasheizung
Energieausweis
liegt vor
Energieausweistyp
Bedarfsausweis
Energieeffizienzklasse
E
Endenergiebedarf
142,4 kWh/(m²*a)

Ausstattung


  • In familienfreundlicher Umgebung in Wassernähe von Strausberg, beschaulich und sicher in einer Nebenstraße, hervorragend als Ihr neues Zuhause

  • Der Garten auf ca. 941 m² Grund lädt zum Verweilen ein - eine Terrasse, eine Loggia und ein Wintergarten bereichern das Erlebnis

  • Genießen Sie den gepflegten Zustand der Immobilie

  • Hochwertige Ausstattung des Hauses inkl. einer Einbauküche, einem Kaminofen sowie einem Holzparkettboden

  • Das Objekt bietet Staufläche dank des Kellers sowie Platz für Pkw dank 2 Garagen


Lagebeschreibung

Lage: Attraktive Wassernähe bietet ruhige und entspannende Umgebung für Ruhesuchende
Bildung und Betreuung vor Ort: Kindergarten im Umkreis von max. 6 km
Nahversorgung: Gute Nahversorgung dank Supermarkt, Apotheke, Bankfiliale in max. 3 km
Anbindung: Tram Haltestelle nur 100 m entfernt direkt zum S-Bhf. Strausberg


Sonstige Angaben

Vereinbaren Sie noch heute einen Besichtigungstermin!








Alle Angaben sind ohne Gewähr und basieren ausschließlich auf Informationen, die uns von unserem Auftraggeber zur Verfügung gestellt wurden. Wir übernehmen keine Gewähr für die Vollständigkeit, Richtigkeit und Aktualität der Angaben.


Wohnung finden so einfach wie möglich - das ist unsere Mission!

Kostenlose Basic Features

0 € monatlich


  • Individuelles Such-Profil anlegen
  • Suchaufträge speichern
  • One-Klick Kontaktaufnahme

alles anzeigen

Jetzt kostenlos anmelden

Premium Features

19,99 € monatlich


  • Alle kostenlosen Features
  • Smart-Alarm per Whatsapp
  • Deine Chancen checken
  • Wohngegend analysieren

alles anzeigen

Jetzt Premium freischalten

Gewerblicher Anbieter

McMakler GmbH
Am Postbahnhof 17
10243 Berlin

Wohnglück-ID:
Objekt-Nr.:
WGL-591142
68064e69a324ef205c6fc0e3