Hallen / Lager / Produktion in Vellberg

Ihr neuer Standort Vellberg: Halle, Kaltlager und Büros

Anfragen bisher

Premium

Meine Chancen

Premium

Fairer Preis

Premium

3.215,94 €

Kaltmiete

74541 Vellberg

Gewerblicher Anbieter

Scheib Immobilien GmbH
Hessentaler Straße 1
74523 Schwäbisch Hall

Details

Lagerfläche
828,87 m²
Typ der Gewerbeimmobilie
Hallen / Lager / Produktion
Bezugsfrei ab
nach Absprache
Objektzustand
Gepflegt

Kosten

Kaltmiete
3.215,94 €
Was kostet dein Umzug?

Objektbeschreibung

Inmitten des Gewerbegebietes von Vellberg befindet sich dieses repräsentative Anwesen mit einer großzügigen Halle mit angrenzenden Büros zur Miete. Auf einer Gesamtfläche von ca. 430 m² bietet die Halle ausreichend Platz für Ihre gewerblichen Aktivitäten. Der Bodenbelag aus Beton ist robust und pflegeleicht.


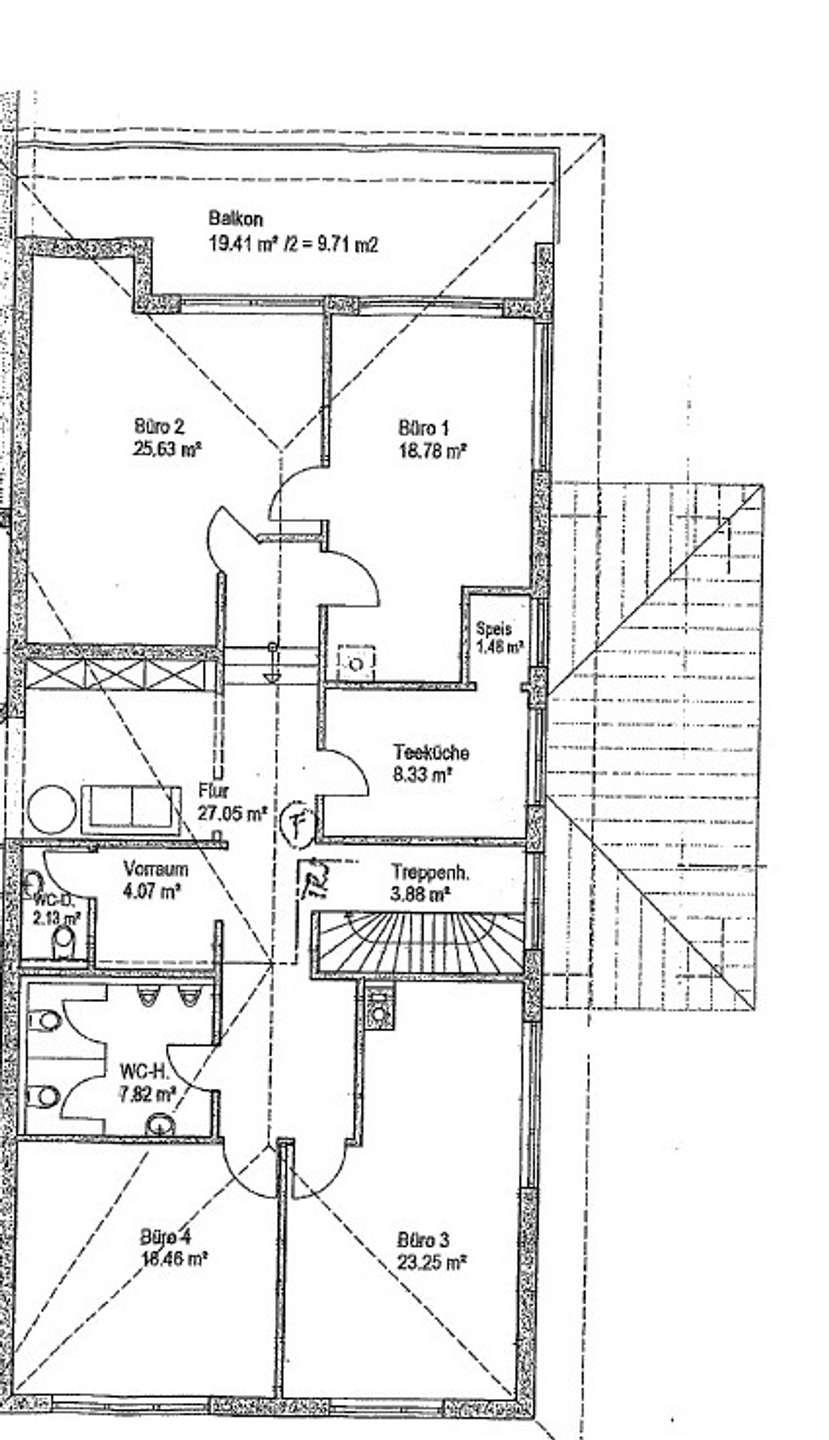
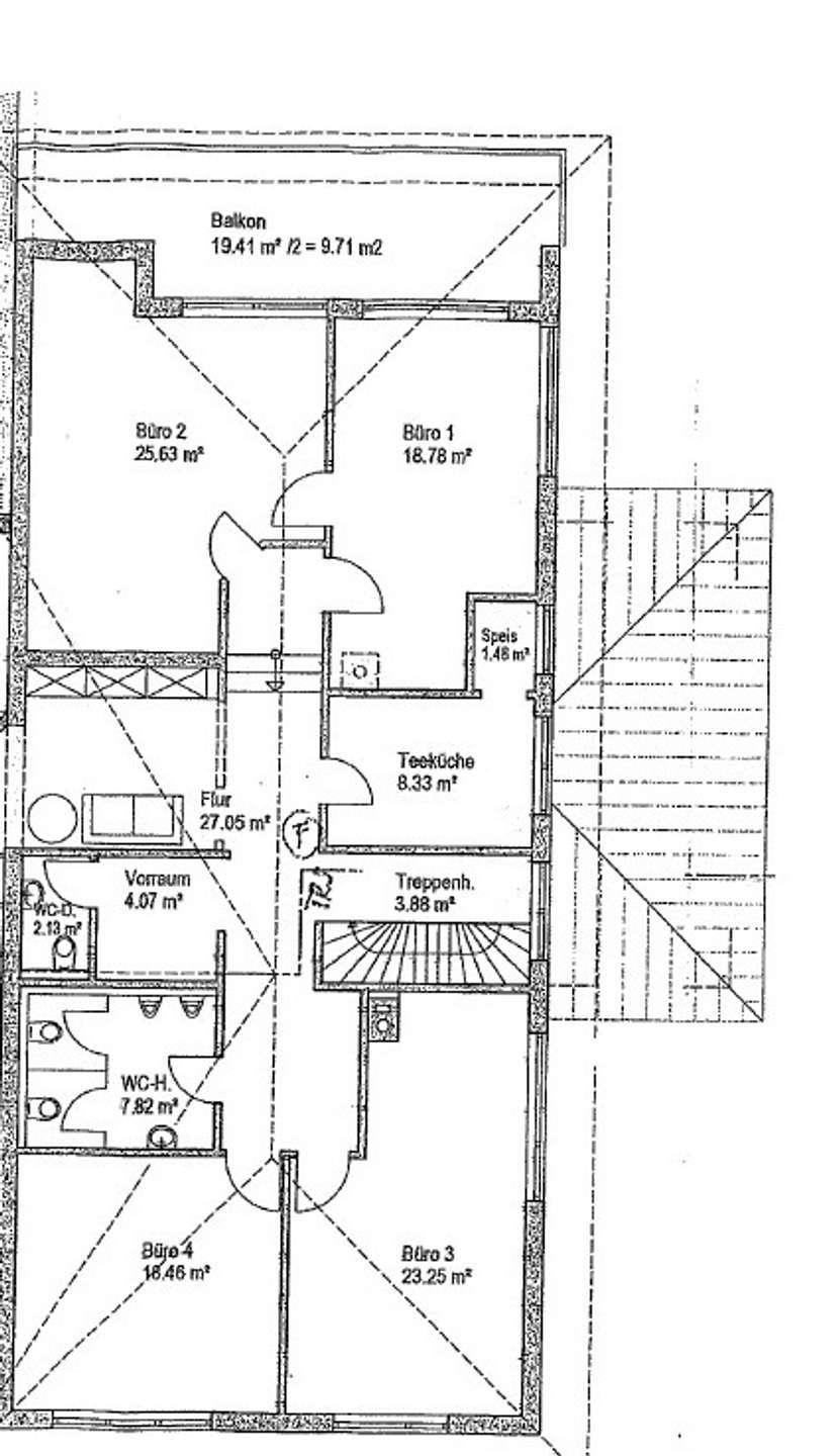
Besonders hervorzuheben sind die hochwertigen Büroräume auf zwei Etagen, die sich in einem gepflegten Zustand präsentieren. Die insgesamt ca. 400 m² Bürofläche bieten ausreichend Platz für Ihre Mitarbeiter und sind mit moderner Technik ausgestattet.


Zum Anwesen gehört ein großer Hof, der ausreichend Platz für LKW oder andere Fahrzeuge bietet. Zudem sind ausreichend Stellplätze vorhanden.


Die Lage des Objektes ist ideal für Gewerbetreibende, da es sich in unmittelbarer Nähe zur Autobahn A6 befindet.


Überzeugen Sie sich selbst von diesem Angebot und vereinbaren Sie noch heute einen Besichtigungstermin!


Bausubstanz & Energieausweis

Objektzustand
Gepflegt
Heizungsart
Sonstige

Ausstattung

Beheizbare Lagerhalle: 225,83 m², mit Lagerbühne 57,19 m²



  • massiver Betonboden, mit Hubwagen/Gabelstapler befahrbar

  • komplett stützenfrei

  • massive Außenwände, frei gespannte Stahlträger

  • Umluftheizgeräte

  • wärmegedämmtes Dach

  • Raumhöhe UK Stahlträger 4,12 m, UK Trapezblech 4,63 m

  • Lagerbühne im 1. OG, mit Gabelstapler beladbar

  • Zugang über 2 große Rolltore, Breite 4,47 m x 3,78 m

  • großes Vordach auf der Ostseite, Breite 7,15 m

  • Wasser/Abwasseranschluss mit Waschbecken


Kaltlagerhalle: 144,35 m²



  • Asphaltboden

  • trocken, sauber, abschließbar über Schiebetor

  • Neonbeleuchtung

  • Raumhöhe Traufe 3,76 m, im First 4,77 m


Büroräume im Erdgeschoss:



  • Fliesenboden

  • hochwertige Nasszellen

  • innenliegender Blendschutz

  • außenliegender Sonnenschutz

  • Neonbeleuchtung, BA freundlich

  • Teeküche

  • EDV Verkabelung

  • Serverraum

  • hochwertige Büros im EG

  • Besprechungsräume


Büro/Besprechungsräume im Obergeschoss



  • WC Damen+Herren

  • Teppichboden

  • Raumhöhe 2,50 m

  • Heizkörper mit Thermostatventil

  • umlaufender Kabelkanal mit EDV Verkabelung

  • außenliegender Sonnenschutz, innenliegender Blendschutz

  • Zentralölheizung


Sonstiges:



  • großer, asphaltierter Hof


Lagebeschreibung

In einem beliebten Gewerbegebiet in Vellberg gelegen, nur ca. 15 km von der Autobahn A6 entfernt.


Sonstige Angaben

3 Monatsmieten Kaution


Die Scheib Immobilien GmbH vermarktet ausschließlich Gewerbeimmobilien (z. B. Produktions- und Lagerhallen, Büroräume, Läden sowie Gewerbegrundstücke) im Landkreis Schwäbisch Hall und Hohenlohe. Durch fundierte Orts- und Marktkenntnisse sowie durch Spezialwissen aus den Bereichen Immobilien und Architektur können wir sowohl Eigentümer als auch Mieter umfassend beraten.


Alle Objektangaben beruhen auf Mitteilung des Vermieters. Eine Haftung für deren Richtigkeit wird nicht übernommen.


Für dieses Objekt liegt aktuell noch kein Energieausweis vor. Dieser wird derzeit erstellt. Wir werden die Ausweisdaten veröffentlichen, sobald uns der Energieausweis vorliegt.


Sämtliche Preise sind Nettobeträge. Alle Angaben nach bestem Wissen. Irrtum und Zwischenvermietung vorbehalten. Dieses Exposé ist eine Vorinformation, als Rechtsgrundlage gilt allein der abgeschlossene Mietvertrag.


Wohnung finden so einfach wie möglich - das ist unsere Mission!

Kostenlose Basic Features

0 € monatlich


  • Individuelles Such-Profil anlegen
  • Suchaufträge speichern
  • One-Klick Kontaktaufnahme

alles anzeigen

Jetzt kostenlos anmelden

Premium Features

19,99 € monatlich


  • Alle kostenlosen Features
  • Smart-Alarm per Whatsapp
  • Deine Chancen checken
  • Wohngegend analysieren

alles anzeigen

Jetzt Premium freischalten

Gewerblicher Anbieter

Scheib Immobilien GmbH
Hessentaler Straße 1
74523 Schwäbisch Hall

Wohnglück-ID:
Objekt-Nr.:
WGL-584868
5098