Mehrfamilienhaus in Zingst

Balkon/­Terrasse
derzeit vermietet
Garten/­-mitbenutzung
Gäste WC
EinbaukĂĽche
Garage/­Stellplatz

Wunderschönes Mehrfamilienhaus zur Eigennutzung oder als Kapitalanlage in ruhiger Lage

Anfragen bisher

Premium

Meine Chancen

Premium

Fairer Preis

Premium

799.000 â‚¬

Kaufpreis

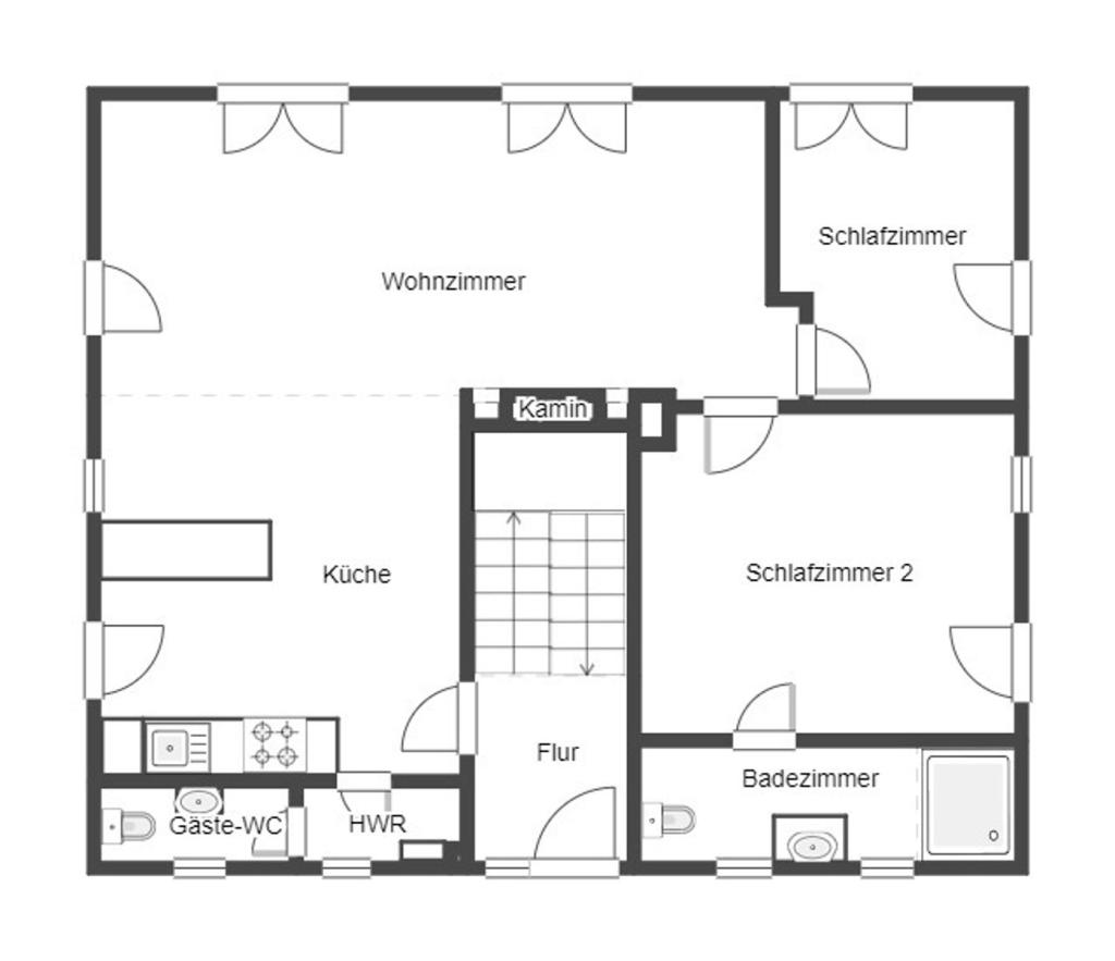
162 m²

6 Zi.

18374 Zingst

Gewerblicher Anbieter

McMakler GmbH
Am Postbahnhof 17
10243 Berlin

Details

Grundstücksfläche
679 m²
Zimmerzahl
6
Haustyp
Mehrfamilienhaus
Etagenzahl
2
Mieteinnahmen pro Monat
4.041,66 €
Bezugsfrei ab
ab sofort
Anzahl Schlafzimmer
4
Anzahl Badezimmer
3
Anzahl Garage/ Stellplatz
1
Objektzustand
Gepflegt
Letzte Modernisierung/ Sanierung
2022
Baujahr
1999

Kosten

Kaufpreis
799.000 €
Käuferprovision
Die Provision i.H.v. 3,57 % inkl. MwSt. ist mit Kaufvertragsbeurkundung fällig, sofern der Verkaufspreis über 83.000,00 € liegt. Liegt der Verkaufspreis dagegen bei/unter 83.000,00 €, ist die fest vereinbarte Mindestprovision i.H.v. mind. 5.950,00
Was kostet dein Umzug?

Objektbeschreibung

Objektnr: 1054030


Wir präsentieren Ihnen eine außergewöhnliche Gelegenheit: Ein solides, massiv erbautes Mehrfamilienhaus in einer der begehrtesten Urlaubsregionen Deutschlands. Dieses 1999 errichtete Anwesen bietet auf einer Gesamtwohnfläche von ca. 162 m² 3 separate Wohneinheiten. Das großzügige Grundstück von ca. 679 m² beherbergt 3 Ferienwohnungen mit Flächen von ca. 82 m², 42 m² und 38 m², die Platz für bis zu 9 Urlaubsgäste bieten.


Ausstattung und Komfort:
Die liebevoll eingerichteten Wohnungen mit Augenmerk auf Details umfassen modern gestaltete Badezimmer mit Duschen und neu angelegte Terrasse mit attraktiven Holzoptik-Fliesen, ebenso sind ausreichend Stellplätze für mindestens 4 PKW vorhanden.


Genießen Sie die Ruhe in zweiter Reihe in Zingst, auf der malerischen Halbinsel Darß. Diese Urlaubsregion besticht durch atemberaubende Natur, traumhafte Strände und erstklassige Freizeitmöglichkeiten.


Das Ferienhaus befindet sich in einer ruhigen Wohnlage, die dennoch alle Annehmlichkeiten des Ortes in greifbarer Nähe bietet. In nur wenigen Minuten erreichen Sie zu Fuß verschiedene Restaurants, Cafés und Geschäfte für den täglichen Bedarf. Der malerische Hafen von Zingst und der weitläufige Ostseestrand sind ebenfalls nicht weit entfernt. Die einzigartige Lage ermöglicht es Ihnen oder Ihren Gästen, sowohl die Ruhe der Natur als auch die Annehmlichkeiten des Ostseebades Zingst zu genießen. Dies trägt maßgeblich zur hohen Attraktivität und Auslastung der Ferienwohnungen bei.​​​​​​​​​​​​​​​​


Investitionspotenzial: Die nachweislich erfolgreiche Kapitalanlage bietet solide jährliche Einnahmen von ca. 48.500 € (Stand: nach Corona-Pandemie) bei einer Auslastung mit durchschnittlich 160 bis 190 Belegungstagen pro Jahr - eine ideale Möglichkeit der Investition im wachsenden Ferienwohnungsmarkt.


Dieses Mehrfamilienhaus in Zingst vereint hochwertige Ausstattung, einen liebevoll gestalteten Garten und eine ruhige Lage mit dem Charme einer der beliebtesten Urlaubsregionen Deutschlands. Es bietet sowohl für Kapitalanleger als auch für Eigennutzer ein außergewöhnliches Potenzial in einer Region mit stetig steigender Nachfrage.


Entdecken Sie die Möglichkeiten dieses einzigartigen Objekts und sichern Sie sich Ihr Stück vom Urlaubsparadies an der Ostsee!​​​​​​​​​​​​​​​​


Bausubstanz & Energieausweis

A+

A

B

C

D

113,5 kWh/(m²*a)

E

F

G

H

Baujahr
1999
Objektzustand
Gepflegt
Letzte Modernisierung
2022
Wesentlicher Energieträger
Gas
Heizungsart
Zentralheizung
Befeuerung
Gasheizung
Energieausweis
liegt vor
Energieausweistyp
Bedarfsausweis
Energieeffizienzklasse
D
Endenergiebedarf
113,5 kWh/(m²*a)

Ausstattung


  • Helle, freundliche Räume mit Platz fĂĽr 9 Urlaubsgäste

  • Ruhige Lage, nur ca. 5 Min mit dem Rad zur SeebrĂĽcke in Zingst

  • GemĂĽtlicher Garten, 2 Balkone und 2 Terrassen

  • 3 EinbaukĂĽchen

  • 4 Pkw-Freiplätze


Lagebeschreibung

Dieses attraktive Mehrfamilienhaus genieĂźt eine erstklassige Lage im beliebten Ostseebad Zingst auf der Halbinsel DarĂź. Die Region besticht durch:



  • UnberĂĽhrte Strände und malerische Landschaften

  • Einzigartige Naturschutzgebiete

  • Vielfältige Freizeitmöglichkeiten wie Fahrradtouren, Wanderungen und Wassersportaktivitäten


Hervorragende Anbindung der Immobilie:



  • Zahlreiche Geschäfte und Dienstleister des täglichen Bedarfs in nur 500 m Entfernung

  • Supermärkte, Bäckereien, Drogerien und vielfältiger Einzelhandel fuĂźläufig erreichbar

  • Der malerische Hafen und der weitläufige Ostseestrand mit SeebrĂĽcke sind nur 1,1 km entfernt


Verkehrsanbindung:



  • Bushaltestelle in nur 5 Gehminuten erreichbar

  • Gute Anbindung an die B105 (ca. 20 km entfernt)


Diese privilegierte Lage bietet Ihnen oder Ihren Gästen die perfekte Balance zwischen Entspannung und Aktivität. Sie genießen die Ruhe der Natur und haben gleichzeitig alle Annehmlichkeiten des charmanten Ostseebades Zingst in unmittelbarer Nähe.


Die Kombination aus der Nähe zum Strand, der guten Infrastruktur und den vielfältigen Freizeitmöglichkeiten macht dieses Objekt zu einer äußerst attraktiven Investition im Ferienwohnungsmarkt. Die hohe Nachfrage in dieser begehrten Urlaubsregion verspricht eine konstant gute Auslastung und solide Renditen.​​​​​​​​​​​​​​​​


Sonstige Angaben

Vereinbaren Sie noch heute einen Besichtigungstermin!








Alle Angaben sind ohne Gewähr und basieren ausschließlich auf Informationen, die uns von unserem Auftraggeber zur Verfügung gestellt wurden. Wir übernehmen keine Gewähr für die Vollständigkeit, Richtigkeit und Aktualität der Angaben.


Wohnung finden so einfach wie möglich - das ist unsere Mission!

Kostenlose Basic Features

0 € monatlich


  • Individuelles Such-Profil anlegen
  • Suchaufträge speichern
  • One-Klick Kontaktaufnahme

alles anzeigen

Jetzt kostenlos anmelden

Premium Features

19,99 € monatlich


  • Alle kostenlosen Features
  • Smart-Alarm per Whatsapp
  • Deine Chancen checken
  • Wohngegend analysieren

alles anzeigen

Jetzt Premium freischalten

Gewerblicher Anbieter

McMakler GmbH
Am Postbahnhof 17
10243 Berlin

WohnglĂĽck-ID:
Objekt-Nr.:
WGL-576675
6494ad8b0c7724c0d9d49785