Einfamilienhaus freistehend in München (Feldmoching)

Balkon/­Terrasse
Garten/­-mitbenutzung
Gäste WC
Keller
Einbauküche
Garage/­Stellplatz

Zweifamilienhaus mit Potenzial, viel Nutzfläche und Garten in naturhafter Lage in Feldmoching!

Anfragen bisher

Premium

Meine Chancen

Premium

Fairer Preis

Premium

1.199.000 €

Kaufpreis

154 m²

7 Zi.

80995 München

Gewerblicher Anbieter

McMakler GmbH
Am Postbahnhof 17
10243 Berlin

Details

Grundstücksfläche
418 m²
Zimmerzahl
7
Haustyp
Einfamilienhaus freistehend
Etagenzahl
3
Bezugsfrei ab
nach Absprache
Anzahl Schlafzimmer
5
Anzahl Badezimmer
3
Anzahl Garage/ Stellplatz
1
Objektzustand
Renovierungsbedürftig
Baujahr
1999

Kosten

Kaufpreis
1.199.000 €
Käuferprovision
Die Provision i.H.v. 3,57 % inkl. MwSt. ist mit Kaufvertragsbeurkundung fällig, sofern der Verkaufspreis über 83.000,00 € liegt. Liegt der Verkaufspreis dagegen bei/unter 83.000,00 €, ist die fest vereinbarte Mindestprovision i.H.v. mind. 5.950,00
Was kostet dein Umzug?

Objektbeschreibung

Objektnr: 1064690


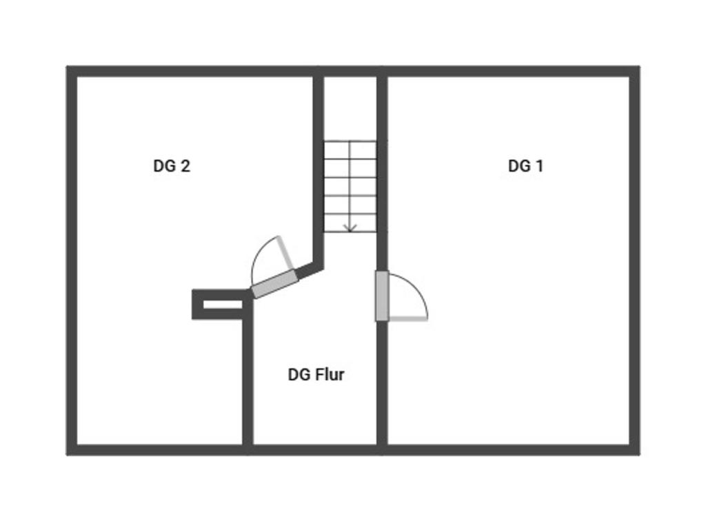
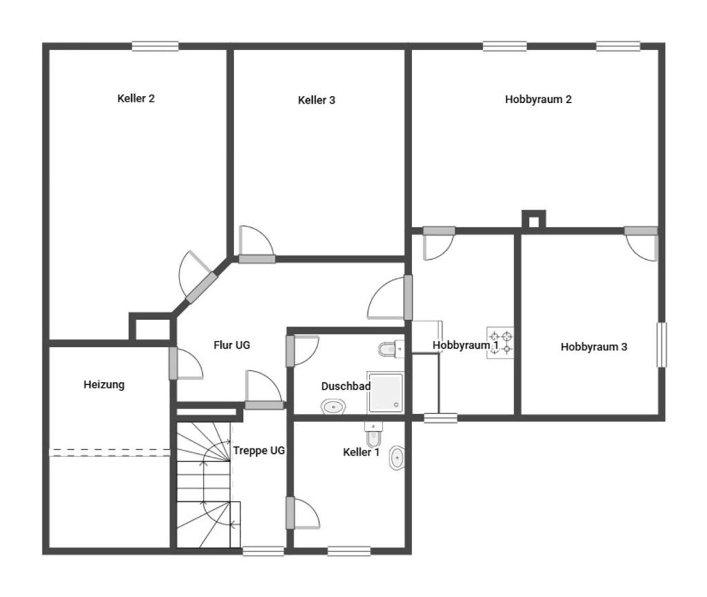
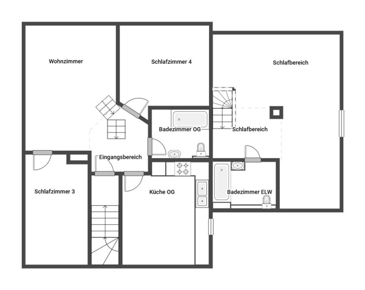
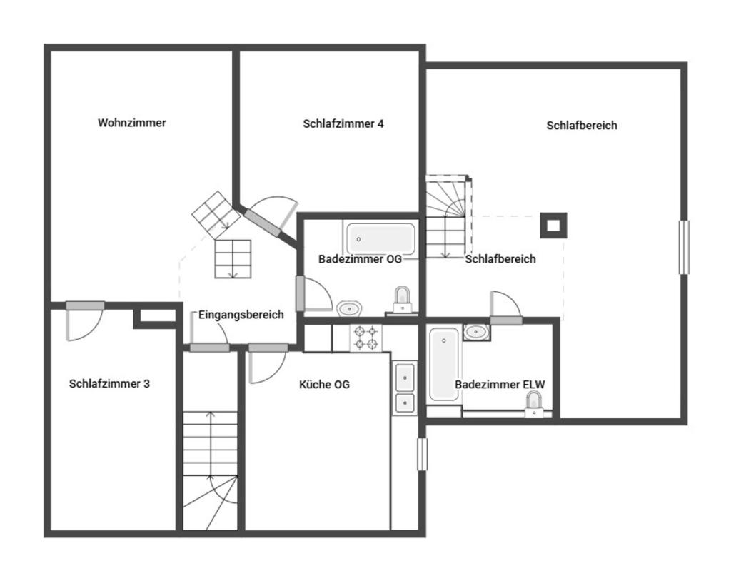
In Feldmoching steht dieses Haus zum Verkauf, das sich sowohl zur Vermietung als auch zur Eigennutzung eignet. Vorteilhaft am Stadtrand gelegen, profitieren Sie von einer ruhigen Umgebung und gleichzeitig von einer guten Anbindung an die Innenstadt. Die Immobilie befindet sich in einem teils gepflegten und teils renovierungsbedürftigem Zustand und bietet viel Potenzial, das Sie sich nun zunutze machen können. Eingetragen ist das Objekt als Zweifamilienhaus, womit Sie bei Bedarf zwei Wohneinheiten im Erd- und Obergeschoss nutzen können. Des Weiteren, wurde ein Teil der Garage mit dem Speicherraum ausgebaut (56 m² Nutzfläche) und bietet zusätzliche Nutzungsmöglichkeiten.


Zur Verfügung stehen Ihnen 7 Zimmer, darunter 5 Schlafzimmer (zusätzlich kommen dazu 2 ausgebaute Räume im Dachgeschoss und der Bereich der Garage), auf ca. 154 m² Wohnfläche (ca. 400 m² Gesamtfläche) . Zum Grundriss der Immobilie gehören außerdem 3 Badezimmer mit Badewanne/Dusche. Die Ausstattung mit drei Einbauküchen erleichtert den zukünftigen Bewohnern den Alltag. Das ca. 418 m² große Grundstück bietet reizvolle Entspannungsmöglichkeiten im Freien. Der Garten mit Gartenhaus und Terrasse bietet eine gemütliche und intime Atmosphäre und verspricht Momente der Entspannung.


Für ein Mehr an Stau- und Nutzfläche verfügen Sie über einen geräumigen Keller sowie Nutzräume im Dachgeschoss. Als Parkmöglichkeit stehen eine Garage, ein Carport und 2 Freistellplätze zur Verfügung, sodass langwieriges Parkplatzsuchen der Vergangenheit angehört.


Bausubstanz & Energieausweis

A+

A

B

C

D

E

F

G

H

Baujahr
1999
Objektzustand
Renovierungsbedürftig
Wesentlicher Energieträger
Öl
Heizungsart
Ölheizung
Befeuerung
Ölheizung
Energieausweis
liegt vor
Energieausweistyp
Verbrauchsausweis
Energieverbrauchskennwert
124 kWh/(m²*a)
Energieeffizienzklasse
D

Ausstattung


  • Erholung pur: Der offene Süd-Garten lädt zum Verweilen ein, etwa im eigenen Gartenhaus - eine Terrasse bereichert das Erlebnis

  • Das Objekt mit 2 WE präsentiert sich in einem teils gepflegten und teils renovierungsbedürftigem Zustand mit viel Potential

  • Ausgebaute Nutzfläche im Dachgeschoss und in der Garage (ca. 400 m² Gesamtfläche)

  • Das Objekt bietet Staufläche dank des Kellers sowie Platz für Pkw dank einer Garage, einem Carport und 2 Freistellplatz


Lagebeschreibung

Lage: Am ruhigen Stadtrand von guter Erreichbarkeit der Anlaufstellen des tägl. Bedarfs profitieren


Nahversorgung: Sämtliche Geschäfte und Dienstleister in einem Umkreis von ca. 4 km erreichbar


Bildung und Betreuung: Schulen und Kindertagesstätten in einem Umkreis von ca. 3,8 km ansässig


Anbindung: Bahnhof ca. 2,3 km, Autobahnen 99 und 92 in komfortabler Reichweite


Sonstige Angaben

Vereinbaren Sie noch heute einen Besichtigungstermin!








Alle Angaben sind ohne Gewähr und basieren ausschließlich auf Informationen, die uns von unserem Auftraggeber zur Verfügung gestellt wurden. Wir übernehmen keine Gewähr für die Vollständigkeit, Richtigkeit und Aktualität der Angaben.


Wohnung finden so einfach wie möglich - das ist unsere Mission!

Kostenlose Basic Features

0 € monatlich


  • Individuelles Such-Profil anlegen
  • Suchaufträge speichern
  • One-Klick Kontaktaufnahme

alles anzeigen

Jetzt kostenlos anmelden

Premium Features

19,99 € monatlich


  • Alle kostenlosen Features
  • Smart-Alarm per Whatsapp
  • Deine Chancen checken
  • Wohngegend analysieren

alles anzeigen

Jetzt Premium freischalten

Gewerblicher Anbieter

McMakler GmbH
Am Postbahnhof 17
10243 Berlin

Wohnglück-ID:
Objekt-Nr.:
WGL-575882
67582df41fa571eeb33a7bd6