Einfamilienhaus freistehend in Wangerland

Balkon/­Terrasse
Dachboden
Einliegerwohnung
Keller
Einbauküche
Garage/­Stellplatz

Mehrgenerationenhaus in traumhafter Lage in Hooksiel

Anfragen bisher

Premium

Meine Chancen

Premium

Fairer Preis

Premium

529.000 €

Kaufpreis

247,79 m²

11 Zi.

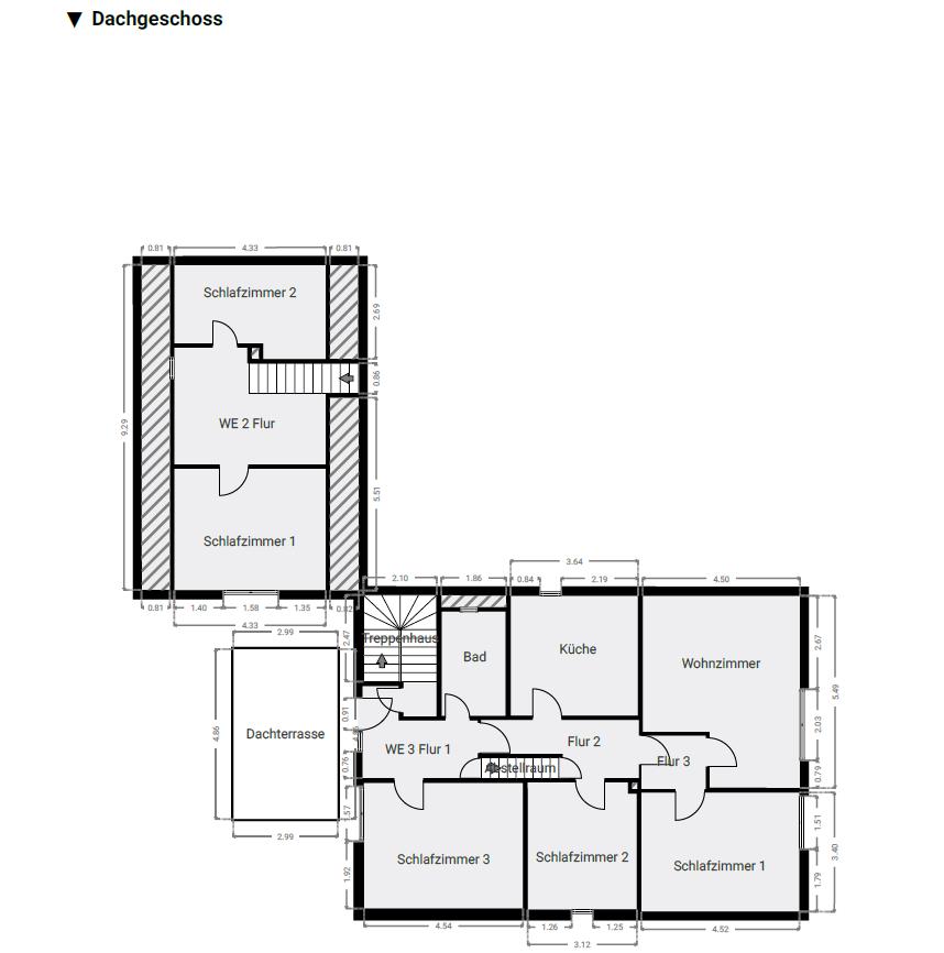
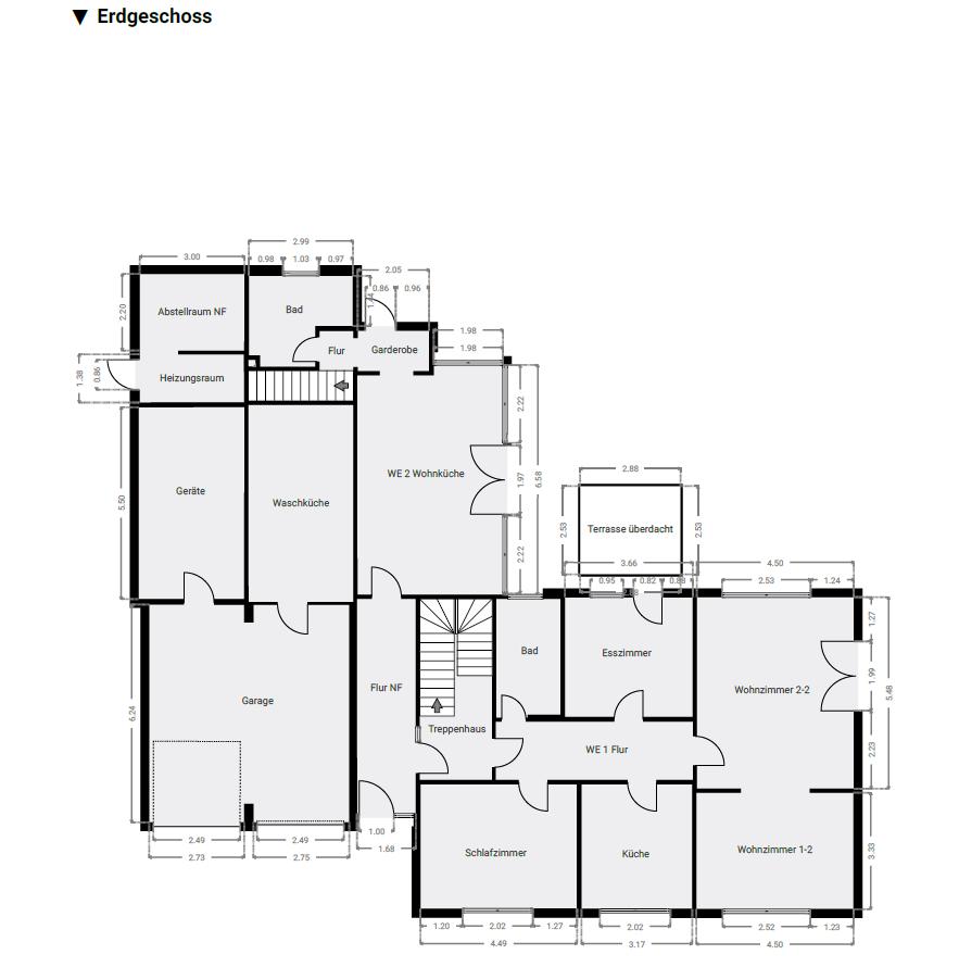
Grundriss

26434 Wangerland

Gewerblicher Anbieter

Volksbank Jade-Weser Immobilien GmbH
Mühlenstr. 31-35
26441 Jever

Details

Grundstücksfläche
1.123 m²
Zimmerzahl
11
Haustyp
Einfamilienhaus freistehend
Etagenzahl
2
Nutzfläche
158,47 m²
Bezugsfrei ab
Nach Absprache
Anzahl Schlafzimmer
6
Anzahl Badezimmer
3
Anzahl Garage/ Stellplatz
2
Baujahr
1975

Kosten

Kaufpreis
529.000 €
Käuferprovision
3,57%
Was kostet dein Umzug?

Stellplätze

Stellplatztyp
Freiplatz
Anzahl
2
Stellplatztyp
Garage
Anzahl
2

Objektbeschreibung

Entdecken Sie dieses attraktive Mehrfamilienhaus in bester Lage von Hooksiel, nur wenige Gehminuten von der Nordsee entfernt. Genießen Sie die frische Meeresbrise und die vielfältigen Freizeitmöglichkeiten, die die Küstenregion zu bieten hat. Einkaufsmöglichkeiten, Restaurants und Freizeitangebote sind ebenfalls bequem zu Fuß zu erreichen.


Mit drei gepflegten Wohneinheiten bietet dieses großartige Anwesen nicht nur eine hervorragende Wohnqualität, sondern ist auch die ideale Grundlage für große Familien oder Mehrgenerationenwohnen - eine perfekte Investition.


Das Haus besticht durch seine geräumigen Wohnungen, die alle separat zugänglich sind.
Die Erdgeschosswohnung mit ca. 97 m² verfügt u. a. über drei helle Zimmer und eine einladende, überdachte Terrasse – perfekt für entspannte Stunden im Freien.
Die Dachgeschosswohnung mit ca. 86 m² bietet Ihnen eine traumhafte Dachterrasse und insgesamt vier Zimmer, die Ihnen einen herrlichen Blick und viel Tageslicht ermöglichen.
Die Anbauwohnung erstreckt sich über ca. 64 m² und zwei Etagen und bietet u. a. drei Zimmer – ideal für kleine Familien.
Alle drei Wohneinheiten sind mit modernen, hellen Badezimmern und einladenden Küchen ausgestattet, die sowohl Funktionalität als auch ein angenehmes Wohnambiente bieten.


Das liebevoll gepflegte Grundstück bietet ausreichend Platz für Erholung und Freizeitaktivitäten, während eine großzügige Doppelgarage mit zahlreichen Abstellräumen zusätzlichen Stauraum oder Platz für Fahrzeuge bereitstellt.


Nutzen Sie die Gelegenheit, in dieser attraktiven Lage zu wohnen, und profitieren Sie von den großzügigen Annehmlichkeiten, die dieses Objekt zu bieten hat. Vereinbaren Sie noch heute einen Besichtigungstermin!


Bausubstanz & Energieausweis

A+

A

B

C

D

E

F

G

219,3 kWh/(m²*a)

H

Baujahr
1975
Wesentlicher Energieträger
GAS
Heizungsart
Gasheizung
Befeuerung
Gasheizung
Energieausweis
liegt vor
Energieausweistyp
Bedarfsausweis
Gültig bis
24.02.2035
Energieeffizienzklasse
G
Endenergiebedarf
219,3 kWh/(m²*a)

Ausstattung



  • Doppelgarage




  • Dachterrasse




  • 3 Wohneinheiten




  • Sommergarten




  • ebenerdiges Wohnen




  • Werkstatt




  • Garten




  • Möbel teilw. inkl.




  • Sackgassenlage




  • Das Objekt wird mietfrei übergeben




Lagebeschreibung

Hooksiel ist ein malerischer Küstenort an der Nordsee, der durch seine charmante Atmosphäre und die Nähe zum Meer besticht. Die idyllische Lage bietet eine perfekte Kombination aus Erholung und Freizeitmöglichkeiten. Hier können Sie die frische Meeresbrise genießen, ausgedehnte Strandspaziergänge unternehmen und die vielfältigen Wassersportangebote nutzen. Der Ort verfügt über eine gute Infrastruktur mit Einkaufsmöglichkeiten, Restaurants und Cafés, die zum Verweilen einladen. Zudem ist Hooksiel ideal für Naturliebhaber, die die umliegenden Landschaften und das UNESCO-Weltnaturerbe Wattenmeer erkunden möchten. Mit seiner freundlichen Gemeinschaft und der entspannten Lebensweise ist Hooksiel ein attraktiver Ort zum Wohnen und Verweilen.


Wohnung finden so einfach wie möglich - das ist unsere Mission!

Kostenlose Basic Features

0 € monatlich


  • Individuelles Such-Profil anlegen
  • Suchaufträge speichern
  • One-Klick Kontaktaufnahme

alles anzeigen

Jetzt kostenlos anmelden

Premium Features

19,99 € monatlich


  • Alle kostenlosen Features
  • Smart-Alarm per Whatsapp
  • Deine Chancen checken
  • Wohngegend analysieren

alles anzeigen

Jetzt Premium freischalten

Gewerblicher Anbieter

Volksbank Jade-Weser Immobilien GmbH
Mühlenstr. 31-35
26441 Jever

Wohnglück-ID:
Objekt-Nr.:
WGL-553465
9600