Mehrfamilienhaus in Sande

Dachboden
Keller
Garage/­Stellplatz

Zweifamilienhaus mit Doppelgarage in Sande!

Anfragen bisher

Premium

Meine Chancen

Premium

Fairer Preis

Premium

185.000 €

Kaufpreis

156,63 m²

7 Zi.

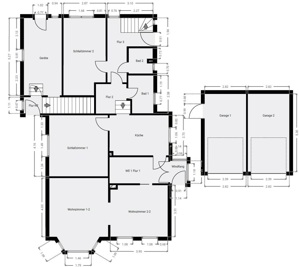
Grundriss

26452 Sande

Gewerblicher Anbieter

Volksbank Jade-Weser Immobilien GmbH
Mühlenstr. 31-35
26441 Jever

Details

Grundstücksfläche
984 m²
Zimmerzahl
7
Haustyp
Mehrfamilienhaus
Etagenzahl
2
Nutzfläche
103,76 m²
Bezugsfrei ab
nach Absprache
Anzahl Schlafzimmer
4
Anzahl Badezimmer
3
Anzahl Garage/ Stellplatz
2
Baujahr
1912

Kosten

Kaufpreis
185.000 €
Käuferprovision
3,57 %
Was kostet dein Umzug?

Stellplätze

Stellplatztyp
Freiplatz
Anzahl
2
Stellplatztyp
Garage
Anzahl
2

Objektbeschreibung

Dieses Zweifamilienhaus mit Potential befindet sich am Ortsrand von Sande, nahe dem Jade-Ems-Kanal, auf einem ca. 984 m² großen Eigentumsgrundstück. Zwei Garagen runden dieses Paket ab.


Das Haus wurde im Jahr 1912 erbaut und bietet Ihnen eine Wohneinheit im Erdgeschoss mit ca. 100 m² Wohnfläche (4 ZKB), sowie eine zweite Wohnung im Dachgeschoss mit ca. 60 m² Wohnfläche (3 ZKB) . Beide Einheiten verfügen jeweils einen separaten Eingang und je eine Therme. Das Objekt kann somit entweder als Zweifamilienhaus weiter genutzt oder als Einfamilienhaus umgebaut und genutzt werden.


Diese Immobilie überzeugt durch seine vielfältigen Gestaltungsmöglichkeiten und das großzügige Grundstück. Ein Dachboden, welcher bisher als Trockenboden genutzt wurde, bietet ebenfalls weitere Ausbaumöglichkeiten. Weiterer Stauraum befindet sich im Teilkeller.


Sie sind neugierig geworden? Dann vereinbaren Sie gerne einen kurzfristigen Besichtigungstermin mit uns!


Bausubstanz & Energieausweis

A+

A

B

C

D

E

F

G

H

271,9 kWh/(m²*a)

Baujahr
1912
Wesentlicher Energieträger
GAS
Heizungsart
Gasheizung
Befeuerung
Gasheizung
Energieausweis
liegt vor
Energieausweistyp
Bedarfsausweis
Gültig bis
10.03.2035
Energieeffizienzklasse
H
Endenergiebedarf
271,9 kWh/(m²*a)

Ausstattung



  • 2 Wohneinheiten




  • 2 Thermen (2011/2023)




  • 2 Garagen




  • Ausbaureserve im DG




  • Teilkeller




Lagebeschreibung

Das Tor zum Jeverland und zur nahen Nordseestadt Wilhelmshaven. Die ca. 8.600 Einwohner leben in den reizvollen Dörfern Cäciliengroden, Neustadtgödens, Mariensiel, Dykhausen und Sande. Die Gemeinde liegt in sanfter Lage an der westlichen Kante des Jadebusens und ist über die Autobahn 29 und dem Zug aus Richtung Oldenburg leicht erreichbar.
In Sande gibt es ausgedehnte Freizeitmöglichekeiten: Surfen, Baden, Angeln in der Freizeitanlage "Sander See"; es gibt ausgezeichnete Radwandermöglichkeiten, Tennisplätze, fast alle Sportarten in Turnhallen und auf Sportplätzen, den Sportboothafen Dykhausen, den Wasserweg Ems-Jade-Kanal, die Sommer-Spaßaktionen für Kinder; zukünftige Piloten besuchen die Flugschule auf dem Flugplatz Mariensiel; Deutschlands nördlichster Kletterturm lockt die Alpinfreunde..
Sande hat auch kulturell viel zu bieten: u.a. das Wasserschloß Gödens (1517), die Sankt Magnus Kirche zu Sande (14. Jh.) und das Heimatmuseum (16.Jh.). Weiter sehenswert sind die einmaligen Salzwiesen vor dem Deich im Cäciliengroden mit Lehrpfaden, die durch das Naturschutzgebiet Niedersächsisches Wattenmeer führen. Ebenfalls kann sich ein Besuch des Flugplatzes Mariensiel lohnen, evt. mit einem Rundflug über die Region.


Wohnung finden so einfach wie möglich - das ist unsere Mission!

Kostenlose Basic Features

0 € monatlich


  • Individuelles Such-Profil anlegen
  • Suchaufträge speichern
  • One-Klick Kontaktaufnahme

alles anzeigen

Jetzt kostenlos anmelden

Premium Features

19,99 € monatlich


  • Alle kostenlosen Features
  • Smart-Alarm per Whatsapp
  • Deine Chancen checken
  • Wohngegend analysieren

alles anzeigen

Jetzt Premium freischalten

Gewerblicher Anbieter

Volksbank Jade-Weser Immobilien GmbH
Mühlenstr. 31-35
26441 Jever

Wohnglück-ID:
Objekt-Nr.:
WGL-552088
9603