Einfamilienhaus freistehend in Buch am Erlbach

Balkon/­Terrasse
Einliegerwohnung
Garten/­-mitbenutzung
Gäste WC
Keller
EinbaukĂĽche
Garage/­Stellplatz

Exklusives Anwesen mit vielseitigen Möglichkeiten – Großzügigkeit, Komfort und ländliche Idylle

Anfragen bisher

Premium

Meine Chancen

Premium

Fairer Preis

Premium

1.195.000 â‚¬

Kaufpreis

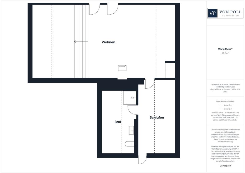
368,66 m²

11 Zi.

Grundriss

84172 Buch am Erlbach

Gewerblicher Anbieter

VON POLL IMMOBILIEN Landshut - Christian Kartmann
Freyung 602
84028 Landshut

Details

Grundstücksfläche
1.408 m²
Zimmerzahl
11
Haustyp
Einfamilienhaus freistehend
Etagenzahl
3
Nutzfläche
176,18 m²
Anzahl Schlafzimmer
7
Anzahl Badezimmer
4
Anzahl Garage/ Stellplatz
2
Objektzustand
Modernisiert
Baujahr
1978

Kosten

Kaufpreis
1.195.000 €
Käuferprovision
Käuferprovision beträgt 3 % (inkl. MwSt.) des beurkundeten Kaufpreises
Was kostet dein Umzug?

Stellplätze

Stellplatztyp
Freiplatz
Anzahl
2
Stellplatztyp
Carport
Anzahl
2

Objektbeschreibung

Dieses beeindruckende, äußerst großzügige Einfamilienhaus mit separater Einliegerwohnung bietet vielfältige Nutzungsmöglichkeiten – sei es als Mehrgenerationenhaus, zur Kombination von Wohnen und Arbeiten oder einfach zum großzügigen Leben mit viel Raum für individuelle Gestaltung. Mit einer Wohnfläche von ca. 368 m² auf einem 1.408 m² großen Grundstück bleiben hier keine Wünsche offen.


Das Haus wurde 1978 in solider Massivbauweise errichtet und 2013 hochwertig saniert und modernisiert. Die durchdachte Architektur mit bis zu drei möglichen Wohneinheiten schafft maximale Flexibilität. Großzügige Wohnbereiche, lichtdurchflutete Räume und ein ausgebautes Dachgeschoss sorgen für eine angenehme Wohnatmosphäre mit modernem Komfort.


Besonders hervorzuheben sind die geschmackvolle Kombination aus hochwertigen Materialien, die moderne Ausstattung sowie die stilvolle Gestaltung der Außenbereiche. Der liebevoll angelegte Steingarten verleiht dem Anwesen eine exklusive Note. Mehrere Terrassenbereiche laden zum Verweilen ein, während das moderne Carport mit angrenzendem Gartenraum ausreichend Stellplätze bietet.


Dieses Haus verbindet luxuriöses Wohnen mit durchdachter Funktionalität und bietet eine seltene Gelegenheit für alle, die auf der Suche nach einem großzügigen, komfortablen Zuhause mit vielseitigen Nutzungsmöglichkeiten sind. Lassen Sie sich bei einer Besichtigung von den zahlreichen Highlights dieser Immobilie begeistern.


Bausubstanz & Energieausweis

A+

A

B

C

D

E

156,9 kWh/(m²*a)

F

G

H

Baujahr
1971
Objektzustand
Modernisiert
Wesentlicher Energieträger
PELLET
Heizungsart
Holz-Pelletheizung
Befeuerung
Holz-Pelletheizung
Energieausweis
liegt vor
Energieausweistyp
Bedarfsausweis
GĂĽltig bis
26.04.2032
Energieeffizienzklasse
E
Endenergiebedarf
156,9 kWh/(m²*a)

Ausstattung

Highlights auf einen Blick:



  • GroĂźzĂĽgige Wohnfläche – ca. 368 m² mit flexibler Raumaufteilung

  • Vielseitige Nutzungsmöglichkeiten – Mehrgenerationenwohnen, Arbeiten & Wohnen oder Vermietung

  • Hochwertig saniert & modernisiert – aufwändige Renovierung 2013

  • Ausgebautes Dachgeschoss – zusätzlicher Wohnraum mit Komfort

  • Lichtdurchflutete Räume – helle, offene Gestaltung fĂĽr ein angenehmes WohngefĂĽhl

  • Attraktive AuĂźenbereiche – liebevoll angelegter Steingarten & mehrere Terrassen

  • Modernes Carport mit Gartenraum – ausreichend Stellplätze fĂĽr Fahrzeuge

  • Energieeffiziente Ausstattung – Pelletheizung, FuĂźbodenheizung & Klimageräte

  • Idyllische Lage mit guter Anbindung – schnell in Landshut, MĂĽnchen & am Flughafen

  • Lebendige Dorfgemeinschaft – familienfreundliche Infrastruktur & vielseitiges Vereinsleben


Lagebeschreibung

Buch am Erlbach ist ein idyllischer Ort mit einer außergewöhnlichen Lebensqualität. Hier trifft ländliche Ruhe auf eine hervorragend ausgebaute Infrastruktur – eine perfekte Kombination für alle, die naturnah wohnen möchten, ohne auf Komfort und Erreichbarkeit zu verzichten. Die Nähe zu Landshut, die schnelle Anbindung an die Autobahn A92 und die kurze Fahrzeit zum Flughafen München machen diesen Standort besonders attraktiv für Pendler und Vielreisende. Auch die Münchner Innenstadt ist in weniger als einer Stunde erreichbar.


Die Dorfgemeinschaft in Buch am Erlbach ist geprägt von Zusammenhalt und einem aktiven Miteinander. Zahlreiche Vereine aus den Bereichen Sport, Kultur und Freizeit bieten vielfältige Möglichkeiten zur Freizeitgestaltung und fördern das soziale Leben im Ort. Ob Fußball, Tennis, Skiclub oder Theatergruppe – hier findet jeder schnell Anschluss und kann sich in das lebendige Gemeindeleben einbringen.


Besonders für Familien ist dieser Ort ideal: Kindergärten, eine Grundschule sowie weiterführende Schulen in Landshut und Moosburg sind gut erreichbar. Spielplätze, Sportanlagen und zahlreiche Freizeitangebote sorgen dafür, dass sich Kinder hier rundum wohlfühlen. Dank der hervorragenden Infrastruktur sind auch Einkaufsmöglichkeiten, Ärzte, Apotheken und Restaurants bequem erreichbar.


Buch am Erlbach verbindet das Beste aus zwei Welten: die Ruhe und Natur des Landlebens mit der Nähe zu wirtschaftlich starken Städten und einer erstklassigen Anbindung. Wer hier wohnt, genießt ein entspanntes, aber dennoch komfortables Leben in einer Umgebung, die keine Wünsche offenlässt.


Sonstige Angaben

Es liegt ein Energiebedarfsausweis vor.
Dieser ist gĂĽltig bis 26.4.2032.
Endenergiebedarf beträgt 156.90 kwh/(m²*a).
Wesentlicher Energieträger der Heizung ist Pelletheizung.
Das Baujahr des Objekts lt. Energieausweis ist 1971.
Die Energieeffizienzklasse ist E.


GELDWÄSCHE: Als Immobilienmaklerunternehmen ist die von Poll Immobilien GmbH nach § 2 Abs. 1 Nr. 14 und § 11 Abs. 1, 2 Geldwäschegesetz (GwG) dazu verpflichtet, bei der Begründung einer Geschäftsbeziehung die Identität des Vertragspartners festzustellen und zu überprüfen, bzw. sobald ein ernsthaftes Interesse an der Durchführung des Immobilienkaufvertrages besteht. Hierzu ist es erforderlich, dass wir nach § 11 Abs. 4 GwG die relevanten Daten Ihres Personalausweises festhalten (wenn Sie als natürliche Person handeln) – beispielsweise mittels einer Kopie. Bei einer juristischen Person benötigen wir eine Kopie des Handelsregisterauszugs, aus welchem der wirtschaftlich Berechtigte hervorgeht. Das Geldwäschegesetz sieht vor, dass der Makler die Kopien bzw. Unterlagen fünf Jahre aufbewahren muss. Als unser Vertragspartner haben Sie auch eine Mitwirkungspflicht nach § 11 Abs. 6 GwG.


HAFTUNG: Wir weisen darauf hin, dass die von uns weitergegebenen Objektinformationen, Unterlagen, Pläne etc. vom Verkäufer bzw. Vermieter stammen. Eine Haftung für die Richtigkeit oder Vollständigkeit der Angaben übernehmen wir daher nicht. Es obliegt daher unseren Kunden, die darin enthaltenen Objektinformationen und Angaben auf ihre Richtigkeit hin zu überprüfen. Alle Immobilienangebote sind freibleibend und vorbehaltlich Irrtümer, Zwischenverkauf- und Vermietung oder sonstiger Zwischenverwertung.


UNSER SERVICE FĂśR SIE ALS EIGENTĂśMER:
Planen Sie den Verkauf oder die Vermietung Ihrer Immobilie, so ist es für Sie wichtig, deren Marktwert zu kennen. Lassen Sie kostenfrei und unverbindlich den aktuellen Wert Ihrer Immobilie professionell durch einen unserer Immobilienspezialisten einschätzen. Unser bundesweites und internationales Netzwerk ermöglicht es uns, Verkäufer bzw. Vermieter und Interessenten bestmöglich zusammenzuführen.


Wohnung finden so einfach wie möglich - das ist unsere Mission!

Kostenlose Basic Features

0 € monatlich


  • Individuelles Such-Profil anlegen
  • Suchaufträge speichern
  • One-Klick Kontaktaufnahme

alles anzeigen

Jetzt kostenlos anmelden

Premium Features

19,99 € monatlich


  • Alle kostenlosen Features
  • Smart-Alarm per Whatsapp
  • Deine Chancen checken
  • Wohngegend analysieren

alles anzeigen

Jetzt Premium freischalten

Gewerblicher Anbieter

VON POLL IMMOBILIEN Landshut - Christian Kartmann
Freyung 602
84028 Landshut

WohnglĂĽck-ID:
Objekt-Nr.:
WGL-530616
25085020