Büro / Praxen in Leipzig (Zentrum-Nordwest)

Einbauküche

Großzügige Büro-/Praxis- oder Ladenfläche in TOP Lage im Waldstraßenviertel

Anfragen bisher

Premium

Meine Chancen

Premium

Fairer Preis

Premium

2.495 €

Kaltmiete

6 Zi.

Erdg.

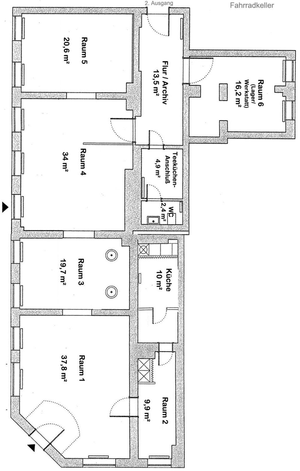
Grundriss

04105 Leipzig

Gewerblicher Anbieter

IC IMMOCONSULT e.K.
Hillerstraße 3
04109 Leipzig

Details

Bürofläche
169 m²
Zimmerzahl
6
Typ der Gewerbeimmobilie
Büro / Praxen
Bezugsfrei ab
sofort
Objektzustand
Vollsaniert

Kosten

Kaltmiete
2.495 €
Nebenkosten
300 €
provisionsfrei
Was kostet dein Umzug?

Objektbeschreibung

Diese tolle Gewerbeeinheit beinhaltet 6 Räume und befindet sich in sehr beliebter Lage - im Waldstraßenviertel von Leipzig.


Hier haben Sie freie Hand:
Für Ihre Ladenfläche oder auch für eine Praxis, ein Büro, etc...
Es gibt neben den Verkaufs- bzw. Büroflächen auch ein Lager, eine EBK, 1 extra Teeküchenanschluss, 1 WC u.v.a.m..


Ein 2. WC oder Dusche wäre mit einem Umbau möglich.


Eine Grundriss- als auch Ausstattungsänderung ist hier möglich und kann mit dem Vermieter abgestimmt werden. Anfallende Mehrkosten oder Mietaufschlag sind dadurch möglich und abhängig von der Mietlaufzeit und den Kosten.


Ideal für:



  • Ladengeschäft

  • kleiner Einzelhandel

  • Büro

  • IT

  • Praxis

  • Produktion

  • Personal Training


Bausubstanz & Energieausweis

Objektzustand
Vollsaniert
Wesentlicher Energieträger
Gas
Heizungsart
Zentralheizung
Befeuerung
Gasheizung

Ausstattung


  • kernsanierter Altbau

  • Sanierung: 1999

  • ca. 169 m²

  • 6 Räume

  • Boden: Fliesen und Laminat

  • inkl. 1 Einbauküche

  • 1 Teeküchenanschluss

  • 1 WC (2. WC + Dusche möglich)

  • schmiedeeisern vergitterte Fenster (zusätzlicher Einbruchschutz)

  • Gewölbedecke

  • ca. 2,60 m Raumhöhe

  • Gaszentralheizung

  • sep. Müllraum



    1. Ausgang zum Fahrradkeller



  • Innenhofnutzung möglich


Lagebeschreibung

Die angebotene Gewerbeeinheit befindet sich im beliebten Leipziger Waldstraßenviertel.


Das Waldstraßenviertel ist ein Wohngebiet der Stadt Leipzig nordwestlich der Innenstadt. Diese Viertel ist eine sehr bevorzugte Wohngegend. Imposante Villen zieren dieses Stadtgebiet und kennzeichnen die gehobene Wohnlage. Es gilt als eines der größten geschlossen erhaltenen Gründerzeitviertel und genießt als Flächenarchitekturdenkmal besonderen Schutz.


In unmittelbarer Nähe befinden sich die Quarterbeck Arena, das Red-Bull-Stadion, das Schreberbad, diverse Einkaufsmöglichkeiten, Banken, Ärzte, Schulen und Restaurants.
Zur Naherholung oder zur sportlichen Betätigung liegt das Rosental in unmittelbarer Nähe (ca. 300 m) und auch den Leipziger Zoo erreichen Sie in nur wenigen Minuten. Weiterhin bietet die Wohngegend durch Ihre Citynähe eine Vielzahl von Einkaufsmöglichkeiten, Restaurants, Imbissen etc..


Die Leipziger Innenstadt und der Hauptbahnhof sind in nur wenigen Minuten zu Fuß oder mit den öffentlichen Nahverkehrsmitteln erreichbar. Auch zur Universität Leipzig brauchen sie nur ca. 10 Minuten mit der Straßenbahn.


Die Verkehrsanbindung über die Waldstraße und die Jahnallee ist hervorragend.


Sonstige Angaben

Die von uns gemachten Angaben haben wir nach bestem Wissen und Gewissen nach Informationen des Vermieters/Verkäufers und den uns übergebenen Informationen zusammengestellt. Eine Gewähr für diese Angaben können wir nicht übernehmen. Wichtige Zahlen und Informationen sind am Objekt zu überprüfen.
Zwischenvermietung/Verkauf bleibt vorbehalten.


Wohnung finden so einfach wie möglich - das ist unsere Mission!

Kostenlose Basic Features

0 € monatlich


  • Individuelles Such-Profil anlegen
  • Suchaufträge speichern
  • One-Klick Kontaktaufnahme

alles anzeigen

Jetzt kostenlos anmelden

Premium Features

19,99 € monatlich


  • Alle kostenlosen Features
  • Smart-Alarm per Whatsapp
  • Deine Chancen checken
  • Wohngegend analysieren

alles anzeigen

Jetzt Premium freischalten

Gewerblicher Anbieter

IC IMMOCONSULT e.K.
Hillerstraße 3
04109 Leipzig

Wohnglück-ID:
Objekt-Nr.:
WGL-527754
302g46#L48r42