Penthouse in Kappeln

Balkon/­Terrasse
Einbauküche
Garage/­Stellplatz

Erstbezug: Hochwertige Eigentumswohnungen im Neubaugebiet Schleiterrassen im KfW 55 Standard

Anfragen bisher

Premium

Meine Chancen

Premium

Fairer Preis

Premium

1.268 €

Kaltmiete

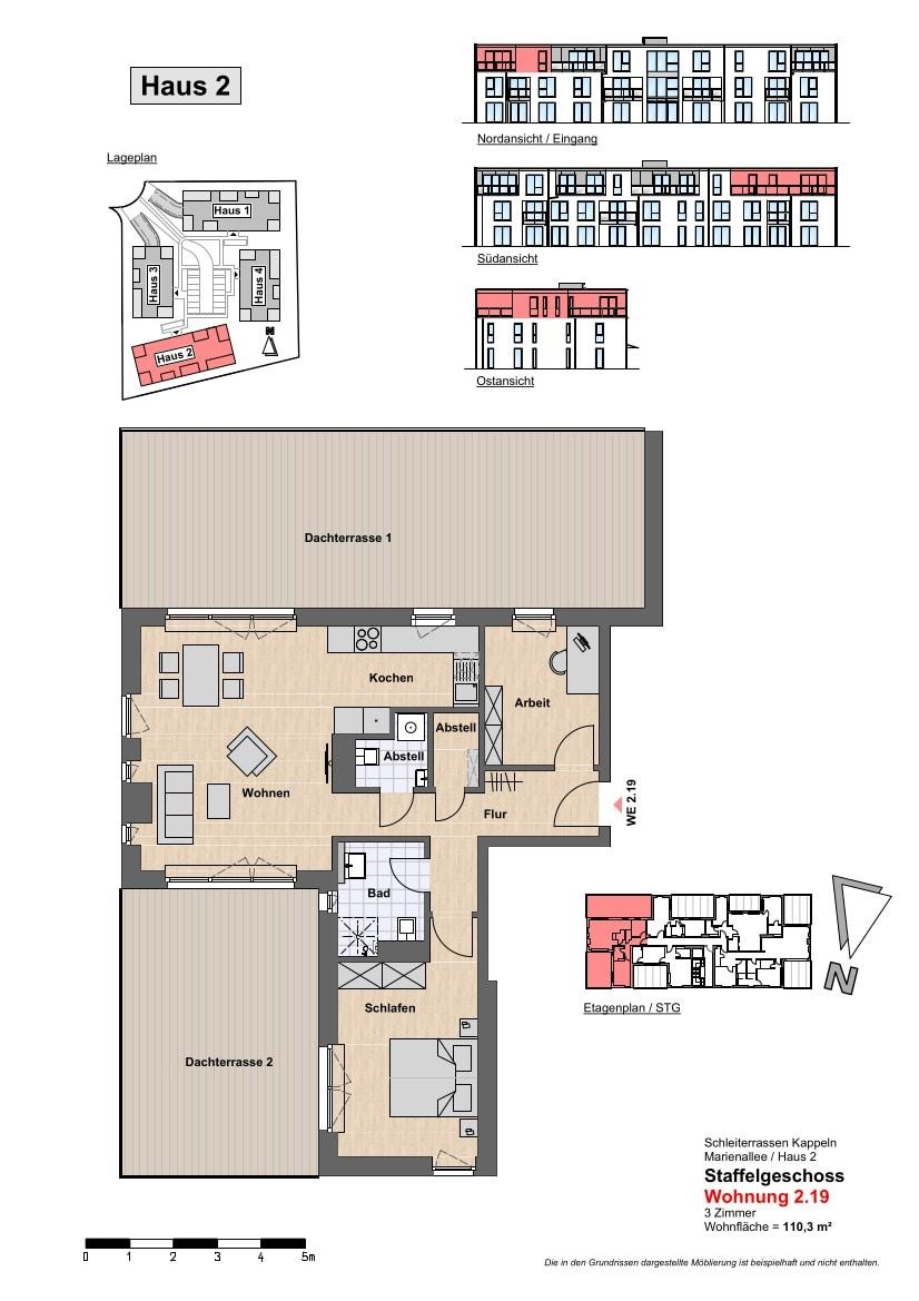
110,3 m²

3 Zi.

2. OG

Grundriss

24376 Kappeln

Gewerblicher Anbieter

VR Bank Nord eG
Königstraße 17
24837 Schleswig

Details

Zimmerzahl
3
Wohnungstyp
Penthouse
Etage, Geschoss
2
Bezugsfrei ab
01.01.2026
Anzahl Garage/ Stellplatz
1
Baujahr
2024

Kosten

Kaltmiete
1.268 €
Nebenkosten
221 €
Heizkosten
165 €
Kaution
3.804 €
Was kostet dein Umzug?

Stellplätze

Stellplatztyp
Tiefgarage
Anzahl
1
Miete
70 €

Objektbeschreibung

Zur Vermietung stehen Eigentumswohnungen im Neubaugebiet "Schleiterrassen" in Kappeln in unmittelbarer Nähe zur Schlei.
Insgesamt werden 38 Wohnungen, aufgeteilt auf zwei Häuser, vermietet.
Die Wohnungen verfügen über ca. 52 m² - 130 m² Wohnfläche sowie 2 - 4 Zimmer. Geplant sind diese im heutigen Stil und beinhalten jeweils eine offene Wohnküche.
Jede Wohnung verfügt über eine Terrasse / Balkon, je nach Lage auf der Etage.
Zu den Wohnungen gehören je ein Abstellraum im Keller und ein Stellplatz (überwiegend Tiefgarage). Die Wohnungen 104, 113, 115 sowie 204, 213 und 215 haben KEINEN Kellerabstellraum, dieser befindet sich innerhalb der Wohnung.
Die Stellplätze sind den Wohnungen fest zugeordnet und müssen entsprechend ebenfalls gemietet werden.


Bausubstanz & Energieausweis

A+

A

B

52,5 kWh/(m²*a)

C

D

E

F

G

H

Baujahr
2024
Wesentlicher Energieträger
Fernwärme
Heizungsart
Fußbodenheizung
Befeuerung
Fernwärme
Energieausweis
liegt vor
Energieausweistyp
Bedarfsausweis
Ausstellungsdatum
16.10.2024
Gültig bis
15.10.2034
Energieeffizienzklasse
B
Endenergiebedarf
52,5 kWh/(m²*a)

Ausstattung

Individuelle Ausstattungsmerkmale:



  • Glasfaseranschluss

  • Dreifachverglasung


Sonstige Angaben

Die Mietverträge werden mit einem wechselseitigen Kündigungsverzicht von einem Jahr sowie einer Staffelmiete abgeschlossen.
Die Erhöhungen treten zu den Jahren 2029, 2033, 2037 sowie 2041 ein, jeweils zum 01.01. des Jahres.


Wohnung finden so einfach wie möglich - das ist unsere Mission!

Kostenlose Basic Features

0 € monatlich


  • Individuelles Such-Profil anlegen
  • Suchaufträge speichern
  • One-Klick Kontaktaufnahme

alles anzeigen

Jetzt kostenlos anmelden

Premium Features

19,99 € monatlich


  • Alle kostenlosen Features
  • Smart-Alarm per Whatsapp
  • Deine Chancen checken
  • Wohngegend analysieren

alles anzeigen

Jetzt Premium freischalten

Gewerblicher Anbieter

VR Bank Nord eG
Königstraße 17
24837 Schleswig

Wohnglück-ID:
Objekt-Nr.:
WGL-488021
8459-219