Büro / Praxen in Oberderdingen

Garage/­Stellplatz

Vielseitige Gewerbeeinheit in Oberderdingen zu vermieten: 4 Räume, Küche, WC mit Dusche und Stellplätze!

Anfragen bisher

Premium

Meine Chancen

Premium

Fairer Preis

Premium

900 €

Kaltmiete

4 Zi.

75038 Oberderdingen

Gewerblicher Anbieter

Fahnster Immobilien GmbH
Melanchthonstraße 86
75015 Bretten

Details

Zimmerzahl
4
Typ der Gewerbeimmobilie
Büro / Praxen
Bezugsfrei ab
01.12.2024
Anzahl Garage/ Stellplatz
1
Baujahr
2020

Kosten

Kaltmiete
900 €
Nebenkosten
250 €
Was kostet dein Umzug?

Stellplätze

Stellplatztyp
Freiplatz
Anzahl
2

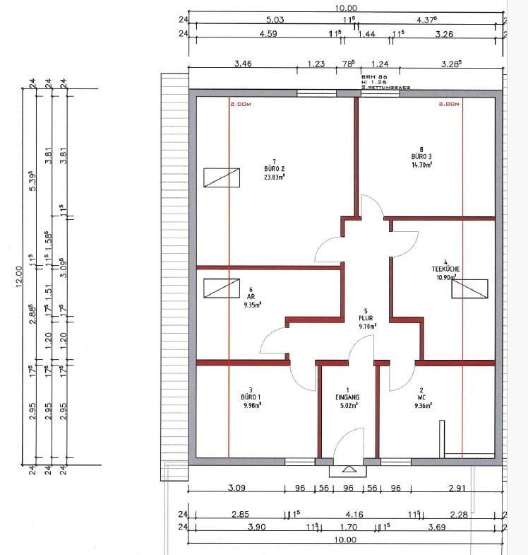
Objektbeschreibung

Diese vielseitige Gewerbeeinheit in Oberderdingen eignet sich ideal als Büro- oder Praxisräume. Die Einheit umfasst insgesamt vier gut geschnittene Zimmer, eine separate Küche sowie ein Badezimmer mit WC, Waschbecken, Dusche und einem Anschluss für eine Waschmaschine.

Der großzügige Eingangsbereich mit Windfang, vermittelt einen einladenden ersten Eindruck und bietet gleichzeitig praktische Funktionalität. Von hier aus gelangt man auch über eine Speicherluke auf den Dachboden, der eine große Nutzfläche für zusätzliche Abstellmöglichkeiten bietet.

Zur Einheit gehören außerdem zwei PKW-Stellplätze sowie ein nutzbarer Außenbereich. Dieser eignet sich beispielsweise für die Aufstellung eines Esstischs in den Sommermonaten oder zur Platzierung von Werbeaufstellern, um Ihre Präsenz zu unterstreichen.

Die Gewerbeeinheit liegt in einem ruhigen Umfeld. Die darunterliegende, ebenfalls gewerblich genutzte Einheit sorgt für eine angenehme Nachbarschaft ohne störenden Lärm. Dieses Objekt bietet somit die perfekte Kombination aus Funktionalität, Flexibilität und angenehmem Arbeitsumfeld.


Bausubstanz & Energieausweis

A+

A

B

C

D

E

F

G

H

Baujahr
1992
Wesentlicher Energieträger
Öl
Heizungsart
Ölheizung
Befeuerung
Ölheizung
Energieausweis
liegt vor
Energieausweistyp
Verbrauchsausweis
Ausstellungsdatum
23.12.2024
Gültig bis
22.12.2034
Energieeffizienzklasse
E

Ausstattung

Individuelle Ausstattungsmerkmale:

- Videosprechanlage

Diese attraktive Gewerbeimmobilie bietet ideale Voraussetzungen für vielseitige Nutzungsmöglichkeiten. Die Ausstattung im Überblick:
- Raumaufteilung: 4 großzügige Zimmer, die flexibel als Büros, Praxis- oder Lagerräume genutzt werden können.
- Küche: Funktionaler Küchenbereich für Mitarbeiterpausen oder die Zubereitung von Snacks.
- Badezimmer: Modernes Bad mit Dusche, WC, Waschbecken und einem praktischen Waschmaschinenanschluss.
- Speicher: Zusätzlicher Stauraum im Speicher für Akten, Materialien oder saisonale Gegenstände.
- Parkmöglichkeiten: Zwei private PKW-Stellplätze direkt vor der Immobilie.
- Bodenbelag: Hochwertiges und pflegeleichtes Laminat in allen Räumen.
- Internet und TV: Glasfaser-Anschluss für schnelles Internet sowie eine eigene Satellitenschüssel.
- Sicherheit: Moderne Videosprechanlage für komfortable und sichere Zutrittskontrolle.

Die Immobilie überzeugt durch ihre moderne Ausstattung, Funktionalität und ihre flexible Nutzungsmöglichkeit – ideal für Unternehmer, die einen repräsentativen Standort suchen!


Lagebeschreibung

Die angebotene Büro-/Praxisimmobilie befindet sich in der ruhigen Kleinstadt Oberderdingen, im Nordosten des Landkreises Karlsruhe. Mit einer Distanz von 1,3 km zum Stadtzentrum und einer guten Verkehrsanbindung durch Zugstation (1,6 km), Bushaltestelle (400 m) und Autobahnauffahrt (17,6 km) bietet sie eine optimale Lage. Einkaufsmöglichkeiten wie ein Supermarkt, drei Bäckereien, zwei Drogeriemärkte und ein Baumarkt sind bequem zu erreichen. Bildungseinrichtungen, medizinische Versorgung und Freizeitangebote sind ebenfalls in der Nähe vorhanden, darunter eine Schule, drei Kindergärten, ein Zahnarzt, eine Arztpraxis, drei Apotheken, ein Schnellrestaurant, ein Museum und ein Park.


Sonstige Angaben

Die vorgenannten Objektangaben wurden vom Eigentümer erteilt. Für die Richtigkeit kann von uns daher keine Gewähr geleistet werden.

Vereinbaren Sie gerne noch heute einen Besichtigungstermin!

Wir freuen uns auf Ihre Kontaktaufnahme!

Ihre Ansprechpartnerin:
Anna Gubonina


Wohnung finden so einfach wie möglich - das ist unsere Mission!

Kostenlose Basic Features

0 € monatlich


  • Individuelles Such-Profil anlegen
  • Suchaufträge speichern
  • One-Klick Kontaktaufnahme

alles anzeigen

Jetzt kostenlos anmelden

Premium Features

19,99 € monatlich


  • Alle kostenlosen Features
  • Smart-Alarm per Whatsapp
  • Deine Chancen checken
  • Wohngegend analysieren

alles anzeigen

Jetzt Premium freischalten

Gewerblicher Anbieter

Fahnster Immobilien GmbH
Melanchthonstraße 86
75015 Bretten

Wohnglück-ID:
Objekt-Nr.:
WGL-468288
FAI-2443