Dachgeschosswohnung in Sassnitz

Dachgeschosswohnung in Sassnitz

Anfragen bisher

Premium

Meine Chancen

Premium

Fairer Preis

Premium

260 €

Kaltmiete

42 m²

1,5 Zi.

1. OG

18546 Sassnitz

Gewerblicher Anbieter

ohne-makler.net
Humboldtstraße 25 A
21509 Glinde

Details

Zimmerzahl
1,5
Wohnungstyp
Dachgeschosswohnung
Etage, Geschoss
1
Etagenzahl
2
Bezugsfrei ab
01.05.2020
Anzahl Schlafzimmer
1
Anzahl Badezimmer
1
Objektzustand
Saniert
Baujahr
1897

Kosten

Kaltmiete
260 €
Nebenkosten
45 €
Heizkosten
65 €
Kaution
780 €
Was kostet dein Umzug?

Objektbeschreibung

Das Grundstück befindet sich verkehrsgünstig in einem Mischgebiet unmittelbar am Ortseingang über die B 96 kommend. Es ist mit einem massiven Gebäude bebaut. Das Haus hat anderthalb Geschosse. Es verfügt zur Zeit über eine Büroeinheit, Versorgungsräume und fünf Wohnungen. Das Gebäude wird zentral über eine moderne Gas-Brennwerttherme beheizt und mit Warmwasser versorgt.
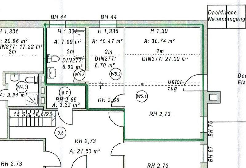
Die angebotene Wohnung befindet sich im Dachgeschoss zur Süd-Ost-Seite.


Bausubstanz & Energieausweis

Objektzustand
Saniert
Heizungsart
Zentralheizung
Energieausweis
vor 1.5.2014
Energieausweistyp
Verbrauchsausweis
Energieverbrauchskennwert
156 kWh/(m²*a)
Energieverbrauch für Warmwasser enthalten
Ja

Ausstattung

Vollbad, Sonstiges (s. Text)


Bemerkungen:
Die Wohnung befindet sich in einem guten, 2018 frisch renovierten Zustand. Die letzte Gesamtrenovierung erfolgte 2014. Die angebotene Wohnung verfügt über ein neu gestaltetes Bad mit Badewanne, Waschbecken und WC sowie Waschmaschinenanschluss.
Alle Räume wurden Anfang 2018 malermäßig neu gestaltet.Die Fußböden sind mit PVC-Belag belegt.
Die Wohnung verfügt über einen Satelliten-Anschluss, Telefon-Anschluss ist ebenfalls vorhanden. Die Wohnung ist unterteilt in einen großen Wohn-/Schlafraum, das kleine Zimmer ist ausgestattet mit den Anschlüssen für eine Küche.


Lagebeschreibung

Sassnitz ist die zweitgrößte Stadt auf der Insel Rügen. Sie befindet sich auf der Halbinsel Jasmund und ist mit der Bahn und dem Auto über die B 96 gut erreichbar. Die Stadt verfügt über einen Stadthafen mit der längsten Steinmole Europas an deren Ende ein Molenfeuer steht. Sassnitz ist von Mukran über Fährverbindungen mit Schweden, Dänemark, Litauen und Russland verbunden. Die Wirtschaft ist durch Tourismus, Fischerei und Fischverarbeitung, Kreideabbau sowie Handwerk und Gewerbe geprägt. Sassnitz ist auch ein staatlich anerkannter Erholungsort.
In unmittelbarer Nähe befindet sich ein Einkaufsmarkt und eine Bushaltestelle sowie der Bahnhof Lancken.
Infrastruktur (im Umkreis von 5 km):
Apotheke, Lebensmittel-Discount, Allgemeinmediziner, Kindergarten, Grundschule, Hauptschule, Realschule, Gesamtschule, Öffentliche Verkehrsmittel


Sonstige Angaben

Heizungsart: Zentralheizung
Energieträger: Gas


Makleranfragen nicht erwünscht


Wohnung finden so einfach wie möglich - das ist unsere Mission!

Kostenlose Basic Features

0 € monatlich


  • Individuelles Such-Profil anlegen
  • Suchaufträge speichern
  • One-Klick Kontaktaufnahme

alles anzeigen

Jetzt kostenlos anmelden

Premium Features

19,99 € monatlich


  • Alle kostenlosen Features
  • Smart-Alarm per Whatsapp
  • Deine Chancen checken
  • Wohngegend analysieren

alles anzeigen

Jetzt Premium freischalten

Gewerblicher Anbieter

ohne-makler.net
Humboldtstraße 25 A
21509 Glinde

Wohnglück-ID:
Objekt-Nr.:
WGL-3462
140012