Erdgeschosswohnung in Friedrichskoog (Dieksanderkoog)

Balkon/­Terrasse
barrierefrei
Einbauküche
Garage/­Stellplatz

Top-Lage, Neubau: 2-Zimmer Erdgeschosswohnung mit PKW-Stellplatz in Friedrichskoog / Nordsee

Anfragen bisher

Premium

Meine Chancen

Premium

Fairer Preis

Premium

248.500 €

Kaufpreis

44 m²

2 Zi.

Grundriss

25718 Friedrichskoog

Gewerblicher Anbieter

PlanetHome Group GmbH
Feringastraße 11
85774 Unterföhring

Details

Zimmerzahl
2
Wohnungstyp
Erdgeschosswohnung
Nutzfläche
6 m²
Bezugsfrei ab
12.2026
Anzahl Badezimmer
1
Anzahl Garage/ Stellplatz
1
Baujahr
2026

Kosten

Kaufpreis
248.500 €
Käuferprovision
2,98 %
Was kostet dein Umzug?

Objektbeschreibung

Wir bieten Ihnen hier exklusiv eine Neubau-Eigentumswohnung im Erdgeschoss in bevorzugter, ruhiger Lage in der Nähe zur Fischersiedlung unweit des Hafenbereiches in Friedrichskoog zum Kauf an.
Es handelt sich dabei um ein geplantes Neubauvorhaben eines etablierten, regionalen Bauträgers dessen Fertigstellung bis Ende 2026 realisiert werden soll.


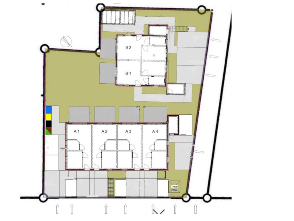
Die Gesamtanlage umfasst insgesamt 12 Wohneinheiten in folgender Aufteilung: 1 Mehrfamilienhaus (Haus B) mit 3 Wohneinheiten (2 im Erdgeschoss und 1 im Obergeschoss als Penthouse) und 1 Mehrfamilienhaus (Haus A) mit 6 Wohneinheiten (4 im Erdgeschoss und 2 im Obergeschoss als Penthouse) in Massivbauweise ohne Kellergeschoss.


Bei diesem hier offerierten Angebot geht es um die Wohnung Haus A Nr. 1 (Erdgeschoss links) mit einer Wohn- und Nutzfläche von ca. 44 m².


AUSSTATTUNG: Im Kaufpreis enthalten: Grundstücksanteil, hochwertige massive Bauweise im Standard des aktuellen Gebäudeenergiegesetzes GEG (u.a. zweischaliges Mauerwerk mit Kerndämmung und Luftschicht, Klinker), Kunststoff-Isolierfenster 3-fach verglast mit Rollläden, Heizung Luft-Wärme-Pumpe, Warmwasser über moderne elektronische Durchlauferhitzer, Terrasse (gepflastert), schlüsselfertige Ausstattung (inkl. Malerarbeiten, Fliesen und Bodenbeläge nach Wahl bis zu EUR 30,00/m²), separater PKW-Stellplatz, separater Außen-Abstellraum.


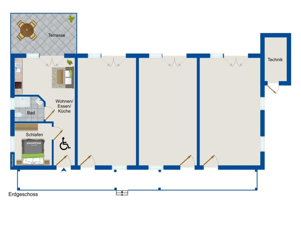
ERDGESCHOSS: Über die separate vordere Haustür kommen Sie in den hellen Wohn-, Ess- und Kochbereich (ca. 24,3 m², Zugang zur Terrasse, Anschlüsse für Küchenzeile). Von hier aus haben Sie dann Zugang zum Schlafzimmer (ca. 9,3 m²) und zum Bad (ca. 4.1 m², Fliesen, Dusche).


AUSSENANLAGEN: Eigener PKW-Stellplatz, separater eigener Außen-Abstellraum (ca. 6 m²), herrliche Süd-West Terrasse (ca. 12 m²).


NUTZUNG: Das Haus ist sowohl zu eigenen Wohnzwecken als auch für die Ferienvermietung nutzbar und verspricht hier aufgrund der Lage und Ausstattung gute Vermietungs-Perspektiven. Sprechen Sie uns bei Interesse gerne auf Detailunterlagen (u.a. weitere verfügbare Einheiten, Baubeschreibung), eine Ortsbesichtigung oder einen Beratungstermin an.


Bausubstanz & Energieausweis

A+

28,6 kWh/(m²*a)

A

B

C

D

E

F

G

H

Heizungsart
Zentralheizung
Befeuerung
Fernwärme
Energieausweis
liegt vor
Energieausweistyp
Bedarfsausweis
Ausstellungsdatum
22.06.2022
Gültig bis
22.06.2032
Energieeffizienzklasse
A+
Endenergiebedarf
28,6 kWh/(m²*a)

Lagebeschreibung

Die Wohnanlage liegt in bevorzugter ruhiger Lage Nähe der Fischersiedlung unweit des Hafenbereiches in Friedrichskoog-Ort. Friedrichskoog, das Nordseebad für Kenner, bekannt für viel Natur und die gesunde Luft, liegt eingebettet zwischen Kohl- und Rapsfeldern direkt an der Nordsee. Es grenzt unmittelbar an den Nationalpark Schleswig-Holsteinisches Wattenmeer.


Friedrichskoog besteht aus zwei durch die Koogstraße verbundene Ortsteile, dem malerischen Friedrichskoog und dem direkt am Wasser gelegenen Friedrichskoog-Spitze. In Friedrichskoog finden Sie grünen Rasenstrand mit Bereichen für Hunde und FKK- Freunde, den alten Hafen, Läden und Geschäfte, Restaurants, Cafés, die Schutzstation Wattenmeer und die Gemeinde- und Kurverwaltung.


Dazu die bekannte Seehundaufzuchtstation, das Kurmittelhaus mit Wellness- und Thalasso-Anwendungen und ein beheiztes Solebad und nicht zuletzt den neuen tollen Indoor-Spiele-Wal! Hinter den Deichen oder quer durch die grüne Landschaft können Sie herrliche Rad- und Wandertouren machen.


Nicht weit entfernt ist Friedrichskoog-Spitze. Hier liegt ein herrlicher Strand, das Kurmittelhaus, der Tourismus-Service, die Kurklinik, der Kurpark, der Campingplatz. Und das alles nur ca. 1 Autostunde entfernt zur Metropole Hamburg!


Wohnung finden so einfach wie möglich - das ist unsere Mission!

Kostenlose Basic Features

0 € monatlich


  • Individuelles Such-Profil anlegen
  • Suchaufträge speichern
  • One-Klick Kontaktaufnahme

alles anzeigen

Jetzt kostenlos anmelden

Premium Features

19,99 € monatlich


  • Alle kostenlosen Features
  • Smart-Alarm per Whatsapp
  • Deine Chancen checken
  • Wohngegend analysieren

alles anzeigen

Jetzt Premium freischalten

Gewerblicher Anbieter

PlanetHome Group GmbH
Feringastraße 11
85774 Unterföhring

Wohnglück-ID:
Objekt-Nr.:
WGL-339862
150064