Haus in Buckautal (Buckau)

Balkon/­Terrasse
Keller
Garage/­Stellplatz

geschichtsträchtige Immobilie im Grünen

Anfragen bisher

Premium

Meine Chancen

Premium

Fairer Preis

Premium

120.000 €

Kaufpreis

300 m²

8 Zi.

14793 Buckautal

Gewerblicher Anbieter

Flowimmobilien
Fuchsbau 13
15745 Wildau

Details

Grundstücksfläche
3.199 m²
Zimmerzahl
8
Immobilienart
Haus
Etagenzahl
2
Nutzfläche
201 m²
Bezugsfrei ab
sofort
Anzahl Garage/ Stellplatz
1
Objektzustand
Sanierungsbedürftig
Baujahr
1935

Kosten

Kaufpreis
120.000 €
Käuferprovision
3,57 % Käuferprovision inkl. MwSt.
3,57 % Käuferprovision incl. Mwst., verdient und fällig mit Beurkundung des notariellen Kaufvertrages. Der Immobilienmakler hat einen provisionspflichtigen Maklervertrag mit dem Verkäufer in gleicher Höhe abgeschlossen.
Was kostet dein Umzug?

Stellplätze

Stellplatztyp
Freiplatz
Anzahl
4

Objektbeschreibung

Das massive Wohnhaus bietet vielfältige Nutzungsmöglichkeiten. Es ist als Mehrgenerationenhaus genauso wie als Altenresidenz oder großzügiges Einfamilienhaus denkbar.


Die Substanz des denkmalgeschützten Gebäudes ist solide. Es ist allerdings eine Grundinstandsetzung erforderlich. Für die Umnutzung des ehemaligen Kommandanturgebäudes zu einem Wohnhaus wurde eine Baugenehmigung erteilt.


Für die Instandsetzung liegt ein Sanierungskonzept vor.


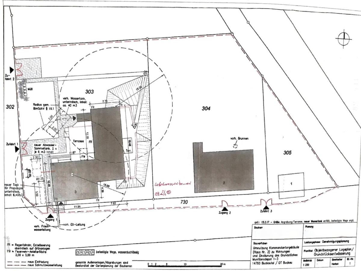
Neben dem Hauptgebäude befinden sich zwei weitere massive Gebäude auf dem Grundstück. Ein Gebäude mit ca. 50 m2 Grundfläche ist als Abrissobjekt einzuordnen. Ein weiteres mit ca. 50 m2 ist sanierungsbedürftig und könnte für Lagerzwecke genutzt werden.


Bausubstanz & Energieausweis

Baujahr
1935
Objektzustand
Sanierungsbedürftig
Heizungsart
Sonstige
Energieausweis
Laut Gesetz nicht erforderlich

Ausstattung

Das Grundstück verfügt über einen Strom.- und einen Wasseranschluss.
Es liegt kein Abwasseranschluss an.


Auf dem Grundstück befindet sich ein Brunnen für Gartenwasser und ein unterirdischer Speicher mit ca. 40 cbm der als Regenwassertank genutzt werden kann.


Die Anliegerstraße ist befestigt.


Das Grundstück ist teilweise eingefriedet.


Lagebeschreibung

Was dieses schöne und geschichtsträchtige Haus zu etwas ganz Besonderem macht, ist seine Lage: es liegt an einem ruhigen Weg im Wald, aber dennoch an einem sonnigen Plätzchen. Von allen Fernstern aus sieht man die herrliche Waldlandschaft und spürt die Stille und Ruhe.


Mit den landschaftlichen Reizen vor der Haustür, den zahlreichen Naturschutzgebieten in der Umgebung und einer breiten Palette an Freizeitaktivitäten, fühlen sich die Buckower hier zu Hause. Das kleine Dorf ist bei den ca. 300 Anwohnern mit ihrer herzlichen Art recht überschaubar. Es bietet vor allem das, was von den meisten hier geschätzt wird - Ruhe im Wohnparadies.


Das kleine Dorf Buckau ist ein Ortsteil der Gemeinde Buckautal im Landkreis Potsdam-Mittelmark im Land Brandenburg, ist Teil des Amtes Ziesar und liegt am gleichnamigen Fluss Buckau, einem Nebenfluss der Havel im Naturpark Flämig. Das kleine typische Gassendorf hat seinen ruhigen und dörflichen Charme bewahrt. Kleine Bauernhäuser, eine romanische Kirche, ein Mühlengehöft, eine private Pferdehaltung des Gestüts Buckautal mit Pension und ein Landwirtschaftsbetrieb bestimmen heute das Dorfbild. Außerdem gibt es hier ein Reit- und Fahrverein, ein Feuerwehrverein und ein Dorfgemeinschaftshaus mit engagierten Buckowern, die sich für ein harmonisches Dorfleben einsetzen. Einkaufsmöglichkeiten, Ärzte, Banken und Apotheken sind in der Nachbarstädten Ziesar bzw. Bad Belzig vorhanden.


Der Wusterwitzer See, Breitlingsee und der Plaue See lassen sich schnell von Buckau aus erreichen und sind passende Ziele für alle, die ein paar entspannte Stunden am Wasser verbringen möchten.


Auch die Freizeit-Radler haben hier viele Tourgelegenheiten durch die bunte Naturlandschaft. Ein ehemalige Bahnstrecke von Bad Belzig nach Ziesar wurde zu einem schönen Radweg umgebaut und führt dicht an der Grundstücksgrenze vorbei.


Die Verkehrsanbindungen nach Ziesar oder Bad Belzig beispielsweise sind vom Dorfkern per Bus sowie über die B 107 zu erreichen. Der nächstliegende Autobahnanschluss ist 9 Km von Buckow entfernt.


Sonstige Angaben

Wenn Sie Ihre Immobilie verkaufen wollen oder müssen, ermitteln wir Ihnen kostenfrei den erzielbaren Verkaufspreis und vermitteln Ihnen die Möglichkeiten für eine optimale Vermarktung. In der Vermarktungsphase können wir Ihnen alle Arbeiten abnehmen und während der Verkaufsphase werden Sie kontinuierlich über den Bearbeitungsstand informiert. Sie können entscheiden in welchem Maße Sie am Verkaufsprozess beteiligt werden möchten. Den Verkauf Ihrer Immobilie begleiten wir bis zum Notartermin und der Hausübergabe. Wir unterstützen Sie mit unserem Netzwerk und können die erforderlichen Dienstleistungen rund um den Immobilienverkauf vermitteln um den bestmöglichen Verkauf zu ermöglichen.


Wohnung finden so einfach wie möglich - das ist unsere Mission!

Kostenlose Basic Features

0 € monatlich


  • Individuelles Such-Profil anlegen
  • Suchaufträge speichern
  • One-Klick Kontaktaufnahme

alles anzeigen

Jetzt kostenlos anmelden

Premium Features

19,99 € monatlich


  • Alle kostenlosen Features
  • Smart-Alarm per Whatsapp
  • Deine Chancen checken
  • Wohngegend analysieren

alles anzeigen

Jetzt Premium freischalten

Gewerblicher Anbieter

Flowimmobilien
Fuchsbau 13
15745 Wildau

Wohnglück-ID:
Objekt-Nr.:
WGL-314759
128241549#AujS1X