Büro / Praxen in Oldenburg (Innenstadt)

Aufzug
barrierefrei

Exklusive Büro- oder Praxisflächen // Ex C&A // Obergeschosse // Innenstadt // Oldenburg

Anfragen bisher

Premium

Meine Chancen

Premium

Fairer Preis

Premium

Kaltmiete

26122 Oldenburg

Gewerblicher Anbieter

Eden-Ehbrecht Immobilien & Marketing GbR
Kleine Kirchenstraße 11
26122 Oldenburg

Details

Bürofläche
2.016 m²
Typ der Gewerbeimmobilie
Büro / Praxen
Etage, Geschoss
1
Etagenzahl
4
Bezugsfrei ab
Nach Vereinbarung
Objektzustand
Nach Vereinbarung
Baujahr
1962

Kosten

Kaltmiete
Was kostet dein Umzug?

Objektbeschreibung

Sie sind auf der Suche nach exklusiven und einzigartigen Gewerbeflächen in der Oldenburger Innenstadt?


Sie suchen Büroflächen oder Praxisflächen, die nicht der typischen Norm entsprechen und Ihren ganz eigenen Charakter haben? Sie haben eventuell aber noch ganz andere Ideen?


Dann sind die Obergeschosse (1-3) des ehemaligen C&A Warenhauses in der Langen Straße vielleicht schon genau das Richtige für Sie!


Das ehemalige Kaufhaus überzeugt natürlich zum einen mit den typisch für Handelsimmobilien sehr hohen Deckenhöhen aber auch mit einer übergroßen Fensterfront (1. und 2. OG) zur Langen Straße. Hier lassen sich urbane Büro-. Praxis-, oder Handelsflächen realisieren, die so in dieser Lage nicht unbedingt ein zweites Mal zu finden sind!


Gemeinsam mit dem Eigentümer können wir Ihnen die Flächen - im Rahmen der architektonischen und technischen Gegebenheiten - nach Ihren individuellen Vorstellungen herrichten und ausstatten!


In unserem Exposé finden Sie erste Phantomplanungen, die Ihnen eine grundsätzliche Idee von möglichen Flächenplanungen geben sollen! Diese sind nur beispielhaft und können gemeinsam an Ihre Bedürfnisse angepasst werden.


Bausubstanz & Energieausweis

Baujahr
1962
Objektzustand
Nach Vereinbarung
Wesentlicher Energieträger
Gas
Heizungsart
Gasheizung
Befeuerung
Gasheizung
Energieausweis
liegt vor
Energieausweistyp
Verbrauchsausweis
Ausstellungsdatum
15.02.2019
Gültig bis
14.02.2029

Ausstattung

Die Visualisierungen geben Ihnen einen ersten Eindruck, wie Ihre Flächen prinzipiell aussehen könnten! Individuelle Anpassungen und Wünsche können dabei natürlich noch berücksichtigt werden!


Die genaue Ausbaubeschreibung und die finalen technischen Gebäudeausstattungen können wir Ihnen bei Interesse an den Flächen selbstverständlich zur Verfügung stellen.


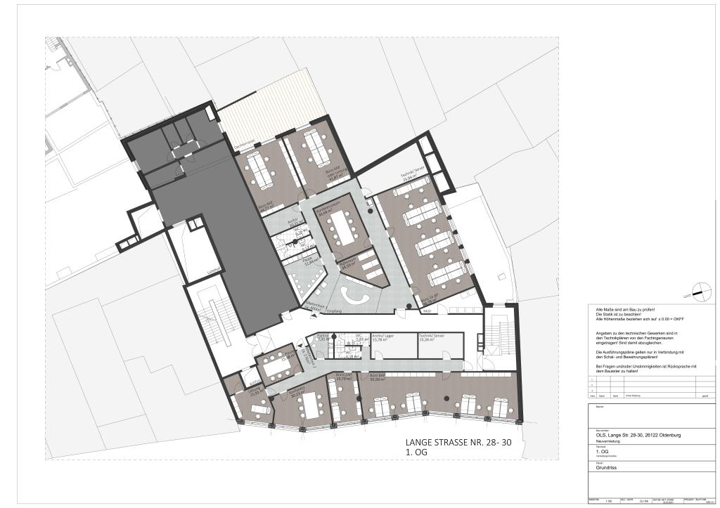
Die ersten Phantomplanungen für die Obergeschosse sind bereits fertig und sind hier im Exposé zu finden! Hier wurden für das 1. OG zwei Nutzungseinheiten, für das 2. OG eine Nutzungseinheit und auch für das 3. OG eine Nutzungseinheit eingeplant. Die Rolltreppen aus der vorangegangenen Nutzung werden hierbei natürlich zurückgebaut. Ein neuer Personenaufzug mit lichten Mindestkabinenmaßen von ca. 1,10m x 1,40m wird im Treppenhausbereich vorgesehen.


Entgegen den gezeigten Fotos werden für die hinteren, in der Tiefe gelegenen Flächen diverse Durchbrüche für großzügige Fensterflächen eingeplant, so dass die Flächen für eine möglichst vielfältige Nutzung vorbereitet werden. Die geplanten, zusätzlichen Fensterflächen finden Sie prinzipiell in den anliegenden Phantomplanungen!


///// VORLÄUFIGE MIETFLÄCHEN


Insgesamt können wir Ihnen in diesem Gebäude ca. 2.016 m² Gewerbeflächen in den drei Obergeschossen anbieten.



  1. OG: Gesamtfläche von ca. 766 m²

  2. OG: Teilfläche von ca. 276 m²

  3. OG: Teilfläche von ca. 400 m²

  4. OG: Gesamtfläche von ca. 766 m²

  5. OG: Gesamtfläche von ca. 450 m²


Andere Flächenaufteilungen sind selbstverständlich ebenso denkbar! Hier sind wir offen für Ideen und Konzepte!


/// Rohbauhöhen



  • 1.Obergeschoss ca. 3,30 m

  • 2.Obergeschoss ca. 3,30 m

  • 3.Obergeschoss ca. 2,80 m


///// BASIS AUSBAUPAKET


Der angegebene Mietpreis beinhaltet ein Basis-Ausbaupaket für Böden, Wände, Elektro und Netzwerkverkabelung, sowie Heizung und Lüftung.


///// BAUBESCHREIBUNG ALLGEMEIN /////


Das Gebäude wird insgesamt energetisch saniert, Dachsanierung mit entsprechender Dämmung, sowie Dämmung der Fassadenteile.


Für die Erschließung der oberen Etagen entsteht eine neue Aufzugsanlage mit lichten Mindestkabinenmaßen von ca. 1,10m x 1,40m.


///// ROHBAUKONSTRUKTION


Tür- und Fensteröffnungen in Innen- und Außenwänden werden nach Bedarf erstellt bzw. vergrößert.


Die Estriche in den Obergeschossen werden durch schwimmende Estriche mit Trittschalldämmung ersetzt. Die zulässige Belastbarkeit liegt bei 5 kN/m² gem. Statik. Ein Ausgleichsspachtel wird vermieterseitig nicht eingebracht.


Für die Flächen im 1. Obergeschoss wurden jeweils Flächengewichte für TGA von ca. 30 kg/m² und für abgehängte Deckenkonstruktionen von ca. 20kg/m² angesetzt. Höhere Lasten sind im Einzelfall abzustimmen. Mit Vertragsunterzeichnung verpflichtet sich der Mieter zur Einhaltung der o.g. statischen Vorgaben.


Elektro- und Haustechnische Installationen in Rohbauwänden sind nicht möglich und müssen Aufputz oder in vom Mieter im Zuge des Ausbaus zu stellenden Vorsatzschalen erfolgen.


///// AUSSENFENSTER & TÜREN


Alle Einzelfenster der Süd- und Nordfassade werden erneuert als Aluminium-Fenstersystem mit Isolierverglasung, weiß mit außenliegenden Raffstoren als Sonnenschutz. Ein außenliegender Sonnenschutz ist an den Fenstern im 1.+2.OG entlang der Lange Straße nicht vorhanden und kann auch nicht montiert werden. Die Montage eines innenliegenden Sonnenschutzes obliegt dem Mieter.


///// INNENWÄNDE


Die Bestandswände werden mit neuem Kalkzementputz versehen und abgerieben.


Alle Massivwände werden mit einer Oberfläche in Q2 hergestellt. Die Position der Türöffnungen wird in Abstimmung mit der Mieterin festgelegt. Türzargen können nachträglich nur als 2-teilige Umfassungszargen montiert werden.


Die Trennwände innerhalb der Mietung werden als Gipskartonwände mit Metallständerwerk errichtet, Ausführung mit min. D=12,5 cm bzw. nach Schall- und Brandschutzgutachten. Abstellung auf dem Rohboden nur für F90-Wände. Alle Wände mit Anschluss an Rohdecke. Schall- und Brandschutz nach Erfordernis bzw. in Abstimmung zwischen Mieterin und Vermieter.


Alle Wände werden malermäßig fertig erstellt/ geweißt, Nassabriebklasse 2. Die Oberflächen der gestellten Wände werden in Q2 oder Q3 erstellt.


///// INNENTÜREN


/// Allgemein


Standardtüren mit HPL-Oberflächenbeschichtung und Stahlumfassungszargen. Farben nach Bemusterung. Wahlweise mit Glasseitenfeld, Glasausschnitt oder Glas-Oberlicht möglich. Bei Bedarf kommen in Absprache mit Mieter/ Vermieter Feststellanlagen mit automatischen Rauchmeldern zum Einsatz.


Die Schallschutzanforderungen aller Türen werden DIN-gerecht nach Vorgaben des Schallschutzgutachtens umgesetzt. Türdrücker/ Schild in Edelstahl.


/// Konferenzräume


Alublockrahmen-Türanlage mit Glasseitenfeld und Oberlicht nach Bemusterung. Bei Bedarf kommen in Absprache mit Mieter/ Vermieter Feststellanlagen mit automatischen Rauchmeldern zum Einsatz


/// Flure


Die Mietungszugangstüren werden durch den Vermieter als robuste Alurahmentüren mit Glasfüllungen und Obentürschließern ausgeführt. Maße 1,135x 2,26m. Etwaige zusätzliche Anforderungen an bspw. Zugangskontrollen sind dem Vermieter mitzuteilen.


Türen innerhalb der Flure werden als Alurahmentüren mit Glasfüllungen nach Bemusterung erstellt.


Bei Bedarf kommen in Absprache mit Mieter/ Vermieter Feststellanlagen mit automatischen Rauchmeldern zum Einsatz.


///// BODENBELÄGE


/// BÜRO: Nadelfilzboden als Bahnen- oder Fliesenware für mittlere Beanspruchung und Nutzungsklasse 32, R9.
/// KONFERENZRÄUME: Nadelfilzboden als Bahnen- oder Fliesenware für mittlere Beanspruchung und Nutzungsklasse 32, R9.
/// TEEKÜCHEN: Noch zu bemusternder Vinylbelag für starke Beanspruchung und Nutzungsklasse 33, R9.
/// SANITÄRRÄUME: Fliesenbelag aus Feinsteinzeug nach Bemusterung, Rutschfestigkeitsklasse R10, Fliesenformat 20x60cm.
/// FLURE: Noch zu bemusternder Vinylbelag für starke Beanspruchung und Nutzungsklasse 33, R9.
/// NEBENRÄUME: Noch zu bemusternder Vinylbelag für starke Beanspruchung und Nutzungsklasse 33, R9.


///// DECKENBELÄGE


/// ALLGEMEIN: Rasterdecke 62,5x62,5cm mit sichtbarem Raster und Gipsfasereinlage.
/// TECHNIKRÄUME: Die Technikräume erhalten keine Abhangdecke.


///// BELEUCHTUNG


Es ist eine Grundbeleuchtung im gesamten Objekt vorgesehen.


Die Beleuchtung in den öffentlichen Bereichen (Eingang, Treppenhäuser, Aufzugvorräume etc.) wird mit Ein- bzw. Anbauleuchten in LED-Technik ausgeführt.


/// Bürobereiche


Die Grundbeleuchtung in den Büros und Besprechungsräumen wird mittels Ein- bzw. Anbauleuchten in LED-Technik gewährleistet. Die Besprechungsräume erhalten zudem einen Anschluss für eine mieterseitige Leuchte. Die bildschirmarbeitsplatztaugliche Beleuchtung an den Arbeitsplätzen ist Leistung des Mieters.


Sämtliche Nebenflächen in den Büroeinheiten wie Flure, WC’s, Teeküchen und Lagerräume etc. erhalten Ein- bzw. Anbauleuchten in LED-Technik in Abstimmung mit der Architektur.


− Büroräume – LED-Downlights mit integriertem Tageslicht- und Präsenzsensor
− Besprechungsräume über örtliche Aus-/Serienschalter
− Treppenhäuser, Flure über Präsenz-/Bewegungsmelder
− WC-Bereiche über Präsenz-/Bewegungsmelder
− Neben-, Lager- und Technikräume über örtliche Schalter/Taster
− Außen- und Fassadenbeleuchtung über Helligkeitssensor und Zeitfunktion


///// Teeküchen


Die Ausstattung der Teeküchen ist als mieterseitige Leistung auszuführen und erfolgt in Absprache mit der Vermieterin. Erfolgt keine Absprache, werden Fliesenspiegel und Anschlüsse gem. vorliegender Planung umgesetzt. Sollte ein Starkstromanschluss für bspw. einen Herdanschluss gewünscht sein, ist dies als optionaler Sonderwunsch möglich. Hierbei sind die Anforderungen seitens Brandschutz und ASR zu berücksichtigen.


///// Sanitärbereiche


Alle Sanitärräume erhalten noch zu bemusternde Wandfliesen bis 2m Höhe. Sanitärtrennwände und Schamwände HPL beschichtet nach Bemusterung.


/// Sanitärausstattung


Freihängender Waschtisch im WC-Vorraum mit Hahnloch und Einhebelarmatur, Kristallspiegel mit verdeckter Befestigung über dem Waschtisch, ca. 50x70cm


Sanitärobjekte Marken-Sanitärobjekte aus Porzellan. Die WC-Becken werden als wandhängende Tiefspülbecken mit verdecktem Spülkasten installiert. Die Urinalbecken sind mit einer berührungslosen Spülelektronik ausgestattet.
Accessoires: WC-Papierrollenhalter, Büstenhalter, Seifenspender, Hygienebeutelspender, Papierhandtuchspender, Abfallbehälter, Hygieneabfallsammler.


///// Warmwasserversorgung


Die Warmwasserversorgung wird dezentral über elektrische Kleinstdurchlauferhitzer erfolgen.


///// Wärmeerzeugungsanlagen


Das Gebäude wird über Luft-Wasser-Wärmepumpen mit Heiz- und Kälteenergie versorgt.


///// Wärmeverteilnetze


Die Verbrauchserfassung der einzelnen Nutzungsbereiche wird über separate Zähler erfolgen.


///// Raumheizflächen


Alle Bereiche erhalten Heizkörper oder Heizwände. Die Auslegung erfolgt für Büros und Gewerbe mit 21°C, Lager min. 15°C.


///// Lüftungsanlagen


Die Büroeinheiten werden mit dezentralen RLT-Geräten ausgestattet und beinhalten ein Heizregister, Regelung, Wärmerückgewinnung und Filtertechnik.


Die Zuluft wird mit 21°C im Winter und 18°C im Sommer in die Büroflächen eingebracht. Innerhalb der Mietung wird das Kanalnetz in der Abhangdecke der Flure verlegt.


///// Kälteanlagen


Die statische Kühlung wird über die Luft-Wasser-Wärmepumpe erzeugt. Die Gebäudekälte steht nur außerhalb der Heizperiode zur Verfügung.


Für die Büros an der Lange Straße im 1. und 2. Obergeschoss werden im Grundausbau Umluftkühlgeräte installiert, um eine Kühlleistung von 40 W/m² zu erreichen. Über die vorbehandelte Luft werden weitere 10 W/m² erreicht, so dass insgesamt für die gekühlten Bereiche eine Kühlleistung von 50 W/m² zur Verfügung stehen. Für die übrigen hofseitigen Büroräume ist keine Kühlung vorgesehen. Auf Sonderwunsch können jedoch alle Büros (50 W/m²) mit Kälte ausgestattet werden.


///// Kühlung EDV-/Serverräume


Die EDV- und Serverräume der Büromieteinheiten eine Split-Kälteeinheit mit einer Kühlleistung von max. 5 kW.


///// Netzersatzanlage


Eine Notstromversorgung des Gebäudes ist nicht vorgesehen.


///// Sicherheitsbeleuchtung


Das Flucht- und Rettungswege erhalten eine Sicherheitsbeleuchtungsanlage inkl. Rettungszeichenleuchten.


///// Niederspannungsschaltanlagen


Für die Büroflächen wird eine Anschlussleistung von 40W/m² zur Verfügung gestellt.


///// Leitungsnetz


Innerhalb der einzelnen Nutzungseinheiten erfolgt die Verlegung der Leitungen überwiegend in den dafür vorgesehenen Brüstungsverkleidungen /-kanälen, Hohlwänden bzw. im abhängten Deckenbereich der Flure. In Bereichen, die keine abgehängte Decke erhalten, erfolgt die Installation sichtbar auf Kabelbahnen bzw. in Kabelkanälen sowie Installationsrohren.


Der Ausbau der Installationen in den Büros wird bis in die Mietfläche vorgesehen und kann auf Wunsch bis zu den Arbeitsplätzen geführt werden. Ein Platzhalter in der Brüstungsverkleidung für den Ausbau ist vorgehalten. Die Anbindung der Kabelführung in den Brüstungskanal ist im Zuge der Mieterplanung zu klären.


///// Brandmeldeanlage


Das gesamte Gebäude erhält eine flächendeckende Brandmeldeanlage.


///// Förderanlagen


Der neue Personenaufzug im Treppenhaus A bedient die Etagen UG – 3.OG (5 Halt) und bietet die Möglichkeit zum Liegendtransport. Dieser Aufzug steht allen Mietparteien im Gebäude zur Verfügung. Der Aufzug ist als Durchlader mit einer Tragkraft von 1.000 kg konzipiert. Die Maße der Fahrkabine betragen 2,10m x 1,10m.


///// Werbeanlagen


Werbeanlagen sind mit dem Vermieter und der Stadt Oldenburg abzustimmen. Die Antragsstellung obliegt dem Mieter.


///// KONKRETES MIETANGEBOT /////


Ein konkretes Mietangebot kann natürlich erst erstellt werden, wenn die gewünschte Flächenplanung, der gewünschte Ausbaustandard und weitere kaufmännische Eckpunkte besprochen wurden!


Lagebeschreibung

Der Gebäudekomplex befindet sich in der Langen Straße in bester A-Innenstadtlage inmitten der beliebten Oldenburger Fußgängerzone.


Die zukünftige Mieterstruktur wird aus Einzelhandelsflächen im Erdgeschoss und Büro- und Praxisflächen in den Obergeschossen bestehen. Aber auch andere Nutzungen wie gewerbliches Wohnen sind in den Obergeschossen denkbar!


Durch seine Zentrale Lage überzeugt das Gebäude mit bester Verkehrsanbindung, zu Fuß, mit dem Fahrrad, dem Auto oder den öffentlichen Verkehrsmitteln. Parkhäuser, Bushaltestellen & Co. sind fußläufig zu erreichen, ebenso der Hauptbahnhof.


///// ÜBER 50 JAHRE C&A


An dem Standort in der Langen Straße war seit 1962, weit über 50 Jahre, das Modeunternehmen C&A ansässig und hat diesen Teil der Innenstadt maßgeblich mitbeprägt.


Zunächst hatte das Modehaus zwei Etagen. 1979 kamen ein weiteres Stockwerk und die zentrale Rolltreppen-Anlage hinzu, 1986 wurde das Geschäft um ein Tiefparterre erweitert, seit 1995 gibt es den zweiten Eingang in der Achternstraße. 2002 und 2007 wurde nochmals groß umgebaut. Zuletzt bot C&A auf einer Fläche von rund 3400 Quadratmetern ein umfangreiches Damen-, Herren- und Kindersortiment.


///// OLDENBURG // Gut für gute Geschäfte!


Arbeiten in Oldenburg – Universitätsstadt und ehemalige Residenzstadt in der Metropolregion Bremen/Oldenburg.


Oldenburg ist mit knapp über 170.000 Einwohnern drittgrößte Stadt und eines der Oberzentren des Landes Niedersachsen. Oldenburg gehört deutschlandweit zu den wenigen Großstädten dieser Größenordnung, die prognostiziert noch weiter wachsen werden. Ein positives Zeichen für den dynamischen Standort an der Hunte.


Oldenburg ist Universitätsstadt mit über 15.000 Studenten. Mit über 15.000 Gewerbebetrieben, drei großen Klinikstandorten, Universität, Fachhochschule, Hanse Law School, European Medical School, Polizeiakademie sowie Niederlassungen diverser Banken und Versicherungen hat sich Oldenburg kontinuierlich zu einem attraktiven Gewerbestandort in Deutschlands Norden entwickelt.


Eingerahmt wird Oldenburg von über 280 Hektar Grün- und Parkanlagen, die der Stadt den Titel „Grüne Stadt im Norden“ verliehen haben!


Sonstige Angaben

///// BESICHTIGUNG & INFORMATIONEN


Einen Besichtigungstermin fragen Sie am besten direkt über "Anbieter Kontaktieren", per Email unter: ingo.eden@eden-ehbrecht-immobilien.de, der Chat-Funktion in unserem interaktiven Exposé oder telefonisch unter 0441-95079877 bei uns an!


///// INTERAKTIVES EXPOSÈ


In unserem interaktiven Exposé können Sie direkt die notwendigen Formalitäten wie Datenschutz und Widerrufsbelehrung mit einfachen Klicks bestätigen, so dass wir uns danach über alle weiteren Einzelheiten des Objektes austauschen können!


///// MIETPREIS


Prinzipiell sind die angegebenen Mietpreise als Basis-Mietpreise pro Quadratmeter mit einem Basis-Ausbaupaket zu verstehen. Der finale Mietpreis wird sich nach individuellen Ausbauwünschen des Mieters und den dazu kalkulierten individuellen Ausbaukosten richten!


Die Ausbaukosten werden auf die Vertragslaufzeit auf die entsprechenden Quadratmeter als Investmiete aufgeschlagen!


Die Mietpreise verstehen sich selbstverständlich Nettokalt zuzüglich gesetzlicher Mehrwertsteuer von derzeit 19%!


///// NICHT VORSTEUERABZUGSFÄHIGE MIETER


Eine Vermietung an NICHT vorsteuerabzugsfähige Unternehmen ist in diesem Objekt prinzipiell umsetzbar. Wir können die Flächen sowohl MIT als auch OHNE Umsatzsteuer anbieten.


Die Miete wird dann als Bruttomiete = Basismiete + gesetzliche Mehrwertsteuer von 19% ausgewiesen.


Ebenso werden die Nebenkosten als Bruttonebenkosten = Nebenkosten + gesetzliche Mehrwertsteuer von 19% ausgewiesen.


///// NEBENKOSTEN


In den angegebenen Nebenkosten, die als monatliche Vorauszahlung mit jährlicher Abrechnung zu leisten sind, sind keine Verbrauchskosten für Strom und Wasser inkludiert!!!


Die Nebenkosten verstehen sich zuzüglich gesetzlicher Mehrwertsteuer.


///// LAUFZEIT MIETVERTRAG


Wir streben prinzipiell langfristige Mietverhältnisse von mindestens 5-10 Jahren an. Die Vertragslaufzeit hängt auch von dem gewünschten Ausbau ab.


///// FERTIGSTELLUNG & MIETBEGINN


Prinzipiell sind die Flächen derzeit im Rohbauzustand. Das gesamte Gebäude wird saniert und auf einen neuen Stand gebracht. Die Flächen werden nach Mieterwünschen ausgebaut!


Ein realistischer Mietbeginn ist somit 2. Quartal 2025, abhängig von den individuellen Flächenwünschen der einzelnen Mieter!!!


///// PROVISION


Wir bieten die Flächen PROVISIONSFREI für unsere Interessenten an!


///// EDEN-EHBRECHT IMMOBILIEN


Aktuell wurden wir vom BVFI - Bundesverband für die Immobilienwirtschaft und der Deutschen Immobilienmesse mit dem IDA Award 2024 ausgezeichnet. Der Award wird für herausragende Dienstleistungen von einer unabhängigen Jury vergeben!


Top 50 Immobilienmakler Deutschlands - In 2017 sind wir vom BVFI - Bundesverband für die Immobilienwirtschaft mit dem IDA Award für besondere Verdienste und innovative Dienstleistungen ausgezeichnet worden!


Mit derzeit über 590 Kundenbewertungen mit im Schnitt 4,64 von 5 Sternen sind wir Oldenburg meist- und bestbewerteter Immobilienmakler.


Unsere Schwerpunkte sind der Verkauf und die Vermietung von Wohnimmobilien und Gewerbeimmobilien in Oldenburg und Umgebung. Egal ob Immobilien zur Kapitalanlage oder Eigennutzung, hochwertige Appartements in besten Lagen oder moderne Gastronomie-, Büro- oder Praxisflächen an attraktiven Standorten.


Seit 1999 unterstützen wir unsere Kunden bei Kauf, Verkauf, Vermietung und Anmietung von Immobilien aller Art. In den letzten 20 Jahren haben wir viele hundert große und kleine Objekte erfolgreich vermittelt.


Wann testen Sie unseren Service? Wir freuen uns auf Sie!


///// HAFTUNGSAUSCHLUSS


Alle Angaben des Angebotes basieren auf Informationen des Auftraggebers oder Dritter. Für die Richtigkeit, Vollständigkeit und Aktualität der gemachten Angaben übernehmen wir keine Gewähr oder Haftung. Das Angebot erfolgt freibleibend. Zwischenverkauf vorbehalten!


Wohnung finden so einfach wie möglich - das ist unsere Mission!

Kostenlose Basic Features

0 € monatlich


  • Individuelles Such-Profil anlegen
  • Suchaufträge speichern
  • One-Klick Kontaktaufnahme

alles anzeigen

Jetzt kostenlos anmelden

Premium Features

19,99 € monatlich


  • Alle kostenlosen Features
  • Smart-Alarm per Whatsapp
  • Deine Chancen checken
  • Wohngegend analysieren

alles anzeigen

Jetzt Premium freischalten

Gewerblicher Anbieter

Eden-Ehbrecht Immobilien & Marketing GbR
Kleine Kirchenstraße 11
26122 Oldenburg

Wohnglück-ID:
Objekt-Nr.:
WGL-267475
115920085#F3U00