Reihenhaus in Lörrach

Einbauküche
Garage/­Stellplatz

Wunderschönes Luxus-Reihenhaus mit Garten und Innenhof in Lörrach

Anfragen bisher

Premium

Meine Chancen

Premium

Fairer Preis

Premium

678.000 €

Kaufpreis

125,98 m²

5 Zi.

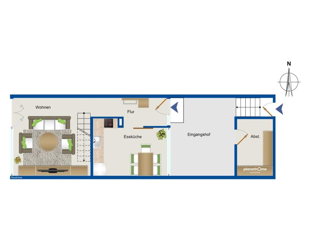
Grundriss

79539 Lörrach

Gewerblicher Anbieter

PlanetHome Group GmbH
Feringastraße 11
85774 Unterföhring

Details

Grundstücksfläche
198 m²
Zimmerzahl
5
Haustyp
Reihenhaus
Etagenzahl
3
Bezugsfrei ab
nach Vereinbarung
Anzahl Badezimmer
2
Anzahl Garage/ Stellplatz
1
Baujahr
1998

Kosten

Kaufpreis
678.000 €
Käuferprovision
3,57 %
Was kostet dein Umzug?

Stellplätze

Stellplatztyp
Carport
Anzahl
1

Objektbeschreibung

Dieses wunderschöne und liebevoll gepflegte Reihenhaus ist eine wahre Wohlfühloase.
Es wurde 2016/2017 komplett mit sehr hochwertigen Materialien und dem Auge fürs Detail saniert.
Seit dem ist es bestens gepflegt worden.
Die Küchengeräte haben teilweise sogar noch Garantie.


Vor dem Haus befindet sich der Carport.
Sie gelangen über eine Treppe in Ihren Innenhof und zu Ihrem großzügigen Abstellraum.
Gleich neben dem Eingang linker Hand befindet sich eine wunderschöne Küche mit Essbereich.
Weiter geradeaus kommt das kleine, aber sehr feine Wohnzimmer mit dem Durchgang zum eigenen Garten.
Über eine (wie alles in diesem Haus) sehr hochwertige Treppe gelangen Sie zu einem Raum mit Waschmaschine und Trockner, einem Luxus-Bad und zwei Schlafzimmern.
Im dritten Geschoss befinden sich das gleiche Luxus-Bad und auch zwei Schlafzimmer.
Klasse Aufteilung. Ideal für Familien, Pendler und jeden, der sich einfach nur wohlfühlen möchte.


INTERESSE? Fordern Sie bei mir mit einem Klick hier das Exposé an, um die Objekt-Adresse zu erhalten und kontaktieren Sie mich dann gerne - auch telefonisch - für einen individuellen Besichtigungstermin.


Bausubstanz & Energieausweis

A+

A

B

C

D

E

F

G

H

Heizungsart
Zentralheizung
Befeuerung
Gasheizung
Energieausweis
vor 1.5.2014
Energieausweistyp
Verbrauchsausweis
Ausstellungsdatum
11.03.2014
Gültig bis
11.03.2024
Energieverbrauchskennwert
90 kWh/(m²*a)
Energieeffizienzklasse
C

Lagebeschreibung

Lörrach ist eine Kreisstadt im Südwesten Baden-Württembergs. Mit ca. 48.000 Einwohnern ist sie die größte Stadt des gleichnamigen Landkreises.
In der näheren Umgebung liegen der Schwarzwald, das Rheintal sowie Weil am Rhein und die Schweizer Großstadt Basel


Das tolle Reihenhaus liegt am Fuße des Hühnerberges in Lörrach.
Sie gelangen fußläufig ins Grüne.
Spielplatz: ca. 65 m
Kindergarten: ca. 1,2 km
Grundschule: ca. 300 m
Weiterführende Schule: ca. 1,9 km
Einkaufsmöglichkeiten: ca. 1,5 km
Öffentliche Verkehrsmittel: ca. 500 m
Stadt Mitte: ca. 2,4 km
Autobahnauffahrt A5: ca. 15 km
B 98: ca. 2 km
Basel: ca. 18 km


Wohnung finden so einfach wie möglich - das ist unsere Mission!

Kostenlose Basic Features

0 € monatlich


  • Individuelles Such-Profil anlegen
  • Suchaufträge speichern
  • One-Klick Kontaktaufnahme

alles anzeigen

Jetzt kostenlos anmelden

Premium Features

19,99 € monatlich


  • Alle kostenlosen Features
  • Smart-Alarm per Whatsapp
  • Deine Chancen checken
  • Wohngegend analysieren

alles anzeigen

Jetzt Premium freischalten

Gewerblicher Anbieter

PlanetHome Group GmbH
Feringastraße 11
85774 Unterföhring

Wohnglück-ID:
Objekt-Nr.:
WGL-231628
189536