Büro / Praxen in Halle (Westfalen) (Halle (Westf.))

Aufzug
Balkon/­Terrasse
Keller

Spektakuläre Bürofläche im Loftstil!

Anfragen bisher

Premium

Meine Chancen

Premium

Fairer Preis

Premium

Kaltmiete

33790 Halle (Westf.)

Gewerblicher Anbieter

VON POLL IMMOBILIEN Halle (Saale) - LFB Immobilien GmbH
Ravensberger Straße 13
33790 Halle (Westf.)

Details

Bürofläche
3.822,71 m²
Typ der Gewerbeimmobilie
Büro / Praxen
Etagenzahl
6
Objektzustand
Nach Vereinbarung
Baujahr
2000

Kosten

Kaltmiete
Was kostet dein Umzug?

Objektbeschreibung

Diese Immobilie wird Ihnen präsentiert von:
Philipp Schremmer & Jan-Phillip Adam
Telefon: 05241 - 21 19 99 0
Mobil: 0171 - 53 99 75 6


Dieses repräsentative Firmengelände spiegelt einen essentiellen Teil der gesamtwirtschaftlichen Entwicklungshistorie Ostwestfalens und besonders der Stadt Halle (Westf.) wider.


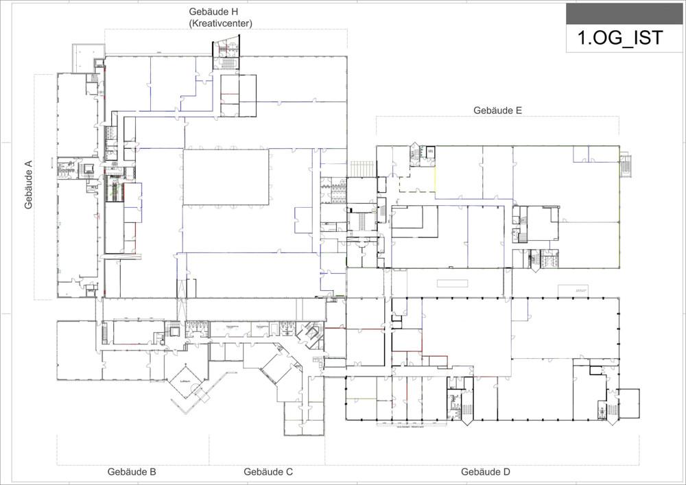
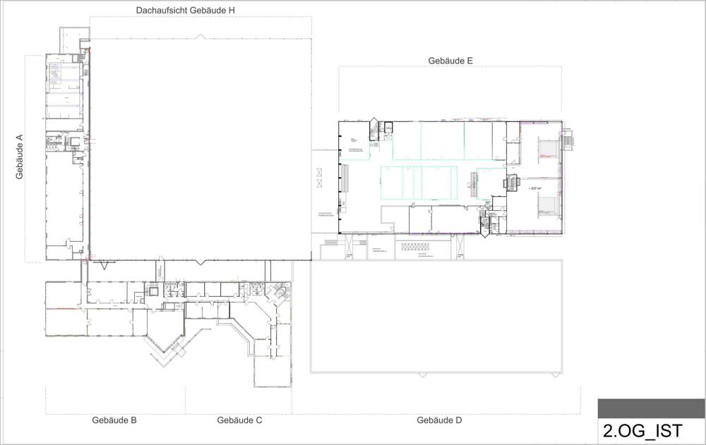
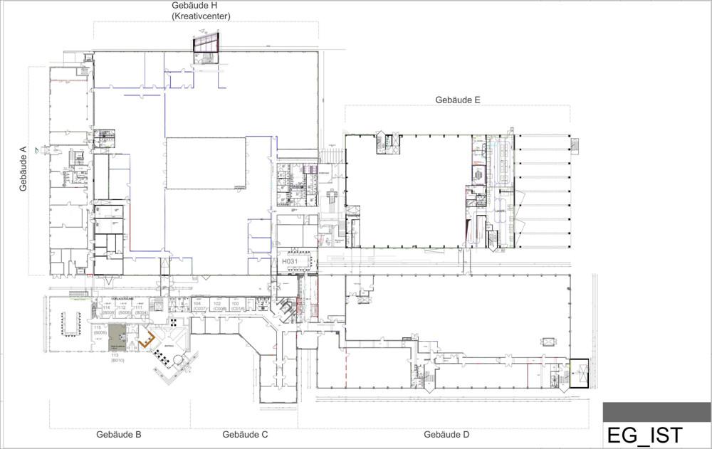
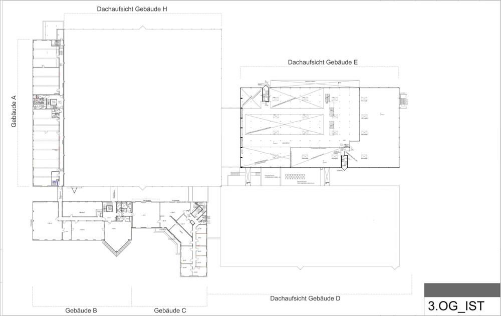
Im Laufe der Jahre sind sechs individuelle Gebäudeeinheiten durch raffinierte Verbindungen zu einem außergewöhnlichen Betriebsgelände gereift und vereinen seither die wichtigsten Standortkriterien für allerart Unternehmen in Perfektion.


Die Ansiedlung von mittelständischen Unternehmen und Großkonzernen der Weltspitze in unmittelbarer Nähe bietet Ihnen die ideale Grundlage Netzwerke auszubauen, Kooperationen einzugehen und Synergien zu nutzen.


Insgesamt stehen ca. 10.890,00 m² Bürofläche zur Verfügung, welche zukünftig durch ein Transponder-Zugangssystem separat betreten werden kann. Über ein internes Buchungssystem haben Sie die Möglichkeit, weitere Konferenz- und Präsentationsräume zu buchen.

Bei Bedarf können zahlreiche Lagerflächen in der benachbarten Lagerhalle und dem Untergeschoss bereitgestellt werden.


Die gesprinklerten Raumstrukturen basieren überwiegend auf Trockenbaukonstruktionen, die flexible Raumaufteilungen - von Einzel- oder Doppelbüro, über Kombilösungen bis hin zu Open-Space - ermöglichen. Die Büroflächen sind auf Ihren Wunsch modern eingerichtet, sodass Sie sich vollständig auf Ihre Marktperformance fokussieren können.


Gesundheitsvorbeugende Lüftungsanlagen, gekühlte Decken, zahlreiche Bodentanks, praktische Empfangs- und Pförtnerdienste, ... - dies ist nur ein kleiner Einblick in die variety of infrastructure and services.


Als corporate benefit steht Ihren Mitarbeiter*innen neben einer gemeinschaftlichen Kantine auch die Nutzung der hausinternen Kindertagesstätte zur Verfügung.


Parkmöglichkeiten sind durch den großzügigen Parkbereich mit vorhandenen Ladestationen gegeben. Feste Stellplätze können gegen eine Monatsmiete von 25,00€/Platz zzgl. MwSt. angemietet werden.


Sind Sie, genauso wie wir, von dieser Immobilie fasziniert? Wir freuen uns auf Ihre Kontaktaufnahme!


Bausubstanz & Energieausweis

A+

A

B

C

D

E

F

G

H

Baujahr
2000
Objektzustand
Nach Vereinbarung
Wesentlicher Energieträger
GAS
Heizungsart
Sonstige
Energieausweis
liegt vor
Energieausweistyp
Bedarfsausweis
Gültig bis
07.11.2026
Energieeffizienzklasse
C

Lagebeschreibung

Das Objekt besticht durch seine zentrale Lage in Halle (Westf.) mitten im Herzen der wirtschaftsstarken Region Ostwestfalen.


Halle (Westf.) hat rund 21.000 Einwohner und liegt im Kreis Gütersloh am Südhang des Teutoburger Waldes.


Sie verfügt neben diversen Einkaufsmöglichkeiten, Ärzten und einem Krankenhaus, auch über ein umfangreiches Sportangebot (Familien- und Freizeitbad, Fitness- und Rehasport, Golfplatz). Kindergärten, Grund- und weiterführende Schulen sind vorhanden, Bus- und Zugverbindungen ideal erreichbar.


Das interkommunale Gewerbegebiet Ravenna Park befindet sich in unmittelbarer Nähe dieses Firmenstandorts. Besonderes Merkmal ist der Direktanschluss an die Autobahn. Seit Ende 2019 verbindet die A33 die Städte Bielefeld und Osnabrück, sowie die paneuropäischen Achsen E 30/ E 34 (A2) und E 37 (A1).


Fachkräfte vieler Industrie- und Dienstleistungsbranchen sind durch das breite Aufgebot an groß- und mittelständischen Unternehmen zahlreich geboten.


Sonstige Angaben

Es liegt ein Energiebedarfsausweis vor.
Dieser ist gültig bis 7.11.2026.
Endenergiebedarf für die Wärme beträgt 48.00 kwh/(m²a).
Endenergiebedarf für den Strom beträgt 43.00 kwh/(m²
a).
Wesentlicher Energieträger der Heizung ist Gas.


GELDWÄSCHE
Als Immobilienmaklerunternehmen ist die von Poll Immobilien GmbH nach § 2 Abs. 1 Nr. 14 und § 11 Abs. 1, 2 Geldwäschegesetz (GwG) dazu verpflichtet, bei der Begründung einer Geschäftsbeziehung die Identität des Vertragspartners festzustellen und zu überprüfen, bzw. sobald ein ernsthaftes Interesse an der Durchführung des Immobilienkaufvertrages besteht. Hierzu ist es erforderlich, dass wir nach § 11 Abs. 4 GwG die relevanten Daten Ihres Personalausweises festhalten (wenn Sie als natürliche Person handeln) – beispielsweise mittels einer Kopie. Bei einer juristischen Person benötigen wir eine Kopie des Handelsregisterauszugs, aus welchem der wirtschaftlich Berechtigte hervorgeht. Das Geldwäschegesetz sieht vor, dass der Makler die Kopien bzw. Unterlagen fünf Jahre aufbewahren muss. Als unser Vertragspartner haben Sie auch ein Mitwirkungspflicht nach § 11 Abs. 6 GwG.


PROVISIONSHINWEIS
Mit der Anfrage bei und durch Inanspruchnahme der Dienstleistung der Firma von Poll Immobilien GmbH, wird ein Maklervertrag geschlossen. Sofern es durch die Tätigkeit der Firma VON POLL IMMOBILIEN GmbH zu einem wirksamen Hauptvertrag mit der Eigentümerseite kommt, hat der Interessent bei Abschluss



  • eines MIETVERTRAGES keine Provision/Maklercourtage an die von Poll Immobilien GmbH zu zahlen.

  • eines KAUFVERTRAGES die ortsübliche Provision/Maklercourtage an die von Poll Immobilien GmbH gegen Rechnung zu zahlen.


HAFTUNG
Wir weisen darauf hin, dass die von uns weitergegebenen Objektinformationen, Unterlagen, Pläne etc. vom Verkäufer bzw. Vermieter stammen. Eine Haftung für die Richtigkeit oder Vollständigkeit der Angaben übernehmen wir daher nicht. Es obliegt daher unseren Kunden, die darin enthaltenen Objektinformationen und Angaben auf ihre Richtigkeit hin zu überprüfen. Alle Immobilienangebote sind freibleibend und vorbehaltlich Irrtümer, Zwischenverkauf- und Vermietung oder sonstiger Zwischenverwertung.


UNSER SERVICE FÜR SIE ALS EIGENTÜMER
Planen Sie den Verkauf oder die Vermietung Ihrer Immobilie, so ist es für Sie wichtig, deren Marktwert zu kennen. Lassen Sie kostenfrei und unverbindlich den aktuellen Wert Ihrer Immobilie professionell durch einen unserer Immobilienspezialisten einschätzen. Unser bundesweites und internationales Netzwerk ermöglicht es uns, Verkäufer bzw. Vermieter und Interessenten bestmöglich zusammenzuführen.


Wohnung finden so einfach wie möglich - das ist unsere Mission!

Kostenlose Basic Features

0 € monatlich


  • Individuelles Such-Profil anlegen
  • Suchaufträge speichern
  • One-Klick Kontaktaufnahme

alles anzeigen

Jetzt kostenlos anmelden

Premium Features

19,99 € monatlich


  • Alle kostenlosen Features
  • Smart-Alarm per Whatsapp
  • Deine Chancen checken
  • Wohngegend analysieren

alles anzeigen

Jetzt Premium freischalten

Gewerblicher Anbieter

VON POLL IMMOBILIEN Halle (Saale) - LFB Immobilien GmbH
Ravensberger Straße 13
33790 Halle (Westf.)

Wohnglück-ID:
Objekt-Nr.:
WGL-183084
21 220 006