Zinshaus / Renditenobjekt in Leipzig (Dölitz-Dösen)

derzeit vermietet
Garage/­Stellplatz

Ca. 8.708 m² gr. Gewerbegrundstück mit 4 Bestandsgebäuden + ca. 1.500 m² Freifläche + 18 SP

Anfragen bisher

Premium

Meine Chancen

Premium

Fairer Preis

Premium

2.980.000 €

Kaufpreis

04279 Leipzig

Gewerblicher Anbieter

IC IMMOCONSULT e.K.
Hillerstraße 3
04109 Leipzig

Details

Grundstücksfläche
8.708 m²
Sonstige Fläche
2.500 m²
Typ der Gewerbeimmobilie
Zinshaus / Renditenobjekt
Etagenzahl
2
Mieteinnahmen pro Monat
13.361,5 €
Bezugsfrei ab
sofort
Anzahl Garage/ Stellplatz
2

Kosten

Kaufpreis
2.980.000 €
Käuferprovision
7,14 %
Der Käufer verpflichtet sich, bei Abschluss eines Kaufvertrags eine einmalige Maklerprovision in o.g. Höhe aus dem Gesamtentgelt für das Auftragsobjekt an den Makler zu zahlen. Die Provision wird bei Vertragsabschluss fällig. Als Vertragsabschluss gilt die Beurkundung des Kaufvertrags.
Was kostet dein Umzug?

Stellplätze

Stellplatztyp
Freiplatz
Anzahl
18
Stellplatztyp
Garage
Anzahl
1

Objektbeschreibung

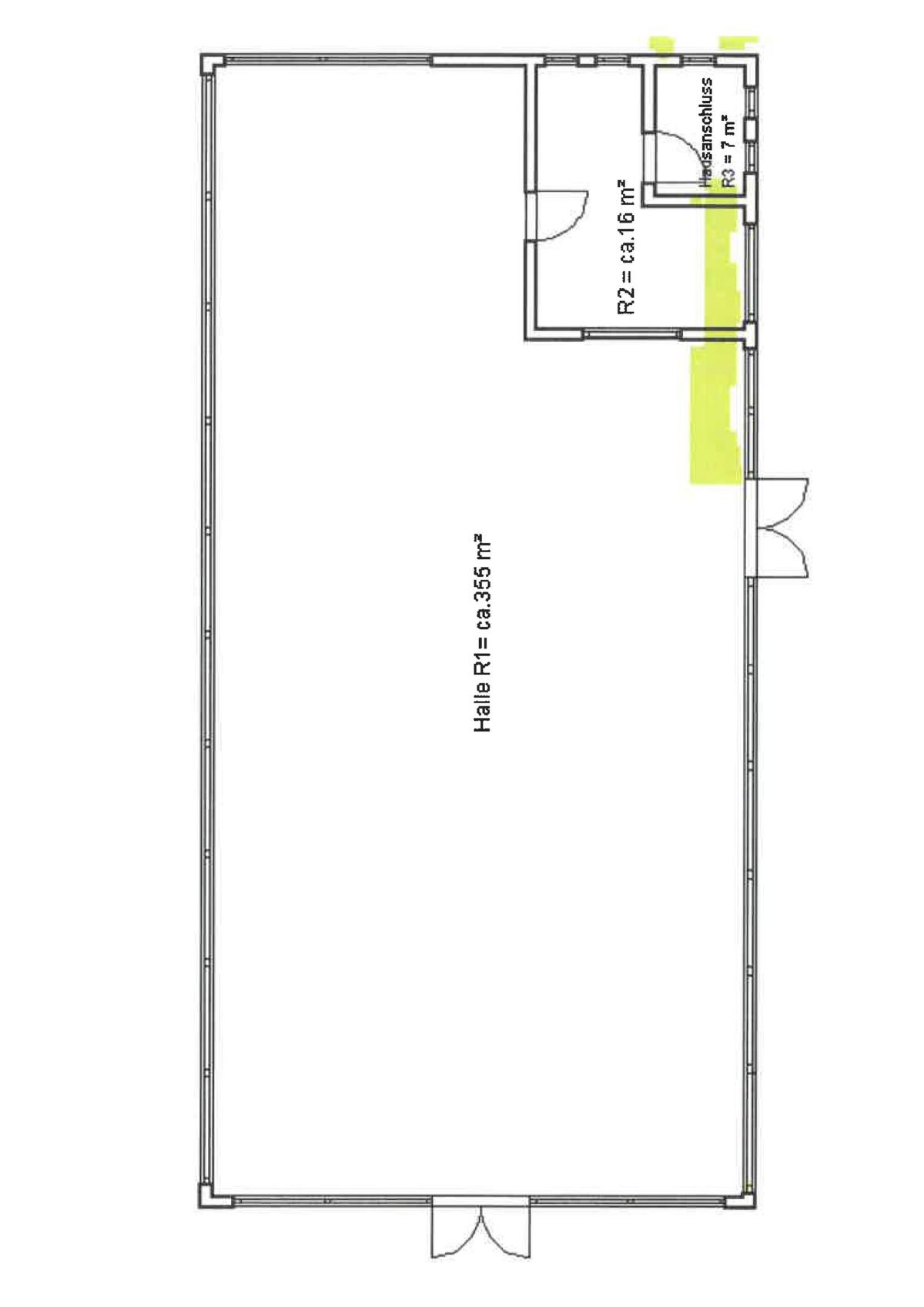
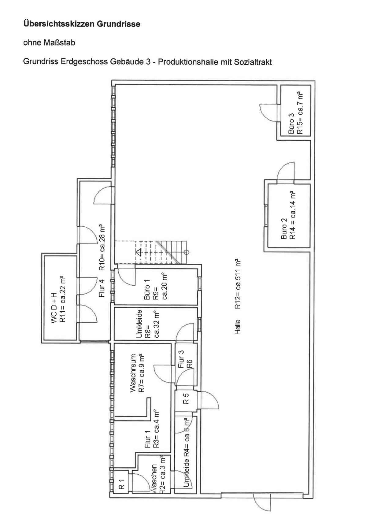
Dieses Investmentangebot bietet eine Gewerbefläche mit 4 Bestandsgebäuden unterschiedlicher Nutzungsart mit einer vermietbaren Gesamtnutzfläche von ca. 3.612 m², einer ca. 1.500 m² großen Freilagerfläche und ca. 18 Stellplätzen auf einer Grundstücksfläche von insges. ca. 8.708 m².


Zusätzlich zu den Bestandsgebäuden verfügt die Immobilie über eine großzügige Freilfläche, die sich ideal für Lager-, Produktions- oder Sportanlagen-Zwecke eignen.


Die Lage der Immobilie ist optimal, da sie gut erreichbar ist und über eine gute Anbindung an das öffentliche Verkehrsnetz verfügt.


Das Gewerbeanwesen ist zu ca. 50 % vermietet und die derzeitigen Einnahmen belaufen sich aktuell auf ca. 130.338,00 € JNKM (Stand 01/2026).
Im Durchschnitt finden ca. 2 Anmietungen/Monat für Events statt - dies ergibt eine zusätzliche JNKM von ca. 30.000,00 €.


Es besteht ein Mietentwicklungs-Potenzial mit den Bestandsmietern.


Aufzählung der Bestandsgebäude (siehe Legende-Flurkarte):
Q - Glas-Halle 2 (teil-vermietet)
R - Büro-/Wohngebäude (vermietet)
S - Halle 3
T - Halle 4


Bausubstanz & Energieausweis

Heizungsart
Sonstige

Ausstattung


  • eingezäuntes Grundstück

  • Grundstück ges. ca. 8.708 m²

  • Bestandsgebäude-Gesamtfläche: ca. 3.612 m²

  • ca. 2.500 m² Freilagerfläche

  • große Einfahrtstore

  • Einbau von elektrischen Rolltor mgl.

  • freistehende Gebäude

  • zum Teil renovierungsbedürftig

  • deaktivierte Heizkörper in Halle 3 & 4 vorhanden

  • ca. 7,50 m - 9 m Hallenhöhe

  • teilweise in den Hallen jeweils eine 2. Ebene vorhanden

  • Sozial-Büro-Lager-Sanitärtrakt jeweils im EG vorhanden

  • ca. 31 m² Einzelgarage an Halle 4

  • idyllische Freiflächen

  • ca. 18 PKW-SP


Lagebeschreibung

Die freistehenden Hallen befinden sich in Leipzig, im Stadtteil Dölitz.


Dölitz ist ein Stadtteil von Leipzig, der 1910 durch die Eingemeindung des Dorfes Dölitz entstand. Seit der kommunalen Neugliederung von Leipzig im Jahre 1992 bildet Dölitz mit Dösen den Ortsteil Dölitz-Dösen und liegt knapp 6 km südlich des Leipziger Stadtzentrums am östlichen Rand der Pleißenaue.


Die Anbindung an öffentliche Nahverkehrsmittel (Straßenbahn + Bus) befindet sich in ca. 500 m.


In ca. 350 m befindet sich fußläufig der nä. Einkaufsmarkt.


In ca. 2 km Entfernung liegt das Agra-Gelände und in ca.150 m der Erholungspark Lößnig-Dölitz mit dem beliebten kleinen und großen Silbersee.


Die B2 und A38 liegen ca. 5 Autominuten entfernt.


Sonstige Angaben

Die von uns gemachten Angaben haben wir nach bestem Wissen und Gewissen nach Informationen des Vermieters/Verkäufers und den uns übergebenen Informationen zusammengestellt. Eine Gewähr für diese Angaben können wir nicht übernehmen. Wichtige Zahlen und Informationen sind am Objekt zu überprüfen. Zwischenvermietung/Verkauf bleibt vorbehalten.


Wohnung finden so einfach wie möglich - das ist unsere Mission!

Kostenlose Basic Features

0 € monatlich


  • Individuelles Such-Profil anlegen
  • Suchaufträge speichern
  • One-Klick Kontaktaufnahme

alles anzeigen

Jetzt kostenlos anmelden

Premium Features

19,99 € monatlich


  • Alle kostenlosen Features
  • Smart-Alarm per Whatsapp
  • Deine Chancen checken
  • Wohngegend analysieren

alles anzeigen

Jetzt Premium freischalten

Gewerblicher Anbieter

IC IMMOCONSULT e.K.
Hillerstraße 3
04109 Leipzig

Wohnglück-ID:
Objekt-Nr.:
WGL-1224175
302k109#L48r42