Mehrfamilienhaus in Winsen (Luhe)

Balkon/­Terrasse
Garten/­-mitbenutzung
Keller
Einbauküche
Garage/­Stellplatz

Zweifamilienhaus oder Mehrgenerationswohnen?

Anfragen bisher

Premium

Meine Chancen

Premium

Fairer Preis

Premium

462.500 €

Kaufpreis

180 m²

7 Zi.

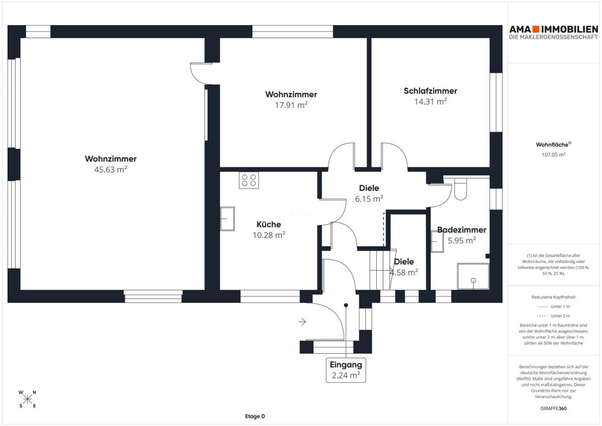
Grundriss

21423 Winsen(Luhe)

Gewerblicher Anbieter

AMA Immobilien GmbH
Bei den Teichen 35
21339 Lüneburg

Details

Grundstücksfläche
600 m²
Zimmerzahl
7
Haustyp
Mehrfamilienhaus
Bezugsfrei ab
Nach Absprache
Anzahl Schlafzimmer
4
Anzahl Badezimmer
2
Anzahl Garage/ Stellplatz
1
Objektzustand
Modernisiert
Letzte Modernisierung/ Sanierung
2020
Baujahr
1962

Kosten

Kaufpreis
462.500 €
Käuferprovision
3,57% inkl 19% MwSt
Der Makler-Vertrag mit uns kommt durch die Bestätigung der Inanspruchnahme unserer Maklertätigkeit in Textform zustande. Die Höhe der Courtage beträgt für beide Parteien (Eigentümer und Käufer) jeweils 3,57 % auf den Kaufpreis inklusive gesetzlicher Mehrwertsteuer und ist bei notariellem Vertragsabschluss verdient und fällig. Die Höhe der Bruttocourtage unterliegt einer Anpassung bei Steuersatzänderung. Grunderwerbssteuer, Notar- und Gerichtskosten trägt der Käufer.
Was kostet dein Umzug?

Stellplätze

Stellplatztyp
Garage
Anzahl
2

Objektbeschreibung

Dieses gepflegte Zweifamilienhaus in Winsen (Luhe) bietet auf einer Wohnfläche von rund 180 m² viel Platz für zwei Parteien oder für die Nutzung als großzügiges Mehrgenerationenhaus. Verteilt auf insgesamt 7 Zimmer, darunter 4 Schlafzimmer und 2 Bäder, bietet das Objekt eine durchdachte Raumaufteilung, die sowohl gemeinsames als auch eigenständiges Wohnen ermöglicht.
Die Wohnung im Erdgeschoss misst 107 m² und die Wohnung im Dachgeschoss 73 m², das Haus ist voll unterkellert.


Die Wohnung im Dachgeschoss wurde umfassend modernisiert und präsentiert sich heute in einem zeitgemäßen und gepflegten Zustand. Die Bodenbeläge wurden sorgfältig auf die jeweiligen Bereiche abgestimmt: Fliesen sorgen in den Nassräumen für Langlebigkeit und Pflegeleichtigkeit, während Parkett und Vinylboden in den Wohn- und Schlafbereichen für ein angenehmes Wohngefühl sorgen.


Für wohlige Wärme sorgt nicht nur die Zentralheizung mit Ölfeuerung, sondern auch ein Kamin, der in den kälteren Monaten eine gemütliche Atmosphäre schafft. Beide Einheiten verfügen über eine praktische Einbauküche, die eine sofortige Nutzung ohne zusätzliche Investitionen ermöglicht.


Das Grundstück mit einer Fläche von rund 600 m² bietet ausreichend Platz für einen gepflegten Garten, der zur Erholung und zum Entspannen im Freien einlädt. Weitere praktische Vorzüge sind eine Garage, ein Keller sowie ein Abstellraum, die zusätzlichen Stauraum und Abstellmöglichkeiten bieten.


Bausubstanz & Energieausweis

A+

A

B

C

D

E

F

188,2 kWh/(m²*a)

G

H

Objektzustand
Modernisiert
Letzte Modernisierung
2020
Wesentlicher Energieträger
Öl
Heizungsart
Zentralheizung
Befeuerung
Ölheizung
Energieausweis
liegt vor
Energieausweistyp
Bedarfsausweis
Ausstellungsdatum
06.04.2026
Gültig bis
05.04.2036
Energieeffizienzklasse
F
Endenergiebedarf
188,2 kWh/(m²*a)

Ausstattung


  • Wohnfläche Erdgeschoss 107 m² und Dachgeschoss 73 m²

  • Voll unterkellert

  • Modernisierte Duschbäder

  • Großes Wohnzimmer

  • Fernsehzimmer mit Kamin

  • Balkon

  • Garage und Tiefgarage


Lagebeschreibung

Luhdorf – Naturnahes Wohnen mit perfekter Anbindung


Das Haus befindet sich im idyllischen Ortsteil Luhdorf der Stadt Winsen (Luhe) – einer Region, die ländliche Ruhe mit urbaner Erreichbarkeit auf harmonische Weise verbindet. Eingebettet in die reizvolle Natur der Lüneburger Heide und unweit der Luhe gelegen, bietet diese ruhige Wohnlage ein hohes Maß an Lebensqualität für Familien, Naturliebhaber und alle, die dem Alltagstrubel entfliehen möchten.


Die Umgebung lädt zu ausgedehnten Spaziergängen, Radtouren und Freizeitaktivitäten in der freien Natur ein. Gleichzeitig sind die Infrastruktur und die Versorgungseinrichtungen der Kernstadt Winsen (Luhe) in wenigen Autominuten bequem erreichbar. Dort finden sich Einkaufsmöglichkeiten, Schulen aller Klassenstufen, Ärzte sowie zahlreiche weitere Dienstleistungen des täglichen Bedarfs.


Für Pendler ist die Lage besonders attraktiv: Die Metropolregion Hamburg ist über die nahegelegene Bundesstraße sowie den Bahnanschluss in Winsen (Luhe) gut erreichbar und macht diese Adresse zu einem idealen Rückzugsort im Grünen – mit der Großstadt stets in greifbarer Nähe.


Wohnung finden so einfach wie möglich - das ist unsere Mission!

Kostenlose Basic Features

0 € monatlich


  • Individuelles Such-Profil anlegen
  • Suchaufträge speichern
  • One-Klick Kontaktaufnahme

alles anzeigen

Jetzt kostenlos anmelden

Premium Features

19,99 € monatlich


  • Alle kostenlosen Features
  • Smart-Alarm per Whatsapp
  • Deine Chancen checken
  • Wohngegend analysieren

alles anzeigen

Jetzt Premium freischalten

Gewerblicher Anbieter

AMA Immobilien GmbH
Bei den Teichen 35
21339 Lüneburg

Wohnglück-ID:
Objekt-Nr.:
WGL-1213460
5170271