Reihenhaus in Hamburg (Volksdorf)

Balkon/­Terrasse
Garten/­-mitbenutzung
Gäste WC
Keller
Einbauküche

Volksdorfer Herzstück mit tollem Grundriss

Anfragen bisher

Premium

Meine Chancen

Premium

Fairer Preis

Premium

590.000 €

Kaufpreis

104 m²

4 Zi.

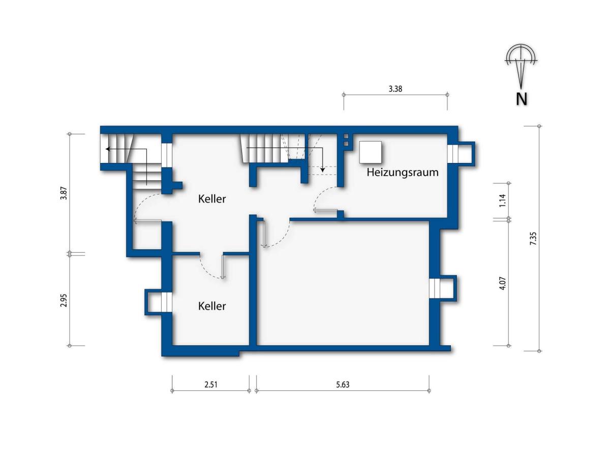
Grundriss

22359 Hamburg

Gewerblicher Anbieter

HBF Immobilien
Lademannbogen 124
22339 Hamburg

Details

Grundstücksfläche
228 m²
Zimmerzahl
4
Haustyp
Reihenhaus
Etagenzahl
2
Anzahl Badezimmer
1
Letzte Modernisierung/ Sanierung
2017
Baujahr
1966

Kosten

Kaufpreis
590.000 €
Käuferprovision
3,57% inkl. Mwst.
Die Gesamtprovision in Höhe von 7,14% inkl. Mwst. wird hälftig auf Käufer und Verkäufer aufgeteilt.
Was kostet dein Umzug?

Objektbeschreibung

Hier erwartet Sie Ihr neues Zuhause mit einer Breite von 7,35m - also gar nicht typisch Reihenhaus. Die Räume sind entsprechend großzügig und hell und eher quadratisch als schlauchig geschnitten. Im Erdgeschoss finden Sie neben Küche, Wohn- und Esszimmer eine Garderobe und ein Gäste-WC.
Im Obergeschoss finden Sie 3 schöne Zimmer und ein Wannenbad.
Eine 2017 eingebaute Treppe führt zum ausgebauten und gedämmten Spitzboden, der vielseitig nutzbar ist.


Nach und nach wurden in diesem Haus bereits Modernisierungsmaßnahmen durchgeführt. So ist die Heizung aus 2008 und der Ausbau des Spitzbodens erfolgte 2017.


Zur Grundstücksfläche von 228m² gehört Ihnen des Weiteren ein 1/14 Miteigentumsanteil an dem 416m² großem Garagengrundstück.


Bausubstanz & Energieausweis

A+

A

B

C

D

E

F

G

204,7 kWh/(m²*a)

H

Letzte Modernisierung
2017
Wesentlicher Energieträger
Gas
Heizungsart
Zentralheizung
Befeuerung
Gasheizung
Energieausweis
liegt vor
Energieausweistyp
Bedarfsausweis
Ausstellungsdatum
16.02.2026
Gültig bis
15.02.2036
Energieeffizienzklasse
G
Endenergiebedarf
204,7 kWh/(m²*a)

Ausstattung

Erdgeschoss:
Parkettboden Eiche-Mosaik
Holzfenster mit Doppelverglasung (1992)
Glatt verputzte Wände im Wohn- und Esszimmer (2008)
Parkettboden Eiche-Mosaik im Wohn- und Esszimmer
Sonnige Süd-West-Terrasse über die gesamte Hausbreite
Ost-Terrasse vor dem Hauseingang für gemütliche Frühstücksstunden


Obergeschoss:
Holzfenster mit Doppelverglasung (1992)
Eichenparkett (2015) auf der gesamten Ebene (außer im Bad)
Schlafzimmer 19m², Kinderzimmer 13m², Arbeitszimmer 9 m²
Glatt verputzte Wände in den Zimmern
Wannenbad (2008)


Treppenhaus zum Spitzboden (2017)
3 Veluxfenster (2017)
Dämmung (2017)
Maximale Höhe: 1,90
nicht in der Wohnfläche berücksichtigt


Keller:
Gaszentralheizung (2008)
Lagerraum
großer Hobbyraum
Die westliche Kellerwand wurde 2025 neu isoliert und gedämmt.


Lagebeschreibung

Die Lage Ihres neuen Zuhauses vereint das Beste aus zwei Welten:
Ruhiges, naturnahes Wohnen im Grünen und gleichzeitig eine hervorragende Infrastruktur für Familien.
Kurze Wege zu Kitas und Schulen, vielfältige Einkaufsmöglichkeiten sowie ein breites Freizeitangebot machen diese Lage zu einem idealen Lebensmittelpunkt – besonders für Familien, die Wert auf Sicherheit, Bildung und Lebensqualität legen.
Die Lage überzeugt durch ein breites Bildungsangebot in direkter Umgebung:


Kitas / frühkindliche Betreuung:
In unmittelbarer Nähe befindet sich z. B. die Kita im Ferckschen Hof - Hamburger Schulverein – ideal für kurze Wege im Alltag.


Grund- und weiterführende Schulen:
Die Grundschule Eulenkrugstraße ist nur 600m entfernt. Die weiterführenden Schulen befinden sich im Umkreis von ca 1,5 km.


Zur nächsten Bushaltestelle sind es nur 300 m.
Der U-Bahnhof Volksdorf ist weniger als 2 km entfernt. Von dort fährt die U1 Linie im Takt in die Hamburger Innenstadt.


Wohnung finden so einfach wie möglich - das ist unsere Mission!

Kostenlose Basic Features

0 € monatlich


  • Individuelles Such-Profil anlegen
  • Suchaufträge speichern
  • One-Klick Kontaktaufnahme

alles anzeigen

Jetzt kostenlos anmelden

Premium Features

19,99 € monatlich


  • Alle kostenlosen Features
  • Smart-Alarm per Whatsapp
  • Deine Chancen checken
  • Wohngegend analysieren

alles anzeigen

Jetzt Premium freischalten

Gewerblicher Anbieter

HBF Immobilien
Lademannbogen 124
22339 Hamburg

Wohnglück-ID:
Objekt-Nr.:
WGL-1212842
Objekt-Nr. 72083