Einfamilienhaus freistehend in Hamburg (Bergedorf)

EinbaukĂĽche
Garage/­Stellplatz

Exklusives Wohnen im Villenviertel: "Einfamilienhaus in einer der schönsten Lagen Bergedorfs"

Anfragen bisher

Premium

Meine Chancen

Premium

Fairer Preis

Premium

1.195.000 â‚¬

Kaufpreis

175 m²

5,5 Zi.

Grundriss

21029 Hamburg

Gewerblicher Anbieter

PIPPING Immobilien GmbH & Co. KG - Filiale Reinbek
BahnhofstraĂźe 12
21465 Reinbek

Details

Grundstücksfläche
651 m²
Zimmerzahl
5,5
Haustyp
Einfamilienhaus freistehend
Anzahl Garage/ Stellplatz
1
Objektzustand
Gepflegt
Baujahr
1927

Kosten

Kaufpreis
1.195.000 €
Käuferprovision
3,125 % inkl. USt.
Was kostet dein Umzug?

Stellplätze

Stellplatztyp
Garage
Anzahl
1

Objektbeschreibung

Dieses charmante Einfamilienhaus im klassischen Landhausstil verbindet historische Architektur mit liebevollen Modernisierungen und einem besonderen Wohnambiente.


• Baujahr 1927 in massiver Bauweise
• Stilvolle Fassade aus norddeutschem Verblendklinker ("Rotbunt")
• Dekorative Mauerlisenen und Zierverbände für zeitlose Eleganz
• Charakteristisches Krüppelwalmdach kombiniert mit Pultdach
• Kontinuierliche Erweiterungen (u. a. Terrasse 1932, Garage 1935)
• Seit 1988 fortlaufend modernisiert und gepflegt
• Erneuerte Elektrik und verbesserte Dachdämmung
• Hochwertige Holzsprossenfenster mit Isolierverglasung
• Moderne Gasbrennwertheizung
• Photovoltaikanlage zur nachhaltigen Energiegewinnung
• Großzügiger, beheizbarer Wintergarten über drei Ebenen (Baujahr 1999)
• Ca. 175 m² Wohn- und Nutzfläche
• Insgesamt 5,5 Zimmer zzgl. Wintergarten
• Ausbaureserve im Spitzboden
• Vollkeller mit separatem Außenzugang
• Zusätzliches Gartenhaus für weitere Nutzungsmöglichkeiten


Bausubstanz & Energieausweis

A+

A

B

C

D

E

F

G

208,8 kWh/(m²*a)

H

Baujahr
2007
Objektzustand
Gepflegt
Wesentlicher Energieträger
Gas
Heizungsart
Gasheizung
Befeuerung
Gasheizung
Energieausweistyp
Bedarfsausweis
GĂĽltig bis
20.03.2036
Energieeffizienzklasse
G
Endenergiebedarf
208,8 kWh/(m²*a)

Ausstattung

Der Innenbereich dieses Hauses begeistert mit liebevoll erhaltenem Altbaucharme, hochwertigen Details und einer durchdachten Raumaufteilung ĂĽber mehrere Ebenen.


• Einladender Windfang mit Zugang zum Garderobenbereich
• Maßgefertigte Einbauten und Gäste-WC auf Eingangsebene
• Erdgeschoss über wenige Stufen erreichbar (Split-Level-Charakter)
• Klassische Altbauelemente wie Fischgrätparkett, originale Türen und Zargen
• Elegante Hohlkehlen und verputzte Wände
• Harmonische Sichtachsen und sehr guter Lichteinfall
• Großzügiger, lichtdurchfluteter Wohnbereich als Mittelpunkt
• Separierbarer Essbereich durch stilvolle Schiebetür
• Weiteres Zimmer auf dieser Ebene (ideal als Büro oder Gästezimmer)
• Zugang zur erhöhten Terrasse mit Markise und Gartenanbindung
• Hochwertiger Wintergarten über drei Ebenen mit besonderem Wohnambiente
• Küche mit praktischer Speisekammer
• Moderne Einbauküche (Marke Leicht, 2007) in zeitlosem Design
• Historische Holztreppe mit Mittelpodest ins Dachgeschoss
• Dachgeschoss mit hochwertigen Pitchpine-Dielen
• Großzügiges Schlafzimmer mit Einbauschrank und en-Suite Vollbad
• Großes Kinderzimmer mit Zugang zu einem Balkon
• Zusätzliches halbes Zimmer flexibel nutzbar
• Vollunterkellerter Altbauteil
• Heizungsraum mit Dusche und Waschbecken
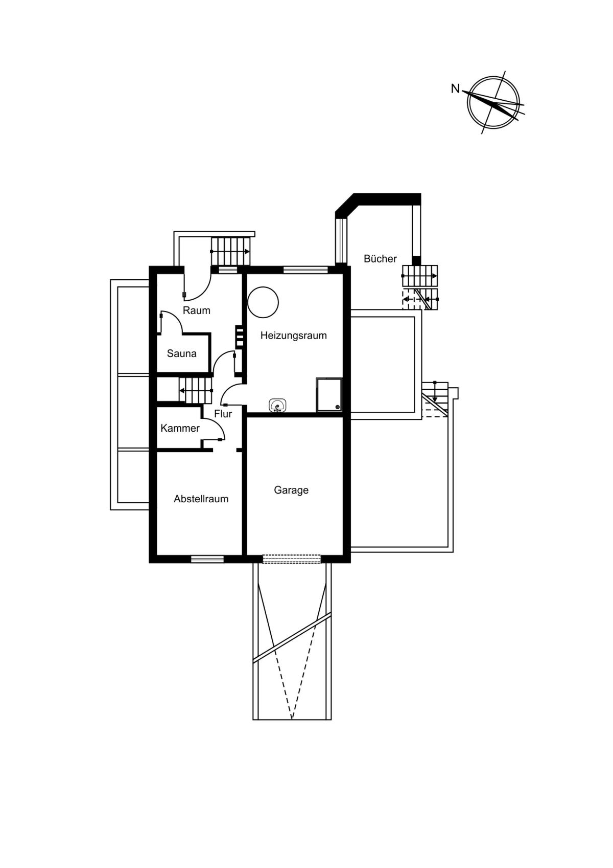
• Abstellraum, Kammer sowie weiterer Raum mit Sauna
• Außenzugang vom Kellerbereich vorhanden


Lagebeschreibung

Die angebotene Immobilie befindet sich im renommierten und begehrten Bergedorfer Villenviertel. Dieses gewachsene Wohngebiet zeichnet sich durch seine ruhige, grüne und zugleich repräsentative Umgebung aus und zählt seit jeher zu den bevorzugten Adressen im Hamburger Osten.


Das unmittelbare Umfeld ist geprägt von stilvollen Villen sowie charmanten und gepflegten Einfamilienhäusern auf großzügigen Grundstücken. Alte Baumbestände, wenig Durchgangsverkehr und eine angenehme Nachbarschaft schaffen eine hohe Lebensqualität sowie ein hohes Maß an Privatsphäre. Trotz der idyllischen und ruhigen Lage profitieren Sie von einer hervorragenden Infrastruktur. Die Bergedorfer Innenstadt mit ihrer attraktiven Fußgängerzone, vielfältigen Einkaufsmöglichkeiten, Restaurants, Cafés sowie sämtlichen Einrichtungen des täglichen Bedarfs ist in wenigen Gehminuten erreichbar. Auch das beliebte Schloss Bergedorf sowie die angrenzenden Grün- und Wasserflächen laden zu Spaziergängen und Freizeitaktivitäten ein.


Familien finden ein breites Angebot an Kindergärten, Schulen sowie weiterführenden Bildungseinrichtungen in unmittelbarer Umgebung. Die medizinische Versorgung ist ebenfalls hervorragend gewährleistet.


Die Anbindung an den öffentlichen Nahverkehr ist optimal: Der S-Bahnhof Bergedorf (S2/S21) ermöglicht eine schnelle Verbindung in die Hamburger Innenstadt. Auch mit dem Auto ist die Hamburger City sowie das Umland über die B5 und die nahegelegenen Autobahnen zügig erreichbar.


Insgesamt bietet diese Lage eine seltene Kombination aus urbaner Nähe, naturnahem Wohnen und repräsentativem Umfeld – ideal für anspruchsvolle Käufer, die Wert auf Ruhe, Qualität und eine erstklassige Adresse legen.


Sonstige Angaben

Das liebevoll gestaltete Grundstück überzeugt mit einer harmonischen Einbindung in die gewachsene Nachbarschaft und bietet eine grüne Oase mit hoher Aufenthaltsqualität.


• Eingebettet in eine gewachsene, hochwertige Nachbarschaft in Bergedorf
• Großzügiger Garten mit vielfältigen Nutzungsmöglichkeiten
• Liebevoll angelegte Gartenlandschaft mit altem Baumbestand
• Geschmackvolle Beete und Rabatten
• Mehrere Sitzmöglichkeiten für entspannte Stunden im Freien
• Großzügiger Wintergarten als Verbindung zwischen Innen- und Außenbereich
• Ganzjähriger Blick ins Grüne
• Gartenhaus für Gartengeräte und zusätzliche Abstellmöglichkeiten
• Kombination aus Erholung, Wohnqualität und repräsentativem Umfeld


Wohnung finden so einfach wie möglich - das ist unsere Mission!

Kostenlose Basic Features

0 € monatlich


  • Individuelles Such-Profil anlegen
  • Suchaufträge speichern
  • One-Klick Kontaktaufnahme

alles anzeigen

Jetzt kostenlos anmelden

Premium Features

19,99 € monatlich


  • Alle kostenlosen Features
  • Smart-Alarm per Whatsapp
  • Deine Chancen checken
  • Wohngegend analysieren

alles anzeigen

Jetzt Premium freischalten

Gewerblicher Anbieter

PIPPING Immobilien GmbH & Co. KG - Filiale Reinbek
BahnhofstraĂźe 12
21465 Reinbek

WohnglĂĽck-ID:
Objekt-Nr.:
WGL-1208896
RH-266212963