Zinshaus / Renditenobjekt in Bexbach (Oberbexbach)

Dachboden
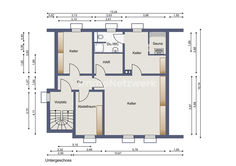
Keller

Einfamilienhaus mit toller Gartenanlage und vielseitig nutzbarer Lagerhalle im Gewerbegebiet

Anfragen bisher

Premium

Meine Chancen

Premium

Fairer Preis

Premium

778.000 €

Kaufpreis

173 m²

10 Zi.

Grundriss

66450 Bexbach

Gewerblicher Anbieter

Jochen Mayer
Am Südhang 12a
66916 Dunzweiler

Details

Grundstücksfläche
3.249 m²
Zimmerzahl
10
Typ der Gewerbeimmobilie
Zinshaus / Renditenobjekt
Etagenzahl
2
Nutzfläche
643,44 m²
Objektzustand
Gepflegt
Baujahr
1987

Kosten

Kaufpreis
778.000 €
Käuferprovision
3.57% (inkl. MwSt.)
Was kostet dein Umzug?

Objektbeschreibung

Zum Verkauf steht ein großzügiges Einfamilienhaus mit Werkshalle auf einem 3249m² großen Grundstück im Gewerbegebiet. Das Haus wurde 1987 erbaut und bietet eine Wohnfläche von 173 Quadratmetern, verteilt auf zwei lichtdurchflutete Etagen.


Das Herzstück des Hauses bildet das geräumige Wohnzimmer. Von hier aus gelangen Sie auf die sonnige Terrasse mit Gartenhäuschen und in den gepflegten Garten, welcher eine freie Sicht auf die umliegende Region bietet. Beide Etagen verfügen über ein eigenes Bad, und der teilunterkellerte Bereich bietet zusätzlichen Stauraum. Ein besonderes Highlight ist die hauseigene Sauna, die zum Entspannen einlädt. Für zusätzliche Abstellfläche sorgt der ausgebaute Dachboden.


Beheizt wird das Haus durch eine energieeffiziente Wärmepumpe, die für angenehme Temperaturen sorgt und gleichzeitig die Energiekosten niedrig hält. Der Keller bietet mit 4 Räumen + Bad genug Raum zur Hobbyentfaltung und Stauraum. Im Obergeschoss bietet die Dachgaube einen überdachten Balkon mit Weitblick. Die Böden sind zum Großteil gefliest und einzelne Räume wurden mit Parket ausgelegt.


Auf dem Grundstück befindet sich neben dem Einfamilienhaus einige Garagen sowie eine große Lagerhalle, die derzeit als Steinmetz- und Bildhauerbetrieb genutzt wird. Die Halle ist vielseitig nutzbar und verfügt über ein eigenes Bad und eine Küche, was sie ideal für eine gewerbliche Nutzung macht.


Die Kombination aus großzügigem Wohnhaus und geräumiger Gewerbefläche auf einem weitläufigen Grundstück bietet vielfältige Möglichkeiten für Wohnen und Arbeiten unter einem Dach. Eine Besichtigung wird Sie von den Vorzügen dieser einzigartigen Immobilie überzeugen.


Bausubstanz & Energieausweis

A+

A

B

C

76,9 kWh/(m²*a)

D

E

F

G

H

Baujahr
1987
Objektzustand
Gepflegt
Wesentlicher Energieträger
ALTERNATIV
Heizungsart
Wärmepumpe
Befeuerung
Wärmepumpe
Energieausweis
liegt vor
Energieausweistyp
Bedarfsausweis
Gültig bis
30.10.2034
Energieverbrauchskennwert
76 kWh/(m²*a)
Energieeffizienzklasse
C
Endenergiebedarf
76,9 kWh/(m²*a)
Energieverbrauch für Warmwasser enthalten
Ja

Ausstattung

Besonderheiten:



  • Wärmepumpe

  • Dachgaube

  • Terrasse mit Gartenhaus

  • Sauna

  • Helle, lichtdurchflutete Räume

  • Teilunterkellert

  • mehrere Bäder

  • großes Grundstück

  • mehrere Garagen

  • Große Lagerhalle mit Büro

    • Bad und Küche in der Lagerhalle

    • Keller im Lager




Lagebeschreibung

Lage: Die Stadt Bexbach liegt im Saarland, nahe der Grenze zu Rheinland-Pfalz und ist Teil des Saarpfalz-Kreises. Die Kreisstadt Homburg ist nur etwa 10 km entfernt und bietet eine Vielzahl an Einkaufs- und Unterhaltungsmöglichkeiten.


Verkehrsanbindung: Bexbach ist verkehrstechnisch gut angebunden. Die Autobahn A6 (Saarbrücken - Mannheim) verläuft direkt am Ort und ist über die Anschlussstelle Homburg (ca. 5 km entfernt) leicht zu erreichen. Auch die Bundesstraßen B423 und B41 führen durch das Stadtgebiet und verbinden Bexbach mit den umliegenden Ortschaften. Vom Bahnhof Bexbach verkehren auf der Strecke Homburg–Neunkirchen ganztägig Regionalzüge nach Homburg sowie in Gegenrichtung nach Neunkirchen (Saar), Illingen (Saar) und zeitweise auch umsteigefrei nach Saarbrücken. Sie ermöglichen so eine Anbindung an den Fernverkehr der Deutschen Bahn.


Einkaufsmöglichkeiten: In Bexbach selbst finden Sie verschiedene Geschäfte für den täglichen Bedarf, darunter Supermärkte, Bäckereien, Metzgereien und Apotheken. Für ausgiebigere Einkäufe bietet die nahegelegene Kreisstadt Homburg eine breite Auswahl an Fachgeschäften, Boutiquen und einem Einkaufszentrum.


Bildungseinrichtungen: Bexbach verfügt über mehrere Kindergärten und Grundschulen. Weiterführende Schulen wie Realschulen und Gymnasien befinden sich in den nahen Städten Homburg und Neunkirchen. Die Universität des Saarlandes mit ihren Standorten in Saarbrücken und Homburg ist ebenfalls gut erreichbar.


Freizeit und Erholung: Die Stadt Bexbach bietet verschiedene Möglichkeiten zur Freizeitgestaltung. Zahlreiche Vereine, darunter Sport-, Musik- und Kulturvereine, bereichern das gesellschaftliche Leben. Für Erholungssuchende laden die umliegenden Wälder zu ausgedehnten Spaziergängen und Wanderungen ein. Auch der nahegelegene Jägersburger Wald mit seinem Wildpark ist ein beliebtes Ausflugsziel für Familien.


Sonstige Angaben

Besichtigungstermine sind nach Absprache werktags ab 17 Uhr oder am Wochenende zeitnah möglich.


Wir bitten höflichst auf persönliche Anfragen bei den Eigentümern und aus Rücksicht auf den Geschäftsbetrieb abzusehen. Besten Dank für Ihr Verständnis.


Die Käuferprovision beträgt 3,57 % des Kaufpreises inklusive 19% gesetzlicher Mehrwertsteuer. Die Provision ist mit notariellem Kaufvertragsabschluss verdient und nach Rechnungsstellung an uns zu zahlen. Die Weitergabe des Exposés an einen Dritten entbindet nicht von der Provisionspflicht dieses Angebots.


Alle Angaben sind ohne Gewähr und basieren ausschließlich auf Informationen, die uns von unserem Auftraggeber zur Verfügung gestellt wurden. Wir übernehmen keine Gewähr für die Vollständigkeit, Richtigkeit und Aktualität dieser Angaben. Die Grundrisse sind nicht maßstabsgetreu und dienen lediglich der Veranschaulichung. Das vorliegende Exposé ist als unverbindliche Information zu verstehen und kann nicht als Rechtsgrundlage herangezogen werden. Rechtskräftig ist ausschließlich der notariell abgeschlossene Kaufvertrag.


Für einen Besichtigungstermin und alle Informationen zur betreffenden Immobilie nutzen Sie einfach das obenstehende Kontaktformular. Bitte beachten Sie, dass wir nur Anfragen mit vollständig angegebenen Kontaktdaten (Name, Anschrift, Telefonnummer, E-Mail) bearbeiten können.


Ein aktueller Energieausweis wird bei der Besichtigung vorgelegt.


Wohnung finden so einfach wie möglich - das ist unsere Mission!

Kostenlose Basic Features

0 € monatlich


  • Individuelles Such-Profil anlegen
  • Suchaufträge speichern
  • One-Klick Kontaktaufnahme

alles anzeigen

Jetzt kostenlos anmelden

Premium Features

19,99 € monatlich


  • Alle kostenlosen Features
  • Smart-Alarm per Whatsapp
  • Deine Chancen checken
  • Wohngegend analysieren

alles anzeigen

Jetzt Premium freischalten

Gewerblicher Anbieter

Jochen Mayer
Am Südhang 12a
66916 Dunzweiler

Wohnglück-ID:
Objekt-Nr.:
WGL-1208498
BEX-WuW