Einfamilienhaus freistehend in Lampertheim

Balkon/­Terrasse
Garten/­-mitbenutzung
Gäste WC
Keller
Einbauküche
Garage/­Stellplatz

Mehr Raum fürs Leben – vielseitiges Zuhause mit Wintergarten und Einliegerpotenzial

Anfragen bisher

Premium

Meine Chancen

Premium

Fairer Preis

Premium

599.000 €

Kaufpreis

167 m²

7 Zi.

Grundriss

68623 Lampertheim

Gewerblicher Anbieter

FALC Immobilien Bergstraße
Heppenheimer Str. 70
68519 Viernheim

Details

Grundstücksfläche
665 m²
Zimmerzahl
7
Haustyp
Einfamilienhaus freistehend
Nutzfläche
78 m²
Anzahl Badezimmer
2
Anzahl Garage/ Stellplatz
2
Baujahr
1991

Kosten

Kaufpreis
599.000 €
Käuferprovision
3,57% inkl. MwSt vom not. Kaufpreis
Was kostet dein Umzug?

Stellplätze

Stellplatztyp
Freiplatz
Anzahl
1
Stellplatztyp
Garage
Anzahl
1

Objektbeschreibung

Dieses freistehende Einfamilienhaus ist kein klassisches Standardobjekt – sondern ein Zuhause mit Perspektive.


Hier verbinden sich großzügiges Wohnen, flexible Nutzungsmöglichkeiten und ein außergewöhnlicher Außenbereich zu einem Gesamtbild, das weit über das Übliche hinausgeht.


Ob als Familienmittelpunkt, Kombination aus Wohnen und Arbeiten oder mit zusätzlichem Einliegerbereich – diese Immobilie passt sich Ihrem Lebenskonzept an.


Eckdaten
Wohnfläche: ca. 167 m²
Nutzfläche: ca. 78 m²
Grundstück: ca. 665 m²
Baujahr: 1991


Erdgeschoss – das Herzstück des Hauses
Hier befinden sich eine separate Küche mit angrenzendem Esszimmer sowie ein großzügiges Wohnzimmer mit direktem Zugang zum Wintergarten. Dieser erweitert den Wohnraum auf angenehme Weise und schafft eine helle Verbindung zum Garten – ideal als zusätzlicher Aufenthaltsbereich oder lichtdurchfluteter Rückzugsort.


Obergeschoss – funktional und familiengerecht
Im Obergeschoss stehen Ihnen drei gut geschnittene Zimmer zur Verfügung, die flexibel als Schlaf-, Kinder- oder Arbeitszimmer genutzt werden können. Ein Tageslichtbad komplettiert diese Ebene sinnvoll.


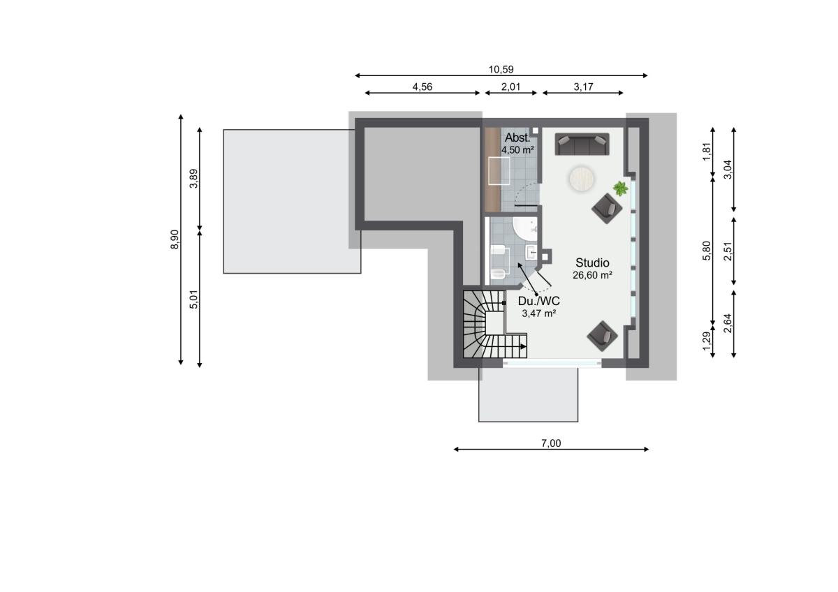
Dachgeschoss – Raum für Ideen
Das Dachgeschoss bietet ein großzügiges Studio mit einem zusätzlichen Bad. Dieser Bereich ist bereits weitestgehend ausgebaut und kann mit überschaubarem Aufwand fertiggestellt oder individuell umgestaltet werden.


Untergeschoss – der unterschätzte Mehrwert
Ein echtes Highlight dieser Immobilie ist das Kellergeschoss mit separatem Außenzugang.
Dank vorhandener Anschlüsse besteht die Möglichkeit, hier eine eigenständige Einheit mit Bad und Küche zu realisieren. Damit eignet sich dieser Bereich hervorragend für:



  • Homeoffice oder Selbstständigkeit

  • Gäste- oder Familienbereich

  • Mehrgenerationenwohnen


Außenbereich – mehr als nur ein Garten
Neben der großen Terrasse erwarten Sie:



  • ein Gewächshaus

  • ein Teich

  • ein eigener Brunnen

  • ein separates Nebengebäude mit Entwicklungspotenzial

  • zahlreiche Stromanschlüsse im Garten



Eine Garage mit zusätzlichem Stellplatz runden dieses attraktive Angebot ab.


Die Immobilie befindet sich in einem gepflegten Zustand, bietet jedoch in einzelnen Bereichen Modernisierungspotenzial. So können Sie Ihre eigenen Vorstellungen umsetzen und die Immobilie zu Ihrem Zuhause machen.


Bausubstanz & Energieausweis

A+

A

B

C

D

E

F

G

H

Wesentlicher Energieträger
Öl
Heizungsart
Ölheizung
Befeuerung
Ölheizung
Energieausweis
liegt vor
Energieausweistyp
Verbrauchsausweis
Ausstellungsdatum
11.11.2025
Gültig bis
11.11.2035
Energieverbrauchskennwert
177 kWh/(m²*a)
Energieeffizienzklasse
F
Energieverbrauch für Warmwasser enthalten
Ja

Ausstattung

Das Wohnhaus überzeugt durch eine solide, werthaltige Ausstattung mit hochwertigen Materialien und durchdachten Details.


Die weißen Kunststofffenster mit 2-fach-Verglasung sind im gesamten Haus mit elektrischen Rollläden ausgestattet und bieten komfortablen Sonnen-, Sicht- und Wärmeschutz.


Beheizt wird die Immobilie über eine Ölzentralheizung aus dem Jahr 2012. Der im Vorgarten befindliche Heizöltank mit ca. 7.000 Litern Fassungsvermögen ermöglicht eine langfristige und unabhängige Energiebevorratung. Zusätzlich ist ein Kachelofen vorhanden, der die Küche, das Wohn-/Esszimmer, den Flur sowie zwei Zimmer im Obergeschoss beheizt und für eine angenehme Wohnatmosphäre sorgt. Für die weitere Nutzung ist jedoch ein neuer Einsatz erforderlich.


Flur, Treppenhaus sowie das Wohn- und Esszimmer sind mit edlem Carrara-Marmor ausgestattet und verleihen dem Haus eine zeitlose Eleganz. Die Zimmer im Obergeschoss verfügen über gepflegte Parkettböden und schaffen eine warme, wohnliche Atmosphäre.


Die hochwertige Vollholz-Einbauküche mit hellgrauen Fronten ist mit Markengeräten von Miele und Siemens ausgestattet. Ein hochwertiger Fliesenboden unterstreicht den funktionalen und zugleich stilvollen Charakter des Küchenbereichs.


Die Bäder präsentieren sich zeitlos in Weiß- und Grautönen und bieten somit eine neutrale Basis für individuelle Farbgestaltung.


Im Wintergarten sorgen zwei elektrische Dachfenster für eine komfortable Belüftung. Das begehbare Glasdach unterstreicht die hochwertige Ausführung und sorgt für zusätzliche Lichtdurchlässigkeit. Von hier gelangen Sie direkt auf die Natursteinterrasse – ideal für entspannte Stunden im Freien.


Ein besonderes Highlight ist der großzügige Garten. Ein eigener Brunnen ermöglicht eine kostensparende Gartenbewässerung. Zudem verfügt der Garten über ein Gewächshaus für ambitionierte Hobbygärtner, einen Teich und ein beheizbares Nebengebäude (ehemalige Vogelvoliere) das Sie vielseitig nutzen können. Zahlreiche Elektroanschlüsse sind ideal für Beleuchtung, Teichtechnik oder weitere Gartengestaltung


Der Außenbereich verbindet Erholungsqualität mit funktionalem Mehrwert und weiterem Entwicklungspotenzial.


Lagebeschreibung

Lampertheim-Hofheim, mit ca. 6.000 Einwohnern der größte Stadtteil von Lampertheim, ist eine ruhige Wohngemeinde im südhessischen Ried und gehört zur Metropolregion Rhein-Neckar, einer der größten Wirtschaftsregionen Deutschlands.


Über die Bundesstraßen 44 und 47 sind die Autobahnen A 61, A 67 und A 6 schnell zu erreichen, was gerade für Berufspendler ideal ist. Nach Worms fahren Sie 6 km, die Einkaufsstädte Mannheim und Ludwigshafen erreichen Sie in ca. 30 Minuten, und auch der Flughafen Frankfurt ist nur 60 km entfernt.


Lampertheim-Hofheim gehört zum Verkehrsverbund Rhein-Neckar, d.h. es verkehren Busse nach Lampertheim und Biblis und am Hofheimer Bahnhof halten sowohl die Riedbahn auf ihrem Weg von Worms nach Biblis als auch die Nibelungenbahn (Worms – Bensheim). Der Bahnhof ist in nur einer Minute Fußweg zu erreichen.


Geschäfte für den täglichen Bedarf sowie die Post und Apotheke können Sie fußläufig erreichen. Für Familien ist mit zwei Kindergärten sowie einer Grund- und Hauptschule gesorgt. Weiterführende Schulen befinden sich in Worms und Lampertheim.


Auch in punkto Freizeit und Sport hat Hofheim seinen Einwohnern einiges zu bieten: Eine bunte Vereinslandschaft bietet viele verschiedene Angebote für alle Altersklassen. Die Lampertheimer Biedensandbäder, eine Kombination von Hallenbad, Freibad und Badesee locken die Wasserratten sommers wie winters. Die Ferienregion „Deutsche Weinstraße“ mit ihren Weinbergen sowie Bergstraße und Odenwald liegen nicht weit entfernt und laden zu schönen Spaziergängen und Wanderungen ein. Im Herbst locken die vielen Weinfeste in der Umgebung.


Sonstige Angaben

Hinweis: Einige der Fotos sowie das Video enthalten von einer KI generierte Möblierungsvorschläge.


Wir bieten folgendes Prozedere für die Immobilienbesichtigung an:




  1. Schauen Sie unser aussagekräftiges Exposé an




  2. Bitte haben Sie Verständnis, dass wir Besichtigungen nur bei Vorliegen eines Finanzierungszertifikates bzw. Bonitätsnachweises durchführen.




  3. Wir freuen uns auf Ihre Kontaktaufnahme. Bitte senden Sie uns dazu über den Button „Anbieter kontaktieren“ Ihre vollständigen Kontaktdaten (incl. Ihrer Telefonnummer für Absprache eines Besichtigungstermins). Wir bitten um Verständnis, dass nur schriftliche Anfragen beantwortet werden können.




Die Objektbeschreibung beruht ganz oder zum Teil auf Angaben des Eigentümers. Für die Richtigkeit oder Vollständigkeit übernehmen wir keine Gewähr.


Beim ausgewiesenen Preis handelt es sich um den Angebotspreis, der sich durch Verhandlungen auch verändern kann.


Für den Kaufenden fällt keine Maklerprovision an.


Sie denken selbst über die Veräußerung Ihrer Immobilie nach oder möchten einfach nur wissen, was diese wert ist? Bei uns erhalten Sie kostenlos eine professionelle Wertermittlung! Gehen Sie hierzu auf: https://www.falcimmo.de/immobilien-bergstrasse.html oder kontaktieren Sie uns telefonisch.


Wohnung finden so einfach wie möglich - das ist unsere Mission!

Kostenlose Basic Features

0 € monatlich


  • Individuelles Such-Profil anlegen
  • Suchaufträge speichern
  • One-Klick Kontaktaufnahme

alles anzeigen

Jetzt kostenlos anmelden

Premium Features

19,99 € monatlich


  • Alle kostenlosen Features
  • Smart-Alarm per Whatsapp
  • Deine Chancen checken
  • Wohngegend analysieren

alles anzeigen

Jetzt Premium freischalten

Gewerblicher Anbieter

FALC Immobilien Bergstraße
Heppenheimer Str. 70
68519 Viernheim

Wohnglück-ID:
Objekt-Nr.:
WGL-1207720
FALC-AND-81091