Maisonette in Hamburg (Hummelsbüttel)

Balkon/­Terrasse
Gäste WC
Keller
Einbauküche
Garage/­Stellplatz

Exklusive 3,5 Zi.-Whg. inkl. EBK, Balkon & 2 Dachterrassen.

Anfragen bisher

Premium

Meine Chancen

Premium

Fairer Preis

Premium

2.100 €

Kaltmiete

99,92 m²

3,5 Zi.

22339 Hamburg / Hummelsbüttel

Gewerblicher Anbieter

Carolin Gerken Immobilien
Peter-Marquard-Straße 12
22303 Hamburg

Details

Zimmerzahl
3,5
Wohnungstyp
Maisonette
Bezugsfrei ab
01.04.2026
Anzahl Schlafzimmer
2
Anzahl Badezimmer
2
Anzahl Garage/ Stellplatz
1
Objektzustand
Neuwertig
Baujahr
2021

Kosten

Kaltmiete
2.100 €
Nebenkosten
200 €
Heizkosten
100 €
Was kostet dein Umzug?

Stellplätze

Stellplatztyp
Freiplatz
Anzahl
1
Miete
100 €

Objektbeschreibung

In zentraler Lage von HH-Hummelsbüttel befinden sich zwei Wohngebäude mit je 6 exklusiven Wohnungen im KfW-Effizienshaus 40 Standard. Die Vorteile einer Immobilie mit diesem Energieeffizienz-Standard sind klar: energiesparend, umweltschonend, kostensenkend und eine moderne Bauweise mit gewissem Wohnkomfort.


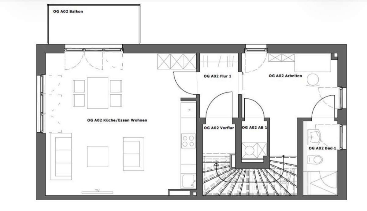
Die hier angebotene 3,5 Zi.-Whg. erstreckt sich über das Obergeschoss- sowie Staffelgeschoss. Der Grundriss überzeugt damit, dass das Obergeschoss als Wohn- sowie Arbeitsbereich genutzt werden kann und das Staffelgeschoss den idealen Platz für Ihre Privatsphäre bietet.


Über ein eigenes Treppenhaus gelangen Sie direkt in Ihr neues Zuhause. Der offene Wohn-/ Essbereich überzeugt mit seinem Zugang auf den Balkon, sowie der hochwertigen Einbauküche. Ein angrenzender Abstellraum bietet Platz für den täglichen Bedarf, sowie für die Waschmaschine. Das Obergeschoss wird durch ein Durchgangszimmer, welches sich ideal als Homeofficeplatz anbietet, sowie ein Duschbad inkl. WC abgerundet.


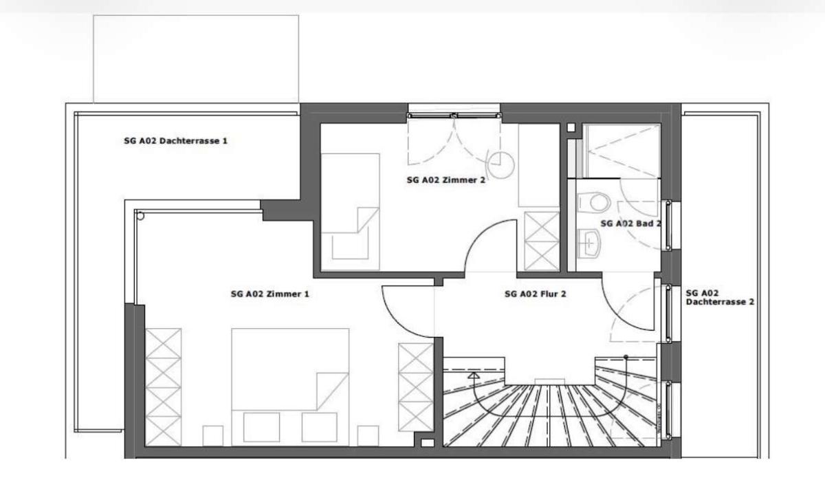
Über eine Treppe gelangen Sie in das Staffelgeschoss der Wohnung. Der helle und gut geschnittene Flur führt Sie direkt in die beiden weiteren Zimmer der Wohnung, die sich ideal als Schlaf- und Arbeitszimmer präsentieren. Ein weiteres Duschbad inkl. WC sowie zwei Dachterrassen runden den Privatbereich ab.


Die Wohnung wird mit einem separaten Kellerraum vermietet.


Bausubstanz & Energieausweis

A+

A

B

C

D

E

F

G

H

Objektzustand
Neuwertig
Wesentlicher Energieträger
Luftwärmepumpe
Heizungsart
Zentralheizung
Befeuerung
Wärmepumpe
Energieausweis
liegt vor
Energieausweistyp
Bedarfsausweis
Ausstellungsdatum
14.09.2023
Gültig bis
13.09.2033
Energieeffizienzklasse
A_PLUS
Endenergiebedarf
12,1 kWh/(m²*a)

Ausstattung


  • Wohnen auf zwei Ebenen

  • Ihre Vorteile eines KfW- Effizienshaus 40: energiesparend, umweltschonend, kostensenkend und moderner Wohnkomfort

  • Hochwertige und moderne Einbauküche mit weißen Fronten

  • EBK inkl. Kühl-Gefrierkombination, Geschirrspüler, Ceranherd inkl. Ofen

  • Offener Wohn-/Essbereich mit Zugang zum Balkon

  • Zwei geräumige Dachterrassen vom Schlafzimmer sowie Bad/Flur erreichbar

  • Bad mit barrierefreier Dusche, Spiegel & Handtuchheizkörper

  • Gäste-Bad inkl. WC (Lage: OG)

  • Fußbodenheizung

  • Hochwertiger heller Designfußboden in allen Wohn- und Schlafzimmern sowie im Flur

  • Helle Bodenfliesen im Bad und Küche

  • Elektrische Rollläden

  • umfangreiche Ausstattung an Steckdosen und Multimediadosen

  • Fenster 3-Fach-Verglasung

  • Zentrale Lüftungsanlage

  • Abstellraum in der Wohnung

  • Abstellmöglichkeit für Fahrräder im Haus

  • Kfz-Außenstellplatz 100,00€/mtl.

  • Kellerraum vorhanden


Folgen Sie uns auf instagram.com/carolin.gerken.immobilien und erhalten bereits vorab unsere neuesten Mietangebote.


Lagebeschreibung

Hummelsbüttel bildet mit Poppenbüttel, Sasel und Wellingsbüttel das ruhig gelegene, für Familien ideal geeignete und als Wohnlage äußerst begehrte Alstertal. Einkäufe und Besorgungen für den täglichen Bedarf, Schulen, Kindertagesstätten sowie Arztpraxen befinden sich in unmittelbarer Nähe. Die Bushaltestelle "Glashütter Landstraße" ist fußläufig in ca. fünf Minuten zu erreichen. Hier fährt die Buslinie 24, die einen zum U-Bahnhof Niendorf Markt oder Volksdorf bringt.


Sonstige Angaben


  • Es wird ein Staffelmietvertrag abgeschlossen

  • Mindestmietdauer von einem Jahr

  • Die Kosten für Strom rechnen Sie individuell nach Verbrauch mit dem Versorgungswerk ab

  • Alle hier gemachten Angaben beruhen auf den Auskünften des Auftraggebers

  • Für die Richtigkeit und Vollständigkeit der Angaben und der Vereinbarkeit mit geltenden Vorschriften können wir keine Haftung übernehmen

  • Änderungen, Zwischenvermietung und Irrtum bleiben vorbehalten


Wohnung finden so einfach wie möglich - das ist unsere Mission!

Kostenlose Basic Features

0 € monatlich


  • Individuelles Such-Profil anlegen
  • Suchaufträge speichern
  • One-Klick Kontaktaufnahme

alles anzeigen

Jetzt kostenlos anmelden

Premium Features

19,99 € monatlich


  • Alle kostenlosen Features
  • Smart-Alarm per Whatsapp
  • Deine Chancen checken
  • Wohngegend analysieren

alles anzeigen

Jetzt Premium freischalten

Gewerblicher Anbieter

Carolin Gerken Immobilien
Peter-Marquard-Straße 12
22303 Hamburg

Wohnglück-ID:
Objekt-Nr.:
WGL-1202061
2025-39