Mehrfamilienhaus in Cadolzburg

Balkon/­Terrasse
Gäste WC
Garage/­Stellplatz

Am idyllischen Waldrand von Cadolzburg investieren

Anfragen bisher

Premium

Meine Chancen

Premium

Fairer Preis

Premium

1.250.000 €

Kaufpreis

260 m²

9 Zi.

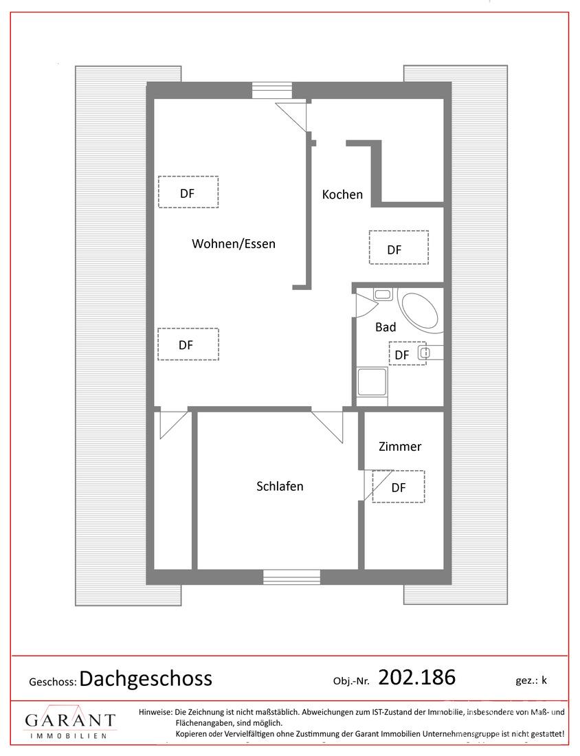
Grundriss

90556 Cadolzburg

Gewerblicher Anbieter

Garant Immobilien Franken GmbH
Schweinauer Hauptstraße 38
90441 Nürnberg

Details

Grundstücksfläche
1.381 m²
Zimmerzahl
9
Haustyp
Mehrfamilienhaus
Etagenzahl
4
Bezugsfrei ab
nach Absprache
Anzahl Schlafzimmer
6
Anzahl Badezimmer
4
Anzahl Garage/ Stellplatz
1
Objektzustand
Gepflegt
Baujahr
1958

Kosten

Kaufpreis
1.250.000 €
Käuferprovision
3,57 % (inkl. MwSt.)
Was kostet dein Umzug?

Stellplätze

Stellplatztyp
Garage
Anzahl
4

Objektbeschreibung

Sie als Investor sind auf der Suche nach einem Anwesen mit grandiosem Platzangebot und mannigfaltigen Nutzungsmöglichkeiten in reizvoller Lage..., herzlich willkommen!


Das voll unterkellerte Mehrfamilienhaus teilt sich in drei abgeschlossene Wohneinheiten auf, die vom Eigentümer stets gepflegt, saniert und modernisiert wurden. Der Grundriss von Erd- und Obergeschoss ist nahezu identisch. Jede Ebene zeigt drei Zimmer, Küche, Bad, separates WC, Flur und Abstellraum. Das Dachgeschoss empfängt Sie mit einem Bad, einem Schlafzimmer mit Durchgang zu einem weiteren Ankleide-Raum und punktet mit einem zeitgemäß offenen Wohn-/Ess-/Kochbereich in ansprechender Größe. Der Keller bietet teilweise zu Wohnzwecken ausgebaute Nutzfläche.


Der ausgedehnte Außenbereich offeriert Baugrund auf welchem weitere Immobilien entstehen können. Für 3 Reihenhäuser lag bereits ein genehmigter Bauantrag vor. Dieser ist nicht mehr gültig, dient jedoch als Hinweis auf die Machbarkeit. Die Hanglage eröffnet architektonisch spannende Gestaltungsmöglichkeiten. Zur optimalen Bebauung ist der Abriss des Altbestandes, kleineres Gebäude erforderlich.


Mehrgenerationenhaus, Mietobjekt, Neubau... ein beeindruckendes Ensemble welches viele Optionen offen hält um diverse Konzepte zu realisieren. Ein zukunftsorientierter Investor kann diese Offerte nicht ausschlagen!



Weitere Angebote unter www.GARANT-IMMO.de


Bausubstanz & Energieausweis

Objektzustand
Gepflegt
Heizungsart
Elektroheizung
Befeuerung
Elektroheizung

Ausstattung


  • Fliesen, Laminat

  • Fußbodenheizung im Erdgeschoss

  • Holzdecken

  • Plateauaufzug von Keller bis Obergeschoss

  • Photovoltaikanlagen 7 kWp und 5,5 kWp
    mit Batteriespeicher

  • Wallbox

  • Tageslicht-Gästetoilette mit Dusch-Vorbereitung

  • Tageslicht-Duschbad mit WC

  • Luftwärmepumpe

  • Kaminanschluss für Holzofen auf allen Etagen

  • überdachte Westbalkone

  • Westterrasse

  • Glasfaseranschluss

  • vier Garagen

  • drei Stellplätze






Lagebeschreibung

Das absolut ansprechende Anwesen liegt idyllisch in einer ruhigen Siedlung im mittelfränkischen Markt Cadolzburg - mitten im Herzen des Landkreises Fürth.


Eine exzellente Infrastruktur (Ärzte, Banken, Einkaufsmöglichkeiten, Kindergärten und Bildungseinrichtungen...) macht lange Besorgungsfahrten überflüssig. Ein gut ausgebautes Rad- und Wanderwegenetz, ein Fitnessstudio sowie zahlreiche Vereine sorgen für eine abwechslungsreiche Freizeitgestaltung. Ein mannigfaltiges Angebot an kulturellen und kulinarischen Einrichtungen ist gewährleistet.


Es besteht eine optimale Anbindung an den öffentlichen Nahverkehr ins Ballungsgebiet Nürnberg/Fürth/Erlangen. Haltestellen für Bus und Bahn sind fußläufig oder mit dem Rad schnell erreicht. Über die nahegelegene Bundesstraße B8 beträgt die Fahrzeit mit dem Pkw nach Fürth bzw. Nürnberg ca. 20 bis 30 Minuten. Zudem dient sie als Zubringer zu den Autobahnen A3, A6 und A9.


Sonstige Angaben

Energiebedarfsausweis
Energiekennwert: 58,70 kWh/(qm*a)
Energieeffizienz: Klasse B (<75)
Heizung: Wärmepumpe mit Strom
Baujahr laut Energieausweis: 19584 x Garage, 3 x Stellplatz außen2000 Dach neu eingedeckt,
Dachflächenfenster erneuert,
Solarthermie montiert
2009 Fassade teilweise gedämmt
2010 Dach isoliert und gedämmt
2010-2013
neue Wasserleitungen installiert
2012 7 kWp Photovoltaik montiert
2013 Schließeinlage eingebaut
2015 Sat-Schüssel montiert
2015 Außendämmung Südseite von Erd-
bis Dachgeschoss
2018 Bad modernisiert, Luftwärmepumpe eingebaut
2020 komplette Elektroinstallation im Keller erneuert
2022 Sprechanlage montiert
2023 Kalt- u. Warmwasserzähler installiert,
8 kWh Batteriespeicher installiert
2024 Fensterdichtungen erneuert
2025 neu gestrichen


Wohnung finden so einfach wie möglich - das ist unsere Mission!

Kostenlose Basic Features

0 € monatlich


  • Individuelles Such-Profil anlegen
  • Suchaufträge speichern
  • One-Klick Kontaktaufnahme

alles anzeigen

Jetzt kostenlos anmelden

Premium Features

19,99 € monatlich


  • Alle kostenlosen Features
  • Smart-Alarm per Whatsapp
  • Deine Chancen checken
  • Wohngegend analysieren

alles anzeigen

Jetzt Premium freischalten

Gewerblicher Anbieter

Garant Immobilien Franken GmbH
Schweinauer Hauptstraße 38
90441 Nürnberg

Wohnglück-ID:
Objekt-Nr.:
WGL-1201941
202.186