Büro / Praxen in Leipzig (Zentrum-Süd)

Einbauküche

Tolle Lage - Gewerbefläche im Souterrain im beliebten Musikviertel - 2 Räume, inkl. EBK, Bad mit Dusche, Kellerabteil

Anfragen bisher

Premium

Meine Chancen

Premium

Fairer Preis

Premium

580 €

Kaltmiete

2 Zi.

-1

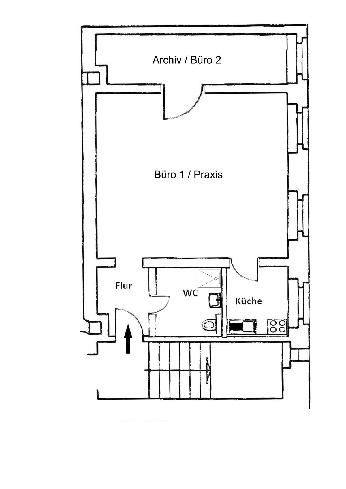
Grundriss

04107 Leipzig

Gewerblicher Anbieter

IC IMMOCONSULT e.K.
Hillerstraße 3
04109 Leipzig

Details

Bürofläche
50,77 m²
Zimmerzahl
2
Typ der Gewerbeimmobilie
Büro / Praxen
Etage, Geschoss
-1
Bezugsfrei ab
06/2026
Objektzustand
Vollsaniert

Kosten

Kaltmiete
580 €
Nebenkosten
180 €
provisionsfrei
Was kostet dein Umzug?

Objektbeschreibung

Die zur Vermietung stehende Souterrain-Gewerbefläche befindet sich im schönen Musikviertel.


Die Immobilie verfügt insgesamt über 2 Räume, die flexibel als Büro-/Praxis- oder Besprechungsräume genutzt werden können.


Die Räumlichkeiten überzeugen durch ihre helle und freundliche Atmosphäre.


Die modernen Fenster sorgen für ausreichend Tageslicht und somit für eine angenehme Arbeitsumgebung.


Die Beheizung erfolgt über Fernwärme.


Zur Ausstattung der Immobilie gehören außerdem eine Einbauküche sowie ein WC mit Rainshowerdusche.


Die zentrale Lage des Gebäudes ermöglicht eine hervorragende Anbindung an öffentliche Verkehrsmittel (Bushaltestelle in 70 m) und Einkaufsmöglichkeiten und ist für potentielle Kunden gut erreichbar.


Bausubstanz & Energieausweis

Objektzustand
Vollsaniert
Wesentlicher Energieträger
Fernwärme
Heizungsart
Zentralheizung
Befeuerung
Fernwärme

Ausstattung


  • 2 Räume

  • Zentralheizung

  • Videosprechanlage

  • EDV Verkabelung

  • schmiedeeiserne Fenstergitter zur zusätzlichen Sicherheit

  • Fliesenboden

  • ca. 2,60 m Raumhöhe

  • inkl. EBK

  • WC mit Rainshower-Dusche

  • Kellerabteil


Lagebeschreibung

Das Objekt befindet sich in Leipziger Top-Lage - im beliebten Musikviertel - direkt am Zentrum und doch im Grünen.


Dieser Stadtteil ist eines der bekanntesten und liegt südlich der Innenstadt. Er zeichnet sich durch eine lebendige Atmosphäre mit zahlreichen Geschäften, Einkaufsmöglichkeiten, Bäcker, Imbissen, Restaurants und kulturellen Einrichtungen aus.


Die direkte Nähe zum Johanna- und Clara-Zetkin-Park sorgen für eine gute Anbindung an Grünflächen und Erholungsmöglichkeiten. Auch das Elsterufer erreichen Sie in 5 Gehminuten sowie eine Sportanlage.


Sie erreichen die Leipziger City in 5-10 Minuten zu Fuß.


Sonstige Angaben

Die von uns gemachten Angaben haben wir nach bestem Wissen und Gewissen nach Informationen des Vermieters/Verkäufers und den uns übergebenen Informationen zusammengestellt. Eine Gewähr für diese Angaben können wir nicht übernehmen.
Wichtige Zahlen und Informationen sind am Objekt zu überprüfen.
Zwischenvermietung/Verkauf bleibt vorbehalten.


Wohnung finden so einfach wie möglich - das ist unsere Mission!

Kostenlose Basic Features

0 € monatlich


  • Individuelles Such-Profil anlegen
  • Suchaufträge speichern
  • One-Klick Kontaktaufnahme

alles anzeigen

Jetzt kostenlos anmelden

Premium Features

19,99 € monatlich


  • Alle kostenlosen Features
  • Smart-Alarm per Whatsapp
  • Deine Chancen checken
  • Wohngegend analysieren

alles anzeigen

Jetzt Premium freischalten

Gewerblicher Anbieter

IC IMMOCONSULT e.K.
Hillerstraße 3
04109 Leipzig

Wohnglück-ID:
Objekt-Nr.:
WGL-1192138
407g12#L48r42