Einfamilienhaus freistehend in Neunkirchen (Heinitz)

Balkon/­Terrasse
Garten/­-mitbenutzung
Keller

Vielfältiges Wohnhaus mit 2 Wohnungen & 7 Zimmern in Waldnähe in Neunkirchen-Heinitz!

Anfragen bisher

Premium

Meine Chancen

Premium

Fairer Preis

Premium

199.000 €

Kaufpreis

190 m²

7 Zi.

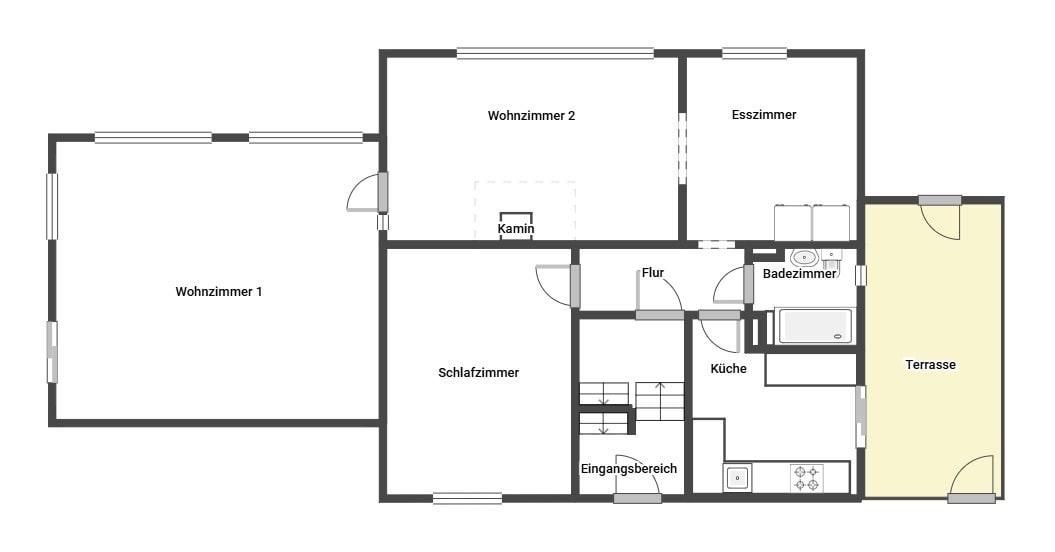
Grundriss

66540 Neunkirchen

Gewerblicher Anbieter

Bank 1 Saar Immobilien GmbH
Kaiserstr. 17-19
66111 Saarbrücken

Details

Grundstücksfläche
884 m²
Zimmerzahl
7
Haustyp
Einfamilienhaus freistehend
Anzahl Schlafzimmer
4
Anzahl Badezimmer
2
Objektzustand
Gepflegt
Letzte Modernisierung/ Sanierung
2016
Baujahr
1955

Kosten

Kaufpreis
199.000 €
Käuferprovision
3,57 %
Was kostet dein Umzug?

Objektbeschreibung

Durch die zwei vorhandenen Wohnungen kann die Immobilie flexibel als großzügiges Einfamilienhaus für die große Familie oder als Zweifamilienhaus mit zwei separaten Wohnungen beispielsweise zur Teilvermietung oder zum Mehrgenerationswohnen genutzt werden.
Mit einer Wohnfläche von ca. 190 m² bietet das Haus genügend Platz für individuelle Raum- und Wohnkonzepte.


Derzeit wird das Erdgeschoss des Hauses eigengenutzt und die Wohnung im Dachgeschoss ist vermietet.
Das Haus wird leerstehend und unvermietet verkauft und übergeben.


Die genaue Aufteilung im Haus ist wie folgt


Das Ursprungsgebäude aus den 1950er Jahren wurde 1962 um einen Anbau ergänzt.


Die derzeitige Aufteilung im Haus ist wie folgt:


Erdgeschoss
Treppenhaus
Wohnung 1:
Flur, Bad, Küche mit Zugang zum Garten, Esszimmer, Wohnzimmer, Anbauzimmer, Schlafzimmer


Dachgeschoss
Treppenhaus
Wohnung 2
Flur, Küche, WC, Durchgangszimmer, Zimmer mit Dusche, 2 Zimmer


Übersicht Gewerke und Modernisierungsstand:



  • Gas-Brennwerttherme, Baujahr: 2016

  • Fenster: Holzrahmen mit Doppelverglasung, überwiegend Baujahr 1988, zum Teil Baujahr 1997

  • Dach: dem Baujahr entsprechend, teilweise gedämmt
    Um das Haus in einen modernen und zeitgemäßen Zustand zu versetzen, besteht Renovierungsbedarf. Dies gibt Ihnen die Chance, das Haus ganz nach Ihren persönlichen Wünschen und individuellen Bedürfnissen zu gestalten und zu modernisieren. Durch die zahlreichen Räumlichkeiten und die Option von 2 separaten Wohnungen ist das Haus an verschiedene Lebenssituationen individuell anpassbar.


Außenanlagen:
Neben und um das Haus herum bietet sich eine ausreichend großzügige Gartenfläche mit viel Gestaltungsspielraum. Egal ob zum Spielen und Toben für Kinder und Haustiere oder zur Schaffung einer traumhaften Ruhe-Oase.
Eine überdachte Terrasse sowie weitere gepflasterte Fläche eignet sich ideal zur Anlage einer schönen Sonnenterrasse für entspannte Grillfeste mit Freunden und Familie.


Haben wir Ihr Interesse geweckt?
Wir freuen uns auf Ihre Kontaktaufnahme
Ihre Immobilienspezialisten im Saarland
Bank1Saar Immobilien GmbH


Bausubstanz & Energieausweis

A+

A

B

C

D

E

151,2 kWh/(m²*a)

F

G

H

Objektzustand
Gepflegt
Letzte Modernisierung
2016
Wesentlicher Energieträger
Gas
Heizungsart
Zentralheizung
Befeuerung
Gasheizung
Energieausweis
liegt vor
Energieausweistyp
Bedarfsausweis
Ausstellungsdatum
26.02.2026
Gültig bis
25.02.2036
Energieeffizienzklasse
E
Endenergiebedarf
151,2 kWh/(m²*a)

Ausstattung

Individuelle Ausstattungsmerkmale:



  • Garten/ Gartenmitbenutzung

  • Garage/ Stellplatz

  • freistehend


Zum Parken stehen 2 Garagenstellplätze und weitere Stellfläche davor zur Verfügung.


Lagebeschreibung

Die Immobilie befindet sich im Stadtteil Heinitz der Kreisstadt Neunkirchen im Saarland in unmittelbarer Nähe zum Wald, ideal für Naturliebhaber!


Heinitz ist ein gewachsener, ruhiger Wohnstandort mit einer guten Mischung aus dörflichem Charakter und städtischer Infrastruktur. Der Stadtteil ist besonders bei Familien und Berufspendlern beliebt und bietet eine angenehme Wohnqualität in naturnaher Umgebung.


Einkaufsmöglichkeiten für den täglichen Bedarf, Bäckereien, Ärzte sowie Kindergärten und Schulen befinden sich in der näheren Umgebung und sind teilweise auch in wenigen Minuten erreichbar. Das Stadtzentrum von Neunkirchen mit weiteren Einkaufsmöglichkeiten, Gastronomie, medizinischer Versorgung und kulturellen Angeboten ist nur wenige Fahrminuten entfernt.


Die Verkehrsanbindung ist sehr gut. Über die nahegelegenen Bundesstraßen sowie die Autobahn A8 und A6 sind die Landeshauptstadt Saarbrücken sowie weitere Städte der Region schnell erreichbar. Öffentliche Verkehrsmittel verbinden Heinitz regelmäßig mit dem Zentrum von Neunkirchen und den umliegenden Gemeinden.


Die Umgebung bietet zudem zahlreiche Freizeit- und Erholungsmöglichkeiten. Wälder, Spazier- und Radwege sowie verschiedene Sport- und Vereinsangebote sorgen für eine hohe Lebensqualität und machen den Standort sowohl für Familien als auch für Naturliebhaber besonders attraktiv.
Der nächste Wald ist in wenigen Minuten fußläufig erreichbar - ideal für Hundebesitzer oder Naturliebhaber.


Wohnung finden so einfach wie möglich - das ist unsere Mission!

Kostenlose Basic Features

0 € monatlich


  • Individuelles Such-Profil anlegen
  • Suchaufträge speichern
  • One-Klick Kontaktaufnahme

alles anzeigen

Jetzt kostenlos anmelden

Premium Features

19,99 € monatlich


  • Alle kostenlosen Features
  • Smart-Alarm per Whatsapp
  • Deine Chancen checken
  • Wohngegend analysieren

alles anzeigen

Jetzt Premium freischalten

Gewerblicher Anbieter

Bank 1 Saar Immobilien GmbH
Kaiserstr. 17-19
66111 Saarbrücken

Wohnglück-ID:
Objekt-Nr.:
WGL-1185763
007267#eBkRJ