Einfamilienhaus freistehend in Hammelburg

Balkon/­Terrasse
Einbauküche
Garage/­Stellplatz

Über den Dingen

Anfragen bisher

Premium

Meine Chancen

Premium

Fairer Preis

Premium

250.000 €

Kaufpreis

165 m²

4 Zi.

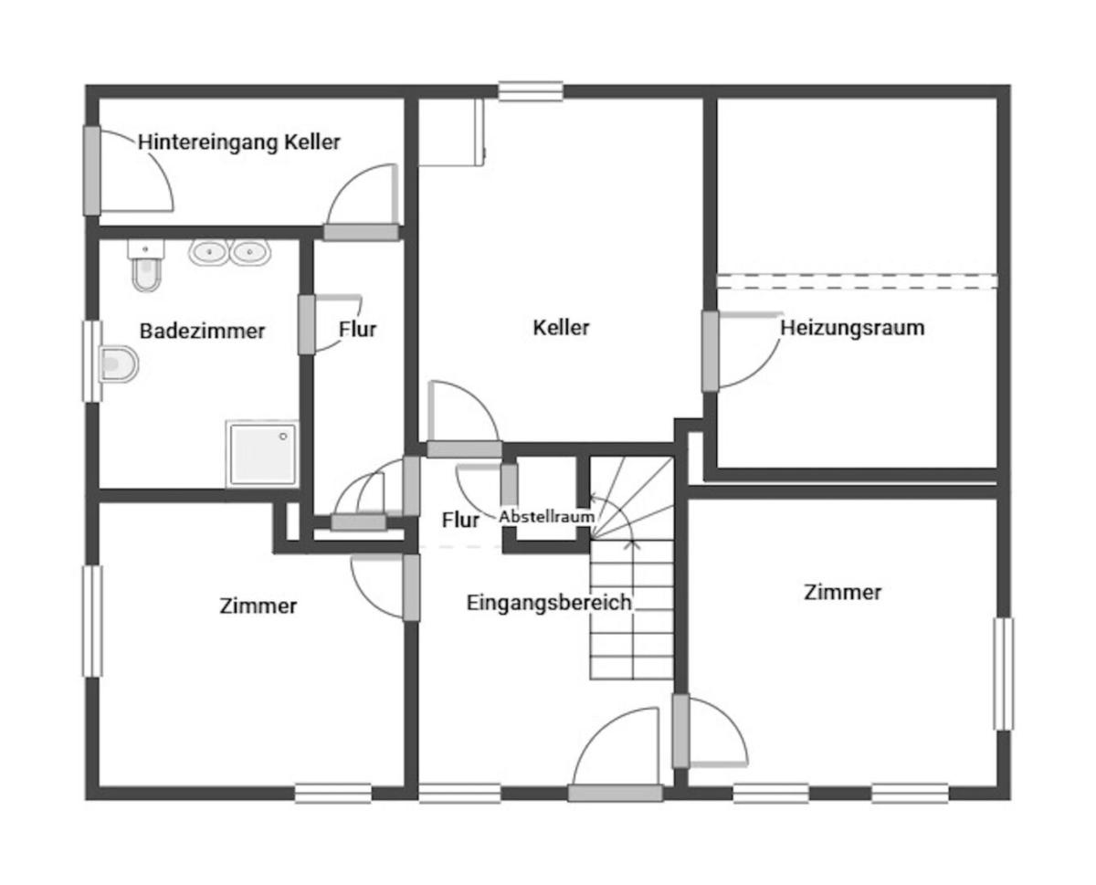
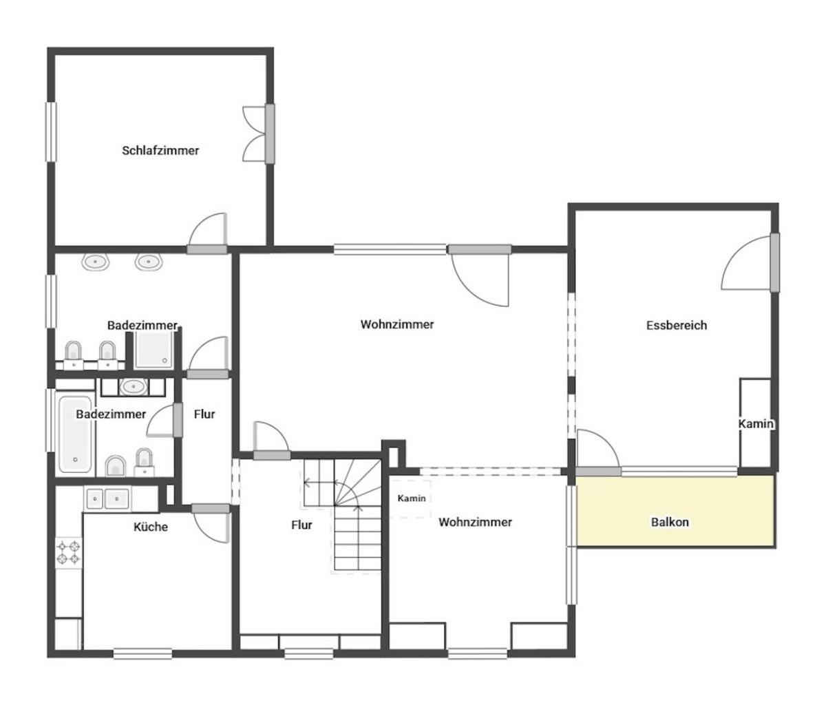
Grundriss

97762 Hammelburg

Gewerblicher Anbieter

Garant Immobilien Heilbronn GmbH
Schweinfurter Straße 28
97076 Würzburg

Details

Grundstücksfläche
2.092 m²
Zimmerzahl
4
Haustyp
Einfamilienhaus freistehend
Etagenzahl
2
Bezugsfrei ab
ab sofort
Anzahl Schlafzimmer
3
Anzahl Badezimmer
3
Anzahl Garage/ Stellplatz
1
Objektzustand
Renovierungsbedürftig
Baujahr
1965

Kosten

Kaufpreis
250.000 €
Käuferprovision
3,57 % (inkl. MwSt.)
Was kostet dein Umzug?

Stellplätze

Stellplatztyp
Garage
Anzahl
2

Objektbeschreibung

Die beste Aussicht hat der, der ganz oben ist! Da stört kein Haus, da stört kein Baum. Man hat die Welt um sich herum im Blick und sieht schon sehr zeitig, wenn die Schwiegermutter im Anflug ist. Also, egal ob das gut oder schlecht ist, ob sie mit dem Auto oder dem Besen kommt.


Wir sehen Sie lächeln und freuen uns über Ihre Aufmerksamkeit.
Deshalb machen wir schnell mit dem Ernst unseres Immobilienangebotes weiter:


Wir verkaufen ein Einfamilienhaus mit unverbaubarem Blick über das Hammelburger Tal.
Das Wohnhaus wurde in den 1960er Jahren massiv und wertvoll Stein auf Stein gebaut. Ende der 1970er Jahre fand eine Erweiterung statt. Schlussendlich stehen Ihnen insgesamt ca. 165 qm Wohnfläche zur Verfügung. Die Hanglage des 2.092 qm großen Grundstückes wurde in der Architektur berücksichtigt. Im Souterrain befindet sich der Eingang und zwei Zimmer. In frühen Zeiten wurden diese als Kinderzimmer genutzt. Dazu kommen das WC und natürlich die Nutzräume.


Darüber heißt es WOHNEN AUF EINER EBENE: Ein großzügiges Wohnzimmer mit Terrasse, eine große Küche, Schlafzimmer und Hauptbad erwarten Sie.
Zwei Garagen gehören zu dem Anwesen. Wichtig und funktional: Sie können mit dem Auto bis vor die Haustür fahren.


Die Haustechnik funktioniert, ist aber nicht auf dem heutigen Stand der Technik. Es wird also nicht ausreichen, nur die Tapeten zu wechseln. Aber: Dadurch, dass alles funktioniert, könnte man schrittweise an der Modernisierung arbeiten und sich so ein einzigartiges, unverbaubares Anwesen quasi mitten in der Natur schaffen.
Mit eigener Einflugschneise.



Weitere Angebote unter www.GARANT-IMMO.de


Bausubstanz & Energieausweis

Objektzustand
Renovierungsbedürftig
Heizungsart
Zentralheizung
Befeuerung
Ölheizung

Lagebeschreibung

Das Anwesen befindet sich am Rand eines Ortsteils von Hammelburg.
Die Stadt Hammelburg verfügt über zahlreiche Einkaufsmöglichkeiten, mit welchen der tägliche Bedarf gedeckt werden kann. Kindergarten und Schulen befinden sich ebenfalls am Ort.
Ideale Verkehrsanbindung bieten die direkte Anschlussstelle an die B287 und B27 sowie die in Kürze erreichte Autobahnanschlussstelle an die A7.


Sonstige Angaben

Energiebedarfsausweis
Energiekennwert: 278,20 kWh/(qm*a)
Energieeffizienz: Klasse H (>250)
Heizung: Zentralheizung mit Öl
Baujahr laut Energieausweis: 1965


Wohnung finden so einfach wie möglich - das ist unsere Mission!

Kostenlose Basic Features

0 € monatlich


  • Individuelles Such-Profil anlegen
  • Suchaufträge speichern
  • One-Klick Kontaktaufnahme

alles anzeigen

Jetzt kostenlos anmelden

Premium Features

19,99 € monatlich


  • Alle kostenlosen Features
  • Smart-Alarm per Whatsapp
  • Deine Chancen checken
  • Wohngegend analysieren

alles anzeigen

Jetzt Premium freischalten

Gewerblicher Anbieter

Garant Immobilien Heilbronn GmbH
Schweinfurter Straße 28
97076 Würzburg

Wohnglück-ID:
Objekt-Nr.:
WGL-1180723
625.143