Reihenhaus in Saarbrücken (Gersweiler)

Garten/­-mitbenutzung
Keller

Eigenheim selbst gestalten - Reihenmittelhaus mit Potenzial in 66128 Saarbrücken-Gersweiler

Anfragen bisher

Premium

Meine Chancen

Premium

Fairer Preis

Premium

99.000 €

Kaufpreis

103 m²

5 Zi.

Grundriss

66128 Saarbrücken

Gewerblicher Anbieter

Bank 1 Saar Immobilien GmbH
Kaiserstraße 17-19
66111 Saarbrücken

Details

Grundstücksfläche
539 m²
Zimmerzahl
5
Haustyp
Reihenhaus
Baujahr
1904

Kosten

Kaufpreis
99.000 €
Käuferprovision
3570 EUR
Was kostet dein Umzug?

Objektbeschreibung

Dieses im Jahr 1904 errichtete Reihenmittelhaus befindet sich in gewachsener Wohnlage von 66128 Saarbrücken-Gersweiler, einem Stadtteil der Saarbrücken. Die Immobilie verfügt über eine Wohnfläche von ca. 103 m² und steht auf einem großzügigen Hanggrundstück mit 539 m² Fläche.


Raumaufteilung und Grundriss


Der Zugang zum Haus erfolgt über das Kellergeschoss. Hier befinden sich zwei praktische Kellerräume sowie eine integrierte Garage – ideal als Abstell-, Lager- oder Hobbyfläche.


Über eine Treppe gelangt man in das Erdgeschoss. Dieses bietet eine klassische Aufteilung mit:




  • Küche mit angrenzendem Essbereich




  • Wohnzimmer




  • Schlafzimmer




  • Badezimmer mit Badewanne




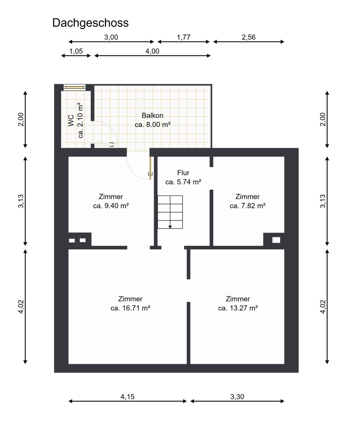
Im Dachgeschoss stehen drei weitere Zimmer zur Verfügung. Zusätzlich befindet sich hier eine weitere Küche, die alternativ auch als Schlafzimmer oder Arbeitszimmer genutzt werden kann. Von dieser Ebene aus besteht Zugang zu einem Balkon mit Ausblick in die Umgebung.


Grundstück


Das 539 m² große Hanggrundstück eröffnet vielseitige Gestaltungsmöglichkeiten – beispielsweise für eine Terrasse, Gartenanlagen oder individuelle Außenbereiche mit Weitblick.


Die Immobilie ist sanierungsbedürftig und bietet damit ideale Voraussetzungen für Käufer, die ihre eigenen Vorstellungen und modernen Wohnstandards verwirklichen möchten. Ob zur Eigennutzung oder als Investitionsobjekt – hier besteht die Chance, ein Haus mit Charakter und Geschichte neu zu gestalten.


Haben wir Ihr Interesse geweckt?
Wir freuen uns auf Ihre Kontaktaufnahme!
Ihre Immobilienspezialisten im Saarland
Bank1Saar Immobilien GmbH


Bausubstanz & Energieausweis

A+

A

B

C

D

E

F

189,3 kWh/(m²*a)

G

H

Wesentlicher Energieträger
Gas
Heizungsart
Zentralheizung
Befeuerung
Gasheizung
Energieausweis
liegt vor
Energieausweistyp
Bedarfsausweis
Ausstellungsdatum
04.03.2026
Gültig bis
03.03.2036
Energieeffizienzklasse
F
Endenergiebedarf
189,3 kWh/(m²*a)

Lagebeschreibung

Die Immobilie befindet sich im beliebten Stadtteil Gersweiler im Westen von Saarbrücken. Gersweiler gehört zum Stadtbezirk Saarbrücken-West und wird überwiegend durch die Postleitzahl 66128 geprägt. Der Ortsteil liegt nur etwa 4,8 km vom Saarbrücker Stadtzentrum entfernt und bietet damit eine gute Mischung aus ruhigem Wohnen und stadtnaher Lage.


Gersweiler selbst verfügt über eine gut ausgebaute lokale Infrastruktur:


Einkaufsmöglichkeiten, Supermärkte und lokale Geschäfte entlang der Hauptstraße


Schulen, Kindergärten und ärztliche Versorgung im Ort bzw. im nahen Umfeld


Freizeit- und Sportangebote, etwa Vereine und Grünflächen für Spaziergänge und Aktivitäten vor Ort


Die Lage profitiert von einer guten Verkehrsanbindung – sowohl mit dem Auto als auch mit dem öffentlichen Nahverkehr – Richtung Saarbrücken und Umgebung. Gleichzeitig bietet der Stadtteil ein familienfreundliches, ruhiges Wohnumfeld mit Nähe zu Waldgebieten und Erholungsflächen.


Wohnung finden so einfach wie möglich - das ist unsere Mission!

Kostenlose Basic Features

0 € monatlich


  • Individuelles Such-Profil anlegen
  • Suchaufträge speichern
  • One-Klick Kontaktaufnahme

alles anzeigen

Jetzt kostenlos anmelden

Premium Features

19,99 € monatlich


  • Alle kostenlosen Features
  • Smart-Alarm per Whatsapp
  • Deine Chancen checken
  • Wohngegend analysieren

alles anzeigen

Jetzt Premium freischalten

Gewerblicher Anbieter

Bank 1 Saar Immobilien GmbH
Kaiserstraße 17-19
66111 Saarbrücken

Wohnglück-ID:
Objekt-Nr.:
WGL-1179104
007305#eBkRJ