Wohn-Grundstück in Jettingen (Oberjettingen)

Teilerschlossenes Baugrundstück mit 307qm Fläche in beliebter Lage von Oberjettingen

Anfragen bisher

Premium

Meine Chancen

Premium

Fairer Preis

Premium

169.000 €

Kaufpreis

71131 Jettingen

Gewerblicher Anbieter

Ulmer Immobilien
Schubartweg 7
71120 Grafenau

Details

Grundstücksfläche
307 m²
Typ des Grundstücks
Wohn-Grundstück

Kosten

Kaufpreis
169.000 €
Käuferprovision
4.76% (inkl. MwSt.)
Was kostet dein Umzug?

Objektbeschreibung

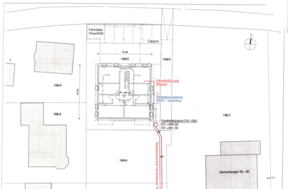
In Oberjettingen (Gemeinde Jettingen, Landkreis Böblingen) steht ein ca. 307 m² großes Baugrundstück zum Verkauf. Das Grundstück ist gemäß §34 BauGB bebaubar, sodass sich ein Bauvorhaben an der umliegenden Nachbarbebauung orientieren muss.


Das Grundstück ist teilerschlossen. Die Zufahrt über die öffentliche Straße ist bereits vorhanden. Wasser- und Abwasserleitungen befinden sich an der Grundstücksgrenze und können angeschlossen werden. Ein Stromanschluss kann über den zuständigen Netzbetreiber hergestellt werden. Eventuell noch erforderliche Erschließungsarbeiten sowie die entsprechenden Anschlusskosten sind vom Käufer zu tragen.


Nach Angaben der Gemeinde ist das Grundstück aktuell erschließungsbeitragsfrei.


Im Baulastenverzeichnis ist eine Baulast eingetragen, die einen entlang des Grundstücksrands verlaufenden Wasseranschluss zum Ortsnetz betrifft. Diese verläuft im Bereich der Herrenberger Straße. Der genaue Verlauf ist den entsprechenden Lageplänen sowie dem Baulastenverzeichnis zu entnehmen. Die Unterlagen liegen vor und können bei Bedarf zur Verfügung gestellt werden.


Bausubstanz & Energieausweis

Heizungsart
Sonstige

Lagebeschreibung

Das Grundstück befindet sich in einem ruhigen und gewachsenen Wohngebiet von Oberjettingen in naturnaher Umgebung. Einkaufsmöglichkeiten, Schulen, Kindergärten sowie Bushaltestellen sind bequem zu Fuß erreichbar. Über die nahegelegenen Verkehrsverbindungen B28 und A81 bestehen gute Anbindungen in Richtung Herrenberg, Böblingen und Stuttgart.


Sonstige Angaben

Die Käuferprovision beträgt 4,76 % des Kaufpreises inklusive 19% gesetzlicher Mehrwertsteuer. Die Provision ist
mit notariellem Kaufvertragsabschluss verdient und nach Rechnungsstellung an uns zu zahlen. Die Weitergabe des
Exposés an einen Dritten entbindet nicht von der Provisionspflicht dieses Angebots.
Alle Angaben sind ohne Gewähr und basieren ausschließlich auf Informationen, die uns von unserem Auftraggeber
zur Verfügung gestellt wurden. Wir übernehmen keine Gewähr für die Vollständigkeit, Richtigkeit und Aktualität dieser
Angaben. Die Grundrisse sind nicht maßstabsgetreu und dienen lediglich der Veranschaulichung. Das vorliegende
Exposé ist als unverbindliche Information zu verstehen und kann nicht als Rechtsgrundlage herangezogen werden.
Rechtskräftig ist ausschließlich der notariell abgeschlossene Kaufvertrag.
Für einen Besichtigungstermin und alle Informationen zur betreffenden Immobilie nutzen Sie einfach das obenstehende
Kontaktformular. Bitte beachten Sie, dass wir nur Anfragen mit vollständig angegebenen Kontaktdaten (Name,
Anschrift, Telefonnummer, E-Mail) bearbeiten können.
Ein aktueller Energieausweis wird bei der Besichtigung vorgelegt, falls erforderlich.


Wohnung finden so einfach wie möglich - das ist unsere Mission!

Kostenlose Basic Features

0 € monatlich


  • Individuelles Such-Profil anlegen
  • Suchaufträge speichern
  • One-Klick Kontaktaufnahme

alles anzeigen

Jetzt kostenlos anmelden

Premium Features

19,99 € monatlich


  • Alle kostenlosen Features
  • Smart-Alarm per Whatsapp
  • Deine Chancen checken
  • Wohngegend analysieren

alles anzeigen

Jetzt Premium freischalten

Gewerblicher Anbieter

Ulmer Immobilien
Schubartweg 7
71120 Grafenau

Wohnglück-ID:
Objekt-Nr.:
WGL-1168370
uwiqknkX