Etagenwohnung in Friedrichsdorf

Aufzug
Balkon/­Terrasse
Gäste WC
Keller
Einbauküche
Garage/­Stellplatz

Exklusive 3-Zimmer-Wohnung mit zwei Balkonen

Anfragen bisher

Premium

Meine Chancen

Premium

Fairer Preis

Premium

1.280 €

Kaltmiete

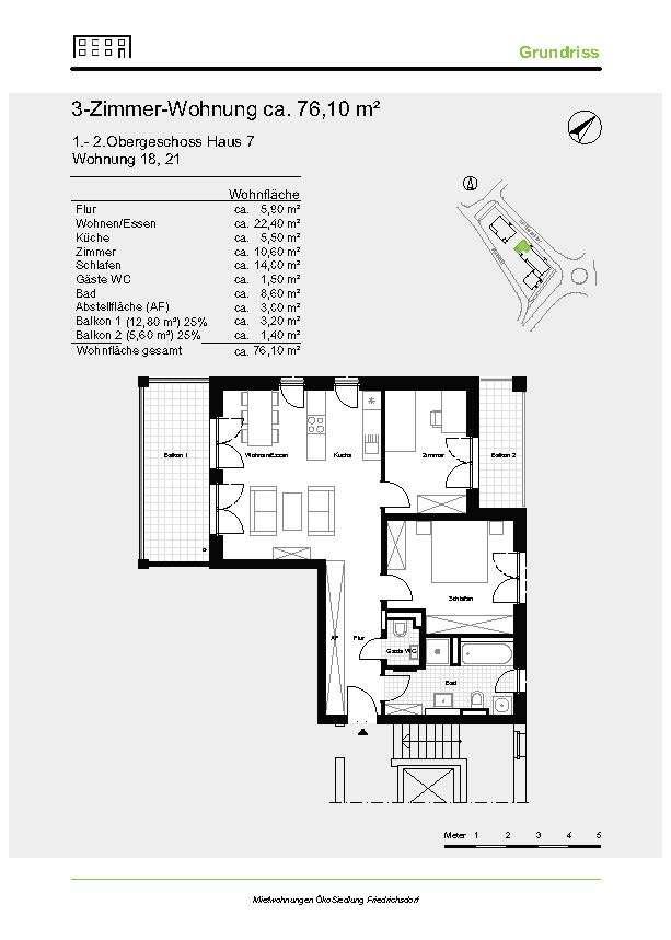
76,1 m²

3 Zi.

2. OG

Am Eisspeicher 4
61381 Friedrichsdorf

Gewerblicher Anbieter

FRANK Immobilien und Lebensformate GmbH
Untermainkai 40
60329 Frankfurt am Main

Details

Zimmerzahl
3
Wohnungstyp
Etagenwohnung
Etage, Geschoss
2
Etagenzahl
4
Bezugsfrei ab
01.04.2026
Anzahl Schlafzimmer
2
Anzahl Badezimmer
1
Anzahl Garage/ Stellplatz
1
Objektzustand
Neuwertig
Baujahr
2017

Kosten

Kaltmiete
1.280 €
Nebenkosten
282 €
Heizkosten
193 €
Was kostet dein Umzug?

Stellplätze

Stellplatztyp
Duplex
Anzahl
2
Miete
130 €

Objektbeschreibung

Achtung: Bei dem Bildern handelt es sich um Musterbilder.


Inmitten des zukunftsweisenden Stadtquartiers „ÖkoSiedlung“ erwartet Sie diese hochwertige 3‑Zimmer‑Wohnung aus dem Baujahr 2020 – ein Zuhause, das modernes Design, nachhaltige Bauweise und Wohnkomfort auf elegante Weise vereint.


Die stilvolle 3‑Zimmer‑Wohnung überzeugt durch einen durchdachten Grundriss, der Funktionalität und modernes Wohnen harmonisch miteinander verbindet. Großzügige Fensterflächen sorgen für eine helle, freundliche Atmosphäre und unterstreichen den hochwertigen Charakter der Wohnung. Edler Vollholzparkettboden in Kombination mit einer angenehmen Fußbodenheizung schafft ein behagliches Wohnambiente.


Das moderne Badezimmer ist mit einer bodengleichen Dusche sowie einer Badewanne ausgestattet und bietet zudem einen praktischen Anschluss für die Waschmaschine. Ein Balkon lädt zum Entspannen an der frischen Luft ein und erweitert den Wohnraum ins Freie.


Diese Wohnung richtet sich an anspruchsvolle Paare oder kleine Familien, die Wert auf Qualität, Design und ein modernes Wohnumfeld legen.


Bitte beachten Sie, dass die Miete für die beiden Stellplätze zusätzlich zur Wohnungsmiete anfällt.


Bausubstanz & Energieausweis

A+

A

B

54,6 kWh/(m²*a)

C

D

E

F

G

H

Objektzustand
Neuwertig
Wesentlicher Energieträger
Fernwärme
Heizungsart
Fernwärme
Befeuerung
Fernwärme
Energieausweis
liegt vor
Energieausweistyp
Bedarfsausweis
Ausstellungsdatum
28.01.2020
Gültig bis
28.01.2030
Energieeffizienzklasse
B
Endenergiebedarf
54,6 kWh/(m²*a)

Ausstattung


  • Lichtdurchflutete Räume mit vielen Fenstern

  • Hochwertiges Echtholz-Parkett in allen Wohn- und Schlafräumen

  • Fußbodenheizung

  • Moderne Einbauküche mit Elektrogeräten

  • Badezimmer mit bodengleicher Dusche und tiefgelegener Badewanne

  • Anschluss für WaMa und Trockner im Bad

  • zwei schöner Balkone Richtung SüdWesten und Nord/Osten

  • Aufzug bis in die Tiefgarage

  • Kellerabteil

  • zwei Stellplätze in der hauseigenen Tiefgarage

  • Besucherparkplätze in der Tiefgarage

  • Mitbenutzung von Fahrrad-Abstellplätzen


Lagebeschreibung

Das Objekt befindet sich in der ÖkoSiedlung. Diese befindet sich in Friedrichsdorf an der Homburger Landstraße beidseitig des Petterweiler Holzweges. Nach Süden hin schließt das Areal an die Kernstadt Friedrichsdorf an, das Zentrum ist zu Fuß in wenigen Minuten zu erreichen. Durch kurze Wege zum Hauptbahnhof Friedrichsdorf und zum Bahnhof Köppern sind die Bürger der Stadt optimal an das öffentliche Verkehrsnetz angebunden. Der Hauptbahnhof Frankfurt ist in etwa 30 Minuten erreichbar. Zudem ist Friedrichsdorf durch Buslinien an Bad Homburg und die Umgebung angeschlossen. Der Autobahnanschluss an die A 5 ist fünf Kilometer, die Innenstadt Frankfurts gut 20 Kilometer entfernt.
Friedrichsdorf bietet dank seiner großen Naturvielfalt zahlreiche Möglichkeiten der Erholung und Freizeitgestaltung (nah gelegen zum Sportpark Friedrichsdorf, Kletterwald Taunus oder zum 800 Meter entfernten Freibad). Auch für zahlreiche Shoppingmöglichkeiten ist in Friedrichsdorf gesorgt. Die Entfernung von der ÖkoSiedlung zur Innenstadt beträgt nur etwa einen Kilometer. Hier befindet sich das Einkaufszentrum „Taunus Carré“. Zudem gibt es in der Hugenottenstraße zahlreiche Geschäfte, Cafés und Gastronomieangebote, die zum Bummeln, Verweilen und Genießen einladen.


Sonstige Angaben

*Indexmiete: Die Miete wird durch den vom Statistischen Bundesamt ermittelten Preisindex für die Lebenshaltung aller privaten Haushalte in Deutschland (Verbraucherpreisindex für Deutschland) bestimmt. Eine erste Änderung der Miete kann frühestens nach Ablauf eines Jahres vorgenommen werden.


**Der Mietvertrag wird auf unbestimmte Zeit mit einem Kündigungsausschluss für die ersten 24 Monate abgeschlossen.


***Beachten Sie bitte, dass die Stellplatzmiete zusätzlich zur Wohnungsmiete anfällt.


Wir freuen uns auf Ihre Kontaktaufnahme, um mit Ihnen einen persönlichen Besichtigungstermin abzustimmen.


Wohnung finden so einfach wie möglich - das ist unsere Mission!

Kostenlose Basic Features

0 € monatlich


  • Individuelles Such-Profil anlegen
  • Suchaufträge speichern
  • One-Klick Kontaktaufnahme

alles anzeigen

Jetzt kostenlos anmelden

Premium Features

19,99 € monatlich


  • Alle kostenlosen Features
  • Smart-Alarm per Whatsapp
  • Deine Chancen checken
  • Wohngegend analysieren

alles anzeigen

Jetzt Premium freischalten

Gewerblicher Anbieter

FRANK Immobilien und Lebensformate GmbH
Untermainkai 40
60329 Frankfurt am Main

Wohnglück-ID:
Objekt-Nr.:
WGL-1164120
3990.204