Zinshaus / Renditenobjekt in Königswinter

Balkon/­Terrasse
Garten/­-mitbenutzung
Garage/­Stellplatz

Neubau-Kapitalanlage: Zwei Zweifamilienhäuser | 4 WE | 303 m² WFL | KfW 55 | Königswinter-Ittenbach

Anfragen bisher

Premium

Meine Chancen

Premium

Fairer Preis

Premium

1.560.442 €

Kaufpreis

303,06 m²

12 Zi.

Grundriss

53639 Königswinter

Gewerblicher Anbieter

HausHirsch GmbH
Dreischeibenhaus 1
40211 Düsseldorf

Details

Grundstücksfläche
754 m²
Zimmerzahl
12
Typ der Gewerbeimmobilie
Zinshaus / Renditenobjekt
Etagenzahl
2
Nutzfläche
20,2 m²
Anzahl Schlafzimmer
8
Anzahl Badezimmer
4
Anzahl Garage/ Stellplatz
1
Objektzustand
Erstbezug
Baujahr
2026

Kosten

Kaufpreis
1.560.442 €
Käuferprovision
5,95%
Die angegebene Käuferprovision (inkl. MwSt.) ist verdient und fällig mit Beurkundung des notariellen Kaufvertrages.
Was kostet dein Umzug?

Stellplätze

Stellplatztyp
Freiplatz
Anzahl
5

Objektbeschreibung

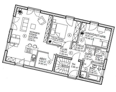
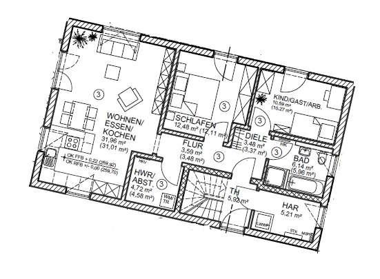
Zum Verkauf steht ein hochwertiges Neubau-Gesamtpaket bestehend aus zwei Zweifamilienhäusern mit insgesamt vier Wohneinheiten. Die Wohnungen verfügen über Wohnflächen zwischen ca. 72,59 m² und ca. 78,94 m² und bilden zusammen eine Gesamtwohnfläche von ca. 303,06 m². Ergänzt werden die Einheiten jeweils durch zusätzliche Nutzflächen.


Das Projekt ist als Neubau nach dem KfW-55-Standard konzipiert und richtet sich gezielt an Kapitalanleger, die in einen überschaubaren, modernen Wohnbestand mit klarer Struktur, zeitgemäßer Technik und langfristiger Vermietbarkeit investieren möchten.


Baubeginn erfolgt direkt nach Verkauf. Individuelle Anpassungen sind somit noch umsetzbar.


Die vier Wohnungen verteilen sich auf zwei Erdgeschosswohnungen mit privaten Terrassen- und Gartenanteilen sowie zwei Dachgeschosswohnungen, ebenfalls mit Gartenanteil. Außerdem sind insgesamt fünf Stellplätze vorgesehen. Die ausgewogene Größenstruktur spricht eine breite, solide Mieterzielgruppe an – von Paaren bis hin zu kleinen Familien. Moderne Architektur, gehobene Ausstattung und eine energieeffiziente Bauweise bilden die Grundlage für eine nachhaltige und werthaltige Kapitalanlage.


Bausubstanz & Energieausweis

Objektzustand
Erstbezug
Wesentlicher Energieträger
Strom
Heizungsart
Elektroheizung
Befeuerung
Elektroheizung
Energieausweis
Bei Besichtigung

Ausstattung

Das Gesamtangebot umfasst zwei hochwertig geplante Zweifamilienhäuser mit jeweils zwei Wohneinheiten und ist als Neubau nach dem KfW-55-Standard konzipiert. Die klare Struktur des Projekts mit insgesamt vier Wohnungen und einer Gesamtwohnfläche von ca. 303,06 m² schafft ideale Voraussetzungen für eine langfristig stabile Kapitalanlage.


Die Wohnungen gliedern sich in zwei Erdgeschosswohnungen sowie zwei Dachgeschosswohnungen. Ergänzt werden alle Einheiten durch zusätzliche Nutzflächen innerhalb der jeweiligen Wohnung.


Alle Wohneinheiten entstehen als Erstbezug nach Fertigstellung und verfügen über eine gehobene Neubauausstattung, die auf Nachhaltigkeit, Komfort und geringe Folgekosten ausgelegt ist:



  • 4 Wohnungen, jeweils mit 3 Zimmern

  • davon 2 Schlafzimmer pro Wohnung

  • Tageslichtbäder, wahlweise als Dusch- oder Wannenbad

  • die beiden Erdgeschosswohnungen mit privaten Terrassen

  • die beiden Dachgeschosswohnungen mit je einem Balkon

  • jeweils mit Gartenanteil bzw. Gemeinschaftsgartennutzung

  • jeweils ein Abstellraum pro Wohnung

  • Neubau nach KfW-55-Standard

  • Wärmepumpe (Energieträger Strom)

  • Photovoltaikanlage

  • Fußbodenheizung

  • kontrollierte Wohnraumlüftung mit Wärmerückgewinnung

  • 3-fach verglaste Klimaschutzfenster

  • elektrische Rollläden

  • hochwertige Sanitärausstattung

  • E-Auto-Anschlüsse vorbereitet

  • Blower-Door-Test

  • Rauchmelder in allen Schlafräumen

  • Außenwasseranschlüsse (Terrasse wie auch Balkone)

  • insgesamt fünf Stellplätze


Dieses Investment vereint überschaubares Volumen, moderne Neubauqualität und eine klare Wohnungsstruktur. Eine Kapitalanlage für Investoren, die auf Substanz, Energieeffizienz und langfristige Vermietbarkeit setzen – kalkulierbar, werthaltig und zukunftsfähig aufgestellt.


Lagebeschreibung

Königswinter-Ittenbach überzeugt durch seine hervorragende Kombination aus naturnahem Wohnen und sehr guter Verkehrsanbindung. Die Autobahnanschlüsse zur A3 und A59 sind in wenigen Minuten erreichbar und ermöglichen eine schnelle Verbindung nach Bonn, Köln und in den Rhein-Sieg-Kreis. Auch Berufspendler profitieren von der guten Anbindung an den öffentlichen Nahverkehr mit Busverbindungen in Richtung Königswinter-Zentrum, Bad Honnef und Bonn.


Für Familien bietet Ittenbach eine ausgezeichnete Infrastruktur. Kindergärten, Kitas sowie Grund- und weiterführende Schulen befinden sich im Ort bzw. in den angrenzenden Stadtteilen und sind gut erreichbar. Das familienfreundliche Umfeld, kurze Wege und eine gewachsene Nachbarschaft machen die Lage besonders attraktiv für junge Familien und Mehrgenerationenkonzepte.


Einkaufsmöglichkeiten für den täglichen Bedarf, Supermärkte, Bäckereien sowie Ärzte und Apotheken sind im Ort vorhanden. Weitere Angebote, Fachärzte und größere Einkaufszentren finden sich in Königswinter, Bad Honnef oder Bonn – alles in kurzer Fahrzeit erreichbar.


Die Lage am Rande des Siebengebirges bietet einen hohen Freizeit- und Erholungswert. Zahlreiche Wander- und Radwege, Naturflächen sowie Ausflugsziele laden zu aktiver Erholung ein. Sportvereine, Freizeitangebote und die Nähe zum Rhein sorgen für eine hohe Lebensqualität – ein klarer Standortvorteil sowohl für Eigennutzer als auch für Mieter.


Wohnung finden so einfach wie möglich - das ist unsere Mission!

Kostenlose Basic Features

0 € monatlich


  • Individuelles Such-Profil anlegen
  • Suchaufträge speichern
  • One-Klick Kontaktaufnahme

alles anzeigen

Jetzt kostenlos anmelden

Premium Features

19,99 € monatlich


  • Alle kostenlosen Features
  • Smart-Alarm per Whatsapp
  • Deine Chancen checken
  • Wohngegend analysieren

alles anzeigen

Jetzt Premium freischalten

Gewerblicher Anbieter

HausHirsch GmbH
Dreischeibenhaus 1
40211 Düsseldorf

Wohnglück-ID:
Objekt-Nr.:
WGL-1162755
HA2531504