Wohn-Grundstück in Rheinbrohl

1232 m² großes Grundstück mit Baugenehmingung für ein Einfamilienhaus in Rheinbrohl-Ort Provisionsfr

Anfragen bisher

Premium

Meine Chancen

Premium

Fairer Preis

Premium

89.000 €

Kaufpreis

Kehrstraße 146
56598 Rheinbrohl

Gewerblicher Anbieter

Immo-Connect GmbH
Frankfurter Str. 73a
53773 Hennef

Details

Grundstücksfläche
1.232 m²
Typ des Grundstücks
Wohn-Grundstück

Kosten

Kaufpreis
89.000 €
Käuferprovision
keine
Was kostet dein Umzug?

Objektbeschreibung

Das angebotene Grundstück befindet sich in der malerischen Gemeinde Rheinbrohl, eingebettet in die atemberaubende Landschaft des rheinland-pfälzischen Wiedtals.


Diese Region zeichnet sich durch ihre idyllische Verbindung von Natur und Geschichte aus, wo sanfte Hügel auf die historischen Relikte des Limes treffen, der zum UNESCO-Weltkulturerbe gehört.


Rheinbrohl bietet eine ruhige, familienfreundliche Atmosphäre, die durch eine gute Anbindung an das Verkehrsnetz ergänzt wird.


In unmittelbarer Nähe finden sich charmante Wander- und Radwege, die zur Erkundung der grünen Umgebung einladen.


Der Rhein lockt mit seinen beeindruckenden Uferlandschaften und bietet Möglichkeiten für zahlreiche Wassersportaktivitäten.


Dank der guten Infrastruktur sind Einkaufsmöglichkeiten, Schulen und Ärzte bequem erreichbar und sorgen für ein komfortables Leben in einem traditionellen und zugleich dynamischen Umfeld.


Diese Lage verspricht nicht nur eine hohe Lebensqualität, sondern auch ein einzigartiges Wohngefühl in der Natur, ohne auf die Vorzüge der städtischen Nähe verzichten zu müssen.Dieses großzügige ca. 1232m² große Grundstück bietet durch die Steilhanglage viel Platz für ein extravagantes Domizil. Das Grundstück ist voll erschlossen und wird mit Baugenehmigung verkauft.


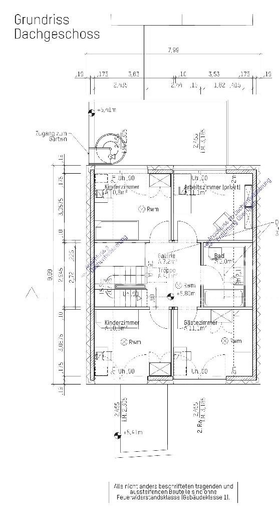
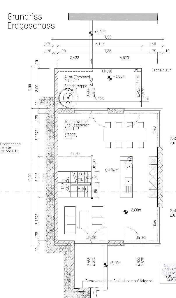
Auf dem Grundstück zu realisieren ist ein Einfamilienhaus mit ca. 177m² Wohnfläche, aufgeteilt auf 3 Etagen. Die Pläne hierzu finden Sie im Exposé.
Außerdem geplant sind zu der Immobilie 2 Außenstellplätze.


Da es für dieses Grundstück keinen rechtskräftigen Bebauungsplan gibt, ist hier nach planungsrechtlicher Zulässigkeit des Neubaus gemäß §34 BauGB zu ermitteln.


Wir haben Ihnen einen Videolink beigefügt, der die virtuelle Realisierung des Neubaus mit aktueller Baugenehmigung beispielhaft darstellt.
https://webobook.com/public/616ad9fc3a7c043e5111cfb2,en


Falls Sie an weiteren Unterlagen interessiert sind, können Sie hierzu gerne eine Anfrage über das Immobilienportal stellen.


Ein Energieberater für die Anträge für die KFW Bank steht auch bereit .


Bausubstanz & Energieausweis

Heizungsart
Sonstige
Energieausweis
Laut Gesetz nicht erforderlich

Lagebeschreibung

Rheinbrohl ist eine Ortsgemeinde im Landkreis Neuwied in Rheinland-Pfalz. Sie gehört der Verbandsgemeinde Bad Hönningen an. Rheinbrohl ist ein kleiner Weinort und liegt am rechten Ufer des Mittelrheins gegenüber von Brohl-Lützing und unmittelbar südlich der Stadt Bad Hönningen. Das Gemeindegebiet gehört zum Naturpark Rhein-Westerwald.


Rheinbrohl lädt zum Wandern auf den Spuren der Römer durch ausgedehnte Wälder entlang des Limes ein. Hier findet man Kultur, Natur, guten Wein und gute Küche. Ein Ort zum Genießen und für Genießer.


Bad Hönningen liegt direkt an der B 42 und hat über diese Anschluss an die Autobahn A 48 (Abfahrt Bendorf (Nr. 11)) und A 59 (Autobahnkreuz Bonn-Ost (Nr. 42)). Die Landesstraße 257 verbindet Bad Hönningen direkt mit dem Wiedtal und dem Westerwald. Mit einer Autofähre an der Grenze zu Rheinbrohl ist die B 9 im linksrheinischen Bad Breisig zu erreichen. Eine Personenfähre verbindet Bad Hönningen mit Bad Breisig.


Wohnung finden so einfach wie möglich - das ist unsere Mission!

Kostenlose Basic Features

0 € monatlich


  • Individuelles Such-Profil anlegen
  • Suchaufträge speichern
  • One-Klick Kontaktaufnahme

alles anzeigen

Jetzt kostenlos anmelden

Premium Features

19,99 € monatlich


  • Alle kostenlosen Features
  • Smart-Alarm per Whatsapp
  • Deine Chancen checken
  • Wohngegend analysieren

alles anzeigen

Jetzt Premium freischalten

Gewerblicher Anbieter

Immo-Connect GmbH
Frankfurter Str. 73a
53773 Hennef

Wohnglück-ID:
Objekt-Nr.:
WGL-1159912
5898