Wohn-Grundstück in Bobingen

Baugrundstück in Bobingen, idyllische Lage zwischen Stadt und Natur

Anfragen bisher

Premium

Meine Chancen

Premium

Fairer Preis

Premium

320.000 €

Kaufpreis

86399 Bobingen

Gewerblicher Anbieter

Garant Immobilien München GmbH
Ulmer Straße 150
86156 Augsburg

Details

Grundstücksfläche
400 m²
Typ des Grundstücks
Wohn-Grundstück

Kosten

Kaufpreis
320.000 €
Käuferprovision
2,38 % (inkl. MwSt.)
Was kostet dein Umzug?

Objektbeschreibung

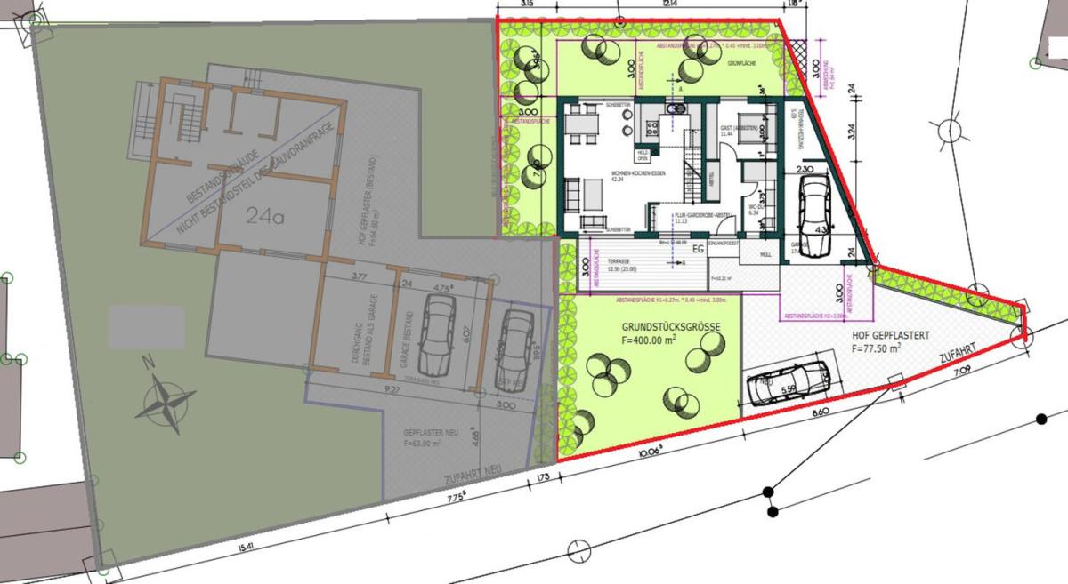
Zum Verkauf steht ein noch ungeteiltes Baugrundstück in einer der gefragtesten Wohngegenden Bobingens. Hier verbindet sich ruhiges Wohnen in naturnaher Umgebung mit kurzen Wegen ins Stadtzentrum, eine perfekte Balance für alle, die sowohl Stadtnähe als auch Natur genießen möchten. Das Grundstück ist ideal für den Bau eines modernen Einfamilienhauses. Dank §34 BauGB ist die Bebauung flexibel nach Nachbarschaftsbebauung möglich. Ein Bauantrag für ein stilvolles Einfamilienhaus mit Flachdach wurde bereits eingereicht und positiv bewertet: Sie können sofort loslegen. Ob als Eigenheim oder Kapitalanlage, dieses Grundstück bietet eine seltene Gelegenheit in Bobingen!



Weitere Angebote unter www.GARANT-IMMO.de


Bausubstanz & Energieausweis

Heizungsart
Sonstige

Lagebeschreibung


  • ruhige, gewachsene Wohngegend mit guter Nachbarschaft

  • nur wenige Schritte bis zum Wald,
    perfekt für Spaziergänge und Freizeitaktivitäten

  • gleichzeitig kurze Wege ins Stadtzentrum von Bobingen
    mit allen Einkaufsmöglichkeiten

  • hervorragende Anbindung nach Augsburg


Sonstige Angaben

Grundstücksfläche: ca. 400 m² (auf Wunsch auch größere Teilfläche möglich)
Erschließung: teilerschlossen
Bebauung nach §34 BauGB (Nachbarschaftsbebauung)
Positives Feedback für Bauantrag (Einfamilienhaus mit Flachdach) liegt bereits vor


Wohnung finden so einfach wie möglich - das ist unsere Mission!

Kostenlose Basic Features

0 € monatlich


  • Individuelles Such-Profil anlegen
  • Suchaufträge speichern
  • One-Klick Kontaktaufnahme

alles anzeigen

Jetzt kostenlos anmelden

Premium Features

19,99 € monatlich


  • Alle kostenlosen Features
  • Smart-Alarm per Whatsapp
  • Deine Chancen checken
  • Wohngegend analysieren

alles anzeigen

Jetzt Premium freischalten

Gewerblicher Anbieter

Garant Immobilien München GmbH
Ulmer Straße 150
86156 Augsburg

Wohnglück-ID:
Objekt-Nr.:
WGL-1145746
313.007