Mehrfamilienhaus in Elze

Einbauküche

Mehrfamilienhaus mit Entwicklungspotenzial – Kernsanierung erforderlich

Anfragen bisher

Premium

Meine Chancen

Premium

Fairer Preis

Premium

49.000 €

Kaufpreis

17 Zi.

31008 Elze

Gewerblicher Anbieter

McMakler GmbH
Am Postbahnhof 17
10243 Berlin

Details

Grundstücksfläche
223 m²
Zimmerzahl
17
Haustyp
Mehrfamilienhaus
Etagenzahl
3
Nutzfläche
330 m²
Bezugsfrei ab
ab sofort
Anzahl Schlafzimmer
5
Anzahl Badezimmer
3
Objektzustand
Abrissobjekt
Baujahr
1887

Kosten

Kaufpreis
49.000 €
Käuferprovision
keine
Was kostet dein Umzug?

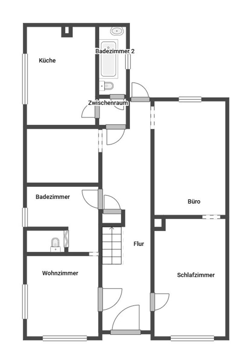
Objektbeschreibung

Objektnr: 1070466



  • Mehrfamilienhaus mit 3 Einheiten in Elze für Eigennutzung oder Vermietung

  • Rendite- und Vermietungspotenzial gegeben

  • Nutzen Sie den anstehenden Sanierungsbedarf zur Realisierung Ihrer Ideen


Bausubstanz & Energieausweis

A+

A

B

C

D

E

F

G

H

340,6 kWh/(m²*a)

Baujahr
1887
Objektzustand
Abrissobjekt
Wesentlicher Energieträger
Öl
Heizungsart
Zentralheizung
Befeuerung
Ölheizung
Energieausweis
liegt vor
Energieausweistyp
Bedarfsausweis
Energieeffizienzklasse
H
Endenergiebedarf
340,6 kWh/(m²*a)

Lagebeschreibung

Lage: Attraktive urbane Lage in Elze-Elze bietet große Vielfalt für Kulturbegeisterte und kurze Wege
Bildung und Betreuung: Familien profitieren von Kindergarten und Schule in max. 800 m Entfernung
Nahversorgung: Supermarkt, Apotheke, Postfiliale und Bankfiliale in weniger als 5 Gehminuten Entfernung
Anbindung: Bushaltestelle und Autobahn komfortabel erreichbar


Sonstige Angaben

Vereinbaren Sie noch heute einen Besichtigungstermin!








Alle Angaben sind ohne Gewähr und basieren ausschließlich auf Informationen, die uns von unserem Auftraggeber zur Verfügung gestellt wurden. Wir übernehmen keine Gewähr für die Vollständigkeit, Richtigkeit und Aktualität der Angaben.


Wohnung finden so einfach wie möglich - das ist unsere Mission!

Kostenlose Basic Features

0 € monatlich


  • Individuelles Such-Profil anlegen
  • Suchaufträge speichern
  • One-Klick Kontaktaufnahme

alles anzeigen

Jetzt kostenlos anmelden

Premium Features

19,99 € monatlich


  • Alle kostenlosen Features
  • Smart-Alarm per Whatsapp
  • Deine Chancen checken
  • Wohngegend analysieren

alles anzeigen

Jetzt Premium freischalten

Gewerblicher Anbieter

McMakler GmbH
Am Postbahnhof 17
10243 Berlin

Wohnglück-ID:
Objekt-Nr.:
WGL-1144425
698b135589e009221375c2fa