Büro / Praxen in Straubing

Garten/­-mitbenutzung
Keller
Einbauküche

Flexible Gewerbefläche zu vermieten: Ober- und Dachgeschoss mit Dachterrasse

Anfragen bisher

Premium

Meine Chancen

Premium

Fairer Preis

Premium

Auf Anfrage

Kaufpreis

94315 Straubing

Gewerblicher Anbieter

Raiffeisen Immobilienzentrum
Wittelsbacherhöhe 14
94315 Straubing

Details

Typ der Gewerbeimmobilie
Büro / Praxen
Objektzustand
Gepflegt
Baujahr
2002

Kosten

Kaufpreis
Auf Anfrage
Was kostet dein Umzug?

Objektbeschreibung

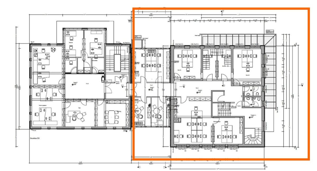
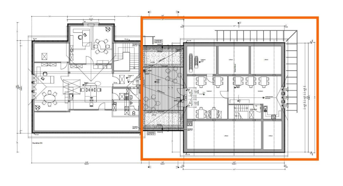
Individuell belegbar ist dieser Teil des Gewerbeobjekts mit ca. 398 m² Gesamtfläche in Straubing-Ittling. Über das Ober- und Dachgeschoss hinweg verteilen sich insgesamt Büro-/Besprechungsräume mit Platz für ca. 28 Arbeitsplätzen. Das Objekt lässt sich in mehrere abgetrennte Einheiten aufteilen. Im Keller befinden sich großzügige Lagerflächen und ausreichend Sanitärräume.


Im Erdgeschoss befinden sich zwei separate Gewerbeeinheiten die bereits vermietet sind.


Im Obergeschoss und Dachgeschoss finden sich die zu vermietenden Einheiten: das "Obergeschoss 2" mit ca. 214 m² und das "Dachgeschoss 2" auf der rechten Seite mit ca. 61 m², welches zusammen mit dem "Obergeschoss 2" vermietet wird. Im angrenzenden großem Raum können Besprechungen, Schulungen etc. stattfinden.


Für kurze Pausen oder an schönen, sonnigen Tagen bietet die Dachterrasse einen Entspannungsort und bietet einen herrlichen Ausblick.


Im optional mietbaren Kellerbereich befinden sich Sanitärräume und weitere Lagerräume.
Ausreichend Parkmöglichkeiten befinden sich direkt am und um das Gebäude, sowie bietet die Bahn-Haltestation eine weitere attraktive Anbindung zu diesem Gewerbeobjekt.


Die Gewerbeeinheit:
OG 2: 8 (Büro-)Räume, WC
DG 2: 1 (Büro-)Räume, Küche + Dachterrasse
UG: 4 Lagerräume


Die Gewerbeeinheit steht leer und kann jederzeit besichtigt werden.


Die Mietpreise variieren je nach Einheit.
Bei der Anmietung von mehreren Einheiten wird ein individueller Mietpreis vereinbart.


Der Stauraum im Keller kann nach individuellem Bedarf gemietet werden.


Bausubstanz & Energieausweis

Baujahr
2002, Anbau 2012
Objektzustand
Gepflegt
Wesentlicher Energieträger
Elektroenergie, Pellets
Heizungsart
Zentralheizung
Befeuerung
Elektroheizung
Energieausweis
liegt vor
Energieausweistyp
Verbrauchsausweis
Ausstellungsdatum
04.06.2025
Gültig bis
03.06.2035
Energieverbrauch für Warmwasser enthalten
Ja

Ausstattung

Gewerbeeinheit mit ca. 358 m² Gesamtfläche


OG 2 ca. 214 m² mit ca. 22 Arbeitsplätzen
DG 2 ca. 61 m² mit ca. 7 Arbeitsplätzen (+ Dachterrasse)
KG ca. 123 m² optional mietbar


Diverse Büro- Besprechungsräume
Dachterrasse
Sozialraum / Community Area
Direkt gegenüber Bahnhofsstelle Ittling
Ausreichend Parkmöglichkeiten (40 Stellplätze) direkt vor der Tür
Separate Eingänge möglich
Kellergeschoss mit ca. 123 m² Nutzfläche, darunter viel Lagerfläche


Lagebeschreibung

Die Gewerbeeinheit befindet sich in Ittling, einem Ortsteil von Straubing, direkt am dortigen Bahnhof. Bis zur B20 sind es ca. 1,5 km, bis ins Stadtzentrum von Straubing ca. 5 km.


Durch die öffentlichen Verkehrsmittel, die Sie in wenigen Minuten von dem Objekt aus erreichen, kommen Sie wunderbar in die Innenstadt, zu den Einkaufsmöglichkeiten, die Sie für den Alltag benötigen, Ärztezentrum, Bildungseinrichtungen wie auch die Universität.


Straubing ist mit rund 48.000 Einwohnern eine liebenswerte Studentenstadt, in Mitte des Gäubodens. Altbayerische Lebensart, Kultur und modernes Leben vereinen sich hier. Die niederbayerische Stadt spielt in allen Bereichen eine führende Rolle, wie zum Beispiel in modernen Freizeiteinrichtungen, Tiergarten und das neue Stadttheater.
In den warmen Sommermonaten ist die Donau ein optimaler Ort um sich mit Freunden oder Familie eine gemütliche zeit zu machen. Auch die fünfte Jahreszeit, das Gäubodenvolksfest, zieht als zweitgrößtes Volksfest Bayerns jedes Jahr mehr als eine Millionen Besucher nach Straubing.


Wohnung finden so einfach wie möglich - das ist unsere Mission!

Kostenlose Basic Features

0 € monatlich


  • Individuelles Such-Profil anlegen
  • Suchaufträge speichern
  • One-Klick Kontaktaufnahme

alles anzeigen

Jetzt kostenlos anmelden

Premium Features

19,99 € monatlich


  • Alle kostenlosen Features
  • Smart-Alarm per Whatsapp
  • Deine Chancen checken
  • Wohngegend analysieren

alles anzeigen

Jetzt Premium freischalten

Gewerblicher Anbieter

Raiffeisen Immobilienzentrum
Wittelsbacherhöhe 14
94315 Straubing

Wohnglück-ID:
Objekt-Nr.:
WGL-1127311
2407-E - 2