Einfamilienhaus freistehend in Homburg (Einöd)

Balkon/­Terrasse
Garten/­-mitbenutzung
Gäste WC
Keller
Garage/­Stellplatz

Großzügiges, freistehendes Einfamilienhaus mit Garage ist bester Lage von Homburg-Einöd!

Anfragen bisher

Premium

Meine Chancen

Premium

Fairer Preis

Premium

359.000 €

Kaufpreis

175,87 m²

7 Zi.

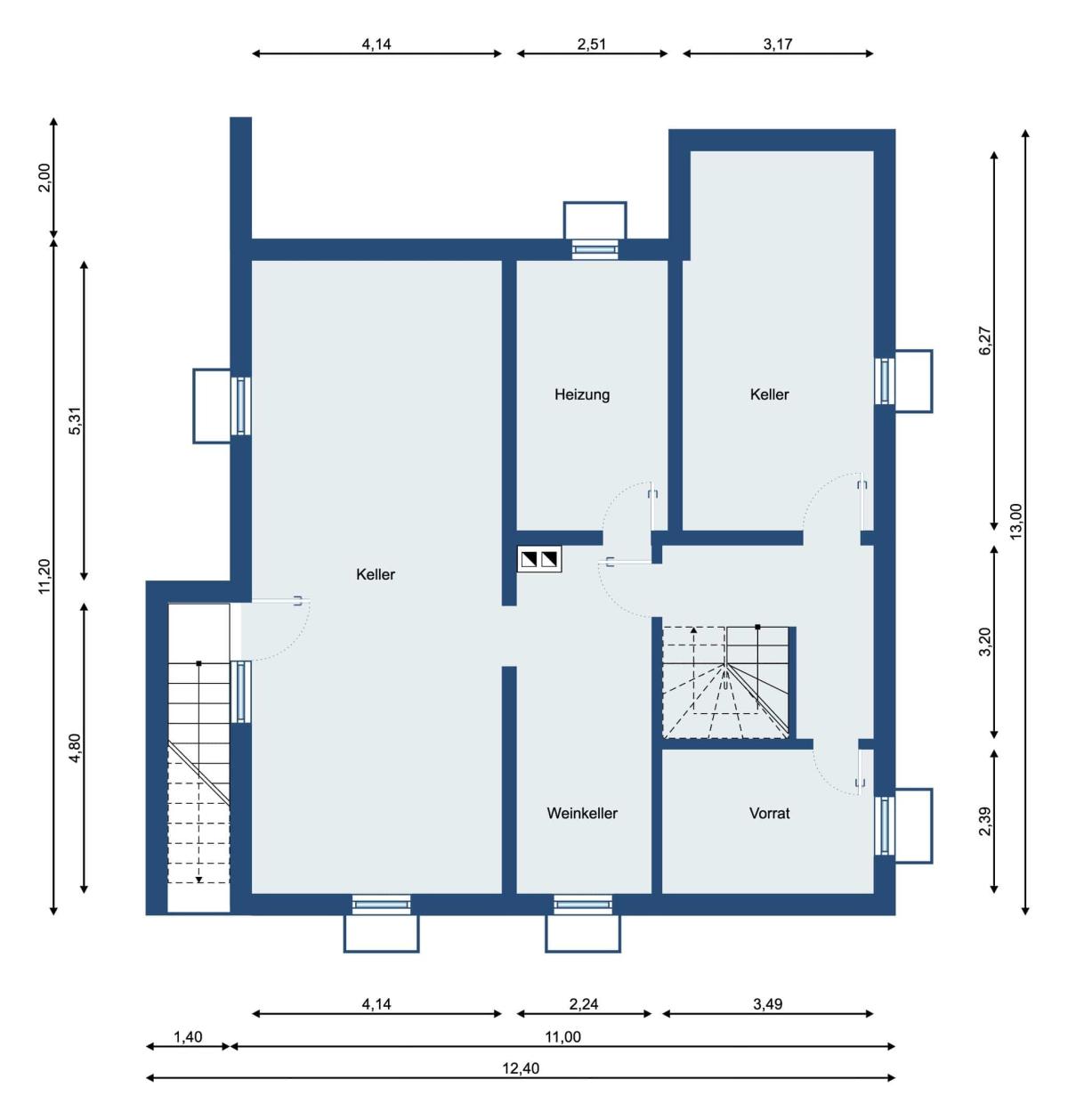
Grundriss

66424 Homburg

Gewerblicher Anbieter

Bank 1 Saar Immobilien GmbH
Kaiserstraße 17-19
66111 Saarbrücken

Details

Grundstücksfläche
811 m²
Zimmerzahl
7
Haustyp
Einfamilienhaus freistehend
Etagenzahl
1
Nutzfläche
129,3 m²
Anzahl Garage/ Stellplatz
1
Objektzustand
Gepflegt
Letzte Modernisierung/ Sanierung
2021

Kosten

Kaufpreis
359.000 €
Käuferprovision
3,57 %
Was kostet dein Umzug?

Stellplätze

Stellplatztyp
Freiplatz
Anzahl
2

Objektbeschreibung

Sie sind auf der Suche nach einem großzügigen Einfamilienhaus ist bester Lage von Homburg-Einöd? Dann haben wir mit großer Sicherheit eine tolle Immobilie für Sie und Ihre Familie. Lassen Sie sich diese Chance nicht entgehen!
Die freistehende Immobilie wurde als Einfamilienhaus konzipiert und im Jahre 1980 in Massivbauweise errichtet. Die Wohnfläche beträgt ca. 175,87 m² und teilt sich auf in ein Erdgeschoss und ein Dachgeschoss. Weitere ca. 130 m² Nutzfläche stehen im großzügigen Keller mit insgesamt 5 Räumen und in der separaten Garage zur Verfügung.
Die Immobilie präsentiert sich in einem gepflegten Zustand. Die Heizungsanlage wurde im Jahre 2005 durch eine neue Gas-Brennwertheizung als Zentralheizung mit Warmwasser ersetzt. Zusätzlich wird die Warmwasser-Generierung über eine Solarkollektoren-Anlage (auf dem Dach befindlich) unterstützt.
Im Jahre 2006 wurde eine neue Einbauküche erworben und individuell eingebaut. Im Jahre 2010 wurden 12 Photovoltaikmodule auf dem Dach der Immobilie verbaut zu einer 2,87 kWp Photovoltaikanlage, die in die Stromversorgung eingespeist wird.
Die Immobilie präsentiert sich auch energetisch auf einem guten Niveau durch die Auswahl der Materialien der thermischen Hülle (Kalksandstein 36,5 cm und Gasbeton-Stein 25 cm) und durch die Dämmung der obersten Geschossdecke mit Mineralwolle.
Im Wohnbereich im Erdgeschoss ist eine Fußbodenheizung verbaut und liefert den Räumlichkeiten eine tolle Wärme. Die restlichen Zimmer der Immobilie sind mit Heizkörpern ausgestattet.
Die Aufteilung der Etagen ist wie folgt: Im Erdgeschoss betreten Sie das Haus und verweilen zunächst in einem Windfang, wo von das Gäste WC und ein Arbeitszimmer zu erreichen ist. Fortan gelangen Sie in den großzügigen Flur. Von hier kommen Sie zum Badezimmer, Schlafzimmer und zum tollen, lichtdurchfluteten Wohnzimmer mit Zugang zur Terrasse (elektrischer Rollladen). Die Küche und den HWR erreichen Sie vom Wohnzimmer aus. Der Abstellraum hat einen zusätzlichen Zugang zur Terrasse.
Im schönen Dachgeschoss stehen Ihnen zwei Kinderzimmer und ein tolles Dachstudio mit Balkon zur Verfügung.
Insgesamt eine solide, freistehende Immobilie in schöner, verkehrsberuhigter Lage in Homburg-Einöd!


Für Fragen und Wünsche stehen wir Ihnen jederzeit gerne zur Verfügung; Ihr Immobilienspezialist im Saarland; Bank1Saar Immobilien GmbH


Bausubstanz & Energieausweis

A+

A

B

C

D

119,7 kWh/(m²*a)

E

F

G

H

Objektzustand
Gepflegt
Letzte Modernisierung
2021
Wesentlicher Energieträger
Gas
Heizungsart
Zentralheizung
Befeuerung
Gasheizung
Energieausweis
liegt vor
Energieausweistyp
Bedarfsausweis
Ausstellungsdatum
07.02.2026
Gültig bis
06.02.2036
Energieeffizienzklasse
D
Endenergiebedarf
119,7 kWh/(m²*a)

Lagebeschreibung

Das Objekt liegt in toller und ruhiger Lage von Homburg-Einöd in einer verkehrsberuhigten Sackgasse und profitiert von einer hervorragenden Verkehrsanbindung. Die Autobahn A8 ist in wenigen Minuten erreichbar und bietet eine schnelle Verbindung nach Homburg, Zweibrücken und Kaiserslautern. Auch der öffentliche Nahverkehr ist optimal ausgebaut - eine Bushaltestelle befindet sich in unmittelbarer Nähe, der Bahnhof Einöd ist nur wenige Minuten entfernt und ermöglicht eine bequeme Anbindung an die Region.


Alle wichtigen Einrichtungen des täglichen Bedarfs wie Einkaufsmöglichkeiten, Schulen, Ärzte und Gastronomie befinden sich in der Umgebung und sind schnell erreichbar. Die Lage bietet somit sowohl für Gewerbetreibende als auch für Familien eine attraktive Infrastruktur.


Wohnung finden so einfach wie möglich - das ist unsere Mission!

Kostenlose Basic Features

0 € monatlich


  • Individuelles Such-Profil anlegen
  • Suchaufträge speichern
  • One-Klick Kontaktaufnahme

alles anzeigen

Jetzt kostenlos anmelden

Premium Features

19,99 € monatlich


  • Alle kostenlosen Features
  • Smart-Alarm per Whatsapp
  • Deine Chancen checken
  • Wohngegend analysieren

alles anzeigen

Jetzt Premium freischalten

Gewerblicher Anbieter

Bank 1 Saar Immobilien GmbH
Kaiserstraße 17-19
66111 Saarbrücken

Wohnglück-ID:
Objekt-Nr.:
WGL-1122041
007254#eBkRJ