Reihenhaus in Sankt Ingbert (St. Ingbert)

Balkon/­Terrasse
Garten/­-mitbenutzung
Keller
Garage/­Stellplatz

Solides, renovierungsbedürftiges Einfamilienhaus mit Garage in schöner Lage von St. Ingbert!

Anfragen bisher

Premium

Meine Chancen

Premium

Fairer Preis

Premium

125.000 €

Kaufpreis

72,29 m²

3 Zi.

Grundriss

66386 St. Ingbert

Gewerblicher Anbieter

Bank 1 Saar Immobilien GmbH
Kaiserstraße 17-19
66111 Saarbrücken

Details

Grundstücksfläche
250 m²
Zimmerzahl
3
Haustyp
Reihenhaus
Etagenzahl
1
Nutzfläche
53 m²
Anzahl Garage/ Stellplatz
1
Objektzustand
Renovierungsbedürftig

Kosten

Kaufpreis
125.000 €
Käuferprovision
3,57 %
Was kostet dein Umzug?

Stellplätze

Stellplatztyp
Freiplatz
Anzahl
1

Objektbeschreibung

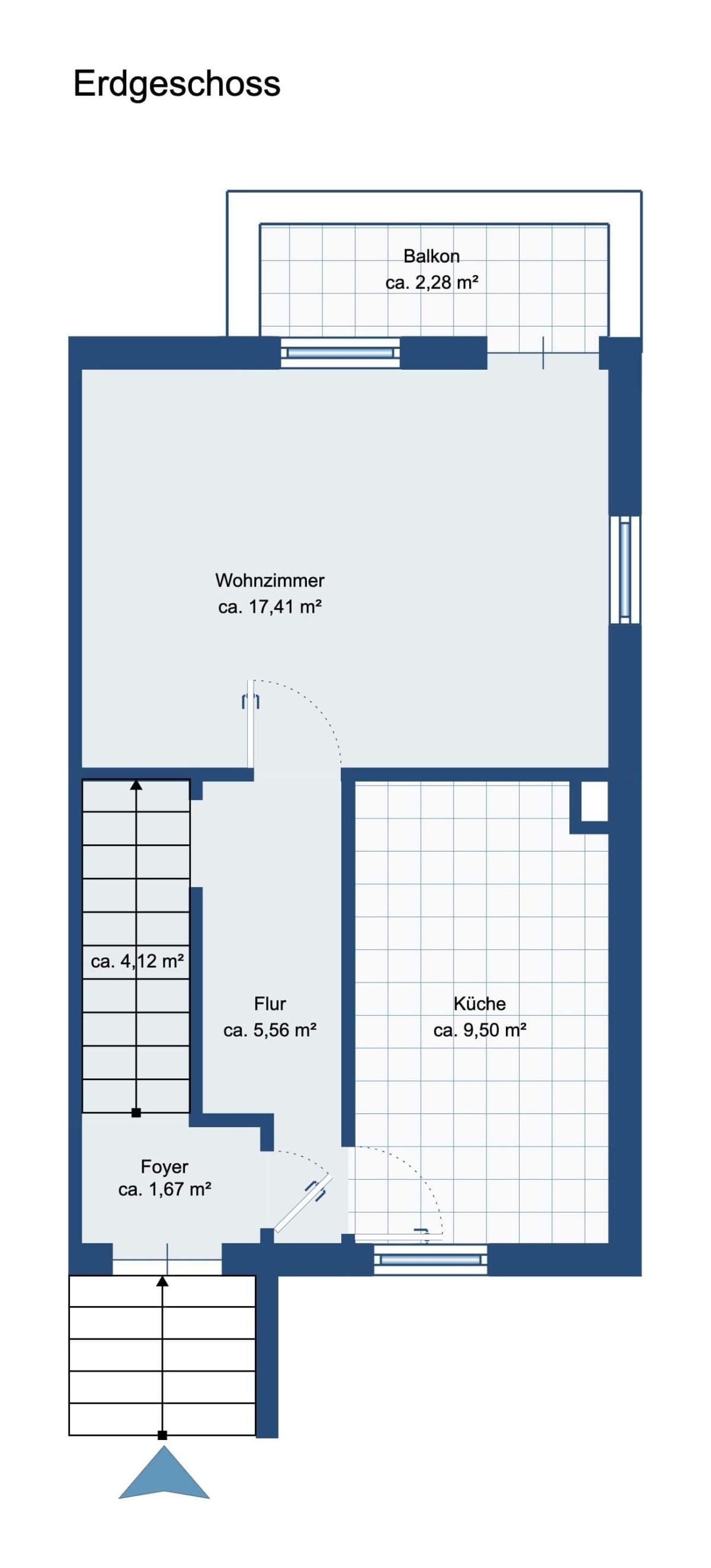
Dieses solide Reihenendhaus wurde im Jahre 1952 in Massivbauweise auf einem 250 m² umfassenden Grundstück errichtet. Die Immobilie hat ca. 72 m² Wohnfläche, die sich auf ein Wohnzimmer, Küche und Flur im Erdgeschoss, und ein Badezimmer, Kinderzimmer, Schlafzimmer und Abstellraum im Dachgeschoss aufteilt.
Das Haus ist vollunterkellert und bietet hierdurch weiteren praktischen Stauraum.
Die Immobilie wurde im Jahre 2005 / 2006 mit einer neuen Öl-Zentralheizung (Stahltank mit 6.000 Liter Fassungsvermögen) der Marke Viessmann ausgestattet und das Dach wurde inklusive des Gebälks erneuert. Weiterhin wurden einzelne Fenster in Kunststofffenster mit Wärmeschutzverglasung und die Haustür getauscht.
Die Immobilie präsentiert sich in einem gepflegten, gleichwohl renovierungsbedürftigen Zustand.
Der schöne Balkon, der Zugang zum schönen Garten und die zusätzlich vorhandene praktische Garage runden das Gesamtangebot positiv ab.
Sie sind auf der Suche nach eigenem Wohnraum und finden sich auf überschaubarer Wohnfläche (energetisch effizient) wohl? Dann lassen sie sich diese Chance in St. Ingbert nicht entgehen und vereinbaren direkt einen Besichtigungstermin bei Ihrem Immobilienspezialisten im Saarland, Bank1Saar Immobilien GmbH. Wir freuen uns auf Sie!


Bausubstanz & Energieausweis

A+

A

B

C

D

E

F

G

210 kWh/(m²*a)

H

Objektzustand
Renovierungsbedürftig
Wesentlicher Energieträger
Öl
Heizungsart
Zentralheizung
Befeuerung
Ölheizung
Energieausweis
liegt vor
Energieausweistyp
Bedarfsausweis
Ausstellungsdatum
07.02.2026
Gültig bis
06.02.2036
Energieeffizienzklasse
G
Endenergiebedarf
210 kWh/(m²*a)

Ausstattung

Individuelle Ausstattungsmerkmale:



  • Garage/ Stellplatz


Lagebeschreibung

Ruhige Wohnlage mit guter Infrastruktur. St. Ingbert liegt an der Achse Saarbrücken – Homburg, die für das Saarland von zentraler Bedeutung ist, da sie die meiste Wirtschaftskraft des Landes bündelt.
St. Ingbert bietet eine hervorragende Verkehrsanbindung an die Autobahnen A 8 (Neunkirchen / Zweibrücken) und A 6 (Saarbrücken / Mannheim) und macht es Ihnen möglich, alle angrenzenden Städte in kürzester Zeit und ohne Umwege zu erreichen. Die Universität in Saarbrücken erreichen Sie in 15 Autominuten.
Einkaufsmöglichkeiten, Ärzte, Apotheken, Kindergärten, weiterführende
Schulen befinden sich in unmittelbarer Nähe.


Wohnung finden so einfach wie möglich - das ist unsere Mission!

Kostenlose Basic Features

0 € monatlich


  • Individuelles Such-Profil anlegen
  • Suchaufträge speichern
  • One-Klick Kontaktaufnahme

alles anzeigen

Jetzt kostenlos anmelden

Premium Features

19,99 € monatlich


  • Alle kostenlosen Features
  • Smart-Alarm per Whatsapp
  • Deine Chancen checken
  • Wohngegend analysieren

alles anzeigen

Jetzt Premium freischalten

Gewerblicher Anbieter

Bank 1 Saar Immobilien GmbH
Kaiserstraße 17-19
66111 Saarbrücken

Wohnglück-ID:
Objekt-Nr.:
WGL-1107630
007270#eBkRJ