Friedrichshafen

Aufzug
Keller
Garage/­Stellplatz

Ideal für Kapitalanleger Gewerbefläche, Kindertagesstätte in Friedrichshafen

Anfragen bisher

Premium

Meine Chancen

Premium

Fairer Preis

Premium

3.550.000 â‚¬

Kaufpreis

88045 Friedrichshafen

Gewerblicher Anbieter

Volksbank eG
Meersburger Str. 1
88090 Immenstaad am Bodensee

Details

Nutzfläche
765 m²
Mieteinnahmen pro Monat
12.778,91 €
Anzahl Garage/ Stellplatz
1
Objektzustand
Projektiert
Baujahr
2026

Kosten

Kaufpreis
3.550.000 €
Käuferprovision
keine
Was kostet dein Umzug?

Stellplätze

Stellplatztyp
Freiplatz
Anzahl
6

Objektbeschreibung

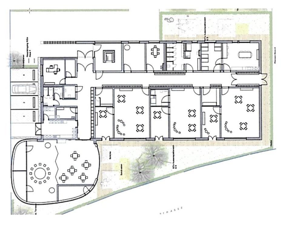
Das Neubauprojekt umfasst 4 Häuser in zwei Bauabschnitten. Zum 1. Bauabschnitt gehört dieses Haus Nr. 1 mit 12 Eigentumswohnungen und eine Gewerbefläche, die mit einer Kindertagesstätte bereits für die nächsten 20 Jahre mit Option auf 2 x 5 Jahre Verlängerung an die Stadt Friedrichshafen, Zeppelin Stiftung vermietet ist und hier zum Verkauf angeboten wird. Die Kaltmiete beträgt p. a. ca. € 153.000,--. Der Mietvertrag beinhaltet eine Staffelmiete mit einer Erhöhung der Kaltmiete alle 4 Jahre um 4 %. Die vier Gebäude werden so angeordnet, dass diese einen gemeinsamen grünen und verkehrsfreien Innenhof bilden. Eine gemeinsame Tiefgarage unter dem Quartier bilden komfortable Abstellflächen für Autos sowie motorisierte und nicht motorisierte Zweiräder.


Bausubstanz & Energieausweis

Objektzustand
Projektiert
Heizungsart
Zentralheizung
Energieausweis
Laut Gesetz nicht erforderlich

Ausstattung

Die Architektur kann sich sehen lassen: moderne Formen, warme Farben und Materialien verbinden sich mit einer hohen Alltagstauglichkeit. Jeweils 4 Wohnungen ab dem 1. Obergeschoss pro Etage mit Größen von 1,5 Zimmer mit einer Wohnfläche von ca. 47 m² bis zu 4 Zimmer mit einer Wohnfläche von ca. 112 m². Die Wärmeversorgung erfolgt über eine zentrale Holzpallet Heizungsanlage. Alle Fenster und Fenstertüren erfolgen als Kunststoffelement mit Wärmeschutzverglasung, 3-Fach. Die Fußböden werden mit Parkett Eiche Natur vollständig verklebt. Je nach Baufortschritt sind andere Bodenbelege gegen Verrechnung möglich. Für den barrierefreien Zugang gibt es einen Personenaufzug, der sie in jedes Geschoss bringt. Weitere Details entnehmen Sie bitte der Baubeschreibung.


Lagebeschreibung

Genießen Sie es, die gesamte Infrastruktur Friedrichshafens auf kurzem Wege erreichen zu können und doch in herrlich grüner Umgebung zu wohnen. Der Flughafen ist weit genug entfernt, um nicht zu stören. Die nächste Bushaltestelle ist quasi nebenan und selbst die Uferpromenade am See ist in nur wenigen Fahrminuten erreichbar.


Sonstige Angaben

Im Kaufpreis enthalten sind 6 Pkw-Außenstellplätze. Bedingung für den Kauf ist ein zusätzlicher Erwerb von zwei Wohnungen (frei wählbar) zzgl. zwei TG-Stellplätze gemäß Preisliste. Somit ist die Mehrheit in diesem Haus gesichert.
https://www.volksbank-ueberlingen.de/service/rechtliche-hinweise/datenschutzhinweis-zur-website.html


Wohnung finden so einfach wie möglich - das ist unsere Mission!

Kostenlose Basic Features

0 € monatlich


  • Individuelles Such-Profil anlegen
  • Suchaufträge speichern
  • One-Klick Kontaktaufnahme

alles anzeigen

Jetzt kostenlos anmelden

Premium Features

19,99 € monatlich


  • Alle kostenlosen Features
  • Smart-Alarm per Whatsapp
  • Deine Chancen checken
  • Wohngegend analysieren

alles anzeigen

Jetzt Premium freischalten

Gewerblicher Anbieter

Volksbank eG
Meersburger Str. 1
88090 Immenstaad am Bodensee

WohnglĂĽck-ID:
Objekt-Nr.:
WGL-1107115
250191