Mehrfamilienhaus in Flammersfeld

Keller
Garage/­Stellplatz

Gepflegtes Wohn- und Geschäftshaus in Ortslage von Flammersfeld!

Anfragen bisher

Premium

Meine Chancen

Premium

Fairer Preis

Premium

350.000 €

Kaufpreis

172,53 m²

7 Zi.

Grundriss

57632 Flammersfeld

Gewerblicher Anbieter

Immobiliengesellschaft der Westerwald Bank mbH
Schloßplatz 6
57610 Altenkirchen (Westerwald)

Details

Grundstücksfläche
668 m²
Zimmerzahl
7
Haustyp
Mehrfamilienhaus
Anzahl Garage/ Stellplatz
2
Baujahr
1975

Kosten

Kaufpreis
350.000 €
Käuferprovision
3,57 %
Was kostet dein Umzug?

Stellplätze

Stellplatztyp
Freiplatz
Anzahl
1
Stellplatztyp
Garage
Anzahl
1

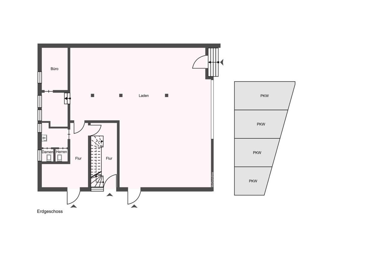
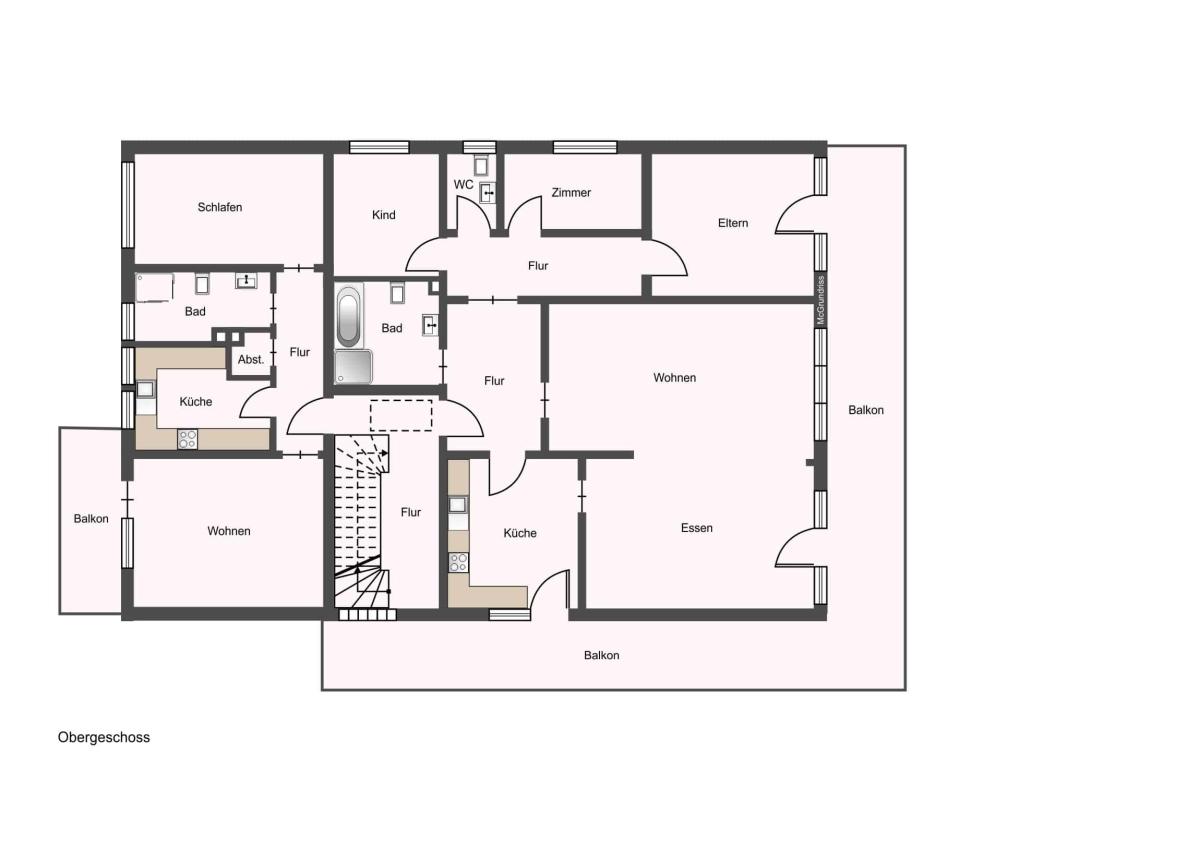
Objektbeschreibung

In direkter Ortslage der Gemeinde Flammersfeld befindet sich dieses gepflegte Wohn- und Geschäftshaus, mit insgesamt zwei Wohneinheiten im Obergeschoss sowie einer Gewerbeeinheit im Erdgeschoss, welches sich vielfältig nutzen lässt. Sei es als Kapitalanlage, zur teilweisen Eigennutzung in Kombination mit Fremdvermietung oder als Generationenhaus zur kompletten Eigennutzung. Ihren Vorstellungen sind keine Grenzen gesetzt.
Im Ursprung wurde das Gebäude um 1975 in Massivbauweise erstellt und befindet sich seither im Familienbesitz.
Die Wohnungen im Obergeschoss werden derzeit von den Eigentümern bewohnt. Hinsichtlich der künftigen Nutzung können individuelle Absprachen getroffen werden.
Die Geschäftseinheit (Lager) im Erdgeschoss ist seit Januar 2026 vermietet mit einer jährlich vereinbarten Nettokaltmiete in Höhe von 5.520,00€.
Insgesamt teilen sich die Einheiten wie folgt auf:
rd. 165,93m² Nutzfläche (Erdgeschoss, vermietet, drei Monate Kündigungsfrist )
rd. 49,68m² Wohnfläche (Obergeschoss, eigengenutzt)
rd. 122,85m² Wohnfläche (Obergeschoss, eigengenutzt
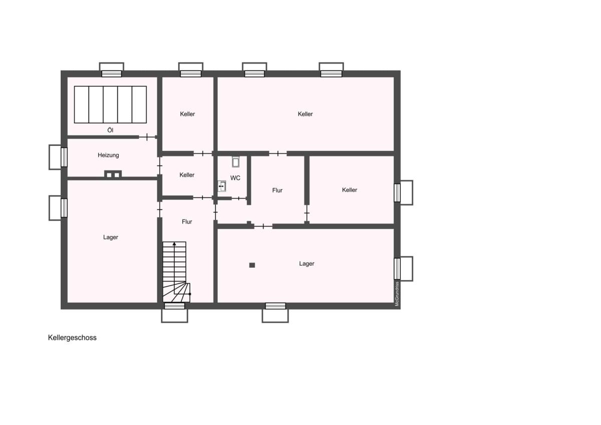
Das Dachgeschoss, welches ebenfalls über das gemeinschaftliche Treppenhaus zu erreichen ist, könnte zu weiteren Wohnzwecken ausgebaut werden. Die Immobilie ist vollständig unterkellert und verfügt neben klassischen Kellerräumen über ausreichend Abstellmöglichkeiten, welche bei Bedarf, ebenfalls den Einheiten zugeordnet werden könnte. Abgerundet wird das Angebot durch eine separate Doppelgarage sowie insgesamt vier Außenstellplätzen, welche sich im vorderen Bereich der Immobilie befinden.
Die Hauptgewerke der Immobilie befinden sich überwiegend auf dem Standard des Ursprungsbaujahres, sodass Modernisierungs- sowie Renovierungsmaßnahmen im Innen- und Außenbereich zu empfehlen wären.
Eine Übernahme kann, nach vorheriger Absprache, erfolgen. Besichtigungstermine können gerne jederzeit mit unserem Büro vereinbart werden.


Bausubstanz & Energieausweis

A+

A

B

C

D

E

F

G

233,94 kWh/(m²*a)

H

Baujahr
1975
Wesentlicher Energieträger
Öl
Heizungsart
Ölheizung
Befeuerung
Ölheizung
Energieausweis
liegt vor
Energieausweistyp
Bedarfsausweis
Ausstellungsdatum
02.02.2026
Gültig bis
01.02.2036
Energieeffizienzklasse
G
Endenergiebedarf
233,94 kWh/(m²*a)

Ausstattung

Massivbauweise aus 1975, Außenwände verputzt und gestrichen, Innenwände ebenfalls in massiver Ausführung, voll unterkellert, teilweise massive Geschossdecken; teilweise Holzbalkendecke, Ölzentralheizung (Fa. Viessmann) aus Baujahr 1998 mit zentraler Warmwasserbereitung, Holzfenster (isolierverglast) aus 1975 mit manuellen Rollläden, Satteldach mit Eindeckung in Pfannen, massive Innentreppe, Holzinnentüren aus 1975, Oberböden überwiegend in Fliesen sowie Teppich, Elektroinstallation sowie Sanitärbereiche ebenfalls überwiegend aus dem Ursprung


Lagebeschreibung

Flammersfeld ist eine Ortsgemeinde der Verbandsgemeinde Altenkirchen-Flammersfeld im Landkreis Altenkirchen in Rheinland-Pfalz. Flammersfeld ist ein staatlich anerkannter Erholungsort und gemäß Landesplanung als Grundzentrum ausgewiesen. Alle Einkaufsmöglichkeiten für den täglichen Bedarf, Banken, praktizierender Arzt, Zahnarzt, Kindergarten, Grundschule und vieles mehr sind vor Ort.
Flammersfeld liegt an den Fernstraßen B 256 und L 272 sowie an den Kreisstraßen K 8 und K 9. Die Ortsgemeinde ist verkehrstechnisch sehr gut angebunden und rd. 10 Autominuten von der A3 entfernt über die Anschlussstelle Neuwied/Altenkirchen erreichbar.


Die Immobilie selbst liegt in zentraler Lage; die Ortsmitte kann in wenigen Gehminuten erreicht werden.


Wohnung finden so einfach wie möglich - das ist unsere Mission!

Kostenlose Basic Features

0 € monatlich


  • Individuelles Such-Profil anlegen
  • Suchaufträge speichern
  • One-Klick Kontaktaufnahme

alles anzeigen

Jetzt kostenlos anmelden

Premium Features

19,99 € monatlich


  • Alle kostenlosen Features
  • Smart-Alarm per Whatsapp
  • Deine Chancen checken
  • Wohngegend analysieren

alles anzeigen

Jetzt Premium freischalten

Gewerblicher Anbieter

Immobiliengesellschaft der Westerwald Bank mbH
Schloßplatz 6
57610 Altenkirchen (Westerwald)

Wohnglück-ID:
Objekt-Nr.:
WGL-1105322
2 107 4