Hallen / Lager / Produktion in Leipzig (Dölitz-Dösen)

2 freist., pfeilerfreie Hallen in ruhiger Lage mit Büro-& Lagerebenen + ca. 2.500 m² Freifläche mgl.

Anfragen bisher

Premium

Meine Chancen

Premium

Fairer Preis

Premium

8.000 €

Kaltmiete

04279 Leipzig

Gewerblicher Anbieter

IC IMMOCONSULT e.K.
Hillerstraße 3
04109 Leipzig

Details

Grundstücksfläche
3.970 m²
Lagerfläche
1.634 m²
Typ der Gewerbeimmobilie
Hallen / Lager / Produktion
Bezugsfrei ab
sofort
Objektzustand
Renovierungsbedürftig

Kosten

Kaltmiete
8.000 €
Nebenkosten
1.000 €
provisionsfrei
Was kostet dein Umzug?

Objektbeschreibung

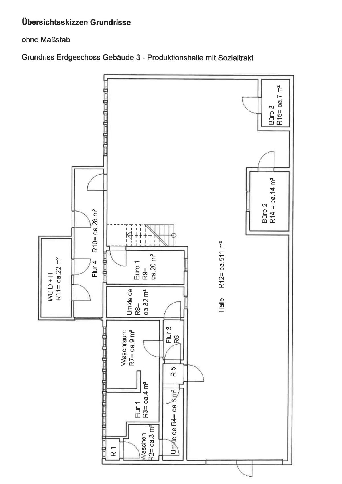
Bei dieser Immobilie handelt es sich um 2 pfeilerfreie, nebeneinander stehende Hallen mit Sanitäranlagen im EG und Büro-/Lagerflächen im OG in ruhiger Lage.


Die offene Gestaltung ermöglicht eine flexible Nutzung der Fläche und lässt Raum für kreative Konzepte.


Helle, gut beleuchtete Räume schaffen eine angenehme Arbeitsatmosphäre und bieten viel Platz für Lagerung/Produktion/Ausstellungen.


Mietzusammenstellung:
3.200 € Halle 3
3.200 € Halle 4
1.600 € Freifläche/Grundstück


Ideal geeignet für:



  • Produktion

  • Kfz-Werkstatt

  • Lagerhalle

  • Onlinehandel

  • Fitness

  • Funsport

  • Großhandel


Eine Grundriss- als auch Renovierungsänderung ist hier möglich und kann mit dem Vermieter abgestimmt werden. Anfallende Mehrkosten werden dann mit einem Mietaufschlag, abhängig von der Mietlaufzeit und den Kosten, berechnet.


Der angegebene Mietpreis bezieht sich auf den IST-ZUSTAND.


In den Nebenkosten sind lediglich die Grundsteuer und die Gebäudeversicherung enthalten. Alle anderen NK übernimmt der Mieter selbst!


Bausubstanz & Energieausweis

Objektzustand
Renovierungsbedürftig
Heizungsart
Fernwärme

Ausstattung


  • eingezäuntes ca. 3.790 m² großes Grundstück

  • 2 freistehende, nebeneinander liegende Hallen

  • große Einfahrtstore

  • Einbau von elektrischen Rolltor mgl.

  • zum Teil renovierungsbedürftig

  • deaktivierte Heizkörper vorhanden

  • deaktivierter Deckenkrahn in einer Halle vorhanden

  • Gesamtfläche beider Hallen ca. 1.634 m²

  • ca. 7,50 bis 9 m Hallenhöhe

  • in beiden Hallen jeweils eine 2. Ebene vorhanden

  • Sozial-Büro-Lager-Sanitärtrakt jeweils im EG vorhanden

  • ca. 31 m² Einzelgarage an Halle 4

  • Fernwärmeanschluss in Halle 3 vorhanden, in Halle 4 mögl., da Verbindungsschacht vorhanden ist

  • ca. 2.500 m² Freifläche vorhanden


Lagebeschreibung

Die freistehenden Hallen befinden sich in Leipzig, im Stadtteil Dölitz.


Dölitz ist ein Stadtteil von Leipzig, der 1910 durch die Eingemeindung des Dorfes Dölitz entstand. Seit der kommunalen Neugliederung von Leipzig im Jahre 1992 bildet Dölitz mit Dösen den Ortsteil Dölitz-Dösen und liegt knapp 6 km südlich des Leipziger Stadtzentrums am östlichen Rand der Pleißenaue.


Die Anbindung an öffentliche Nahverkehrsmittel (Straßenbahn + Bus) befindet sich in ca. 500 m.


Zur B2 und A38 sind es 5 Autominuten.


In ca. 350 m befindet sich fußläufig der nä. Einkaufsmarkt.
In ca.150 m befindet sich der Erholungspark Lößnig-Dölitz mit dem beliebten kleinen und großen Silbersee.
In ca. 2 km befindet sich das Agra-Gelände.


Sonstige Angaben

Die von uns gemachten Angaben haben wir nach bestem Wissen und Gewissen nach Informationen des Vermieters/Verkäufers und den uns übergebenen Informationen zusammengestellt. Eine Gewähr für diese Angaben können wir nicht übernehmen. Wichtige Zahlen und Informationen sind am Objekt zu überprüfen. Zwischenvermietung/Verkauf bleibt vorbehalten.


Wohnung finden so einfach wie möglich - das ist unsere Mission!

Kostenlose Basic Features

0 € monatlich


  • Individuelles Such-Profil anlegen
  • Suchaufträge speichern
  • One-Klick Kontaktaufnahme

alles anzeigen

Jetzt kostenlos anmelden

Premium Features

19,99 € monatlich


  • Alle kostenlosen Features
  • Smart-Alarm per Whatsapp
  • Deine Chancen checken
  • Wohngegend analysieren

alles anzeigen

Jetzt Premium freischalten

Gewerblicher Anbieter

IC IMMOCONSULT e.K.
Hillerstraße 3
04109 Leipzig

Wohnglück-ID:
Objekt-Nr.:
WGL-1103502
302g100#L48r42