Doppelhaushälfte in Bruchsal (Untergrombach)

Balkon/­Terrasse
Einliegerwohnung
Garten/­-mitbenutzung
Gäste WC
Keller
Einbauküche
Garage/­Stellplatz

EFH/DHH mit Wintergarten, Loggia, Sauna, Garage auf sep. Grundstück, ELW in Bruchsal-Untergrombach

Anfragen bisher

Premium

Meine Chancen

Premium

Fairer Preis

Premium

498.000 €

Kaufpreis

233 m²

6 Zi.

76646 Bruchsal

Gewerblicher Anbieter

McMakler GmbH
Am Postbahnhof 17
10243 Berlin

Details

Grundstücksfläche
563 m²
Zimmerzahl
6
Haustyp
Doppelhaushälfte
Etagenzahl
3
Nutzfläche
22 m²
Bezugsfrei ab
ab sofort
Anzahl Schlafzimmer
3
Anzahl Badezimmer
2
Anzahl Garage/ Stellplatz
1
Baujahr
1981

Kosten

Kaufpreis
498.000 €
Käuferprovision
Die Provision i.H.v. 2,98 % inkl. MwSt. ist mit Kaufvertragsbeurkundung fällig, sofern der Verkaufspreis über 83.000,00 € liegt. Liegt der Verkaufspreis dagegen bei/unter 83.000,00 €, ist die fest vereinbarte Mindestprovision i.H.v. mind. 5.950,00
Was kostet dein Umzug?

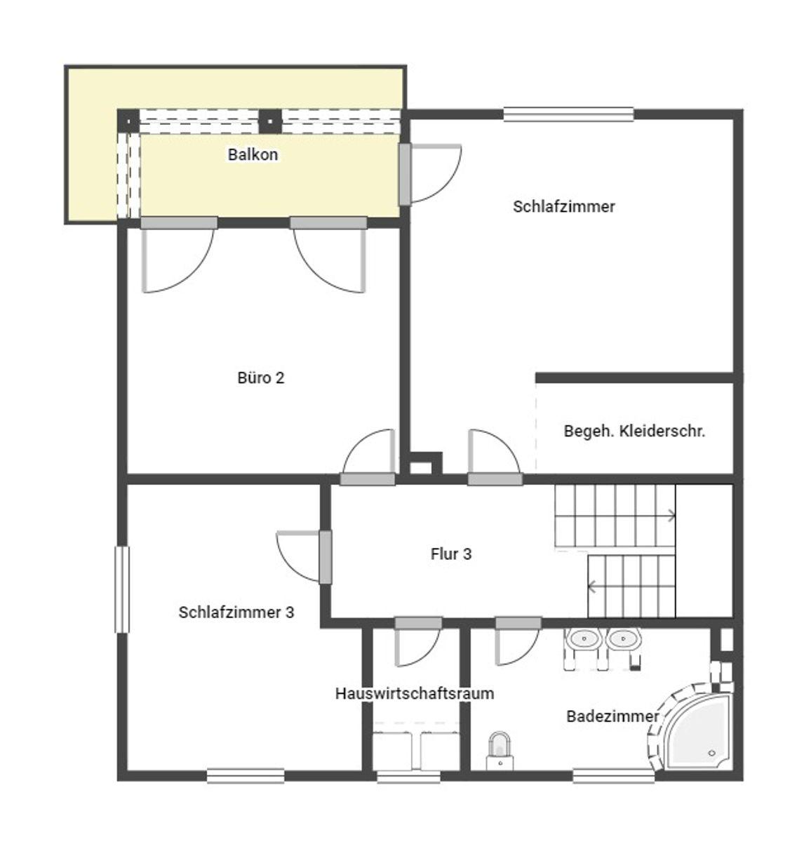
Objektbeschreibung

Objektnr: 1063801



  • in gesuchter Lage in einer Nebenstraße von Untergrombach, in der Nähe befindet sich das beliebte Wanderziel "Weingartener Moor"

  • Entspannung bietet das Haus im Garten mit Terrasse, Süd-Loggia, beheiztem Wintergarten und dem Wellness-Highlight: Whirlpool, Sauna im Untergeschoss und Kaminofen im Wohnzimmer

  • Neben der Staufläche im Untergeschoss bietet das Haus eine Einliegerwohnung mit sep. Eingang

  • Die Gas-Brennwertheizung wurde 2014 erneuert


Bausubstanz & Energieausweis

A+

A

B

C

D

E

F

190,9 kWh/(m²*a)

G

H

Baujahr
1981
Wesentlicher Energieträger
Gas
Heizungsart
Zentralheizung
Befeuerung
Gasheizung
Energieausweis
liegt vor
Energieausweistyp
Bedarfsausweis
Energieeffizienzklasse
F
Endenergiebedarf
190,9 kWh/(m²*a)

Lagebeschreibung

Lage: Naturnahe Lage bietet eine grüne Umgebung mit vielen Naherholungsmöglichkeiten
Bildung und Betreuung: Vor Ort Kindergarten und Schule mit dem Rad oder Pkw erreichbar
Nahversorgung: Supermärkte, Apotheken u.a. in 1-2 km bequem auffindbar
Anbindung: Ein Stück entfernt und per Pkw erreichbar: Bhf. in 1,5 km, gute Anbindung an A5


Sonstige Angaben

Vereinbaren Sie noch heute einen Besichtigungstermin!








Alle Angaben sind ohne Gewähr und basieren ausschließlich auf Informationen, die uns von unserem Auftraggeber zur Verfügung gestellt wurden. Wir übernehmen keine Gewähr für die Vollständigkeit, Richtigkeit und Aktualität der Angaben.


Wohnung finden so einfach wie möglich - das ist unsere Mission!

Kostenlose Basic Features

0 € monatlich


  • Individuelles Such-Profil anlegen
  • Suchaufträge speichern
  • One-Klick Kontaktaufnahme

alles anzeigen

Jetzt kostenlos anmelden

Premium Features

19,99 € monatlich


  • Alle kostenlosen Features
  • Smart-Alarm per Whatsapp
  • Deine Chancen checken
  • Wohngegend analysieren

alles anzeigen

Jetzt Premium freischalten

Gewerblicher Anbieter

McMakler GmbH
Am Postbahnhof 17
10243 Berlin

Wohnglück-ID:
Objekt-Nr.:
WGL-1095431
6716396ed683b7c21338c611