Etagenwohnung in Oldenburg (Bloherfelde)

Aufzug
Balkon/­Terrasse
barrierefrei
möbliert
Einbauküche
Garage/­Stellplatz

Liebevoll eingerichtetes Appartement für Design Liebhaber | Bloherfelde | Oldenburg

Anfragen bisher

Premium

Meine Chancen

Premium

Fairer Preis

Premium

750 €

Kaltmiete

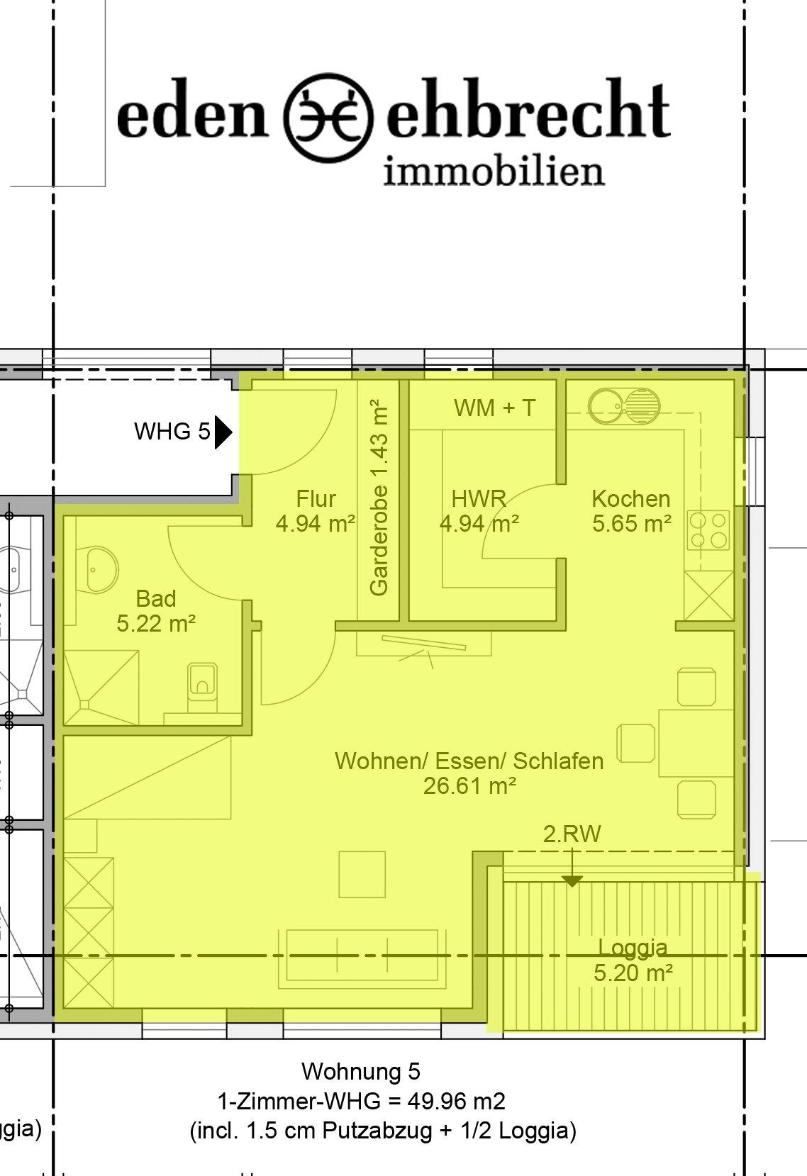
49,96 m²

1 Zi.

1. OG

Grundriss

26129 Oldenburg

Gewerblicher Anbieter

Eden-Ehbrecht Immobilien & Marketing GbR
Kleine Kirchenstraße 11
26122 Oldenburg

Details

Zimmerzahl
1
Wohnungstyp
Etagenwohnung
Etage, Geschoss
1
Etagenzahl
3
Bezugsfrei ab
01.04.2026
Anzahl Schlafzimmer
1
Anzahl Badezimmer
1
Anzahl Garage/ Stellplatz
1
Objektzustand
Neuwertig
Baujahr
2018

Kosten

Kaltmiete
750 €
Nebenkosten
150 €
Was kostet dein Umzug?

Stellplätze

Stellplatztyp
Freiplatz
Anzahl
1

Objektbeschreibung

Sie sind auf der Suche nach einem neuen Zuhause oder einem Zweitwohnsitz, der wenig Wünsche offen lässt? Dann ist dieses umfänglich möblierte und ausgestattete Design Apartment vielleicht schon genau das Richtige für Sie.


Die 1-Zimmer-Wohnung mit Loggia liegt im beliebten Stadtteil Bloherfelde am westlichen Stadtrand von Oldenburg und befindet sich im 1. Obergeschoss eines Mehrparteienhauses, welches im Jahr 2018 errichtet wurde.


Die Eigentümer haben sich viel Mühe gegeben, das Apartment ansprechend zu gestalten und mit hochwertigen Möbeln und Einrichtungsgegenständen auszustatten. So sollten Sie hier alles finden, um sich nach Feierabend und in der Freizeit rundum wohl zu fühlen.


Die Wohnung wird so vermietet, wie auf den Bildern zu sehen ist, inklusive ansprechender und hochwertiger Möbel, einer ausgestatteten Einbauküche, geschmackvoller Dekoration, Vorhängen und Handtüchern.


Zu der Wohnung gehört ein Tiefgaragenstellplatz, welcher separat mit 50 Euro pro Monat zu zahlen ist.


Bausubstanz & Energieausweis

Objektzustand
Neuwertig
Wesentlicher Energieträger
Solarheizung
Heizungsart
Zentralheizung
Befeuerung
Solarheizung
Energieausweis
liegt vor
Energieausweistyp
Bedarfsausweis
Ausstellungsdatum
25.01.2019
Gültig bis
25.01.2029
Endenergiebedarf
41,9 kWh/(m²*a)

Ausstattung

Das Apartment wurde geschmackvoll, hochwertig und durchdacht eingerichtet und ausgestattet.


Im Wohn- und Schlafbereich finden Sie ein gemütliches King-Size Bett mit Nachttischen und Lampen vor einer neu vertäfelten Holzwand, ein einladendes Ledersofa mit Tischchen unter ansprechendem Kunstwerk, eine kleine Leseecke mit Stehlampe und Magazinständer, ein Sideboard mit Flatscreen sowie viele Bilder, geschmackvolle Dekorations-Elemente und Teppiche. Einige der Lampen sind über Funkschalter zu bedienen, so dass Sie Ihre Lichtstimmung ganz bequem in der ganzen Wohnung steuern können. Dazu finden Sie in der Wohnung eine Bluetooth-Box und einen Router für Ihr WLAN, sowie ein Bügelbrett nebst Bügeleisen..


Vom Wohnzimmer aus haben Sie Zugang zur Loggia, die ebenfalls wie auf den Fotos angeboten wird. Ein kleiner Tisch mit zwei Stühlen und Teppich, ein Sonnenschirm, ein Regal für Abstellmöglichkeiten, einem Elektrogrill und gemütlicher LED-Lichterkette. Die Loggia ist südlich ausgerichtet und bietet bei allen Wetterlagen einen schönen Ort zum Genießen und Entspannen.


Ein weiteres Highlight ist sicherlich die Einbauküche, die voll ausgestattet angeboten wird. Weiße Fronten mit dezenten Griffen, Marken Edelstahl-Backofen und Geschirrspüler, 2-Platten Glas-Kochfeld, LED Beleuchtung, Kaffeemaschine, Wasserkocher, Toaster & Co. Dazu ein Set an hochwertigen Messing-Töpfen, Gläsern, Tassen, Tellern und Besteck. Die kleine Sitzecke mit zwei Stühlen und Tisch bietet ausreichend Platz für die täglichen Mahlzeiten.


Von der Küche abgehend befindet sich ein Hauswirtschafts- bzw. Abstellraum, in dem auch Waschmaschine und Trockner untergebracht werden können. Diese sind ausnahmsweise nicht mit dabei. Im HWR stehen einige Regale, dezent hinter einem Vorhang versteckt, und ein Fuß-Tritteimer für Sie bereit.


Das innenliegende Badezimmer ist mit anthrazitfarbenen Bodenfliesen, weißen Wandfliesen und einer bodentiefen Dusche mit zweiflügeliger Vollglas-Abtrennung ausgestattet. WC und Waschtisch sind ebenfalls in weiß gehalten. Das Bad wird mit Ablage in der Duschkabine, Bad-Schrank, Spiegel, Lampe, Badradio, Handtücher und Dekoration angeboten.


Der Flur bzw. Eingangsbereich ist mit Garderobenständer, Konsolentisch und Teppich ausgestattet.


Alle Fenster sind mit Jalousien ausgestattet, so dass Sie die Wohnung auch zu jeder Tageszeit abdunkeln können. Zusätzlich sind in mehreren Fenstern noch innenliegende Jalousien angebracht!


Die Wohnung verfügt über eine Fußbodenheizung sowie eine Wohnraumbelüftung.


Der zugehörige Stellplatz befindet sich in der hauseigenen Tiefgarage. Der Stellplatz wird separat berechnet.


Lagebeschreibung

Bloherfelde liegt im Westen der Stadt und grenzt an die Stadtteile Wechloy und Haarentor im Norden und Eversten im Süden. Die Grenzen zwischen Bloherfelde und Eversten sind dabei recht fließend.


Der Stadtteil zeichnet sich durch den hohen Baumbestand aus. Neben den Grünanlagen gibt es zwei größere Gewässer im Stadtteil, den Bloherfelder Teich und den Kennedyteich. In unmittelbarer Nähe des Bloherfelder Teichs befindet sich das Gymnasium Eversten, das zwar den Namen des benachbarten Stadtteils trägt, sich de facto jedoch auf Bloherfelder Terrain befindet, was als Indiz gewertet werden kann, dass die Kategorisierung zwischen Eversten und Bloherfelde von unscharfer Natur ist.


Über den Hartenscher Damm und den Drögen-Hasen-Weg ist es nur etwa ein Kilometer bis zur Universität Oldenburg. Ebenso in unmittelbarer Nähe befindet sich das Wald- und Naherholungsgebiet Wildenloh.


[Quelle Wikipedia]


Im Südwesten Oldenburgs befindet sich der Stadtteil Bloherfelde. Bloherfelde gehört zum 5. Stadtbezirk Oldenburgs und damit zu dem Bezirk, der über die höchste Einwohnerzahl verfügt.


Von dem einstmals ländlichen und bäuerlichen Charakter Bloherfeldes ist außer einigen wenigen Hofgebäuden nicht mehr viel übrig geblieben. Einem großen Einwohnerzuwachs nach dem Ende des Zweiten Weltkrieges ging ein struktureller Wandlungsprozess einher, der verschiedene Einrichtungen mit sich brachte.


Buntes Leben in Bloherfelde


Bloherfelde beherbergt heute neben einer Vielzahl von Gewerbe- auch eine Anzahl handwerklicher Betriebe. Als Bildungseinrichtungen stehen der jüngeren Generation ein Schulzentrum und zwei Kindergärten zur Verfügung. Der Standort der Polizeischule befindet sich ebenfalls in hiesigem Stadtteil. Darüber hinaus kennzeichnet sich Bloherfelde durch eine gute infrastrukturelle Versorgung: Der Einzelhandel ist breit ansässig, was sich anhand mehrerer Discounter, bei denen die Notwendigkeiten des täglichen Lebens erworben werden können, zeigt.


Bloherfelde zeichnet sich durch ein äußerst ausgeprägtes Gemeinschaftsleben aus, das sich in den zahlreichen Verbänden, Gruppen und dem ortseigenen Sportverein TuS Bloherfelde widerspiegelt. Ausdruck des traditionellen Bewusstseins ist der Bloherfelder Schützenverein.


Verkehr


Mit öffentlichen Verkehrsmitteln besteht regelmäßiger Anschluss an den Stadtverkehr, dessen Busse an den Wochenenden auch nachts verkehren. Die guten Anschlussmöglichkeiten an das Fernverkehrsnetz ermöglichen auch Berufspendlern eine günstige Verkehrsanbindung, sowohl mit dem Zug als auch mit dem Auto.


Die ursprüngliche Lebensweise Bloherfelds, als landwirtschaftlich geprägter Ort, ist einem vorstädtischen Bild gewichen.


Sonstige Angaben

///// ANFRAGE


Ihre Anfrage stellen Sie am besten über "Anbieter Kontaktieren", über die Chat-Funktion im interaktiven Exposé, per Email unter: ingo.eden@eden-ehbrecht-immobilien.de oder telefonisch unter 0441-95079877.


Wir freuen uns auf Ihre Anfrage!


///// PAUSCHALE NEBENKOSTEN


Die Nebenkosten werden pauschal erhoben und nicht abgerechnet! In den Nebenkosten ist alles inklusive außer Strom! Dieser wird vom Mieter direkt bei einem Anbieter beauftragt und bezahlt!


//// BESICHTIGUNG & INFORMATIONEN


Einen Besichtigungstermin fragen Sie am einfachsten per „Anbieter Kontaktieren“ direkt hier im Exposé an.


Bitte geben Sie bei der Anfrage Ihre vollständigen Kontaktdaten wie Name, Adresse, Telefon und Email-Adresse an! Ohne diese Daten können wir Ihnen leider keine weiteren Informationen zukommen lassen.


Sie erhalten dann von uns automatisch ein sogenanntes „Interaktives Exposé“, in dem Sie uns einfach die erforderlichen Bestätigungen für Widerruf, Datenschutz etc. geben können.


Wenn Sie dann Interesse an einem Besichtigungstermin haben, kontaktieren Sie uns gerne mit 2-3 Zeitfenstern, wann Sie für eine Besichtigung zur Verfügung stehen würden. Wir melden uns dann zeitnah bei Ihnen zurück!


Sollten Sie hierzu Fragen haben, kontaktieren Sie uns am besten telefonisch unter 0441-950 79 877 oder per Email unter info@eden-ehbrecht-immobilien.de


Wir freuen uns auf Ihre Anfrage.


/// HINWEIS ZU DEN NEBENKOSTEN & CO.


In den angegebenen Nebenkosten sind keine Verbrauchskosten für Strom und Gas für den Gaskamin enthalten. Auch Kosten für Telefon- oder Internetanschlüsse sind nicht enthalten. Glasfaser-Produkte können nur über die Telekom bezogen werden.


/// HINWEIS ZUR ALARMANLAGE


Gegen eine monatliche Gebühr von ca. 35 € kann die Alarmanlage zusätzlich zur FSO Sicherheitssysteme aufgeschaltet werden.


///// EDEN-EHBRECHT IMMOBILIEN


In 2024 sind wir erneut mit dem IDA - Immobilien Dienstleister Award vom Bundesverband für die Immobilienwirtschaft ausgezeichnet worden.


Top 50 Immobilienmakler Deutschlands - In 2017 sind wir vom BVFI - Bundesverband für die Immobilienwirtschaft mit dem IDA Award für besondere Verdienste und innovative Dienstleistungen ausgezeichnet worden!


Mit derzeit über 600 Kundenbewertungen mit im Schnitt 4,64 von 5 Sternen sind wir Oldenburg meist- und bestbewerteter Immobilienmakler.


Unsere Schwerpunkte sind der Verkauf und die Vermietung von Wohnimmobilien und Gewerbeimmobilien in Oldenburg und Umgebung. Egal ob Immobilien zur Kapitalanlage oder Eigennutzung, hochwertige Appartements in besten Lagen oder moderne Gastronomie-, Büro- oder Praxisflächen an attraktiven Standorten.


Seit 1999 unterstützen wir unsere Kunden bei Kauf, Verkauf, Vermietung und Anmietung von Immobilien aller Art. In den letzten 25 Jahren haben wir viele hundert große und kleine Objekte erfolgreich vermittelt.


Wann testen Sie unseren Service? Wir freuen uns auf Sie!


///// HAFTUNGSAUSCHLUSS


Alle Angaben des Angebotes basieren auf Informationen des Auftraggebers oder Dritter. Für die Richtigkeit und Vollständigkeit und Aktualität der gemachten Angaben übernehmen wir keine Gewähr. Das Angebot erfolgt freibleibend. Zwischenvermietung vorbehalten!


Wohnung finden so einfach wie möglich - das ist unsere Mission!

Kostenlose Basic Features

0 € monatlich


  • Individuelles Such-Profil anlegen
  • Suchaufträge speichern
  • One-Klick Kontaktaufnahme

alles anzeigen

Jetzt kostenlos anmelden

Premium Features

19,99 € monatlich


  • Alle kostenlosen Features
  • Smart-Alarm per Whatsapp
  • Deine Chancen checken
  • Wohngegend analysieren

alles anzeigen

Jetzt Premium freischalten

Gewerblicher Anbieter

Eden-Ehbrecht Immobilien & Marketing GbR
Kleine Kirchenstraße 11
26122 Oldenburg

Wohnglück-ID:
Objekt-Nr.:
WGL-1078306
115920231#F3U00