Büro / Praxen in Merzhausen

Garage/­Stellplatz

Gewerbeeinheit in belebter Lage

Anfragen bisher

Premium

Meine Chancen

Premium

Fairer Preis

Premium

332.000 €

Kaufpreis

79249 Merzhausen

Gewerblicher Anbieter

Volksbank Freiburg eG
Bismarckallee 10
79098 Freiburg im Breisgau

Details

Verkaufsfläche
110 m²
Typ der Gewerbeimmobilie
Büro / Praxen
Mieteinnahmen pro Monat
1.230 €
Anzahl Garage/ Stellplatz
1
Objektzustand
Gepflegt
Baujahr
1995

Kosten

Kaufpreis
332.000 €
Hausgeld
395 €
Käuferprovision
3,57 %
Was kostet dein Umzug?

Stellplätze

Stellplatztyp
Freiplatz
Anzahl
1

Objektbeschreibung

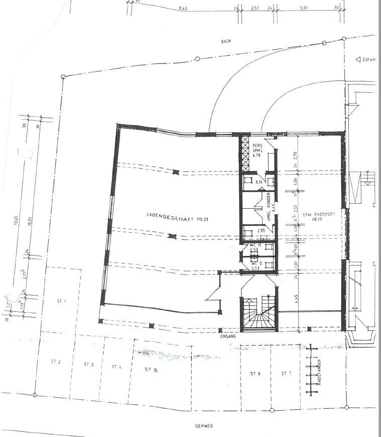
Zum Verkauf steht ein attraktives Teileigentum im Erdgeschoss eines gepflegten Wohn- und Geschäftshauses in Merzhausen. Die Gewerbeeinheit verfügt über eine Gesamtfläche von ca. 115 m² und bietet großzügige, helle Räume dank der großen Schaufensterfronten.


Derzeit wird der vordere Raum als Verkaufsfläche genutzt und der hintere Bereich als Lager und Büro mit Teeküche. Für Kunden ist ein WC vom Verkaufsraum aus zugänglich.


Ein Außenstellplatz rundet das Angebot ab und sorgt für eine komfortable Erreichbarkeit für Kunden oder Mitarbeiter. Das Objekt ist aktuell vermietet. Anpassungen des Mietvertrages erfolgen nach Absprache mit dem Mieter.


Das Wohn- und Geschäftshaus umfasst insgesamt 8 Einheiten: 3 Gewerbeeinheiten und 5 Wohneinheiten. Die Einheit präsentiert sich in gepflegtem Zustand und bietet sowohl für Investoren als auch für Gewerbetreibende eine attraktive Nutzungsmöglichkeit.


Bausubstanz & Energieausweis

A+

A

B

C

92 kWh/(m²*a)

D

E

F

G

H

Baujahr
1995
Objektzustand
Gepflegt
Wesentlicher Energieträger
Gas
Heizungsart
Gasheizung
Befeuerung
Gasheizung
Energieausweis
liegt vor
Energieausweistyp
Bedarfsausweis
Ausstellungsdatum
26.08.2025
Gültig bis
25.08.2035
Energieeffizienzklasse
C
Endenergiebedarf
92 kWh/(m²*a)

Ausstattung


  • Attraktive Gewerbefläche im Erdgeschoss

  • Barrierefrei zugänglich

  • Teeküche und Kunden-WC

  • Gepflegter Gesamtzustand

  • Kaltmiete Gewerbefläche 1200 EUR + Außenstellplatz 30 EUR = Gesamtkaltmiete 1230 EUR

  • Große Schaufensterfronten direkt zur Hexentalstraße

  • Exponierte Lage mit sehr guter Sichtbarkeit und hoher Frequenz durch Anwohner, Besucher und Durchgangsverkehr


Lagebeschreibung

Die Gewerbefläche liegt im Erdgeschoss eines Wohn- und Geschäftshauses in zentraler Lage von Merzhausen, direkt an der Hexentalstraße, der Hauptverkehrsachse der Gemeinde. Diese exponierte Lage bietet dem Mieter eine sehr gute Sichtbarkeit und sorgt für eine stetige Frequenz durch Anwohner, Besucher und Durchgangsverkehr.


Merzhausen grenzt unmittelbar an die Stadt Freiburg im Breisgau und zählt zu den gefragtesten Wohn- und Geschäftslagen der Region. Der Standort verbindet die Nähe zur Freiburger Innenstadt mit der ruhigen und naturnahen Umgebung des Hexentals. Einkaufsmöglichkeiten, Gastronomie, Ärzte und Dienstleister befinden sich ebenso in unmittelbarer Nähe wie öffentliche Verkehrsmittel, die eine schnelle Anbindung an Freiburg und die umliegenden Gemeinden gewährleisten.


Die aktuell vermietete Gewerbefläche profitiert damit von einer attraktiven Mikrolage.


Sonstige Angaben

Provisionshinweis:
Der Käufer zahlt bei Abschluss des notariellen Kaufvertrages an uns, ImmobilienCenter der Volksbank Freiburg eG, eine Provision in Höhe von 3,57 % inkl. MwSt. des Kaufpreises.


Hinweis:
Bitte beachten Sie die gesetzlichen Austausch- und Nachrüstungsverpflichtungen nach dem GEG.


Weitere Informationen finden Sie hier: https://www.verbraucherzentrale.de/wissen/energie/energetische-sanierung/geg-was-aendert-sich-mit-dem-gebaeudeenergiegesetz-13886


Hinweis:
Dieses Exposé ist teilweise unter Nutzung von KI-gestützten Anwendungen entstanden.


Wohnung finden so einfach wie möglich - das ist unsere Mission!

Kostenlose Basic Features

0 € monatlich


  • Individuelles Such-Profil anlegen
  • Suchaufträge speichern
  • One-Klick Kontaktaufnahme

alles anzeigen

Jetzt kostenlos anmelden

Premium Features

19,99 € monatlich


  • Alle kostenlosen Features
  • Smart-Alarm per Whatsapp
  • Deine Chancen checken
  • Wohngegend analysieren

alles anzeigen

Jetzt Premium freischalten

Gewerblicher Anbieter

Volksbank Freiburg eG
Bismarckallee 10
79098 Freiburg im Breisgau

Wohnglück-ID:
Objekt-Nr.:
WGL-1076651
2025 -2597